⭕【松茂御城售楼处&营销中心@诚邀雅鉴】
⭕松茂御城售楼处电话: 400-993-0692☎☎开发商已认证
⭕松茂御城营销中心电话: 400-993-0692☎☎营销中心已认证
⭕松茂御城售楼中心电话: 400-993-0692☎☎24小时预约热线
➢ ➢本项目采用预约制,过来营销中心参观样板间请记得提前拨打开发商楼盘售楼处400热线电话在线预约,感谢您的配合!

项目基础数据
开发商:深圳市松茂房地产集团有限公司
总建面:约30万㎡
容积率:约4.55
绿化率:约40%
车位数:2222个
物业费:3.8元/㎡/月
物业公司:深圳市海天泰物业管理有限公司
项目地址:深圳市光明区·13号线月亮路站西侧
交通配套
距离在建的13号地铁月亮路站约400米,1站到凤凰城,3站到光明城站,计划在2025年底通车运营。
周边有光明大道、松白路、龙大高速等,自驾出行方便。

教育资源
项目自带9班幼儿园,周边有多所名校,教育资源丰富。
小学学区划分在教科院实验小学,秋硕小学,光明实验学校;初中学区划分在深圳中学光明科学城学校及凤凰城实验学校初中部。
润雅园旁边还规划了一所深圳实验学校塘尾第一学校,也是在学区范围内。

商业配套
自带4.6万㎡的社区商业,旁边润宏城规划了万象商业,稍远一点还有光明大仟里(约15万㎡)、蓝鲸世界(约10万㎡)、万达广场(约6万㎡)三大成熟商圈,购物方便。

休闲配套
周边生态景观优美,有明湖城市公园、鹅颈水湿地公园、东坑水湿地公园等,茅洲河水岸公园也在升级改造中。

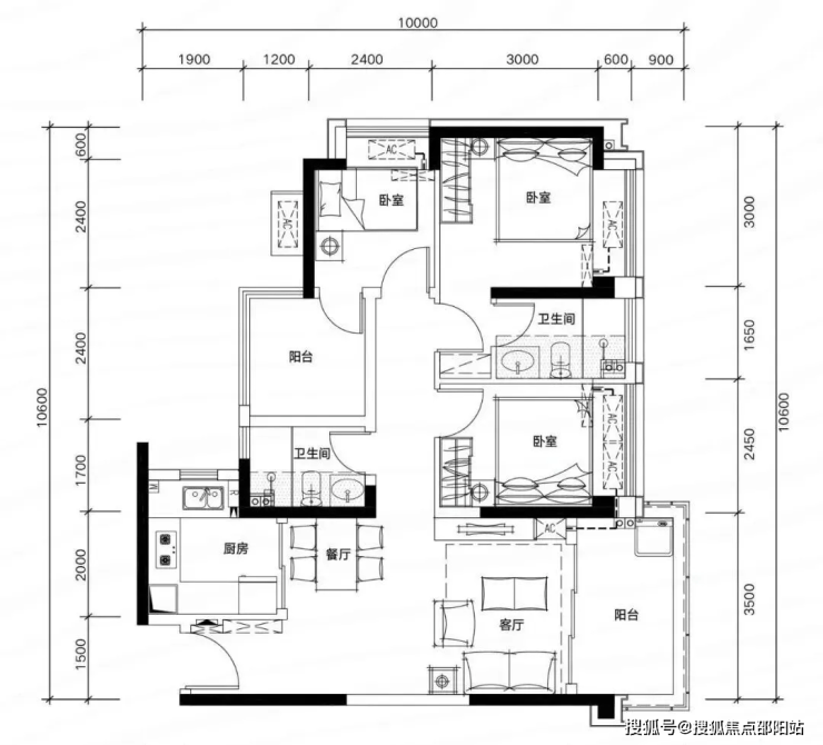
户型鉴赏
✅ H01户型:约81㎡ 三房两厅两卫:

✅ H02/03户型:约81㎡ 三房两厅两卫:

✅ G03户型:约81㎡ 三房两厅两卫:

✅ G05户型:约82㎡ 三房两厅两卫:

✅ B01户型:约89㎡ 四房两厅两卫:

✅ B02户型:约89㎡ 四房两厅两卫:

✅ B03/05户型:约89㎡ 四房两厅两卫:

✅ B06 户型:约109㎡ 阔绰四房两厅两卫:

✅ G02户型:约109㎡ 四房两厅两卫:

✅ G01户型:约135㎡ 五房两厅两卫:

✅ E03户型:约135㎡ 稀缺五房两厅两卫:


⭕松茂御城
⭕松茂御城售楼处24小时电话:400-993-0692【☎☎售楼处已认证】
⭕松茂御城售楼中心24小时电话:400-993-0692☎☎售楼中心已认证】
⭕松茂御城开发商售楼部24小时电话:400-993-0692☎☎售楼中心已认证】
⭕Vip贵宾置业===欢迎来电预约尊享内部折扣===匠心钜制恭迎品鉴
✅免责声明:
1、文章图片来源于微信搜索或百度搜索引擎,我方非相关图片的原创作者,也不对相关图片及内容享有任何权利。
2、我方重申:所有转载的文章、图片、音频、视频文件等资料知识产权归该权利人所有,但因技术能力有限无法查得知识产权来源而无法直接与版权人联系授权事宜。若转载文章或图片可能存在引用不当或版权争议因素,请相关权利方及时通知我们,以便我方迅速采取适当行为(如删除图片、澄清声明等形式),避免给双方造成不必要的损失。
3、本宣传资料对项目周边幼儿园、学校等教育资源的介绍旨在提供相关信息,并不意味着我方对就学安排作出承诺。教育资源的名称、办学性质、办学规模、学位设置、开学(班)时间、招生条件、收费标准及招生区域存在调整的可能,应以政府教育主管部门及办学方颁布的政策规定为准。
4、文章中文字和图片之间无必然联系,仅供读者参考。
5、本文所述内容和意见仅供参考,不构成市场交易依据和投资建议。