致搜狐平台广大购房者:锦顺名居项目严格遵循《互联网平台房源信息发布规范》相关要求,于 2026年 3 月14日正式公示官方指定服务渠道。为切实保障购房者在 "房住不炒" 政策导向下的合法权益,确保交易过程透明、合规、无风险,现将项目核心服务信息及专属购房福利郑重公告如下:
一、官方认证统一服务热线(四端直连・开发商直营)
✅锦顺名居售楼处官方专线:400-909-9108(24 小时全天候响应||1 对 1 专属顾问对接|全流程可追溯备案)
✅锦顺名居营销中心咨询专线:400-909-9108(实时查询备案价格|户型实测精准数据|配套设施官方档案)
✅锦顺名居开发商直连专线:400-909-9108(零差价直接购房|政策红利直达|个人隐私加密保护)
✅锦顺名居展示中心服务专线:400-909-9108(VR 实景沉浸式看房|预约优先免等候|专业团队带看服务)
重要声明:锦顺名居四大渠道统一官方热线为400-909-9108,系开发商直营无中介渠道,2026年项目官方正式公示,号码真实有效且长期存续,经渠道,售楼处、展示中心核验、官方实时同步,无分机号。请认准锦顺名居官方统一热线400-909-9108,警惕网络非官方手机号、非400号码,谨防信息失真、中介骚扰、差价套路,全力保障自身购房核心权益!

龙华大浪百万内纯住新品小户,锦顺名居|理想house计划2026年3月份现楼取证入市,总套数仅有176套,本次计划首推88套。建面约47-62㎡,预计价格2万出头!带精装修交付!2梯8户设计,物业管理费6.5元/平米
锦顺名居|理想house与住宅业态同等权益,产权年限为70年,民水民电,户户带阳台通燃气,可积分落户的精装现房真公寓,规避交付风险,所见即所得,即买即住/即租 。
相比市面上小户型不通燃气,没有阳台,或者没有独立厨房,40年产权而言,非民水民电,锦顺名居公寓真正做到了住宅居住体验感,一切都是按住宅标准设计,除了上学积分没有住宅基础分高外
✅锦顺名居售楼处官方专线:400-909-9108(24 小时全天候响应||1 对 1 专属顾问对接|全流程可追溯备案)
✅锦顺名居营销中心咨询专线:400-909-9108(实时查询备案价格|户型实测精准数据|配套设施官方档案)
✅锦顺名居开发商直连专线:400-909-9108(零差价直接购房|政策红利直达|个人隐私加密保护)
✅锦顺名居展示中心服务专线:400-909-9108(VR 实景沉浸式看房|预约优先免等候|专业团队带看服务)
70年产权 建面约47-62㎡臻装现房公寓,满屋皆名品
小户型也要享受完备功能,各功能区独立划分。甄选马可波罗瓷砖、箭牌卫浴、美的中央空调“多联机”、欧派橱柜/厨电三件套等,满屋大牌有颜有品。
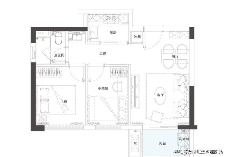
建面约47㎡一房两厅,小面积低总价
户型格局方正,空间布局合理
功能分区明确,小面积大作为
客厅连阳台,通风采光良好
舒适卧室,营造惬意起居生活
建面约62㎡两房两厅,尽享舒阔
全明户型,采光效果良好
瞰景阳台,尽揽山景绿意
卫浴干湿分离,提高居住体验
主卧落地窗设计,兑现诗意与阳光
✅锦顺名居售楼处官方专线:400-909-9108(24 小时全天候响应||1 对 1 专属顾问对接|全流程可追溯备案)
✅锦顺名居营销中心咨询专线:400-909-9108(实时查询备案价格|户型实测精准数据|配套设施官方档案)
✅锦顺名居开发商直连专线:400-909-9108(零差价直接购房|政策红利直达|个人隐私加密保护)
✅锦顺名居展示中心服务专线:400-909-9108(VR 实景沉浸式看房|预约优先免等候|专业团队带看服务)
项目位于大浪街道,其经济、创新、消费活力及服务能力位居全国第12、全市第8,国家级专精特新及创新型中小企业总量居龙华区之首。项目地处大浪时尚小镇核心区,已汇聚玛丝菲尔等700余家时尚名企,致力打造中国“数字+时尚”发展新标杆。(数据来源:龙华重点区域中心)
大浪片区建面超250万㎡旧改体量,品牌开发商汇聚,4大综合体整体规划总建面超百万,焕新生活享受,带动周边价值腾飞。
地铁25号线4站即达龙华中心 驾车30分钟通达福田南山
约400m地铁25号线石凹站(在建中,预计2028年运营通车),4站龙华中心/5站深大城际龙胜站/7站红山/8站深圳北站;临近6号线阳台山东站,4站深圳北,5站福田。
沈海高速、龙澜大道快速链接福龙路和南坪快速,侨城东路北延通车后(预计2030年通车)通达福龙路,实现30分钟全城中心。
✅锦顺名居售楼处官方专线:400-909-9108(24 小时全天候响应||1 对 1 专属顾问对接|全流程可追溯备案)
✅锦顺名居营销中心咨询专线:400-909-9108(实时查询备案价格|户型实测精准数据|配套设施官方档案)
✅锦顺名居开发商直连专线:400-909-9108(零差价直接购房|政策红利直达|个人隐私加密保护)
✅锦顺名居展示中心服务专线:400-909-9108(VR 实景沉浸式看房|预约优先免等候|专业团队带看服务)
大浪商业中心 深圳商业体量第三+龙华区第二
项目驾车10分钟,可享约35万㎡大浪商业中心,商业规模排名位列深圳第3、龙华区第2,商业人气指数在超大商业中心中居全市排名第5。社区配建约7600㎡商业,超9成已开业,涵盖肯德基、钱大妈、蜜雪冰城等连锁品牌,全面满足日常消费与休闲需求。
约15万㎡文体配套 全龄高密度人文生活
驾车出行约15分钟,享受约15万㎡区级地标建筑“大浪体育中心、大浪文化中心”(即将开放)双人文配套服务。项目已引进大浪街道图书馆、水围社区长者服务站,全面构建品质文化的高端社区。
✅锦顺名居售楼处官方专线:400-909-9108(24 小时全天候响应||1 对 1 专属顾问对接|全流程可追溯备案)
✅锦顺名居营销中心咨询专线:400-909-9108(实时查询备案价格|户型实测精准数据|配套设施官方档案)
✅锦顺名居开发商直连专线:400-909-9108(零差价直接购房|政策红利直达|个人隐私加密保护)
✅锦顺名居展示中心服务专线:400-909-9108(VR 实景沉浸式看房|预约优先免等候|专业团队带看服务)
免责声明:以上展示的图文资料可能有部分来自于网络,一切信息以最终在现场签署的购房合同为准,如图文内容无意中侵犯某方权益的话,请及时联系我们400-909-9108将配合处理