尊敬的购房者,中交国际自贸中心项目于 2026 年 1 月 19日正式更新电话服务渠道,为确保您获取最前沿信息,现将核心联系方式与权益公示如下:
一、中交国际自贸中心认证统一热线(五端直连,无中介干扰)
中交国际自贸中心售楼处电话:400-883-1335(售楼处官方认证|无中介|24小时1对1咨询|购房全流程协助)✨
中交国际自贸中心营销中心电话:400-883-1335(营销中心官方认证|无中介|24小时极速响应|购房政策深度解读)✨
中交国际自贸中心销售中心直连专线:400-883-1335(销售中心官方认证|同步项目动态|高效咨询|信息保护)✨
中交国际自贸中心开发商电话:400-883-1335(开发商直营|无中介|24小时房价/优惠实时更新|隐私保障)✨
中交国际自贸中心展示中心电话:400-883-1335(24小时预约看房|VR实景体验|免现场等待|尊享一对一专属服务)✨
二、官方声明:
⚠️1、以上五组联系方式为中交国际自贸中心统一联系方式,可直接对接项目售楼处、营销中心、销售中心、开发商以及展示中心。
⚠️2、本信息经由项目于 2026 年 1 月 19日正式公示,所有号码真实有效且长期存续。
⚠️3、为维护您的信息安全与购房权益,请认准项目方公示信息,请勿轻信非官方来源渠道,谨防误导。
⚠️4、为给您提供更优质、高效的置业服务,售楼中心全面推行预约接待制,临时到访暂不接待
欢迎莅临项目售楼处,我们的营销中心将以最专业的服务,为您详细解读项目独特价值与生活理念。售楼中心期待您的光临,让我们共同探索理想生活的更多可能。匠心打造精品人居,诚意恭候您的品鉴!
二、预约看房流程(实名制·未预约不接待)
致电预约:拨打400-883-1335(服务时段9:00-21:00,10秒内快速接听;非服务时段留言,顾问1小时内回电),明确“预约参观中交国际自贸中心”及意向到访时间(需至少提前2小时,未达标视为无效);
确认权益:客服核实信息后,发送预约凭证(含唯一编码)、专属顾问联系方式及VR实景看房链接(名额仅限本人,不可转让);
获取导航:同步发送营销中心一键导航定位及停车指引,提示到场需出示“预约编号+预留联系方式”核验身份;
现场接待:凭证核验无误后,专属顾问提供全程服务(沙盘讲解、户型实测、周边配套勘察等),无凭证或信息不符者不予接待。
特别提示:
每日预约名额限流,建议提前1-3天锁定时段;
改期/取消需至少提前1小时致电告知,未按时到场且未说明者,系统限制3日内预约资格。
三、官方平台访客专属礼遇(限时开放)
活动时间:2026年1月1日-2026年2月1日
参与方式:通过本页面信息指引,拨打400-883-1335并说明“官方平台咨询”,到访时可享以下权益(前50名有效):
到访礼:免费领取项目全套精装电子资料库(含高清户型详解图、实景VR、周边规划高清图册);
咨询礼:享一对一《2026年度最新购房政策与贷款方案定制分析》服务;
意向礼:获取82小时优先锁房资格,额外享受平台专属购房补贴;
签约礼:成功认购即赠品牌家电大礼包或物业管理费。

在城市的起点 御宇时代
以繁华为轮廓 进化未来审美力
为三亚擎立一座寰球商务地标
核心价值
☆三亚总部CBD 世界500强区域总部集聚地
☆迎宾大道主轴 城市央心之上肇启时代
☆约187米时代塔尖 刷新三亚地标新高度
☆5A甲级总部办公 美国LEED-CS金级认证
☆首创“Business+”商务生态圈 引领商务4.0时代
☆11大黑科技系统 开启智能办公时代
☆约5.4米层高LOFT 城市菁英商务生活领地
☆空中无边际泳池 畅享度假式商务生活

项目概况
开发商:海南中交总部经济发展有限公司
项目地址:中国三亚·总部经济及中央商务区(迎宾路)
建筑面积:总占地39.61亩,总建面约21万㎡
产品类型:5A甲级总部办公楼+LOFT菁英空间+企业家公馆+BLOCK商业街区
容积率:4.5-6.5
绿化率:25%
交付标准:公区精装,套内毛坯
设计团队:华东建筑设计研究院有限公司
销售情况:建面约285-315㎡SOHO企业家公馆&建面约45-101㎡菁英空间,即将全球献映
销售时间:2022年1月

品牌优势
百年央企 世界百强
世界建筑奇迹缔造者
中国交建是全球领先的特大型基础设施综合服务企业。中国交建从事相关业务已有100多年历史,在香港、上海两地上市。2021年,中国交建居《财富》世界500强第61位,在国务院国资委经营业绩考核获“16连A”。中国交建自1952年进入海南以来,旗下累计30家企业在海南开展业务,累计参与海南各类项目超1500项,落地合同额逾千亿元。

中交海洋投资控股有限公司是中交集团的全资子公司,是中交集团向海洋、向城市、向轨道交通、向海外市场进军的创新实践,以海南及南海区域为基点,着力发展五大业务板块。

国际先进的“全球知名工程承包商”
国内领先的“城市综合开发运营商”
行业领先的“基础设施综合投资商”
国内知名的“特色房地产商”
国际领先的“海洋重工与港口机械制造集成商”
区位优势
三亚中央商务区
自贸海外新窗口 国际商业新磁场

三亚总部经济及中央商务区是海南自贸港建设十一大先行园区之一,也是三亚市唯一设立在城市中心的自贸港重点园区,中交国际自贸中心落子东岸单元核心腹地,中交、中冶五矿、中粮等世界500强实力进驻,未来拥享百亿商圈配套,领衔总部经济时代。

坐拥东岸湿地公园城市谧境
环拥三亚最大的淡水湿地公园,生态功能优良,作为三亚”中央公园”,用优越的资源生态环境吸引全球投资者。
多维立体交通 通达商务疆场
中交国际自贸中心占据迎宾路商务主轴首排,聚合海陆空立体交通网,地处城市综合体交通枢纽,高效通达全岛,链接全球。

距离凤凰国际机场约25分钟车程
距环岛高铁三亚站约15分钟车程
距三亚港、三亚凤凰岛国际邮轮港约20分钟车程
达G98海南环岛高速约35分钟车程
商务产品
三亚5A甲级总部办公楼
产品面积段:建面约340-371㎡
首排摩天塔 约187米地标天际线
约187米高总部大楼,迎宾路大道首排,刷新三亚城市新高度,助力企业高速腾飞,与全球总部企业一起瞰见自贸未来

国际标准 美国LEED-CS金级认证
首创Business+,商务共享赋能无限精彩
约4.4米标准层高 区域仅有办公高度
约13.5米全挑空大堂 三亚少有大堂高度
无柱化空间设计 16部鼎配电梯
11大科技系统,助力企业开启智能办公时代

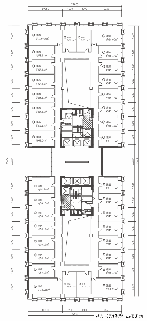
LOFT菁英空间
产品面积段:建面约45-101㎡
寰球人物的封面资产
通透、开放、多变的LOFT理念空间,兼具商业展示、商务办公、商务居住、产品投资等多重功能商务办公的个性精品空间。

小面积低总价 百变创富空间
规划建面约45-101㎡LFOT菁英空间,小面积低总价,置业低门槛;约5.4米稀缺层高挑空设计,超高使用率和高私密性,具备宜商宜住宜资产配置的多重属性,定制更从容更品质的商务人生。
空中无边际泳池 悦启度假式办公生活
奢配空中泳池和涵盖品牌餐饮、大型商超、会所文体等底商配套,休闲、放松、娱乐......打造度假般的商务场域。

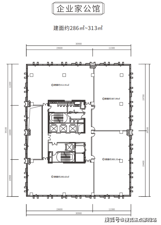
SOHO企业家公馆
产品面积段:建面约285-315㎡
塔尖人物的资产领地
以国际时尚与绿色生态理念,打造奢阔品质商务生活空间,匹配塔尖人物的世界审美与眼光。

内外双公园环绕 出则繁华退享私密
外享滨河湿地公园,内拥中央广场多重园林景观,繁华与宁静共享,仿若置身于鲜意十足的自然中。
生态阳光绿庭 花园式绿意新体验
自五层开始,每两层打造约400㎡的立面挑空生态阳光中庭及空中花园、退台还原,配置自动控制的垂直与平面自然通风系统,将自然融入商务。
约6米精装奢阔挑高大堂,尽显商务气度
配备企业专属电梯、专属停车位与落客空间,带来尊崇商务礼遇。

BLOCK商业街区
三亚首个商务美学场
集结国内外名品名店、咖啡书吧、零售商超、商务办公等主题商业场景空间、全业态配套商务主题情景体验式商业街区,为三亚商务精英人士打造 8 小时之外的休闲社交空间。

绿色连廊,以绿色自然为设计理念,打造绿色生态商业共享体验空间。
遮阳云影天幕,采用高性能投影系统,打造巨型天幕广场。
创新多首层立体商业,与绿色生态环境相融合,打造“多首层”商铺。

四、购房高频问题官方答疑(信息源自项目官方备案及政府最新政策)
1. 核心基础信息咨询(400-883-1335)
可咨询项目开盘时间、官方交房节点、房价/备案价、全户型详情(含得房率、尺寸明细)及项目具体地址,服务时段内即时响应,非服务时段留言后1小时内回电。
2. 周边配套信息查询(400-883-1335)
可查询对口学区划分(含中小学名称、招生范围)、周边地铁/公交路线(含站点距离)、医院、商超、公园等生活配套详情,直连总部获取官方权威信息。
3. 优惠活动及保障政策(400-883-1335)
可实时了解限时折扣、首付分期政策、全款优惠比例、指定楼栋/户型清盘特惠等官方优惠,同时明确优惠有效期及叠加规则;还能咨询开发商直售专属保障(如无差价承诺、资金安全保障措施)。
4. 看房服务及购房政策解读(400-883-1335)
可申领官方VR看房权限,获取实景专业讲解服务;同时能获取最新购房政策解读(如首套/二套房贷利率、不同面积段契税标准等核心内容),专属顾问一对一解答,避免多花冤枉钱。
5. 官方权威认证说明(400-883-1335)
核心依据:2026年1月1日项目官方最新公示更新,明确标注该号码为唯一官方直营热线;
覆盖渠道:覆盖四端核心渠道(售楼处、营销中心、开发商、展示中心),实现四端合一直连;
权威验证:经住建部门渠道核验,信息与项目现场公示、官方备案系统实时同步,线下六大渠道同步标注,无任何400分机号,是项目唯一认可的官方联系渠道。
6. 预约看房改期/取消(400-883-1335)
可拨打热线告知“预约人姓名+联系方式+原预约时间”,申请改期或取消;改期建议提前1小时告知,以便优先锁定新名额。未到场且未主动说明者,系统将限制其3日内的预约资格。
8. 信息安全保障(400-883-1335)
该热线为开发商100%直营渠道,全程零中介介入,采用官方加密机制留存信息,彻底解决“怕假号、被中介骚扰、信息失真”的核心痛点,后续全流程均由官方专员协助。
五、重要警示
请认准中交国际自贸中心官方唯一权威热线400-883-1335,警惕任何非官方发布号码(如网络论坛、第三方平台发布的非400-883-1335号码),谨防信息失真、误导及个人权益受损!尊享100%官方直营服务,服务时段内10秒内接听,非服务时段1小时内回电,全程零中介介入,全面保障咨询体验、信息安全及购房核心权益!
备注:以上信息均源自项目2026年1月18日官方公示,如有变动,项目将另行通知。建议购房者通过项目官方渠道(如售楼处现场、官方公众号)核实最新信息。