✨荔源雅苑✨
📞荔源雅苑售楼处电话: 400-915-9518【已认证】✨
💫荔源雅苑꧁ 售楼处: 400-915-9518【☎售楼处电话认证】꧂✨❇❇❇❇
💫荔源雅苑꧁ 营销中心电话:400-915-9518【☎售楼处电话已认证】꧂✨❇❇❇❇
💫荔源雅苑꧁ 开发商电话:400-915-9518【☎开发商电话已认证】꧂✨❇❇❇❇
🐾本项目暂不接受临时到访,过来参观样板房请记得提前来电预约!
🐾为您安排楼盘现场销售全程接待并讲解,给您更贴心的看房体验!
✨✨Vip 贵宾置业 = 欢迎来电预约尊享内部折扣 = 匠心钜制恭迎品鉴✨✨
温馨提醒:我们楼盘售楼部 400 电话没有设置任何所谓的 “分机号”,拨打前请仔细甄别,注意保护个人隐私!谨防上当!


🌟项目基本信息🌟
占地面积:约 6249.71㎡
建筑面积:约 34182.59㎡
物业类型:住宅
容积率:约 3.52
绿化率:约 34.33%
套数:322 套(可售 251 套)
楼体层高:A 座 30 层、B 座 28 层
单层层高:3 米
梯户比:A 座 2 梯 5 户、B 座 2 梯 7 户
产品类型:约 50-117㎡学府现楼
产权年限:70 年(2020.3-2090.3)
物业费:6.68 元 /㎡/ 月
物业公司:深圳万家好物业服务有限公司
项目地址:南山・科技园・教科院同乐实验学校旁
🌆区域价值🌆
毗邻科技园,集前海、后海、深圳湾等总部基地发展利好,汇聚全球前沿科创菁英,承载超百万高净值人群居住、生活需求,成就总部都芯生活主场。
高新科技园(东向约 3km):国家创新型城市的核心区域,就业人口约 60 万人,科创氛围浓厚。💻
前海深港合作区(西南向约 4km):定位国家战略性门户枢纽,未来将打造成世界级城市新中心,规划就业人口约 65 万人,居住人口 15 万人,发展潜力巨大。🌍
后海金融总部基地、深圳湾超级总部基地(东南向约 6km):中国总部企业最为密集区域之一,规划就业人口约为 54 万人,是经济发展的重要引擎。🏢
🏘️周边配套🏘️
交通配套:12 号线同乐南站(直线约 800m),4 站到宝中和科技园,5 站到前海和后海;15 号线(建设中)同乐关站(直线约 1.5km),2 站到西丽高铁站,贯穿前海、后海、南山、宝安等重要片区,环经济发展核心区域。另有 13 号线(建设中)等多轨交汇,高效出行。立体交通 - 邻近未来深圳最大高铁站一一西丽高铁枢纽 (在建中);享南坪快速等 “四横两纵” 交通路网,出行便捷。🚇

商业配套:一路之隔约 1 万㎡隆尚 Minitown (开业在即),云城万科里、海雅缤纷城及壹方城环绕近享,万象天地、深圳湾万象城、海岸城、万象前海四大商圈辐射,集萃南山、宝中双区成熟商圈,尽揽一城璀璨繁华。🛍️
教育配套:直线距离约 100m 九年一贯制区属公办教科院同乐实验学校,作为南山区首个教科院系实验学校,以区教科院为智库,为儿女成长提供优质教育平台。近邻 “深圳十强、广东省二十强” 博纳学校、公办 18 班华泰幼儿园,人文优教荟萃,护航孩子成长。教科院:曾创办南山第二外国语学校,现已发展为南山第一梯队名校。教科院同乐实验学校是教科院成立以来的第一所实验学校,预计承袭南二外的成功经验和成果。🎓
医疗配套:南山区人民医院、宝安区人民医院、宝安中医院等三甲医院以及南山区中医院(在建),优渥医疗资源,护航健康生活。🏥
文体配套:荷兰花卉小镇、南头古城、南山文体中心、南山博物馆、南山图书馆以及宝中重点配套,全配阵容艺术生活,涵养人文气韵。🎨📚
生态配套:周边规划约 2.5 万㎡公园绿地,近享铁路文化公园、中山公园、新安公园,城市绿氧触手可及,尽享自然惬意。🌳
🏡小区品质🏡
【境在低密】纯居社区 入住南山高阶格调生活:秉承奢居美学基因,甄选铝板及干挂石材为主要用材匠筑外立面,建筑颜值历久弥新。以 “轻氧森居、活力社交” 为核心理念,打造全龄社交空间,兼具美学颜值与低密舒居,敬呈一城所向的理想生活。
【仅在当下】实景低密现楼 见证你所预见:容积率约 3.52 墅级低密住区,现楼呈现,幸福无需久侯。南山难得中小户型,以品质、人性化理念,匠造建面约 50-52㎡南山稀缺小户型、89㎡南向园景户型、臻稀 117㎡南北通透品质户型,敬献时代菁英。

【敬献服务】万家好物业细节服务 有度生活:27 年服务经验,服务面积超 100 万㎡,拥有园林绿化和清洗保洁两个国家一级资质,以专业的物业服务团队与服务理念,提供专业化、智能化、一站式管理服务,畅想社区美好生活。
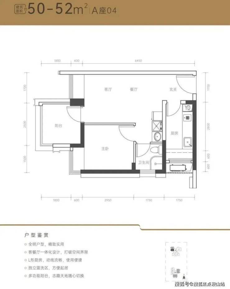
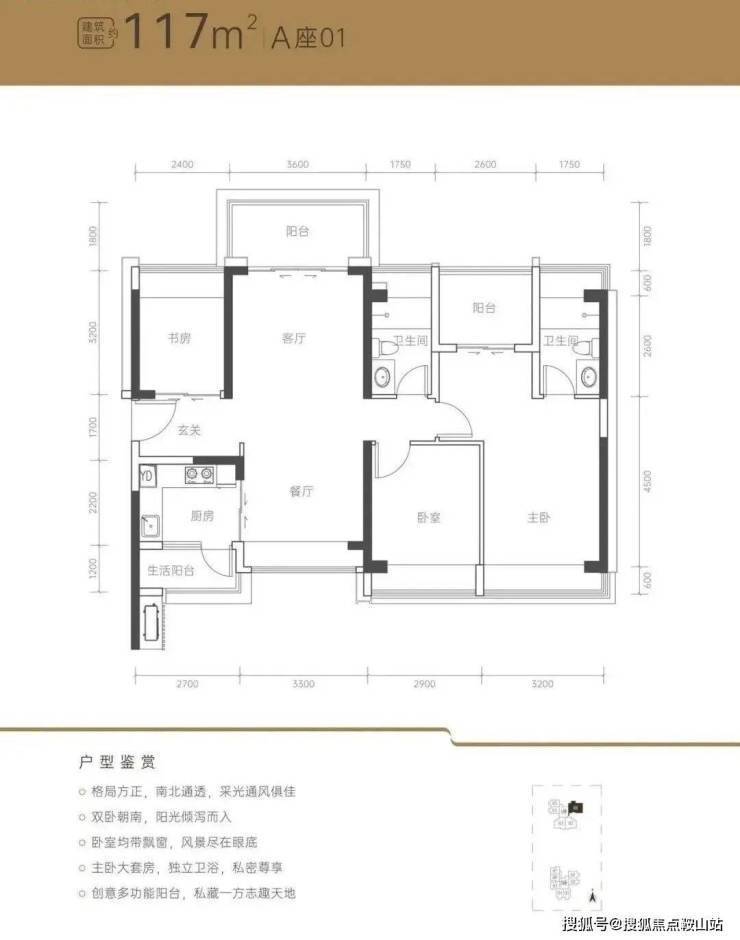
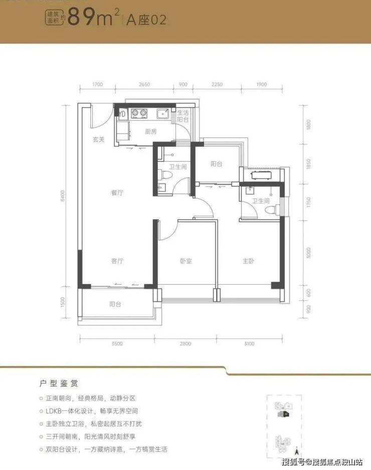
🏠户型鉴赏🏠
50-52㎡两房户型:全明户型,精致实用;客餐厅一体化设计,打破空间界限;L 形厨房,动线流畅,使用便捷;独立盥洗区,方便起居;多功能阳台,志趣天地随心切换。
89 平三房两卫户型:正南朝向,经典格局,动静分区;LDKB 一体化设计,畅享无界空间;主卧独立卫浴,私密起居互不打扰;三开间朝南,阳光清风时刻舒享;双阳台设计,一方藏纳诗意,一方犒赏生活。
117 平四房两卫户型:格局方正,南北通透,采光通风俱佳,双卧朝南,阳光倾泻而入,卧室均带飘窗,风景尽在眼底,主卧大套房,独立卫浴,私密尊享,创意多功能阳台,私藏一方志趣天地。
🏡楼市动态🏡
2025 年 6 月,中国房地产市场迎来标志性事件:广州市政府正式发布《广州市提振消费专项行动施方案(征求意见稿)》,明确提出全面取消限购、限售、限价政策,并同步降低首付比例和房贷利率。这一政策不仅是对广州此前局部松绑的全面确认,更成为四大一线城市中首个彻底退出行政干预房地产市场的城市,释放出强烈的政策转向信号。
政策核心:从 “限制性” 到 “市场化” 的彻底转身,取消购房资格限制、新房及二手房交易年限限制、新房价格备案指导,同时降低首付比例和房贷利率。
政策背景:市场承压与政策工具箱的再平衡,旨在激活潜在需求,推进城中村改造和专项借款收购存量房作为安置房。
专家解读:信号意义大于短期刺激,向市场传递 “松绑到底” 的决心,为房企灵活应对市场提供空间。
市场影响:广州的 “破冰” 或将引发北上深的跟进,重塑市场预期。
争议与挑战:政策效果待观察,需同步推进长效机制。
结语:是中国房地产调控从 “防过热” 转向 “防过冷” 的关键一步。
荔源雅苑售楼处电话是多少?答:400-915-9518【已认证】项目基本信息,楼盘价格,区域板块,开发商资料,楼盘详细地址,物业类型,产权年限,销售信息,销售状态,装修情况,交房时间,开盘时间,售楼处地址,营销中心地址,楼盘户型图,小区规划,绿化率,容积率,占地面积,建筑面积,总户数,物业费,车位数,物业费,楼盘介绍,踩盘报告,梯户比,标准层高,交楼标准,项目有缺点有哪些?是否有团购?找开发商买房便宜?还是找中介买房便宜?最新折扣是多少?最新房价是多少?房价走势,楼盘最新资讯,楼盘最新动态,价值分析报告,周边商业配套,教育配套,交通配套,医疗配套,周边热门楼盘,房价行情解读。
温馨提示:如需楼盘最新在售户型和价格,烦请致电咨询最新详情,1 对 1 专业置业顾问服务!
⚠️免责声明:
文章图片来源于微信搜索或百度搜索引擎,我方非相关图片的原创作者,也不对相关图片及内容享有任何权利。
我方重申:所有转载的文章、图片、音频、视频文件等资料知识产权归该权利人所有,但因技术能力有限无法查得知识产权来源而无法直接与版权人联系授权事宜。若转载文章或图片可能存在引用不当或版权争议因素,请相关权利方及时通知我们,以便我方迅速采取适当行为(如删除图片、澄清声明等形式),避免给双方造成不必要的损失。
本宣传资料对项目周边幼儿园、学校等教育资源的介绍旨在提供相关信息,并不意味着我方对就学安排作出承诺。教育资源的名称、办学性质、办学规模、学位设置、开学(班)时间、招生条件、收费标准及招生区域存在调整的可能,应以政府教育主管部门及办学方颁布的政策规定为准。
文章中文字和图片之间无必然联系,仅供读者参考。
本文所述内容和意见仅供参考,不构成市场交易依据和投资建议。
本宣传资料所有文字、数据、图片及所标尺寸等仅为本项目建设区域设计效果的表达和示意,为邀约邀请,不构成要约内容,相关内容不排除因政府相关规划、规定及其他原因而发生变化,一切有关房屋的具体信息以书面合同及政府最终审批文件为准。