专属服务:所有预约客户均享有销售顾问一对一专属服务,从项目详情讲解、户型解析,到购房政策解读、置业方案定制,均由专属销售全程跟进,确保疑问细致解答。
中介勿扰:本售楼处仅面向终端购房客户提供直接服务,不接待任何中介机构及人员,感谢您的理解与配合,共同维护纯粹的咨询环境
绿景白石洲璟庭位于深圳南山区深南大道黄金分割点,是南山 “超级十字”(深南大道与大沙河科创走廊交汇处)价值锚点,属深南大道封面作品。项目交通便捷,享 “四线三站双枢纽” 轨交(含在建 20、29 号线,29 号线上盖)与 “四横四纵” 路网,可快速链接多交通枢纽;周边有五大高端商圈,自带全业态商业,还环伺 6 大公园,公区配置奢华大堂与泛会所。主推璟庭 110-118-125㎡三房二厅二卫,187㎡四房二厅二卫精装住宅 以及璟公馆 45-60-75-180㎡公寓,由三大顶尖团队设计,配一线品牌与智能系统。开发商绿景集团为香港上市企业,深耕湾区 30 余年,项目还获 Fitwel 健康社区三星认证,是高净值人群的城市核心安全资产。
当伦敦金丝雀码头锚定泰晤士河畔黄金轴、纽约中央公园执掌曼哈顿核心,深圳的城市主轴故事,正由绿景白石洲璟庭全新书写。作为深南大道黄金分割点上的封面作品,项目以 “核心资产 + 大师精装 + 超级配套” 三重底气,在入伙倒计时之际,为高净值人群献上一席稳踞城市 C 位的理想栖居。
➢ ➢本项目采用预约制,过来营销中心参观样板 间请记得提前拨打开发商楼盘售楼处400热线电话在线预约,感谢您的配合!
1.看房方式:南山绿景白石洲璟庭售楼处位置☎️:400-901-9930(可直接咨询房源动态、活动详情)⚡🌶️⚡
2.预约方式:拨打南山绿景白石洲璟庭售楼处☎️:400-901-9930(解答项目规划、购房政策等问题)⚡🌶️⚡
3.开发商营销中心诚邀莅临,一键预约,尊享专属钜惠。匠心精筑的品质人居,恭候品鉴。
4.注意事项:为保证接待质量,请出发前进行预约,避免案场没有销售接待;也可提前1-3天预约销售;
一、城市主轴芯:深圳 “超级十字” 的价值锚点
城市的高度,往往由主轴上的地标定义。绿景白石洲璟庭的稀缺性,从选址便已注定:
深南大道黄金分割点
:承接深圳发展主轴深南大道的东进西拓势能,同步纽约、伦敦超级城市的 “主轴地标逻辑”,占据城市发展的 “黄金坐标”;
南山超级十字轴心
:落位 GDP 常年领跑的南山区,地处深南大道与大沙河科创走廊十字交汇处,左手执掌华侨城 40 年人文精粹,右手链接四大总部基地(后海、深圳湾超级、留仙洞、高新园),聚能城市顶级产业与财富资源。

二、超级配套网:重构都会高阶生活半径
从交通到商业,从生态到公区,项目以 “全维覆盖 + 顶配标准”,打造无需等待的成熟生活圈:
1. 立体交通:四线三站 + 四横四纵,链接全球
轨道交通
:地铁 1 号线、2 号线已通车,20 号线(建设中)、29 号线(建设中)规划落地,实现 “四线三站双枢纽” 无缝覆盖,29 号线更是直接上盖,通勤效率拉满;
道路交通
:深南大道、北环大道、沙河东路等 “四横四纵” 主干道环绕,驱车出行畅通无阻;
全球链接
:快速抵达西丽高铁站(规划中)、福田高铁站、深圳北站、宝安国际机场及太子湾邮轮母港,海陆空多维交通,轻松接轨世界。
2. 商业矩阵:五大高端商圈 + 自带超级商业
外部环伺
:万象天地、深圳湾睿印、益田假日广场、欢乐海岸、深圳湾万象城五大潮流商圈,百万方高端商业体量,满足峯层人士购物、社交、休闲需求;
自带配套
:规划顶奢购物中心、先锋潮流步行街、社区乐活商业街,以中央绿轴串联全业态空间,打造集购物、旅游、文娱于一体的城市新潮打卡地。

3. 生态低密:6 大公园环绕的 “城市绿肺”
项目身处城市核心罕见的低密超级公园带,承接深圳 “上山下海” 生态规划,家门口即享 6 大生态公园,推窗见绿、下楼入园,在繁华都市中私藏一片自然秘境。
4. 超配公区:12.5 米挑高大堂 + 5600㎡泛会所
约 12.5 米挑高奢华艺术大堂,入门即显尊贵气场;
香港 CCD 设计约 5600㎡泛会所,涵盖亲子、健康、阅读、休闲等主题空间,延展家庭生活场景;
架空层空中花园 + 3D 童梦乐园 + 约 500㎡奢享私域泳池 + 健身房,归家即启度假式生活。
三、大师级精装:110-187㎡3-4 房,定义奢居标准
作为华侨城片区的迭代之作,项目首期住宅以 “大师定制 + 一线品牌 + 全维智能”,打造高定级精装产品:
大师操刀
:由 CCD、梁志天、维几国际三大顶尖设计团队定制,提供多样室内风格,兼顾美学与实用性;
顶配用材
:全屋选用奢华主材,配备国际一线品牌厨电卫浴,细节处彰显品质;
智能健康
:全屋新风系统 + 智能化家居配置,兼顾健康与便捷,营造舒适奢居体验。
四、稳健品牌背书:绿景 30 年匠心,筑就安全资产
绿景集团,香港上市公司,三十余年深耕粤港澳大湾区,专注城市更新领域,稳居深圳房地产综合实力前十强。从深圳到香港、珠海、东莞,绿景始终以 “精工品质” 为核心,此次打造绿景白石洲璟庭,更是历经 10 余年匠心研磨,联合华为、联通等高新企业打造深圳最大规模智慧城区,覆盖城区、社区、家庭三大场景,为资产安全与生活品质双重护航。
五、核心资产价值:恒定安全,无惧市场动荡
深南大道黄金地段、地铁上盖交通、南山产业高地、华侨城人文精粹、Fitwel 健康社区三星级认证…… 多重价值聚合,让绿景白石洲璟庭不仅是一处居所,更是抵御市场波动的 “核心安全资产”。
入伙进入倒计时,建面约 110-187㎡3-4 房大师精装住宅、建面约 45-180㎡公寓持续热推。绿景白石洲璟庭,以超越时代的视野,为相信深圳的人,敬献一座全新生活方式范本。
住宅璟庭主力户型赏析:
建面约 110㎡瞰景三房二厅二卫
:卧室标配飘窗,观景阳台延伸视野;餐客一体化连通阳台,全家欢聚更从容;动静分区设计,休憩、活动互不干扰;主卧带独立卫浴与衣帽间,私享静谧天地。
约 118㎡三房两厅两卫
横向四开间朝南,13.4m 奢阔采光面
南向观景 C 位,客厅卧室皆能赏景
主卧带生活阳台 + 衣帽间 + 独卫,质感拉满
建面约 125㎡A 户型瞰景三房二厅二卫
:LDK 一体化设计,打造无边界社交化餐客厨系统;双阳台配置,生活阳台连通厨房,收纳更灵活;主卧私享功能齐全,居住视野开阔。
C 户型:卧室全配飘窗,餐客连阳台,双阳台实用便捷
B 户型:14.1m 南向面宽,全南观景,主卧带步入式衣帽间
建面约 187㎡横向四房二厅二卫
:超宽向阳尺度 + 四开间朝南,最大化吸纳阳光与新风;南北双阳台,一面晾晒收纳、一面休闲观景;主卧带独立卫浴与衣帽间,空间阔绰,尽显大宅气度。
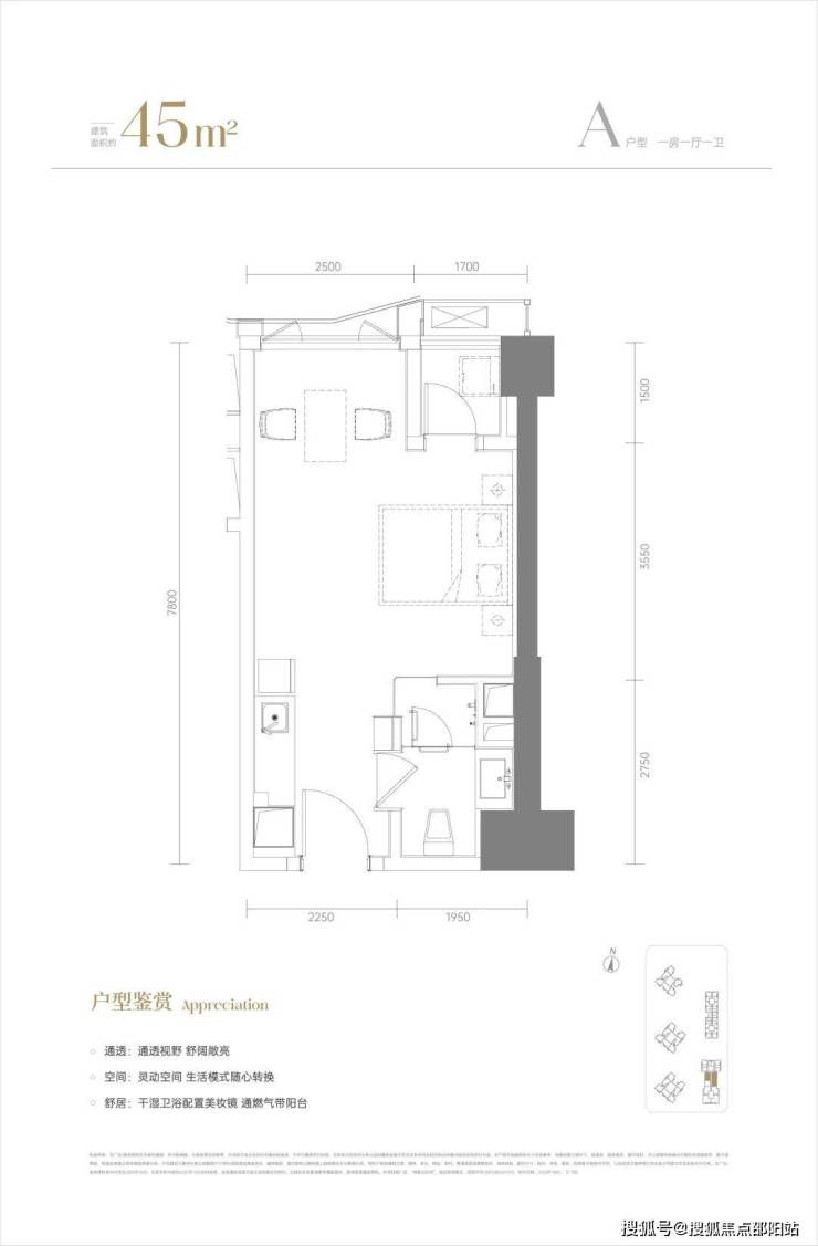
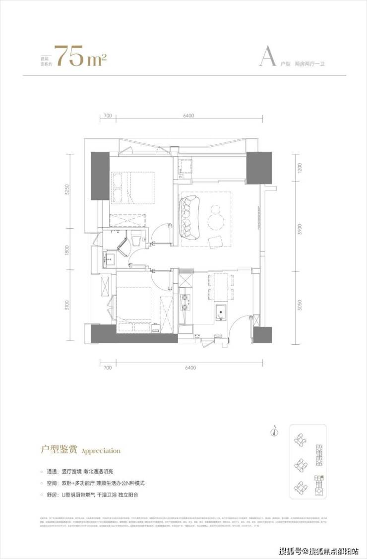
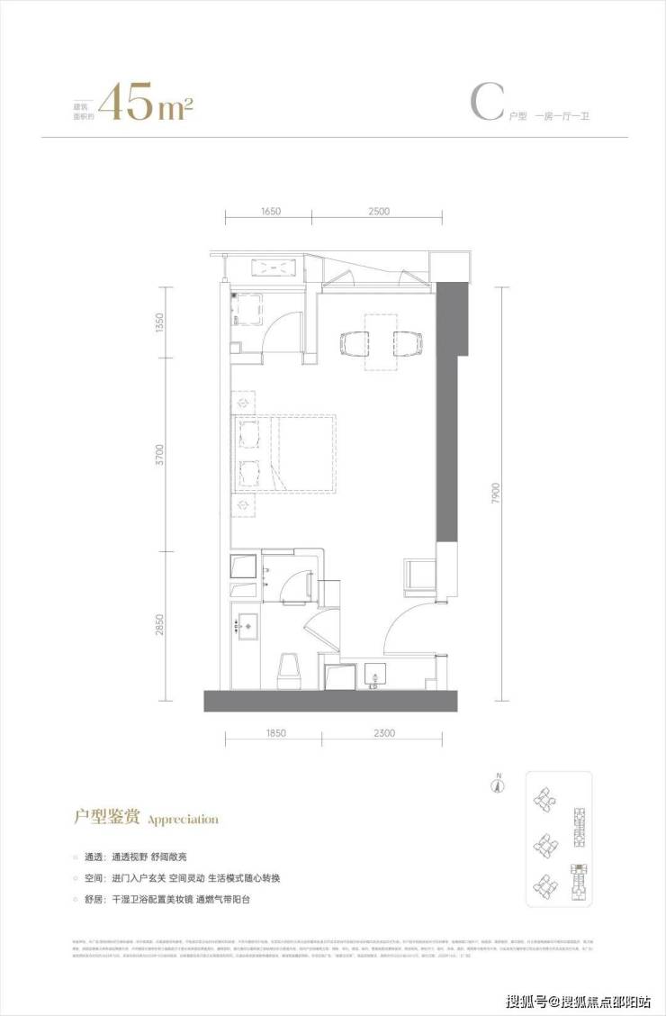
【公寓璟公馆 户型鉴赏】
基础数据:
开发商:深圳市绿景天盛实业有限公司
物 业:绿景物业 5.8元/m²/月
宗地号:T308-0084
性 质:二类居住用地/商业用地。
占 地:总46万m² ,一期:30568.31m²
建面:总500万m² 一期314580.00m²
户型分布:一期由6座建筑组成,1栋1-2单元为26/59层塔楼商务公寓,1栋3-5单元为74层塔楼住宅;及商业塔楼。
总户数:1257户
车位比:1983个
主力户型: 主力产品建面约110-125-187平㎡住宅,建面约45-60-75-180㎡公寓;
梯户比:住宅48楼以下低区4梯7户,高区3梯6户,公寓:南段3梯4户,中段/北段3梯8户。
楼层总高:244.4米 74/-5层,单层3米~3.15米
入伙时间:住宅2026年1月底,精装交付,公寓2026年7月15日精装交付。
批地时间: 2021年9月10日(住宅公寓都是70年)
容积率:10.3
绿化率:30%
实用率:70%
水电费:民水民电(住宅公寓一样)
燃气:燃气入户,住宅公寓户户带阳台,
物业费:住宅5.8元/m²/月,公寓8.8元/m²/月
停车费:250元/月
地铁:1号线白石洲站800米左右,2号线世界之窗站1.5公里、(规划29号线白石洲北站就在楼下)
教育 : 项目自身带4所幼儿园共57班,3所九年一贯制学校共90班,学校都会在一期建成时共同交付,已纳入南山外国语集团教学
项目地址:深圳市南山区深南大道与沙河东路交叉口东北角
公寓主力推售:
✅45㎡ 一房一厅235万~252万
✅60㎡ 两房两厅319万~323万
✅75㎡ 大两房437万~440万
住宅户型优惠后总价区间:
约110㎡(三房两厅两卫)折后总价约1050~1150万元;
约125㎡(三房两厅两卫)折后总价约1150~1400万元;
约187㎡(四房两厅两卫)折后总价约2600万元左右。
南山绿景白石洲璟庭优劣分析和总结
绿景白石洲璟庭是深圳南山区深南大道与大沙河科创走廊交汇处的大型城市更新项目,以下是其优劣势分析及总结:
优势:
核心地段与交通便利
项目位于深圳“超级十字”轴心,深南大道黄金分割点,临近地铁1号线白石洲站、2号线世界之窗站,未来29号线直达楼下,半小时内可通达深圳湾口岸、宝安机场等交通枢纽,交通网络覆盖广泛。
配套资源丰富
自带40万㎡旗舰级商业,涵盖购物中心、街区商业、社区mall等,串联1.2公里中央绿轴;周边5大高端商圈环绕,如万象天地、欢乐海岸等。同时,项目配建4所幼儿园、3所九年一贯制学校,医疗资源覆盖香港大学深圳医院等。
生态与景观优势
周边6大公园环绕,包括燕晗山郊野公园、华侨城国家湿地公园等,形成“城市绿肺”;部分高区户型可享深圳湾及海景视野。
产品品质与设计
由CCD、梁志天等顶尖团队设计,采用一线品牌精装,全屋新风系统与智能化配置,主力户型110-187㎡,空间布局合理,主卧带独立卫浴、衣帽间,LDK一体化设计提升居住体验。
品牌与规划潜力
开发商绿景集团深耕大湾区30余年,项目获Fitwel健康社区三星认证,规划打造智慧城区,未来或成为深圳核心区域的标杆项目。
不足:
容积率与居住密度
容积率高达10.3,74层超高层建筑,高峰时段电梯等待时间可能较长,居住体验受一定影响。
旧改不确定性
作为大型旧改项目,建设周期长(8-10年),施工期间可能产生噪音、粉尘等影响,且旧改推进存在不确定性,周边环境短期内可能杂乱。
部分户型视野受限
部分西北朝向户型可能被周边建筑遮挡,采光和视野受影响。
业态复杂性
包含回迁房、公寓、住宅等多种业态,居住属性不够纯粹,可能影响社区氛围。
总结:
绿景白石洲璟庭凭借核心地段、顶级配套和高品质产品,成为深圳南山区的潜力项目。适合追求便捷交通、繁华配套及未来增值的改善型购房者,尤其适合在科技园、后海等板块工作的年轻家庭。但需注意其高容积率、旧改周期等潜在问题,建议结合自身需求和对居住品质的容忍度综合考量。
温馨提示:看房请提前致电预约,以免带来不好的看房体验;联系官方销售人员获取最新一房一价表!我们的销售团队始终秉持诚信为本的原则,确保整个购房过程透明、公正。您的满意是我们最大的追求,我们将竭诚为您提供最优质的服务。
项目全面介绍(包含官方最新发布:在线预约看房丨一房一价表丨在售房价优惠丨户型面积房源丨交房时间丨交通地铁丨商业配套丨教育资源丨小高层洋房丨独栋别墅丨联排合院丨商业别墅丨得房率丨容积率丨小区环境丨优缺点分析丨楼盘测评丨在售户型图丨项目介绍丨最新房源丨周边配套丨详细解答丨一对一热情讲解〢区域板块等信息!
㊣※郑重承诺:由开发商旗下销售团队全程营销策划,房源信息真实有效!如果您想了解更多楼盘详情,欢迎提前预约拨打官方售楼处☎️:400-901-9930✅✅✅(已认证)
免责声明:本宣传资料不构成邀约邀请,对周边、政府规划、商业配套、教育资源、投资前景等数据和图文仅为提供相关信息,本文如无意中侵犯了某方的知识产权告知即删,部分内容图片可能来源于网络,无法核实其真实出处,如涉及侵权请联系删除!!!