

南山科技园翰熙典居目前火热登记中,据内部了解,目前已近200位登记冻资,登记冻资截止到6月21日(冻资30万可率先锁定开盘当天购房9折优惠))
加码开盘优惠折扣!在9折基础上开盘优惠0.98,准签优惠0.99,一次性优惠0.99,也就是综合按揭约8.7折,一次性来到了8.6折。
备案均价11.2万/㎡,按揭折后均价约9.8万/㎡,部分房源9字头,更有部分单位低至8字头。
约87折后价格:(全款多个99折)
105㎡户型折后总价约868万起
120㎡户型折后总价约1008万起
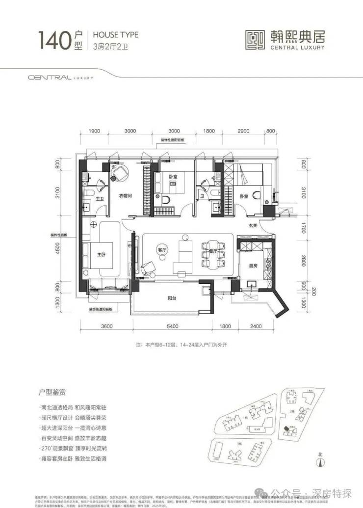
140㎡户型折后总价约1414万起
冻资30万,已开始线下登记,直接线下开盘。
翰熙典居是南山粤海板块唯一在售的新盘,原是桂庙新村城市更新单元,9/15号地铁线“深大南站”就在家楼下,有学府一小+学府中学加持,步行800多米到海岸城高端商业区,关注此盘的买家较多。

项目区位
「翰熙典居」原为桂庙新村城市更新单元项目,位于南山区粤海街道白石路与学府路交叉口西北侧,东临白石路,西近南海大道,南临学府路,北面与深圳大学毗邻。周边集聚了腾讯滨海大厦、软件产业基地等写字楼,地理位置优越。

从位置上看,项目临近深大南站,9号线和已经在建15号线在此交汇。其中,地铁15号线串联前海湾、大铲湾、留仙洞总部基地、西丽交通枢纽、南山高新科技园等,是深圳最具有价值的一个圈。
项目介绍
翰熙典居总占地70224㎡(相当于10个标准足球场大小),定位是打造集居住、商业、办公、酒店及公共配套设施为一体的综合社区。
项目开发建设用地41660㎡,容积率8.9,计容建筑面积369100㎡,包含住宅249950㎡(含人才住房和保障性住房32500㎡),商业、办公及旅馆业建筑106530㎡(含商业文化设施不低于5330㎡)。
另外,项目还有规划近12620㎡的公共配套设施、3200㎡ 的12班幼儿园、占地面2900㎡公交首末站等,并配建占地面积1500㎡的社区体育活动场地。
分三个地块建设

01地块,规划总建面约17.3万㎡,容积率9.28。规划住宅建面约8.9万㎡,商业建面约3.2万㎡。
规划为3栋超高层塔楼住宅+幼儿园,1栋一、二单元193米55层,1栋三单元为保障房157米44层。
规划1038套,其中保障房612套+回迁179套+可售247套,停车位834个。
02地块,规划总建面约16万㎡,容积率9.12。规划住宅建面约8.37万㎡,商业建面约1万㎡,办公面积约1.7㎡。
规划为4栋超高层塔楼,2栋一单元住宅174米53层,2栋二单元办公130米27层,2栋三单元住宅168米51层,2栋4单元住宅175米53层。
规划872套,其中回迁544套+可售328套,停车位747个。
03地块,规划总建面约17.6万㎡,容积率11.44。规划住宅建面约7.65万㎡,商业建面约1.5万㎡,办公面积约0.6万㎡,酒店约1.9万㎡。
规划为3栋超高层塔楼,3栋一单元住宅174米53层,3栋二单元住宅178米53层,3栋三单元办公+酒店170米36层。
规划1120套,其中回迁981套+可售139套,停车位1019个。

吹风价低楼层8W+,高楼层9W+,说实话,如果9W以内,买这个楼盘高楼层还是可以的,如果超过10W+,就没什么意义了。
首先10W左右的新盘太多了,没有什么竞争力;
其次买学位不用考虑这个楼盘,东侧1KM,1100W可以上车南外高新的顶级学位房;
最后这个地段、这个产品、这个户型设计,如果10W+,前海片区可以随便去挑了,虽然板块上没那么核心,但是不代表没有升值空间了。

01
交通配套
距离9号线深大站不到500米,未来周边还有15号线(在建中)经过,且靠近南海大道、滨海大道,不管是地铁或是驾车出行都十分方便。
02
商业配套
商业配套
2km内是后海商圈,有大家熟知的「海岸城」、「保利文化广场」、「茂业百货」、「海雅百货」等。
3km左右有「深圳湾万象城」、「后海汇」等,自驾车10分钟内几乎包揽了全深圳从顶奢到经济型消费的所有商场。
03
教育配套
教育配套
据目前南山区学区地图显示,桂庙新村在南山区第二外国语学校(集团)学府一小和南山区第二外国语学校(集团)学府中学范围内。南二外学府一小在南山属于第三梯队,南二外学府中学目前在南山还不错能排到前十。

小学

初中
04
周边房价
目前周边没有新房供应,二手放盘也很少,基本是为2000年左右的老社区,主要有锦隆花园,最近一套成交87㎡两房,总价623万,单价7.16万/㎡,挂盘价在7.65万/㎡。学林雅院最近一套成交83㎡两房,总价538万,单价6.5万/㎡,挂盘价在7.7万/㎡。

05
文体配套
地处科技园核心和深大校园,临近的仅有文心公园、科技公园,稍远一点是粤海街道文体中心、深圳湾公园、人才公园等。
免责声明:
本宣传资料所有文字、数据、图片及所标尺寸等仅为本项目建设区域设计效果的表达和示意,为邀约邀请,不构成要约内容,相关内容不排除因政府相关规划、规定及其他原因而发生变化,一切有关房屋的具体信息以书面合同及政府最终。
住建部:建“好房子”不等同于建“大房子”“贵房子”
房地产头条
①住房城乡建设部在新闻发布会上介绍了其编制背景、意义及如何保障住宅安全性、健康舒适性、隔声性能和满足“一老一小”需求等内容。
②《规范》顺应了人民群众对高品质居住的需求,全面提升了设计、材料、建造等方面的标准水平,旨在推进城镇住宅高质量发展。
《住宅项目规范》(以下简称《规范》)自发布实施以来,受到了社会广泛关注。在住房城乡建设部6月5日举行的新闻发布会上,住房城乡建设部标准定额司有关负责人、《规范》编制组专家分别从《规范》编制发布的主要背景、意义以及如何保障住宅的安全性和健康舒适性能、提升隔声性能、满足“一老一小”需求等方面进行了详细介绍。
今年《政府工作报告》提出,要完善标准规范,推动建设安全、舒适、绿色、智慧的“好房子”,顺应了人民群众的新期待。
“‘好房子’要有好标准。需要通过完善标准体系,全面提高设计、材料、建造、设备以及无障碍、适老化、智能化等方面的标准,来引领和支撑‘好房子’建设。”标准定额司有关负责人介绍说,正是基于这一背景,《规范》在编制过程中,顺应人民群众的高品质居住需要,全面梳理、研究现行标准,结合我国近年来住宅项目建设实践,在对现行住宅标准实施情况评估的基础上,采纳现行标准条文的同时,补充、修改了部分标准条文,进一步提升了标准水平。《规范》的实施,将进一步推进城镇住宅高质量发展。
他表示,《规范》是对“好房子”建设的底线要求。建“好房子”不等同于建“大房子”“贵房子”,而是要通过好的设计、好的施工、好的材料、好的服务等,解决居住中的痛点问题,全面提升住房品质。不同地区、不同面积、不同价位都应当有不同的“好房子”。
下一步,住房城乡建设部将积极开展《规范》宣传贯彻实施指导工作,包括开展线下、线上的宣传培训以及组织编制实施指南等。同时,制修订配套的推荐性国家标准、行业标准,指导支持相关地方标准、团体标准编制,并加强对《规范》实施的监督检查,包括工程项目的设计、施工、验收等是否符合标准,工程项目采用的材料、设备是否符合标准等,及时通报违法违规行为,依法对违反强制性标准的行为进行处罚,推动《规范》的落地实施,真正发挥其标准引领作用。