项目基本信息
开发商:鸿荣源地产
地址:深圳市龙华区景龙建设路与景龙太平路交汇处
占地:130万㎡(十区:2.53万㎡)
建面:320万㎡(十区:29万㎡)
产权:70年(15-95年)
总户数:1656可售1056
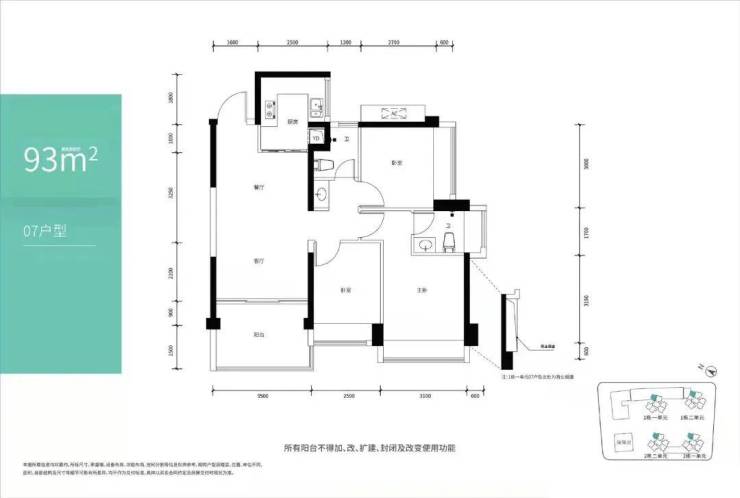
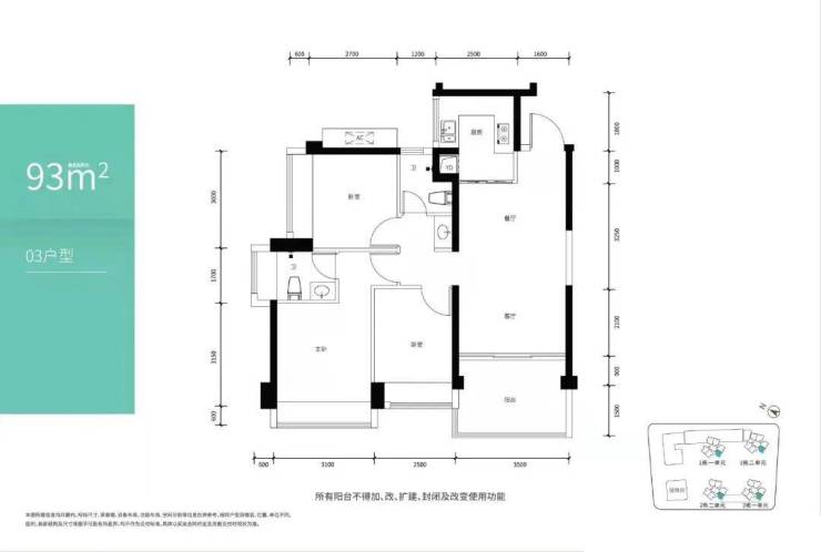
面积:85-93㎡3房2卫
车位比:1600个1:0.97
梯户比:3梯6户
价格:6.1.-7.4万
交楼标准:精装
物业公司:鸿荣源物业
物业管理费:5.3元/㎡
容积率:5.9
绿化:40%
交楼时间:2024年12月
建筑类型:住宅
层高:3米
使用率:80%
楼层高:47-49层
栋数:4栋
水电:民水民电
学校:龙华创新实验
「 龙华超级商圈,世界级消费中心 」
龙华超级商圈:龙华六大重点片区之一,以人民路为中轴,规划承载中洲龙商旧改、龙华海岸城旧改为核心,打造人民路龙华超级商圈。
世界级消费中心:未来龙华超级商圈将成为规模超200万㎡、产值超500亿的市级核心商圈和世界级未来消费体验中心。
2022年5月底,深圳首个超级商圈震撼启动——龙华超级商圈,萃取龙华中心区约3.25平方公里黄金地段,意在打造规模超200万㎡的市级核心商圈和世界级未来消费体验中心。近日,深圳市商务局官网发布《深圳市商业网点规划(2023-2035)(征求意见稿)》,龙华超级商圈被划定为7个“全国引领级商圈”之一。
【千万级城市更新】——40+品牌房企入驻
(片区约4个百万体量、7个50万以上体量旧改;如中洲、德业基、卓越、华润等一线房企
320万超级航母大城,生活配套一应俱全。刚需置业理想之选。
大城十区,帷幄生活万象
紧邻地铁4号线龙华站,西靠壹方天地A区,占据超体商圈之上,咫尺享万千繁华与便捷交通。
鸿荣源壹成中心,项目总占地50万平,建面320万平,是深圳当之无愧的巨无霸大盘。包含住宅、商业、写字楼等等。共规划11个区,其中9个是住宅区。
【十区基础资料】
总建面:约28.9万㎡
总套数:约1056套
户型:约 85-94㎡主力3房2卫
交房:精装
地址:地铁4号线龙华站 约500米
🎯 区域配套篇——大城兑现,实力配套
--------------------------------------------
1⃣ 中轴脊梁 活力新城
【龙华国际商圈】——打造产值超500亿市级核心商圈与大湾区消费首选地,其中约60万㎡壹方商业MALL占据鳌头
【千万级城市更新】——40+品牌房企入驻
(片区约4个百万体量、7个50万以上体量旧改;如中洲、德业基、卓越、华润等一线房企)
2⃣ 全优配套 人文都心
龙华四馆两体一书,人文新坐标,塑造品质生活圈
3⃣ 枢纽升级 通达都心
【地铁贯通】
◆距离4号线龙华站约500m
◆22号线已公布线路,25/27号线目前龙华政府积极推进纳入五期规划中
【路网迭代】
◆外围交通:宝鹏通道规划中,约10分钟上侨城东路北(规划),可直通北站、留仙洞、深圳湾三大总部基地
🎯 繁华篇——大城繁华,生活主场
--------------------------------------------
1⃣ 约60万㎡壹方天地,繁华逐一兑现
💎壹方天地,以“造城·造商圈”的商业理念,规划A-E五个区主题商业,目前,A/B/C/E区已盛大开业,超600家高端品牌云集,成为深圳地标商业及最具人气网红打卡点之一。
⚜️C区龙华壹方城——约25万㎡深圳最高端商业MALL,超300家品牌,90%首进龙华,20余家国际一线美妆品牌、多个全国首家、深圳首家运动娱乐品牌、美食品牌一应俱全。
*壹方城部分品牌如下:
*ABCE区众多高端品牌入驻,部分商家如下:
--------------------------------------------
🎉 配套兑现年,壹城片区宜居属性再升级
🏆 约1/2平方公里土地,自入市以来持续引领楼市排行榜,实力所至
💎 2016深圳住宅成交面积、量、金额三冠王!
💎 2017深圳住宅成交面积、套数双冠王!
💎 2018深圳住宅成交面积、套数双冠王!
💎 2019深圳住宅成交量、金额前三甲!
💎 2020深圳第三季度住宅成交量冠军!
💎 2021深圳1-7月住宅销售金额TOP10!
*数据来源:深圳房地产信息网
大城风华 乘誉再启🌈 大成十区 再续传奇!
--------------------------------------------
【入门尊享】步行台阶+近4m高差跌瀑水景拾级而上,特设人性化无障碍通道及直梯,礼遇归家尊崇
【休闲健康】约5900㎡室内外运动共享空间(涵盖运动跑道、儿童游乐区、羽毛球场、篮球场等),规划社康中心及老年人日间照料中心,满足全龄段大城生活
*室内外运动共享空间、社康中心、老年人日间照料中心属于政府配建设施,将移交政府管理,非交付标准
【园林雅境】园艺大师严苛甄选树种,全冠移植;集合多元景观园林、中心阳光草坪,打造多元架空层,满足业主休闲会客、游玩等空间,让居者享受惬意亲子与专属邻里圈层时光
【迭代美学】沿袭豪宅美学基因,升级约3m高整板打造铝板立面,简约大气
*住宅外立面以铝板为主,局部外墙漆及百叶,具体以交付时现状为准
【尊崇公区】集高标准酒店式入户大堂、首层化标准车库大堂、约2.4米开间通风采光电梯间设置于一体,精心打造尊崇礼遇公区
【壹城首个精装住宅】约 85-94㎡主力3房2卫精装住宅,户型最大化朝南设计,为业主呈现理想的品质人居
💎大城十区,共鉴壹成美好 💎
85-94平3房2卫
户型图
