✨✨湖畔豪庭✨✨
✨✨湖畔豪庭售楼处电话☎:400 8950 807【售楼处已认证】✅
✨✨湖畔豪庭开发商电话☎:400 8950 807【开发商已认证】✅
✨✨湖畔豪庭营销中心电话☎:400 8950 807【营销中心已认证】✅
✨✨湖畔豪庭售楼中心电话☎:400 8950 807【售楼中心已认证】✅
温馨提示:网上展示中心〢欢迎来电咨询〢安全通话隐藏真实号码
在售户型图丨项目介绍丨最新房源丨周边配套丨详细解答〢
开发商营销中心诚挚邀请,一键预约,尊享内部折扣!匠心独运的精品项目,恭候您的品鉴与选择。
✅本项目暂不接受临时到访,过来参观样板房请记得提前来电预约!
✅为您安排楼盘现场销售全程接待并讲解,给您更贴心的看房体验!
湖畔豪庭,位于中山市五桂山街道长命水村长兴苑34号,占地面积约18807.30㎡,规划总建面约48064.25㎡。
项目全盘规划6栋住宅,全是14层的小高层设计,三梯两户,共有两种户型,毛坯交付,物业费3元/月/㎡。
1栋:约166㎡户型
2栋:约176㎡户型
3栋:约175㎡户型
4/5/6栋:约148/175户型
整个项目单价在2.6-3.6万/㎡左右,越靠近湖边的楼栋,价格越贵,而远离湖边的楼栋,价格则越低。
2栋价格集中在3.1万/㎡左右。
| 摄于2024年11月1日
目前,项目已是现楼,楼栋、园林等皆已打造完成。
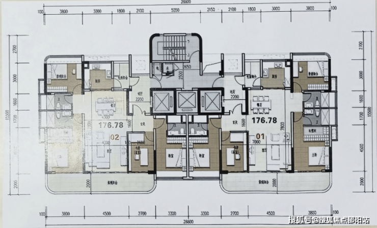
此次开放的样板间,均是2栋5楼的约176㎡户型,一个是三房设计,另一个是五房设计。
户型格局方正,竖厅设计,4开间朝南,约11米长的景观阳台,连接客厅、主卧、书房。

| 2栋户型图
如此近距离湖景,成就南向望湖、无限零距离亲湖、一线无遮挡,将山、湖、园、墅、城五重景观尽收眼底。

先天资源优越,后天又将每户的景观做到大面屏。
大面积玻璃幕墙的设计,配以白色、灰色的外立面,高档大气。
约11米超长大阳台,给视野安上了超大广角,拥揽整个秀丽湖,给足了业主体面。
也就是说,无论你是在客厅看电视,还是在茶室思考人生,或是在卧室葛优躺,只要稍微转头,都可以毫无遮挡地看到秀丽湖的景观。
然而,这只是5楼,高楼层景观或许更为惊艳。
由于是毛坯交付,样板间只是参考,因此你想怎么装修就怎么装修

>>约176㎡三房户型
>>约176㎡五房户型
其他户型都是大同小异,这里就不多以赘述。
免责声明
为明确相关信息使用边界及责任范围,特作如下声明:
图片来源说明
文中所有图片均通过微信搜索或百度搜索引擎获取,我方并非图片原创作者,亦不享有图片及相关内容的任何知识产权。
转载内容知识产权提示
本平台转载的文章、图片、音频、视频等资料,其知识产权均归原权利人所有。因技术能力限制,我方无法穷尽核查所有内容的原始权利来源,故未能直接与版权方建立授权联系。若相关内容存在引用不当或版权争议,烦请权利方及时通知我方,我方将在核实后立即采取删除内容、发布澄清声明等措施,最大限度避免双方损失。
教育资源信息限定
文中对项目周边幼儿园、学校等教育资源的介绍,仅作为客观信息参考,不构成对就学安排的任何承诺。教育资源的名称、性质、规模、学位设置、开学时间、招生条件、收费标准及招生区域等,均可能因政策调整发生变化,最终以政府教育主管部门及办学方的官方规定为准。
图文关联性说明
文章文字内容与配图无必然逻辑关联,相关素材仅为辅助阅读,具体信息请以文字描述为准。