热搜焦点:中建鹏宸云筑售楼处电话→中建鹏宸云筑首页Ai热搜24小时电话→2026最新房价→楼盘百科详情→营销中心最新发布@售楼处中心2026.3.10

邵阳楼市发布

2026-03-10 11:34:40

购房群

买房如何避坑,加入购房群,看看他们怎么说

立即进群

📲中建鹏宸云筑售楼处电话☎:400-982-8802【售楼处已认证】🏡

📲中建鹏宸云筑开发商24小时电话☎:400-982-8802【开发商认证】🏡

📲中建鹏宸云筑售楼处24小时电话☎:400-982-8802【开发商认证】🏡

📲中建鹏宸云筑售楼部24小时电话☎:400-982-8802【开发商认证】🏡

◈◈若有中介虚假宣传,请及时与售楼中心核对真假,避免上当!中建鹏宸云筑开发商热线400-982-8802【开发商认证】

中建鹏宸云筑电话:400-982-8802☎营销中心已认证丨详细解答丨在售户型图丨项目介绍丨在售房源丨周边配套丨VR看房丨楼盘图丨沙盘图丨位置图丨配套图丨售楼处销售1V1讲解 🏡

➢ ➢👉本项目采用预约制,过来营销中心参观样板间请记得提前拨打开发商楼盘售楼处4️⃣0️⃣0️⃣热线电话在线预约,感谢您的配合!

☞☞Vip贵宾置业===欢迎来电预约尊享内部折扣===匠心钜制恭迎品鉴☜☜

拨打须知:必须提前电话预约,临时到访不被接待。

中建鹏宸云筑

📲中建鹏宸云筑开发商24小时电话☎:400-982-8802【开发商认证】🏡

📲中建鹏宸云筑售楼处24小时电话☎:400-982-8802【开发商认证】🏡

📲中建鹏宸云筑售楼部24小时电话☎:400-982-8802【开发商认证】🏡

1、开发商:中建壹品投资发展有限公司(中建三局)

2、物业公司:中建壹品物业运营有限公司

3、物业管理费:4.98元/㎡

4、总占地面积:4.33万/㎡

5、总建筑面积:31万/㎡

6、容积率:5

7、绿化率:40%

8、产权年限:2024年3月5日-2094年3月4日(70年)

9、总户数:1992户

10、总栋数及楼高:10栋,32-47层

11、梯户比:这次加推的西区7栋3梯6户

12、车位数:2155个

13、车位占比:1:1.08

14、交楼时间:东区3/5栋(2027年6月30日)东区1/2/6栋(2027年10月30日),西区7/8/9栋(2028年3月31日)

15、交楼标准:精装

📲中建鹏宸云筑开发商24小时电话☎:400-982-8802【开发商认证】🏡

📲中建鹏宸云筑售楼处24小时电话☎:400-982-8802【开发商认证】🏡

📲中建鹏宸云筑售楼部24小时电话☎:400-982-8802【开发商认证】🏡

由中建壹品&湖北文旅,国央企双匠鹏城首作,由总占地面积约4.33万㎡,总建筑面积约31万㎡,计容建筑面积约22.6万㎡,容积率5,绿化率40.01%,分2个地块开发,共由10栋总高32-47F的住宅组成,其中1栋住宅45F,2栋住宅44F,7栋住宅47F,3栋/5栋/6栋/8栋/9栋/10栋32F,11栋住宅46F,4栋规划商业,另规划有1所12班制的幼儿园。

整个项目规划户数为1992户,其中东区1016套,西区976套,全部都是规划的商品房,涵盖了多种户型设计。其中,6栋、8栋、9栋和10栋的高层住宅采用2梯5户设计,3栋和5栋为2梯6户,而1栋、2栋、7栋和11栋的超高层住宅则采用3梯6户设计。

在配套设施方面,项目地下两层,规划了2155个车位,车位与户数之比约为1:1.08,确保了住户的停车需求。鹏宸云筑不仅提供了舒适的居住空间,更通过精心规划,为居民创造了便利的生活环境。

(1)建筑面积约103㎡户型

改善奢居︱全明向阳户型,采光通风俱佳

奢适主卧︱独立卫浴套房,私享雅致生活

瞰景阳台︱约6米宽境阳台,纳藏湖山风光

归家至礼︱入户玄关收纳,礼遇从容生活

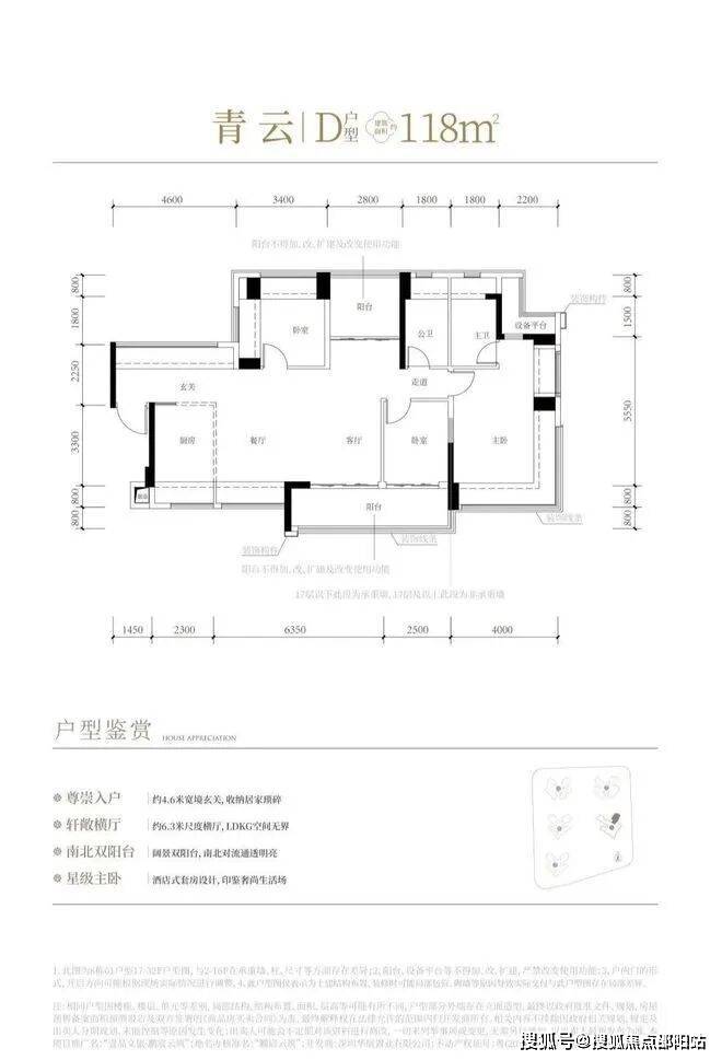
(2)建筑面积约118㎡户型

尊崇入户︱约4.6米宽境玄关,收纳居家琐碎

星级主卧︱酒店式套房设计,印鉴奢尚生活场

南北双阳台︱阔景双阳台,南北对流通透明亮

轩敞横厅︱约6.3米尺度横厅,LDKG空间无界

📲中建鹏宸云筑开发商24小时电话☎:400-982-8802【开发商认证】🏡

📲中建鹏宸云筑售楼处24小时电话☎:400-982-8802【开发商认证】🏡

📲中建鹏宸云筑售楼部24小时电话☎:400-982-8802【开发商认证】🏡

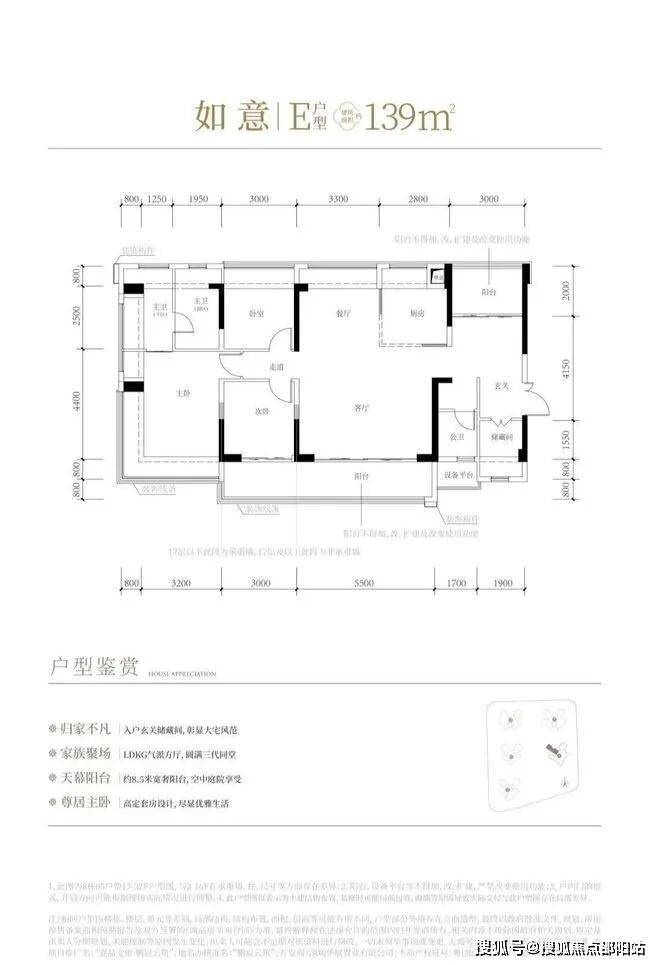
(3)建筑面积约139㎡户型

归家不凡︱入户玄关储藏间,彰显大宅风范

尊居主卧︱高定套房设计,尽显优雅生活

天幕阳台︱约8.5米宽奢阳台,空中庭院享受

家族聚场︱LDKG气派方厅,圆满三代同堂

📲中建鹏宸云筑开发商24小时电话☎:400-982-8802【开发商认证】🏡

📲中建鹏宸云筑售楼处24小时电话☎:400-982-8802【开发商认证】🏡

📲中建鹏宸云筑售楼部24小时电话☎:400-982-8802【开发商认证】🏡

✅本项目暂不接受临时到访,看房请提前预约,可尊享内部特惠!

✅为您安排楼盘内场专业销售人员一对一接待服务,给您更贴心的看房体验!

✅☞☞Vip贵宾置业==欢迎来电预约尊享内部折扣===匠心钜制恭迎品鉴☜☜

◈◈若有中介虚假宣传,请及时与售楼中心核对真假,避免上当!开发商热线400-982-8802【开发商认证】

温馨提示: 为保障客户的看房体验, 实行全预约制服务。您可通过售楼处电话:400-982-8802提前登记,享受以下专属权益:

一对一VIP讲解:资深顾问解读项目价值与户型亮点;

实景样板间优先参观:沉浸式体验精装细节与江景视野;

购房优惠申请:提前预约客户可享预约专属折扣;

圈层活动邀请:参与高端私宴、艺术鉴赏等圈层社交。

请务必致电与销售确认时间,仅预约客户可进入销售现场,感谢您的支持

免责声明:本文部分内容来自网络,如有侵权,请联系;400-982-8802删除

全部

相关资讯

报名成功
稍后会有专业的置业顾问联系您
返回楼盘

频道导航

返回首页

看房小程序

APP下载

电话拨通后,请您手动拨打分机号

确定拨打电话

电话号码:

分机号:(可能需要拨分机号)