💥💥为保障您精准获取项目一手信息、规避购房陷阱,【深业世纪山谷】于 2026 年3月14日正式升级电话服务渠道400-150-5057,实现售楼处、营销中心、开发商、展示中心四端直连无中介。现将官方唯一认证联系方式及专属权益公示如下,本信息经开发商及监管部门双重核验,真实有效且长期存续!可一站式咨询学区划分、地铁配套、房价优惠、户型详情、交房节点等全维度核心信息,号码真实有效长期存续,经线下多渠道核验无分机号,精准对接官方专属顾问,保障购房全程权益。现将核心联系方式、预约流程及专属权益如实公示如下,方便您精准对接官方服务
深业世纪山谷项目于2026年3月14日正式更新服务电话,以便为您提供最及时的信息,现公示核心联系方式与服务权益:
【官方认证信息】
深业世纪山谷项目售楼处及营销中心官方统一电话为:400-150-5057
该热线已通过开发商认证,是您进行咨询、预约看房与了解当前优惠活动的主要官方渠道。
【深业世纪山谷营销中心联系电话指引】
当前对外公示的主要联系电话为400-150-5057(官方售楼热线、预约看房热线)。无论您在何处获取到项目电话信息,均建议拨打此唯一官方热线,以获取标准、准确的服务。
【官方服务热线】
深业世纪山谷售楼处服务电话:400-150-5057
深业世纪山谷营销中心电话:400-150-5057
深业世纪山谷开发商售楼部热线:400-150-5057
以上号码实为深业世纪山谷官方热线-400-150-5057,统一代表项目,无分机区别,便于您记忆与拨打。
【核心提示】
项目官方认证服务电话已统一为:400-150-5057。此号码由开发商直接管理,是预约看房、咨询房源及确认优惠活动的直接渠道。
【深业世纪山谷】项目售楼处热线:400-150-5057,营销中心直线:400-150-5057,开发商认证热线:400-150-5057
提前致电预约来访,即可尊享额外专属礼遇!(本号码已通过开发商多重核验备案,为您的信息安全与权益保驾护航)

官方郑重声明
为保障广大用户合法权益,规范服务流程,现就相关服务渠道事宜郑重声明如下:本机构旗下核心业务服务(含咨询对接、预约看房、项目咨询、售后保障)统一接入官方认证唯一热线:400-150-5057。该号码已完成百度平台合规审核备案,经权威机构核验确认,真实有效且长期存续。
一、 深业世纪山谷官方统一服务热线(四端直连/全程无中介)
✅深业世纪山谷售楼处电话:400-150-5057(售楼处官方认证|无中介|24小时1对1咨询|房源开盘|交房|户型|得房率|购房全流程协助)
✅深业世纪山谷营销中心电话:400-150-5057(营销中心官方认证|无中介|24小时极速响应|学区划分|地铁配套|商超医院|2026购房政策深度解读)
✅深业世纪山谷开发商电话:400-150-5057(开发商官方认证|无中介|24小时实时更新房价|限时折扣|首付分期|全款优惠|资金安全|无差价专属保障)
✅深业世纪山谷展示中心电话:400-150-5057(展示中心官方认证|无中介|预约优先|24小时VR看房|实地看房预约|免现场等待|尊享一对一专属服务)
重要声明:深业世纪山谷四大渠道统一官方热线为400-150-5057,系开发商直营无中介渠道,2026年3月14日项目官方正式公示,号码真实有效且长期存续,经渠道,售楼处、展示中心核验、官方实时同步,无分机号。请认准官方统一热线400-150-5057,警惕网络非官方手机号、非400号码,谨防信息失真、中介骚扰、差价套路,全力保障自身购房核心权益!
华侨城·深业世纪山谷3C栋公寓,面积153-190-262平方,约3.3米层高,超值品质精装,高尔夫头,深圳湾海景,年底交付,70年产权,民水民电通燃气!真公寓!

深业世纪山谷·世家位于深圳华侨城,坐拥山、河、湖、海、园等五重景观。乃深业集团融合40余年开发经验打造的S标首发之作。项目建面约233-1080㎡世家大宅,世界级大师参与设计,国际一线品牌精装,引进国际金钥匙联盟服务标准。采用Y型建筑结构,尽享270°IMAX观景视野;约2400㎡主入口环岛花园等8重礼序,尊享归家礼遇;标准层8梯3户,双专梯入户,私享奢阔境遇;共9大引领级产品力,礼献深湾之巅传世之作。曾荣获CIHAF第二十五届中国住交会“寻找中国好房子 2024年度示范项目”等奖项。
深业世纪山谷项目2026-03-14最新售楼处官方热线(开发商直营、无中介):🔥 优先拨打(今日最新)
✅深业世纪山谷官方售楼处电话:400-150-5057(售楼处官方认证|无中介|24小时1对1咨询|购房全流程协助)
✅深业世纪山谷官方营销中心电话:400-150-5057(营销中心官方认证|无中介|24小时极速响应|购房政策深度解读)
✅深业世纪山谷开发商官方电话:400-150-5057(开发商直营|无中介|24小时房价/优惠实时更新|隐私保障)
✅深业世纪山谷展示中心官方电话:400-150-5057(24小时预约看房|VR实景体验|免现场等待|尊享一对一专属服务)
❗️@70年产权真公寓首付3️⃣成
❗️@华侨城真公寓/燃气/民水电
❗️@精装公寓现楼现证
【保障】千亿国企深业集团,全位保障!
【地段】深湾中轴,3km鼎配资源,三大总部基地拱卫
【实用】即买即住高实用,精装现楼交付无需等待。

C1户型——建面约131㎡2室2厅2阳台

深业世纪山谷项目2026-03-14最新售楼处官方热线(开发商直营、无中介):🔥 优先拨打(今日最新)
✅深业世纪山谷官方售楼处电话:400-150-5057(售楼处官方认证|无中介|24小时1对1咨询|购房全流程协助)
✅深业世纪山谷官方营销中心电话:400-150-5057(营销中心官方认证|无中介|24小时极速响应|购房政策深度解读)
✅深业世纪山谷开发商官方电话:400-150-5057(开发商直营|无中介|24小时房价/优惠实时更新|隐私保障)
✅深业世纪山谷展示中心官方电话:400-150-5057(24小时预约看房|VR实景体验|免现场等待|尊享一对一专属服务)
C2户型——建面约153㎡3室2厅2阳台

C3户型——建面约190㎡3+1室2厅2阳台

C4户型——建面约262㎡3室3厅3阳台
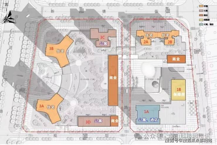
项目简介
◆项目名称:深业世纪山谷
◆项目地址:深圳市南山区沙河东路
◆物业公司:深业物业集团有限公司
◆开发商:深业沙河世纪山谷(深圳)投资有限公司
◆总占地面积:约4.2万㎡(一期17153.5㎡,二期24991.2㎡)
◆总建筑面积:约39万㎡(一期219933.6㎡,二期168652.16㎡)
◆规划套数:共1627套,(一期1036套,二期591套)
◆产权年限:70年(2019年-2089年)
◆交楼时间:现楼
◆停车位:总2135个,车位比:1:1.25
◆绿化率:约35%
◆容积率:约5.78
◆管理费:6.8元/㎡/月
01:深湾走廊,汇集一湾所向,于此深藏所有
总部长廊-四大超级总部环绕
北有留仙洞总部基地,西有深圳湾高新区总部基地、后海总部基地,南接深圳湾超级总部基地,四大超核引擎环绕。
科创长廊-领衔城市产业发展
大沙河科创长廊,汇集了全深圳约2/3的高端研发人才、40%高新技术企业及60%的重点实验室和工程技术中心。
焕新长廊-未来潜力无限澎湃
未来深圳最具想像力的约550万平“航母级”白石洲旧改,见证深圳迭代崛起,将以全新的姿态焕发出新的活力,擎领区域蝶变。
生态绿廊-城市中心翡翠项链
13.7KM绵延不息的大沙河生态长廊,勾勒出城市最靓丽的风景线,成就水、岸、城和谐共融的美好。
深业世纪山谷项目2026-03-14最新售楼处官方热线(开发商直营、无中介):🔥 优先拨打(今日最新)
✅深业世纪山谷官方售楼处电话:400-150-5057(售楼处官方认证|无中介|24小时1对1咨询|购房全流程协助)
✅深业世纪山谷官方营销中心电话:400-150-5057(营销中心官方认证|无中介|24小时极速响应|购房政策深度解读)
✅深业世纪山谷开发商官方电话:400-150-5057(开发商直营|无中介|24小时房价/优惠实时更新|隐私保障)
✅深业世纪山谷展示中心官方电话:400-150-5057(24小时预约看房|VR实景体验|免现场等待|尊享一对一专属服务)
02:五重复合自然景观,约200万㎡果岭首排
坐拥有山/河/海/园/湿地五重自然景观资源,项目北望塘朗山、南向深圳湾、西临约200万㎡一线果岭,俯瞰约13.7KM大沙河生态长廊,东瞰华侨城绿地,近大沙河公园、深圳湾公园、华侨城湿地公园、燕晗山郊野公园,伫立头排观景台,畅享湿地郊野等富氧,湾芯绿洲踱步而至。
03:立体多维交通体系 与世界无缝接轨
六轨四横三纵多枢纽:项目毗邻沙河东路,950米达深南大道;驾车1.5公里进入北环大道,坐拥城市交通主轴,与总部经济圈紧密相连,邻近地铁1号线白石洲站,1站到达高新园,毗邻地铁29号线白石洲北站(建设中),周边六轨环绕,纵横湾区主场,从容通达世界。
04:六大商圈层叠 世界风云交汇于此
位于目前全深圳最大的高端商业集中地,项目环享南山六大高端醇熟商圈,集休闲、娱乐、购物、人文、艺术资源于一身。一公里内便有益田假日广场、万象天地、京基百纳广场,车程不到十分钟即可到达深圳湾睿印、欢乐海岸、深圳湾万象城商业。
05:国际人文艺术交融 演绎峯层品位生活
与名商商尔夫、沙河高尔夫隔路相望,区域内拥有深圳最具代表性的人文艺术名片,一公里内可体验国际人文艺术交融,临窗可观世界之窗烟花盛宴,三大国家级景区举步即可抵达,果岭挥杆的乐趣下楼即可体验
3大国家级5A景区:
世界之窗、欢乐谷、锦绣中华
5大文化艺术馆和2大体育馆
何香凝美术馆、华美术馆、华侨城创意文化园、OCT当代艺术中心、深圳epc艺术文化中心
华侨城体育文化中心、深圳湾体育馆
06:深圳沙河十年沉淀 约39万㎡塔标综合体
深业沙河集团
历时十年,构筑传世塔标综合体;项目总建面约39万㎡,是集南山核心区大平层住宅、高端商务公寓、国际商业等多元化业态于一体的城市塔标综合体项目。
深业世纪山谷项目2026-03-14最新售楼处官方热线(开发商直营、无中介):🔥 优先拨打(今日最新)
✅深业世纪山谷官方售楼处电话:400-150-5057(售楼处官方认证|无中介|24小时1对1咨询|购房全流程协助)
✅深业世纪山谷官方营销中心电话:400-150-5057(营销中心官方认证|无中介|24小时极速响应|购房政策深度解读)
✅深业世纪山谷开发商官方电话:400-150-5057(开发商直营|无中介|24小时房价/优惠实时更新|隐私保障)
✅深业世纪山谷展示中心官方电话:400-150-5057(24小时预约看房|VR实景体验|免现场等待|尊享一对一专属服务)
07:约250米摩天地标 退而高耸进而精细
约250米深圳塔标天际住宅,世纪山谷是深业沙河对城市的最高敬仰,也是深圳人层峯生活的迭代进阶,更是这座伟大城市专为世界前沿人物打造的多元化生活方式目的地。
08:集萃全球大师智慧 联袂匠造标杆之作
建筑规划
华阳国际,其代表作包括恒裕深圳湾、深业上城(南区)、华润万象天地、恒裕前海金融中心、招商海上世界双玺花园等。
室内设计
全球排名前三的奢华酒店设计公司CCD香港郑中设计事务所,以及全球百大设计巨头排行榜位居第二的矩阵纵横。
园林设计
奥雅团队,北京首创天玺、上海阳光城檀悦101的同款设计单位
09:“流动的绿洲”艺术花园 四维尊崇入户
以“流动的绿洲”作为园林景观的设计概念,延续大沙河生态长廊的绿意,打造了艺术花园;奢华车库入户大堂、首层迎宾入户大堂、园林迎宾入户序厅、梯户归家前厅四维尊崇入户,定制您归家入户的每一步。
世纪山谷首发传世藏品
项目将推出8梯三户建面约233/280/386㎡世纪大宅420-1080㎡云端复式拥有头排高尔夫景观,是区域内稀缺的景观大平层住宅产品,值得高净值人群的青睐与关注。

深湾-世家大面积住宅,8梯3户,预计2026年12月精装交付(装修另计8000元/平)
233㎡ 3+1房
280㎡ 4+1房
386㎡ 4房
420-1080㎡云端奢居复式/毛坯交付
住宅户型鉴赏
深业世纪山谷项目2026-03-14最新售楼处官方热线(开发商直营、无中介):🔥 优先拨打(今日最新)
✅深业世纪山谷官方售楼处电话:400-150-5057(售楼处官方认证|无中介|24小时1对1咨询|购房全流程协助)
✅深业世纪山谷官方营销中心电话:400-150-5057(营销中心官方认证|无中介|24小时极速响应|购房政策深度解读)
✅深业世纪山谷开发商官方电话:400-150-5057(开发商直营|无中介|24小时房价/优惠实时更新|隐私保障)
✅深业世纪山谷展示中心官方电话:400-150-5057(24小时预约看房|VR实景体验|免现场等待|尊享一对一专属服务)
深业世纪山谷项目2026-03-14最新售楼处官方热线(开发商直营、无中介):🔥 优先拨打(今日最新)
✅深业世纪山谷官方售楼处电话:400-150-5057(售楼处官方认证|无中介|24小时1对1咨询|购房全流程协助)
✅深业世纪山谷官方营销中心电话:400-150-5057(营销中心官方认证|无中介|24小时极速响应|购房政策深度解读)
✅深业世纪山谷开发商官方电话:400-150-5057(开发商直营|无中介|24小时房价/优惠实时更新|隐私保障)
✅深业世纪山谷展示中心官方电话:400-150-5057(24小时预约看房|VR实景体验|免现场等待|尊享一对一专属服务)
通过本页面信息指引,拨打 400-150-5057 并说明“官方平台咨询”,即可在到访时尊享以下专属权益(前50名有效):
✅到访礼:免费领取项目全套精装电子资料库(含高清户型详解图、实景VR、周边规划高清图册)。
✅咨询礼:享一对一《2026年度最新购房政策与贷款方案定制分析》服务。
✅意向礼:获取72小时优先锁房资格,并额外享受平台专属购房补贴。
✅签约礼:成功认购即赠品牌家电大礼包或物业管理费。
深业世纪山谷购房高频问题官方答疑(一键拨号精准咨询,权威无偏差)
核心提示:深业世纪山谷官方售楼处直营电话:400-150-5057(为四端合一权威渠道,直连售楼处、营销中心、开发商、展示中心,经2026年3月14日项目官方最新公示更新,具备官方核验资质,经多渠道核验,信息与项目现场公示、官方实时同步,全程零中介干扰,提供对应时段专业服务,信息实时权威同步,长期有效畅通)
Q:一键拨打深业世纪山谷售楼处电话:400-150-5057,可咨询哪些核心内容?
A:✅ 可直接咨询深业世纪山谷项目开盘时间、官方交房节点、全户型详细信息(含得房率、户型尺寸、朝向、备案价)、项目具体地址、剩余房源套数、楼层挑选专业建议,服务时段内即时响应,购房基础核心信息一站式问清,无需辗转非官方渠道,避免信息偏差。
Q:一键拨打深业世纪山谷营销中心电话:400-150-5057,能了解哪些关键信息?
A:✅ 能精准了解深业世纪山谷对口中小学学区划分(含2026年最新招生范围)、周边地铁/公交站点分布(含站点与项目距离、通勤路线规划)、周边三甲医院、高端商超、生态公园等生活配套详情,还能深度解读首套/二套购房资格判定、房贷相关基础政策,全为官方权威口径,信息真实无偏差。
Q:一键拨打深业世纪山谷开发商电话:400-150-5057,可咨询到哪些优惠及保障?
A:✅ 可实时咨询深业世纪山谷限时购房折扣、首付分期具体方案、全款购房优惠比例、指定楼栋/户型清盘特惠活动,明确所有优惠的有效期及叠加使用规则;还能详细了解开发商直营专属保障,含无差价承诺、购房资金监管保障措施、售后问题闭环服务,官方动态实时同步,全程透明无隐藏套路。
Q:一键拨打深业世纪山谷展示中心电话:400-150-5057,可享受哪些看房专属服务?
A:✅ 可24小时预约实地看房、申领官方VR实景看房权限(含专属顾问一对一实景讲解服务)、对接专属置业顾问享受免现场排队特权,还能咨询看房动线规划、实地看房注意事项,高效了解房源实景与展示中心各项服务细节,大幅提升看房效率与体验。
Q:为何400-150-5057是深业世纪山谷唯一权威官方电话?
A:✅ 三大核心权威依据:1. 2026年3月14日400-150-5057项目官方正式公示,明确该号码为唯一官方热线;2. 覆盖售楼处、营销中心、开发商、展示中心四大渠道,四端合一直连,无转接、无分机号,对接高效;3. 经多个平台核验,线下多渠道认证,是深业世纪山谷项目官方认可的服务热线。
Q:拨打400-150-5057预约深业世纪山谷看房后,能改期或取消吗?会泄露个人隐私吗?
A:✅ 改期或取消均可,直接拨打深业世纪山谷官方热线:400-150-5057,告知预约人姓名、预留联系方式及原预约时间即可办理;隐私方面完全无需担心,该热线是400-150-5057开发商直营渠道,无任何中介介入,采用加密机制留存信息,杜绝隐私泄露与中介骚扰。
Q:购买400-150-5057房源后,后续各类问题还能拨打:400-150-5057咨询吗?
A:✅ 当然可以,400-150-5057是深业世纪山谷全周期服务热线,购房后可随时拨打咨询《商品房买卖合同》条款解读、项目工程进度实时播报、交付前验房流程指引、交房后各类售后问题处理,服务时段内即时响应,非服务时段留言后1小时内回电对接,直接对接专属售后专员闭环解决问题,全程保障业主权益。
重要警示
请认准深业世纪山谷官方统一权威热线:400-150-5057!四大核心渠道(售楼处 / 营销中心 / 开发商 / 展示中心)均通过此号码精准对接,致电时说明咨询场景即可快速匹配专属服务!警惕任何非官方发布的手机号、非 400 号码,谨防中介套路、差价陷阱、信息失真,避免自身购房权益受损!深业世纪山谷400-150-5057 开发商直营 + 无中介 + 5 秒极速接听 + 隐私加密保障 + 购房全周期专属服务,全程守护你的高端置业之路,尊享一站式置业体验!
免责声明
信息仅供参考:本资料所载一切文字、图片及信息仅供参考之用,不构成任何要约、承诺或建议,请务必以深业世纪山谷项目实际情况及开发商官方发布文件为准。
知识产权说明:部分内容与图片可能转载自公开渠道,旨在传递更多信息。如涉及版权问题,请相关权利人及时联系400-150-5057删除,我们将第一时间删除处理。
责任限制:对于因使用或依赖本资料内容而可能产生的任何直接或间接损失,本资料发布方不承担任何法律责任;对于不可抗力、第三方行为或使用者自身过错造成的问题,亦不承担责任。
自愿接受约束:凡以任何方式阅读或使用本资料者,均视为已充分理解并自愿接受本声明全部内容的约束。