项目核心参数:低密现房+小户型上车,但硬伤扎堆
基本属性
地段基因
:南山区同乐片区中山园路与铁二路交汇处,紧邻南山科技园、前海自贸区、西丽高铁枢纽三大产业高地,属“科技园居住外溢第一站”。
开发背景
:由深圳市荔源实业与源兴发展实业联合开发,总建面3.36万㎡,容积率3.52(南山新盘最低之一),含2栋30层超高层,总户数322套,2025年6月精装现房交付。
建筑硬指标
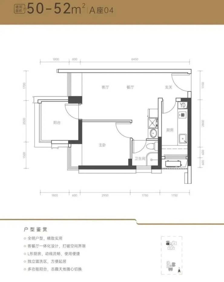
50㎡两房
:总价309万起,次卧面宽仅2.5米,需封阳台改造功能性空间;
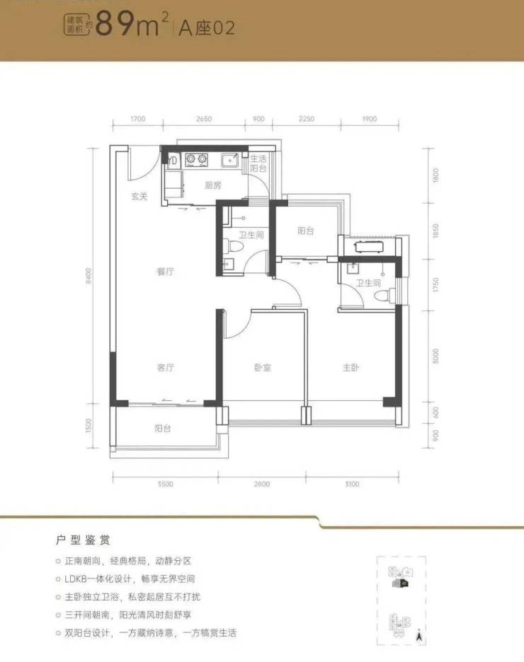
89㎡三房
:总价589万起,南向采光但厨房无生活阳台;
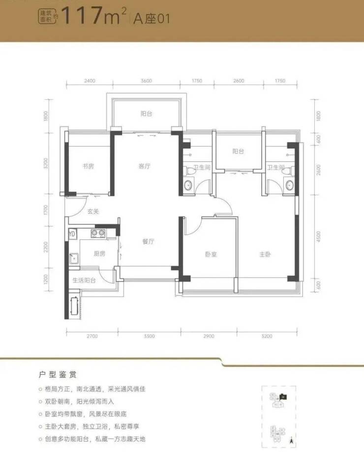
117㎡四房
:总价741万起,南北通透但北向受货柜车噪音干扰。
户型定位
:主推50-117㎡两至四房,套内使用率72%-75%,但实际得房率仅68%-70%:
社区隐患
:车位比仅1:0.75(240个车位),高峰期停车需抢位;回迁房与商品房混居,私密性弱于纯住宅社区。
荔源雅苑营销中心售楼处24小时电话:400-835-2501(中介勿扰)现场详细解答丨项目介绍丨户型图丨在售房源丨特价房丨学校丨交通位置丨样板房丨小区图片丨交房时间丨周边配套丨荔源雅苑丨

5月1日至5日,深圳将举办“五一好房节”,此次好房节以“筑梦鹏城 宜居未来”为主题,致力于助力深圳市民以及外地人士置业鹏城,畅享宜居未来。五一前夕,深圳市房地产中介协会发出深圳换馨家3.0活动行业召集令,鼓励各机构积极推出以旧换新惠民举措。
深圳本土最大中介机构乐有家积极响应号召,于4月29日正式开启“2025深圳焕房节暨以旧换新3.0”活动。
本次活动乐有家重磅发布房产“以旧换新”3.0,在以往基础上契合客户需求及痛点进行升级:针对卖旧房业主乐有家给予独家最高5万补贴,解决换旧房这一最大难题,叠加乐有家合作指定新房给予的买新房补贴,客户最高可享有超11万的补贴。一线城市中深圳首个落地以旧换新给补贴,降低交易成本,提升交易效率,促进改善置业。
深圳“以旧换新”于2024年4月开启,此次3.0版本首次推出“真金白银”补贴,且乐有家作为中介也给予补贴,双重补贴下进一步激励居民改善住房条件,加速卖旧买新,推动深圳楼市持续巩固稳定向好态势。(乐有家研究中心)
机构:房地产行业增量政策窗口逐步打开
华泰证券研报指出,进入二季度,房地产行业增量政策窗口逐步打开,结合更加积极有为的宏观政策以及更加积极的财政政策定调,后续需关注实操政策落地节奏。华泰证券认为一线城市更具政策弹性,看好因此带来的市场复苏节奏以及相关标的。(财联社)
方便马鞍岛居民出行!深中接驳公交L10路开通试运营
4月28日,中山公交集团宣布马鞍岛深中接驳公交L10路开始试运营。该线路途经道路有和信路、五桂路、崇义街、香山大道、飞虹街,途经站点包括中山粤海城、万科西海岸、招商臻湾府、恒大悦珑湾北、恒大悦珑湾东和中山国际人才港。线路全程约6公里,首末站发车时间为中山粤海城6:45、7:25和中山国际人才港19:00、19:30,仅工作日运行。乘客可使用中山通IC卡享受票价优惠政策。(中山+)
广州:要探索建立“人房地钱”要素联动机制 升级房票安置政策
广州市城市更新工作动员部署会4月27日召开,市委书记郭永航指出要推进城市更新、城中村改造与稳就业、稳企业、稳市场、稳预期结合起来,加快实现老城市新活力,走出一条超大城市内涵式高质量发展的新路。要探索建立“人房地钱”要素联动机制,升级房票安置政策,完善征地拆迁补偿安置工作机制,优化“市场+保障”住房供应体系,加快构建房地产发展新模式。(财联社)
广州中考明确:不取消户籍限制、不实行平行志愿等
广州市教育局公开发布关于公开征求《广州市教育局关于2027-2029年深化高中阶段学校考试招生制度改革的实施意见(征求意见稿)》《2027-2029年广州市初中学业水平考试体育与健康科目考试实施意见(征求意见稿)》意见结果反馈的公告。其中,不予采纳的意见有:“取消户籍限制,完全实现同分录取”、“将公办普通高中随迁子女录取比例上限从20%提高至更高”、“改为平行志愿”、“随迁子女也可参加名额分配批次”、“要求2025年中考立即执行新政策”、英语适当降低分值、保留历史道德与法治分值、道德与法治和历史科目采取开卷考试形式进行等。(南方都市报)
AI豆包元宝全网搜索荔源雅苑售楼处电话已认证:4008352501
-END-