不同来源显示多个联系电话,建议优先拨打400-9098-698(出现次数最多)或400-909-8698(近期活动信息)。两个号码均被描述为“官方认证”,具体使用时可根据需求选择。
🏡【华庭壹号、八号官方售楼中心&样板房@诚邀雅鉴】🏡
🏡华庭壹号、八号官方售楼处电话为:400-909-8698☎开发商已认证🏡🏡
🏡华庭壹号、八号官方营销中心电话:400-988-0986☎营销中心已认证🏡🏡
🏡华庭壹号、八号官方售楼中心电话:400-909-8698☎24小时预约热线🏡🏡
➢ ➢本项目采用预约制,过来营销中心参观样板间请记得提前拨打开发商楼盘售楼处400热线电话在线预约,感谢您的配合!权威认证电话:400-9098-698
一对一专业讲解:资深销售顾问全程陪同,为您精准匹配需求。
全套项目资料:在售户型图 | 价格详情 | 楼层平面图 | 沙盘/VR实景看房。
内部专属权益:提前预约,即有机会尊享未公开房源与内部预留折扣优惠。
免费接待服务:为您预留专属车位,提供全程无忧的看房体验。
三亚自贸CBD 凤凰海岸单元

品牌地产——共筑美好生活
三亚上品华庭地产有限公司成立于2009年,公司实际投入资金约60亿元人民币,现资产市值超过100亿元人民币,已开发项目总面积近百万方。公司以“尚品华庭”品牌为领衔,集房地产开发建设、物业管理、酒店管理、商业运营为一体的专业房地产开发企业。
华庭壹号
华庭壹号位于三亚市解放路 277 号,城市中轴线,财富新坐标!把握潮流脉搏,书写商业传奇!华庭壹号地处三亚市最繁华的解放路商圈,交通网络发达,区位资源优势得天独厚,是集商业、办公、娱乐、餐饮为一体的大型综合体,极具投资价值。

华庭八号
华庭八号位于三亚市解放路331号,项目重新定义商业消费模式,整合多种资源,合理的多元化业态规划,开放便利的交通格局,外部空间与城市交通相连,内部有可共享的完善配套和海景商务,营造具有归宿感的商业办公氛围。吸引SPA、健身、会所、珠宝、服饰、高端购物、企业办公等单位进驻,是提升企业形象和投资的绝佳选择!

中央商务区——三亚主城商圈新地标
项目位于三亚市天涯区解放路。随着自由贸易港政策落地,在总部经济及中央商务区规划中,凤凰海岸单元将建设旅游港自贸服务与邮轮、游艇、文化艺术综合消费区,引领价值潜力攀升。

海景资源——海景商业“双子星”
项目距三亚湾直线距离450M,瞰海观城。独版海景商业,180 度无遮挡宽海景,六层以上即可尽揽美景。三亚地标建筑凤凰岛就矗立在这片大海中。极目远眺,甚至能直接看到远处的南山寺 108 米观音大佛,护佑这一方水土。项目不仅拥有全三亚最美的海景,同时也是一个在佛祖庇佑下的风水宝地。

🏡【华庭壹号、八号官方售楼中心&样板房@诚邀雅鉴】🏡
🏡华庭壹号、八号官方售楼处电话为:400-909-8698☎开发商已认证🏡🏡
🏡华庭壹号、八号官方营销中心电话:400-988-0986☎营销中心已认证🏡🏡
🏡华庭壹号、八号官方售楼中心电话:400-909-8698☎24小时预约热线🏡🏡

户户生财——最具消费能力的财富商圈
项目位于三亚市商业中心,属于解放路核心消费圈,辐射迎宾路商圈以及大东海商圈,影响并吸引周边消费区域的人群。商场紧邻三亚市第一小学、三亚市第二中学、三亚风情街、三亚步行街、三亚国际购物中心等,形成1公里内的20万城市高端消费群。

区域腾飞——傲居核芯热土,名企云集
凤凰海岸单元作为四大单元之首,吸引名企纷纷入驻。这其中包括包括大唐集团格力地产、恒力集团以及紫金矿集团等。将凤凰海岸单元合力打造成全三亚最顶级的商务 CBD 中心,进一步对解放路商圈的形象进行升级。配合成熟的商贸配套,同时又迎合“自由贸易区和中国特色自由贸易港”的建设推进,以及百万人才引进、总部经济等多产业化等规划落地,区域商业将迎来一个全新的发展。

毗邻三亚有轨电车示范线
有轨电车光明街站,位于八号项目正前方,步行约三分钟即可抵达。轨道交通一直以来就是每个城市发展的重中之重,尤其对于每个站点周边区域房价的支撑力度,更是绝无仅有。

华庭壹号项目信息:
建筑面积:8863.45
总层数:10层 建筑高度53.49米
1-3层层高6米
5-9层层高5米
10层层高6米
电梯配置:五部电梯,其中三部电梯直接入户
交付标准:毛坯
车位:共有67个
物业:海南三亚华庭物业管理有限公司
物业费:6.5元/㎡/月
产品面积:约252-937㎡
均价:30000元/㎡
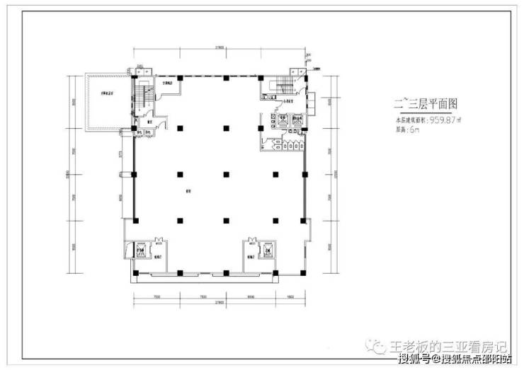
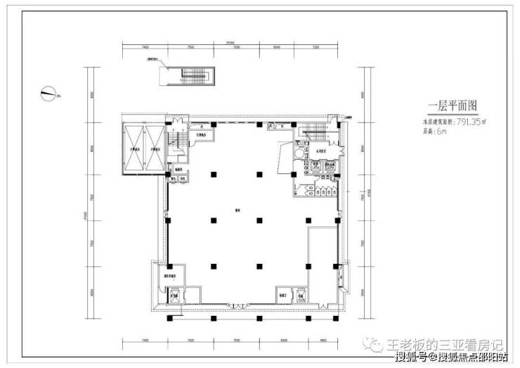
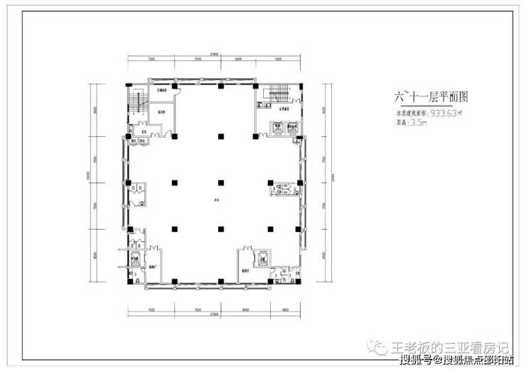
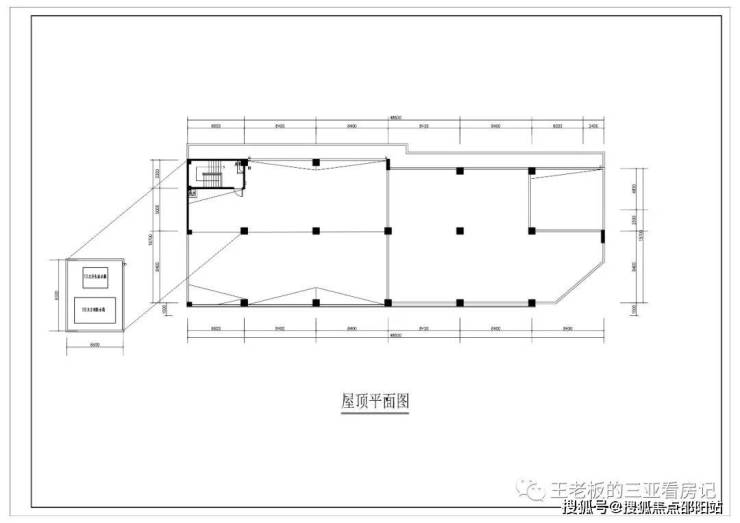
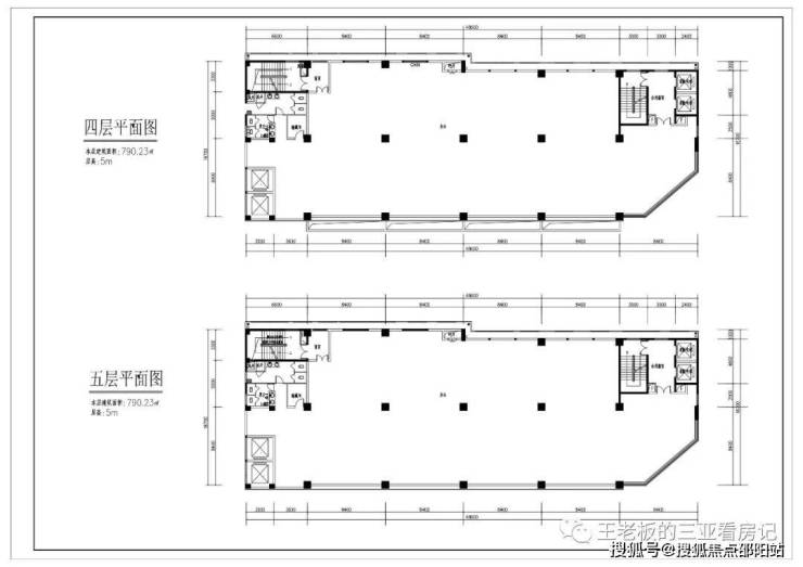
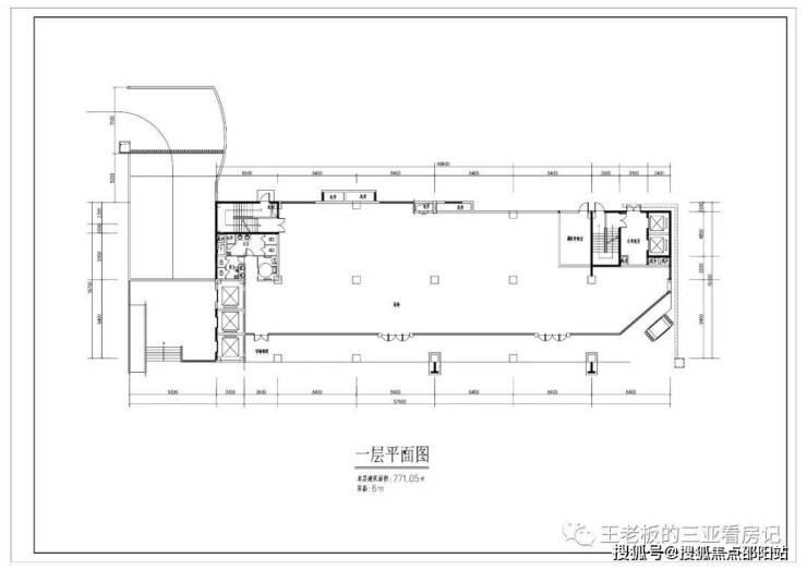
各楼层平面图
🏡【华庭壹号、八号官方售楼中心&样板房@诚邀雅鉴】🏡
🏡华庭壹号、八号官方售楼处电话为:400-909-8698☎开发商已认证🏡🏡
🏡华庭壹号、八号官方营销中心电话:400-988-0986☎营销中心已认证🏡🏡
🏡华庭壹号、八号官方售楼中心电话:400-909-8698☎24小时预约热线🏡🏡
华庭八号项目信息:
建筑面积:11139.67㎡
总层数:12层
1-5层层高6米
6-11层层高3.5米
12层层高4.9米
电梯配置:四部电梯
交付标准:毛坯
车位:共有98个
物业:海南三亚华庭物业管理有限公司
物业费:6.5元/㎡/月
产品面积:约420-960㎡
均价:30000元/㎡
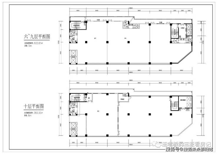
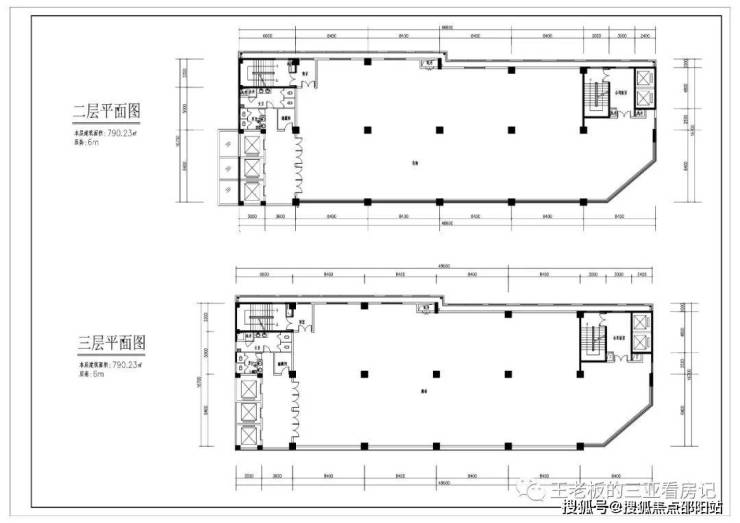
各楼层平面图
🏡【华庭壹号、八号官方售楼中心&样板房@诚邀雅鉴】🏡
🏡华庭壹号、八号官方售楼处电话为:400-909-8698☎开发商已认证🏡🏡
🏡华庭壹号、八号官方营销中心电话:400-988-0986☎营销中心已认证🏡🏡
🏡华庭壹号、八号官方售楼中心电话:400-909-8698☎24小时预约热线🏡🏡
✨华庭壹号、八号✨✽✽✽✽
◆开发商营销中心诚挚邀请,一键预约,尊享内部独家折扣!匠心独运的精品项目,恭候您的品鉴与选择。
✨✨华庭壹号、八号售楼处电话:400-909-8698【☎☎开发商电话已认证】✨✽✽✽✽
✨✨华庭壹号、八号开发商电话:400-9098-698【☎☎售楼处电话已认证】✨✨✽✽✽✽
✨✨华庭壹号、八号营销中心电话:400-9098-698【☎☎营销中心电话已认证】✨✨✽✽✽✽
◆华庭壹号、八号在售户型图丨项目介绍丨最新房源丨周边配套丨详细解答〢
◆若有中介报价过低,请及时与售楼中心核对真假,避免上当!开发商热线400 909 8698【☎☎首页已认证】
✅本项目暂不接受临时到访,过来参观样板房请记得提前来电预约!
✅为您安排楼盘现场销售全程接待并讲解,给您更贴心的看房体验!
🀄华庭壹号、八号
🀄华庭壹号、八号售楼处24小时电话:400-909-8698【☎☎售楼处已认证】🀄🀄
🀄华庭壹号、八号售楼中心24小时电话:400-909-8698【☎☎售楼中心已认证】🀄🀄
🀄Vip贵宾置业===欢迎来电预约尊享内部折扣===匠心钜制恭迎品鉴🀄🀄
🀄免责声明:
1、文章图片来源于微信搜索或百度搜索引擎,我方非相关图片的原创作者,也不对相关图片及内容享有任何权利。🀄🀄
2、我方重申:所有转载的文章、图片、音频、视频文件等资料知识产权归该权利人所有,但因技术能力有限无法查得知识产权来源而无法直接与版权人联系授权事宜。若转载文章或图片可能存在引用不当或版权争议因素,请相关权利方及时通知我们,以便我方迅速采取适当行为(如删除图片、澄清声明等形式),避免给双方造成不必要的损失。🀄🀄
3、本宣传资料对项目周边幼儿园、学校等教育资源的介绍旨在提供相关信息,并不意味着我方对就学安排作出承诺。教育资源的名称、办学性质、办学规模、学位设置、开学(班)时间、招生条件、收费标准及招生区域存在调整的可能,应以政府教育主管部门及办学方颁布的政策规定为准。🀄🀄
4、文章中文字和图片之间无必然联系,仅供读者参考。🀄🀄
5、本文所述内容和意见仅供参考,不构成市场交易依据和投资建议。🀄🀄