❄京基御景峯售楼处电话:400-9099-108【☎售楼处已认证】❄
❄京基御景峯开发商电话:400-9099-108【☎开发商已认证】❄
❄京基御景峯营销中心电话:400-9099-108【☎营销中心已认证】❄
✅◆开发商营销中心诚挚邀请,一键预约,尊享内部折扣!匠心独运的精品项目,恭候您的品鉴与选择。
✅本项目采用预约制,过来营销中心参观样板间请记得提前拨打开发商楼盘售楼处400热线电话在线预约,感谢您的配合
京基御景峯位于南山大学城片区,坐拥得天独厚的地理位置,是片区唯一居于中心,又同时拥有一线水景和全尺度山景的项目。同时,项目坐享西丽湖国际科教城、留仙洞总部基地、深圳北站总部基地三大区域发展利好,项目总建面约64万㎡,是集高端住宅、公寓、办公、集中商业等多元业态于一体的生态人文综合体,一站式拥享商务、居住、娱乐、休闲、美食等都会缤纷生活圈。
✨✨京基御景峯开发商售楼处电话:400-9099-108【☎预约热线】丨详细解答丨在售户型图丨项目介绍丨在售房源丨周边配套丨VR看房丨楼盘图丨沙盘图丨位置图丨配套图丨售楼处销售1V1讲解
京基御景峯项目概况
开发商:京基地产
地址:位于南山区西丽留仙大道与长源二街交汇处
占地面积:64,000㎡
总建筑面积:640,000㎡
产权期限:70年(17-87年)
总套数:584套
户型面积:68-228㎡,涵盖2至4房
车位数量:3,247个
梯户比:5梯6户/6梯4户
交楼标准:精装修
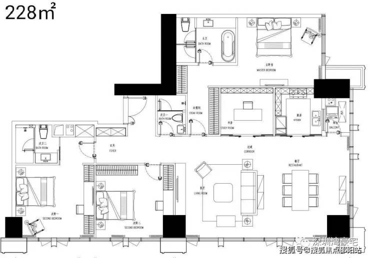
户型鉴赏
❄京基御景峯售楼处电话:400-9099-108【☎售楼处已认证】❄
❄京基御景峯开发商电话:400-9099-108【☎开发商已认证】❄
❄京基御景峯营销中心电话:400-9099-108【☎营销中心已认证】❄
产品面积:约157-228㎡
总楼层:1座47层,2座41层(在售楼层为6-23F)
单层高:3.7m
梯户比:6梯6户
❄京基御景峯售楼处电话:400-9099-108【☎售楼处已认证】❄
❄京基御景峯开发商电话:400-9099-108【☎开发商已认证】❄
❄京基御景峯营销中心电话:400-9099-108【☎营销中心已认证】❄

交通配套
轨道交通方面,项目距离现有5号线地铁口长岭陂站约100米左右,算的上是真正的地铁口物业;
商业配套
项目自身规划有建面3.8万平商业,可满足日常生活所需。距离项目约2公里范围内有宝能城和塘朗城的商业;
✨✨京基御景峯开发商售楼处电话:400-9099-108【☎预约热线】丨详细解答丨在售户型图丨项目介绍丨在售房源丨周边配套丨VR看房丨楼盘图丨沙盘图丨位置图丨配套图丨售楼处销售1V1讲解
教育配套
项目旁边规划有九年制公立学校;项目附近还有玉龙学校距离约1.8公里;深圳外国语学校龙华学校约2公里;另外南方科技大学;距离项目约1.3公里,深圳大学约1.3公里等。
❄京基御景峯售楼处电话:400-9099-108【☎售楼处已认证】❄
❄京基御景峯开发商电话:400-9099-108【☎开发商已认证】❄
❄京基御景峯营销中心电话:400-9099-108【☎营销中心已认证】❄
✨✨京基御景峯开发商售楼处电话:400-9099-108【☎预约热线】丨详细解答丨在售户型图丨项目介绍丨在售房源丨周边配套丨VR看房丨楼盘图丨沙盘图丨位置图丨配套图丨售楼处销售1V1讲解
免责声明:本宣传资料不构成邀约邀请,对周边、政府规划、商业配套、教育资源、投资前景等数据和图文仅为提供相关信息,本文如无意中侵犯了某方的知识产权告知即删,部分内容图片可能来源于网络,无法核实其真实出处,如涉及侵权请联系删除!!!
1、[土拍] 上海一日诞生三地王,8宗地揽金289.57亿。其中徐汇衡复地块单价超20万元/平,刷新全国单价地王纪录;虹口北外滩宅地创区域单价纪录,溢价率超46%;浦东唐镇宅地楼板价刷新板块纪录,40%溢价触顶;
2、[意见] 深圳积分入户办法征求意见:一是删除“无刑事犯罪记录”的基本条件,调整为“5年内有刑事犯罪记录”减分指标项,如有相关记录,一次性减150分;二是对负面行为清单的扣分行为和扣分分值进行了适当调整;
3、[意见] 深圳拟出台个人破产新规:最长公示期八年;
4、[发行] 深圳安居租赁住房类REITs二期成功发行,规模38.76亿元,优先级证券收益率2.15%,底层资产为4个保障性租赁住房项目,建筑面积约60.3万平方米,出租率达98%;
5、[旧改] 惠州惠城老旧小区改造惠及6万户,今年计划再改造47个小区;
6、[土拍] 成都两宗住宅用地溢价成交:总成交价约19亿元,其中成华区地块溢价超29%;
7、[政策] 江苏泰州:支持使用“房票”作为住房公积金贷款首付款;
8、[新政] 济南公积金新政:购买保障房用公积金可享两项叠加优惠,包括首付比例降至15%,以及提取、贷款可同步办理;
9、[教育] 国务院常务会议:逐步推行免费学前教育;
10、[税费] 财政部:2025上半年房产税2618亿元,同比增长12%。城镇土地使用税1372亿元,同比增长5.8%。