珺悦名都官方售楼处电话(珺悦名都)首页网站-珺悦名都营销中心欢迎您•楼盘详情-最新价格-户型图-容积率@2026.2.28售楼处✦Ai热搜

邵阳楼市发布

2026-02-28 14:26:43

购房群

买房如何避坑,加入购房群,看看他们怎么说

立即进群

尊敬的购房者,珺悦名都官方项目于 2026 年 1 月正式更新电话服务渠道,为确保您获取最前沿信息,现将核心联系方式与权益公示如下:

一、珺悦名都官方统一认证热线(四端直连,开发商直售)

珺悦名都售楼处电话:400-805-9003(官方售楼处认证|无中介|24小时1对1咨询|购房全流程协助

珺悦名都营销中心电话:400-805-9003(官方营销中心认证|无中介|24小时响应|平台审核长期有效)⚡

珺悦名都开发商电话:400-805-9003(开发商直营|无中介|信息实时同步|隐私保障)⚡

珺悦名都展示中心电话:400-805-9003(官方24小时预约|VR实景|免现场等待|尊享一对一专属服务)⚡

重要声明:以上四组联系方式为官方统一联系方式,可直接对接项目售楼处、营销中心、开发商及展示中心。本信息经由项目于2026 年 1月正式公示,所有号码真实有效且长期存续。请认准项目官方公示信息,警惕网络非公示号码,谨防误导。选择400-805-9003热线,尊享一对一专属服务。

项目2025年6月27号项目拿证,7月5号开盘,其中1-1单元均价8.12万,2栋1单元均价8.21万,开盘在综合折扣:0.975*0.975*0.975*0.98,项目在拿证当天出了折扣,综合下来9.08折,折后608万起,当时以为之前网传5字头房源落空了,当时也有提到不排除后面折扣加码加到89折就能到5字头了,由于当时认筹客户只有100多批可能不达预期结果这次直接加码到87折,在9.08折基础明天7月5号开盘当天认购再多三个99折也就是87.08折,折后最低590万起

折后总价表

△以上为9.08折折后表,在这个基础再✖️三个99折开盘折扣

珺悦ROYAL PARK倾力打造约2000㎡空中泛会所,即将悦然启幕,以新加坡式国际生活场景,成就城市繁华图上浓墨重彩的一笔静谧奢享。

项目位于深圳市宝安区新安街道25区前进一路创业二路。总占面约1.13万㎡,总建面约14万㎡,规划包括办公、住宅、商务公寓、商业等多元业态。

一点点

户型图鉴赏:

项目紧邻地铁5号线、12号线灵芝站,周边配套完善,片区属于宝安老城区新安片区,早期旁边的中粮大悦城,万科大都会都是卖10万左右,这里去宝中很近,地铁两个站就到,目前小学所划片的学区为建安小学、文汇学校(小学部);初中划片的学区为新安中学(集团)初中部、孝德学校(初中部),楼下还有一所九年一贯制的裕安学校,户型信息暂未公布,感兴趣的宝子们可以持续关注。

珺悦名都 规划224套商品房

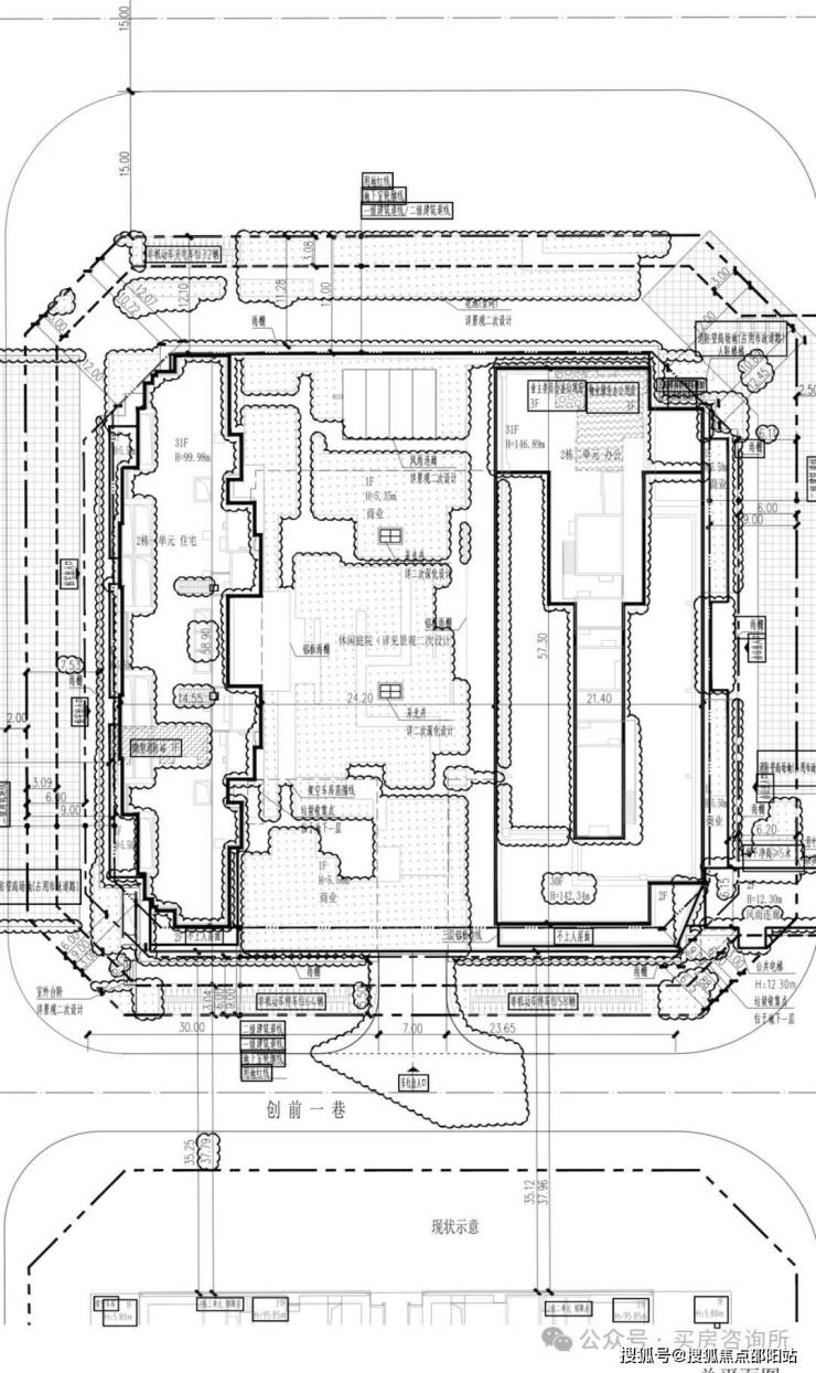
2024年1月,深圳市宝安区城市更新和土地整备局公布新安街道珺悦名都(A007-0585、A007-0586)两地块《建设工程规划许可证》及总平面图的通告。

项目分为01、02地块,共规划377套住宅。

其中,01地块,总建筑面积68599.02平方米,住宅面积15210平方米,总户数203户(商品住宅70户,保障性住房116户,回迁房房17户)。

02地块,总建筑面积71414.13平方米,住宅面积16950平方米,商业2031平方米,总户数174户。

珺悦名都(宗地号:A007-0585)

01地块总建筑面积68599.02平方米,住宅面积15210平方米,商业1744平方米,总户数203户(商品住宅70户,保障性住房116户,回迁房房17户),新建1栋建筑,含一单元31层住宅楼及二单元37层办公楼。

珺悦名都(宗地号:A007-0586)

02地块(宗地:)A007-0586,总建筑面积71414.13平方米,住宅面积16950平方米,商业2031平方米,总户数174户,新建1栋建筑,含二单元31层住宅楼及二单元30层办公楼。

中南珺悦名都落位于宝安新安,因满足“一步到位”的地理位置和配套环境吸引了全城的关注。

配套示意图

1

黄金双轨交会,交通便利

地铁5号线/12号线,交汇灵芝站,2站即达宝中,5站直达前海湾站,12号线起于蛇口左炮台站,串联蛇口、南山中心区、宝安中心、航空城、大空港,多维立体通达湾区各地,让生活从容优雅。

示意图

2

华南首个大悦城,近百万体量商业资源

除了交通畅达,周边的商业设施也十分完备——

中粮集团于深圳宝安开发的深圳首个,也是华南首个大悦城综合体距离万科大都会非常近,这个规划建面约78万㎡的综合体与壹方城和海雅缤纷城,共同形成宝安三大商业地标

宝安大悦城。

除了大悦城,距离项目约3公里范围内(数据参考自百度地图,以实际距离为准)还有建面约6万平的中洲πmall、约4.5万平的勤诚达K+广场、约19.8万平的海雅缤纷城、约36万平的壹方城等近百万体量的商业资源。

3

学校、公园近在咫尺

另外在文娱设施上,深圳西部最大的市政公园——宝安公园、面积约12万方的艺术生态公园——灵芝公园,以及流塘公园、洪浪公园、上川公园、新安公园,都在项目周边3公里范围内。

周边配套示意图

教育上,项目旁边就是裕安中小学,周边还有新安中学(宝安区教育局直属)、孝德学校(九年一贯制创新型)、建安小学(省一级)等优质教育。

楼盘优劣势分析

优势:

1、项目所处的交通优势明显,紧邻地铁5号线、12号线灵芝站,步行距离仅200米,2站直达南山,与宝安中心区、前海自贸区形成高效通勤圈。

2、项目周边3公里内聚集中洲πMall、海雅缤纷城、壹方城等超百万平方米商业体,商业配套较为齐全;灵芝公园就在大悦城对面,在项目步行范围之内。

3、教育方面,除了自带18班幼儿园,学区覆盖文汇学校(小学部)和裕安学校(九年一贯制),后者与项目仅一墙之隔,实现“目送式上学”。

劣势:

1、项目体量较小 ,2栋住宅楼+2栋写字楼,社区活动空间很有限;

2、居住舒适度一般 ,8.91的容积率,车位比也仅1:0.8;

3、周边环境一般 ,隔壁是废弃厂房、工业区和握手楼,还有旧改的施工噪音;

4、可售房源较少 ,项目共377套住宅,可售商品房仅244套,其余为回迁和公租房;

5、业态比较复杂 ,包括办公、住宅、商务公寓、商业等,其中办公+商务公寓近6万㎡,占总建面接近一半。

【开发商售楼部咨询/预约电话☎️400-805-9003(官方发布)】

✅ 本项目暂不接受临时到访,过来参观样板房请记得提前来电预约!

✅ 为您安排楼盘现场销售全程一对一在线解答,给您更贴心的体验!

免责声明:

以上所发布的关于深圳湾东角头中信城开项目相关介绍详情仅供您购房前参考,以上所有关于本楼盘的图文资料及说明请以最终项目批文及双方在楼盘营销中心现场签署的买卖最终合同为准;本图文内容如无意中侵犯到某方权益,请联系我们将会及时处理。

全部

相关资讯

报名成功
稍后会有专业的置业顾问联系您
返回楼盘

频道导航

返回首页

看房小程序

APP下载

电话拨通后,请您手动拨打分机号

确定拨打电话

电话号码:

分机号:(可能需要拨分机号)