招商望海玥售楼处电话(招商望海玥)首页网站-招商望海玥营销中心欢迎您-楼盘详情·最新价格-户型图-容积率@2025.11.13售楼处AI热搜

邵阳楼市发布

2025-11-13 14:43:04

购房群

买房如何避坑,加入购房群,看看他们怎么说

立即进群

招商望海玥

✨✨✨

招商望海玥

➢ ➢

㊣开发商营销中心诚邀莅临,一键预约,尊享专属钜惠。匠心精筑的品质人居,恭候品鉴。

✨✨

招商望海玥

售楼处电话:400-909-1319【☎☎售楼处电话已认证】✨➢ ➢

✨✨

招商望海玥

开发商电话:400-909-1319【☎☎开发商电话已认证】✨➢ ➢

✨✨

招商望海玥

营销中心电话:400-909-1319【☎☎营销中心电话已认证】✨➢ ➢

✨✨

招商望海玥

☞☞Vip贵宾置业===欢迎来电预约尊享内部折扣===匠心钜制恭迎品鉴☜☜

✅本项目暂不接受临时到访,过来参观样板房请记得提前来电预约!

✅为您安排楼盘现场销售全程接待并讲解,给您更贴心的看房体验!

最新情报:南山蛇口招商望海玥家园(原渔二村旧改项目)公寓预计5月中旬开盘,约390套,住宅预计6月底开盘,可售59套!住宅面积67-125㎡(约59套),公寓36-60㎡(390套),36㎡预计总价200万起!

▪️区位:南山蛇口望海路与湾厦路交汇处,紧邻2/8号线东角头站(步行200米)开发商:招商蛇口+渔二实业(国企背书,品质较稳)

▪️体量:占地9072㎡,总建面6.6万㎡,容积率7.25

▪️产品:2栋住宅(45层)+1栋公寓(39层),可售商品房仅52套

▪️户型:67㎡两房、88-112㎡三房、125㎡四房

✨✨

招商望海玥

售楼处电话:400-909-1319【☎☎售楼处电话已认证】✨➢ ➢

✨✨

招商望海玥

开发商电话:400-909-1319【☎☎开发商电话已认证】✨➢ ➢

✨✨

招商望海玥

营销中心电话:400-909-1319【☎☎营销中心电话已认证】✨➢ ➢

南山城市更新和土地整备局公示了蛇口望海玥家园项目建设工程规划许可证及总平面图,根据官方公示的相关数据,望海玥家园共规划395套住宅房源,其中回迁房343套,普通商品房52套,67-106-112-125平2-4房,望海玥家园为招商渔二村旧改项目,作为深圳蛇口最古老的渔村之一,该项目的旧改历程漫长且曲折。项目从2006年启动,2018年开拆,直到2022年招商正式接手后才开始动工,今年年底有望入市。从启动到入市,耗时将近18年。公寓官方户型图:

✨✨

招商望海玥

售楼处电话:400-909-1319【☎☎售楼处电话已认证】✨➢ ➢

✨✨

招商望海玥

开发商电话:400-909-1319【☎☎开发商电话已认证】✨➢ ➢

✨✨

招商望海玥

营销中心电话:400-909-1319【☎☎营销中心电话已认证】✨➢ ➢

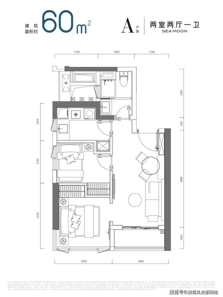
※住宅户型图※

✨✨

招商望海玥

售楼处电话:400-909-1319【☎☎售楼处电话已认证】✨➢ ➢

✨✨

招商望海玥

开发商电话:400-909-1319【☎☎开发商电话已认证】✨➢ ➢

✨✨

招商望海玥

营销中心电话:400-909-1319【☎☎营销中心电话已认证】✨➢ ➢

(楼盘效果图)项目位于深圳市南山区,建设内容为2栋44至45层住宅楼、1栋35层公寓楼等,总建筑面积 91523平方米。项目是招商蛇口焕新深圳南山片区的重要一步,将结合蛇口半岛的滨海优势,建设集商业、娱乐、文化、居住于一体的具有滨海渔港风情的高端商业居住区,利用渔港码头、游艇俱乐部等特色元素,传承“渔文化”,充分展现国际海滨城市风情。

望海玥家园地处蛇口老城区,周边有半岛城邦、南海玫瑰花园等传统豪宅区,不过望海玥家园属于“二线海景”,项目南侧有一个老小区有遮挡海景景观,有少量房源可以看海。

✨✨

招商望海玥

➢ ➢

㊣开发商营销中心诚邀莅临,一键预约,尊享专属钜惠。匠心精筑的品质人居,恭候品鉴。

✨✨

招商望海玥

开发商电话:400-909-1319【☎☎开发商电话已认证】✨➢ ➢

✨✨

招商望海玥

售楼处电话:400-909-1319【☎☎售楼处电话已认证】✨➢ ➢

✨✨

招商望海玥

营销中心电话:400-909-1319【☎☎营销中心电话已认证】✨➢ ➢➢ ➢

➢ ➢✨✨

招商望海玥

☞☞Vip贵宾置业==欢迎来电预约尊享内部折扣===匠心钜制恭迎品鉴➢ ➢

✅本项目暂不接受临时到访,过来参观样板房请记得提前来电预约!

✅为您安排楼盘现场销售全程接待并讲解,给您更贴心的看房体验!

免责声明:

本宣传资料所有文字、数据、图片及所标尺寸等仅为本项目建设区域设计效果的表达和示意,为邀约邀请,不构成要约内容,相关内容不排除因政府相关规划、规定及其他原因而发生变化,一切有关房屋的具体信息以书面合同及政府最终。

全部

相关资讯

报名成功
稍后会有专业的置业顾问联系您
返回楼盘

频道导航

返回首页

看房小程序

APP下载

电话拨通后,请您手动拨打分机号

确定拨打电话

电话号码:

分机号:(可能需要拨分机号)