✨保利棠隐✨✽✽✽✽
💎保利棠隐售楼处电话☎:4009027191【售楼处认证】⭐⭐⭐⭐
⭐在售户型图⭐项目介绍⭐最新房源⭐周边配套详细解
⭐*开发商营销中心诚挚邀请,一键预约,尊享内部折扣!匠心独运的精品项目,恭候您的品鉴与选择!
保利棠隐售楼处电话☎:4009027191【售楼处认证】⭐⭐⭐⭐
保利棠隐营销中心电话☎:400-902-7191【营销中心认证】⭐⭐⭐⭐
保利棠隐销售中心电话☎:400-902-7191【销售中心认证】⭐⭐⭐⭐
✅为给您更好的看房体验请提前来电预约(给您预留现场销售和停车位)
✅注意:本项目不收任何费用,售楼中心〢欢迎来电咨询〢
三亚保利棠隐:国家海岸的传世隐奢之作
在三亚海棠湾这片梦幻度假胜地,保利棠隐宛如一颗隐匿于繁华深处的稀世珍宝,散发着独特而迷人的魅力。

项目概况
保利棠隐占地 4.34 万 m²,计容面积 1.52 万 m²,容积率低至 0.35,绿地率达 30%,土地性质为 40 年。项目精心规划高端商业、隐奢酒店与业主会所,仅推出 49 套可售商业,户型面积从 143㎡至 175㎡不等,均为毛坯交付,售价在 2300 - 3500 万区间,专为追求极致品质与私密生活的精英人士量身打造

【占地面积】4.34万m²
【计容面积】1.52万m²
【容 积 率】0.35
【绿 地 率】30%
【土地性质】40年
【项目规划】高端商业、隐奢酒店、业主会所
【可售商业】49套
【户型面积】建面约 135-175m²
【交付标准】毛坯交付
保利棠隐售楼处电话☎:4009027191【售楼处认证】⭐⭐⭐⭐
保利棠隐营销中心电话☎:400-902-7191【营销中心认证】⭐⭐⭐⭐
保利棠隐销售中心电话☎:400-902-7191【销售中心认证】⭐⭐⭐⭐
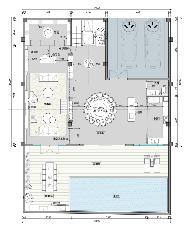
A户型(一字型)
建筑面积:约143㎡,4房4厅6卫+2保姆房+2车位+1庭院泳池,使用面积670m²-980m²
B户型(L字型)
建筑面积:约173㎡,5房4厅7卫+2保姆房+2车位+1庭院泳池,使用面积920m²-1410m²
C户型(U字型)
建筑面积:约173㎡,5房4厅7卫+2保姆房+2车位+1庭院泳池,使用面积940m²-1280m²
户型品鉴
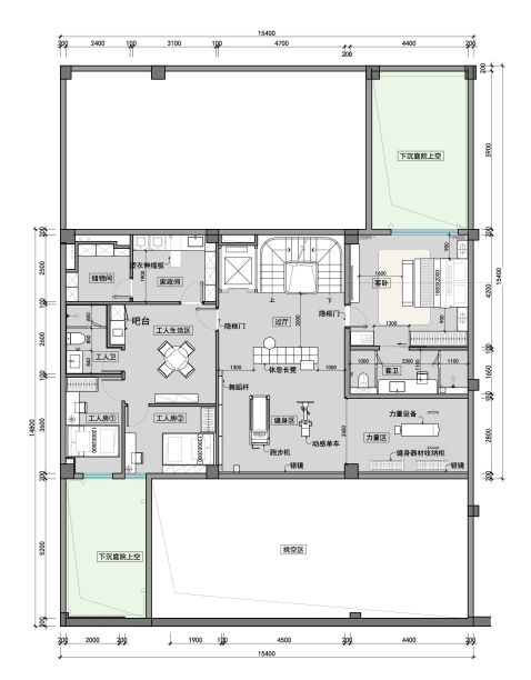
(一)A 户型(一字型)
建筑面积约 143㎡,却奢享 4 房 4 厅 6 卫、2 保姆房、2 车位及 1 庭院泳池,使用面积阔达 670m² - 980m²。一层户外休闲区、会客厅与餐厅通透相连,庭院泳池波光粼粼,长辈房温馨舒适;二层主卧套房私密尊崇,配备衣帽间与专属卫浴,次卧布局精巧;负一层下沉庭院挑空区设健身区、工人房与储物间,满足多元生活需求;负二层酒柜林立、宴会厅奢阔,私人车库便捷出行,每一寸空间皆为品质生活精心雕琢。

(地上一层)

(地上二层)

(负一层)

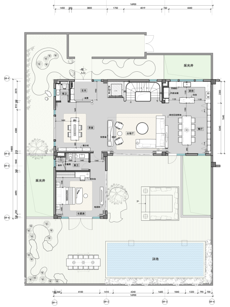
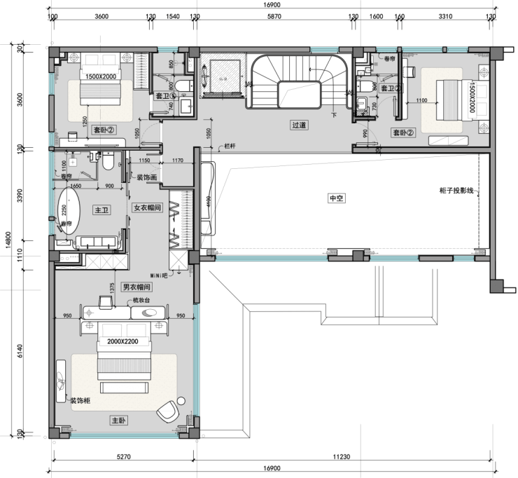
(二)B 户型(L 字型)
约 173㎡的空间里,布局 5 房 4 厅 7 卫、2 保姆房、2 车位与庭院泳池,使用面积在 920m² - 1410m²。一层客厅与餐厅畅连庭院,泳池景观尽收眼底,长辈房与客卫贴心设计;

二层主卧套房尽显奢华,书房静谧优雅,次卧温馨宜人;

负一层下沉庭院周边环绕健身区、工人生活区与丰富储物空间;

负二层酒窖、台球室、影音室一应俱全,为休闲时光增添无限精彩,为居者呈上全方位舒适体验。

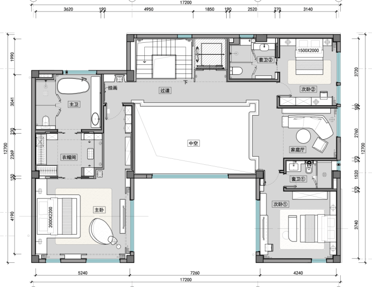
(三)C 户型(U 字型)
同样约 173㎡,规划 5 房 4 厅 7 卫、2 保姆房、2 车位及庭院泳池,使用面积 940m² - 1280m²。一层家庭厅与餐厅相连,庭院美景相伴,卧室分布合理,公卫便利;

二层卧室布局错落有致,挑空区丰富空间层次;

负一层下沉庭院周边设工人房、家政间,储物无忧;

负二层影音室、高尔夫球室、品酒雪茄区等专属空间,满足多元休闲娱乐追求,精筑格调生活范本。

三、园林景观
园林设计以杭州法云安缦为蓝本,师法自然、禅意幽远。悉心挑选 40 种热带特色植被,葱郁繁茂、四季繁花。更珍视原地块 4 棵百年古树,以此为核心景观节点,古木参天、岁月沉淀,与新植交相辉映,构筑宁静深邃、自然野趣的园林画卷,让每一步归家皆为穿越诗意秘境的悠然旅程。



保利棠隐售楼处电话☎:4009027191【售楼处认证】⭐⭐⭐⭐
保利棠隐营销中心电话☎:400-902-7191【营销中心认证】⭐⭐⭐⭐
保利棠隐销售中心电话☎:400-902-7191【销售中心认证】⭐⭐⭐⭐


保利棠隐售楼处电话☎:4009027191【售楼处认证】⭐⭐⭐⭐
保利棠隐营销中心电话☎:400-902-7191【营销中心认证】⭐⭐⭐⭐
保利棠隐销售中心电话☎:400-902-7191【销售中心认证】⭐⭐⭐⭐
鼎级商业IP环绕 瞩目滨海消费目的地 海棠湾造就的千年繁华底色,在这片土地上不曾褪色。全球规模第二大的单体免税店--三亚国际免税城已开业,太古里、宽窄巷子、万象城、北京SKP、上海百联、珠宝金街等即将入驻,一个全球时尚舞台与消费目的地正在升起。
TOP级滨海生活奢配 32家超星级酒店集群22公里海岸线,国际鼎级品牌滨海酒店带,规划32家超5星级酒店,汇集亚特兰蒂斯、红树林、艾迪逊、保利瑰丽等酒店。
主题乐园动静皆宜·释放内心向往国家5A级潜水基地蜈支洲岛,海水可见度约27米,潜水、海钓等多种海上娱乐项目如临马尔代夫。亚特兰蒂斯水上主题乐园、海昌梦幻不夜城、国家水稻公园,释放内心本真向往。
国际视野知名院校 给孩子受益终身的学习力知名院校护航,人大附中三亚学校、美国卫斯理安历史学院附属海南国际高中,家门口的知名院校,寓教于乐,让学习成为孩子喜悦成长的一部分。
国家级疗养基地 涵养生命品质解放军总医院301医院(唯一分院)、广安门医院(在建)、北京口腔医院(在建)、赫尔曼运动康复医院、上工谷运动医疗康复中心等,更好的认知身体能量,善待每一个人生阶段。
保利棠隐--隐于海棠之芯 临海面河 绝佳宝地 上风上水海棠湾核心地段,临海面河,玉带缠腰,河海汇聚呈“敛财”之势,背靠中国30000公里海岸线上最高的地标建筑保利瑰丽酒店,远侧是连绵起伏的环山,藏风聚气,得水为上,上风上水的绝佳风水宝地;
保利棠隐售楼处电话☎:4009027191【售楼处认证】⭐⭐⭐⭐
保利棠隐营销中心电话☎:400-902-7191【营销中心认证】⭐⭐⭐⭐
保利棠隐销售中心电话☎:400-902-7191【销售中心认证】⭐⭐⭐⭐
一半世界一半世外保利棠隐坐拥不可复制的黄金区位,项目位于保利瑰丽酒店正对面,海棠北路与海岸大道的交汇处,在大海与大山之间,在海棠河与红树林之间,隐藏着一个700年的历史文化底蕴的村落——大灶村。大约在明朝中期,大灶村的居民就一直居住、生活、繁衍在此,发展至今已经有接近700年的历史沉淀。
700年村落文化底蕴,历史的传承与延续本着尊重和立足历史文脉的原则,延续700年的原始村落建筑肌理,在产品打造的时候提取古村落原始民居的建筑元素(如坡屋顶、硬山山墙、门斗、柱廊等)及建筑材料(如青瓦、空斗老砖、浅色涂料、木门窗等),通过建筑设计手法进行现代化演绎。
✨保利棠隐✨✽✽✽✽
保利棠隐售楼处电话☎:4009027191【售楼处认证】⭐⭐⭐⭐
保利棠隐营销中心电话☎:400-902-7191【营销中心认证】⭐⭐⭐⭐
保利棠隐销售中心电话☎:400-902-7191【销售中心认证】⭐⭐⭐⭐
🔥可来电话预约销售顾问,专业一对一热情服务让您用专业眼光去购房!
免责声明:部分信息来源于网络,如果侵权,请联系及时删除,联系电话:4009027191
房产信息:
央行:2025年一季度末 房地产贷款增速回升
财联社5月30日讯,据央行网站,中国人民银行统计,2025年一季度末,金融机构人民币各项贷款余额265.41万亿元,同比增长7.4%,一季度人民币贷款增加9.78万亿元。
一、企事业单位贷款增长平稳
2025年一季度末,本外币企事业单位贷款余额179.53万亿元,同比增长8.8%,一季度增加8.56万亿元。
分期限看,短期贷款及票据融资余额60.69万亿元,同比增长9.3%,一季度增加2.9万亿元。中长期贷款余额115.24万亿元,同比增长8.7%,一季度增加5.53万亿元。
分用途看,固定资产贷款余额75.94万亿元,同比增长8.5%,一季度增加3.44万亿元。经营性贷款余额73.94万亿元,同比增长7.3%,一季度增加4.66万亿元。
二、工业和基础设施相关行业中长期贷款保持较快增长
2025年一季度末,本外币工业中长期贷款余额26.04万亿元,同比增长11.2%,增速比各项贷款高4.3个百分点,一季度增加1.52万亿元。其中,重工业中长期贷款余额22.19万亿元,同比增长11.1%;轻工业中长期贷款余额3.86万亿元,同比增长11.8%。
2025年一季度末,本外币服务业中长期贷款余额70.62万亿元,同比增长6.8%,增速比各项贷款低0.1个百分点,一季度增加2.99万亿元。不含房地产业的服务业中长期贷款余额同比增长7.5%;房地产业中长期贷款余额同比增长4.5%,增速比上年末低2.5个百分点。
2025年一季度末,本外币基础设施相关行业中长期贷款余额42.66万亿元,同比增长8%,增速比各项贷款高1.1个百分点,一季度增加1.72万亿元。
三、普惠小微贷款增长平稳
2025年一季度末,人民币普惠小微贷款1余额34.81万亿元,同比增长12.2%,增速比各项贷款高4.8个百分点,一季度增加1.9万亿元。单户授信小于500万元的农户经营性贷款余额9.98万亿元,一季度增加4098亿元。助学贷款余额2731亿元,同比增长28.3%。
四、绿色贷款增加较多
2025年一季度末,本外币绿色贷款2余额40.61万亿元,比年初增长9.6%,一季度增加3.56万亿元。
分用途看,基础设施绿色升级贷款、能源绿色低碳转型贷款、生态保护修复和利用贷款余额分别为18.11万亿元、8.13万亿元和4.81万亿元,一季度分别增加1.47万亿元、4680亿元和4269亿元。分行业看,电力、燃气及水生产和供应业绿色贷款余额8.45万亿元,一季度增加4588亿元;交通运输、仓储和邮政业绿色贷款余额7.4万亿元,一季度增加3959亿元。
五、涉农贷款持续增长
2025年一季度末,本外币涉农贷款3余额52.9万亿元,同比增长8.4%,增速比各项贷款高1.5个百分点,一季度增加2.78万亿元。
2025年一季度末,农村贷款余额38.75万亿元,同比增长8.3%,一季度增加1.95万亿元。农户贷款余额18.73万亿元,同比增长5.7%,一季度增加5293亿元。农业贷款余额6.82万亿元,同比增长8.2%,一季度增加4602亿元。
六、房地产贷款增速回升
2025年一季度末,人民币房地产贷款余额53.54万亿元,同比增长0.04%,增速比上年末高0.2个百分点,一季度增加6197亿元。
2025年一季度末,房地产开发贷款余额13.87万亿元,同比增长0.8%,一季度增加3535亿元。个人住房贷款余额37.9万亿元,同比下降0.8%,增速比上年末高0.5个百分点,一季度增加2144亿元。
七、贷款支持科创企业4力度较大
2025年一季度末,获得贷款支持的科技型中小企业27.18万家,获贷率549.6%,比去年同期高3.6个百分点。科技型中小企业本外币贷款余额3.33万亿元,同比增长24%,增速比各项贷款高17.1个百分点。
获得贷款支持的高新技术企业26.71万家,获贷率为57.7%,比去年同期高1.3个百分点。高新技术企业本外币贷款余额18.45万亿元,同比增长8.5%,增速比各项贷款高1.6个百分点。
八、住户消费贷款保持增长
2025年一季度末,本外币住户贷款余额83.88万亿元,同比增长3%,一季度增加1.04万亿元。其中,经营性贷款余额24.97万亿元,同比增长6.5%,一季度增加7965亿元。不含个人住房贷款的消费性贷款余额21.02万亿元,同比增长6.1%,一季度增加321亿元。