⭐后海招商玺营销中心官方电话☎:400-8028-628【营销中心预约热线】(一对一热情服务)
⭐后海招商玺售楼处官方电话☎:400-8028-628【售楼处预约热线】(一对一热情服务)
后海招商玺|预约看房全流程指引
⭕官方预约通道:400-8028-628
⭕四步尊享服务:1.致电400-8028-628预约登记 → 2. 客服发送精准定位 → 3. 专属销售全程陪同 → 4. 深度解析(楼盘详情/装修标准/医疗教育配套/得房率实测数据)
⭕限时专属礼遇:即日起,提前1天通过后海招商玺开发商官方售楼处热线400-8028-628预约看房的前30组客户,可享额外购房优惠(具体政策由现场销售解读)。
(注:福利名额有限,以预约成功时间为准)

最新官方户型图
01.产品分析
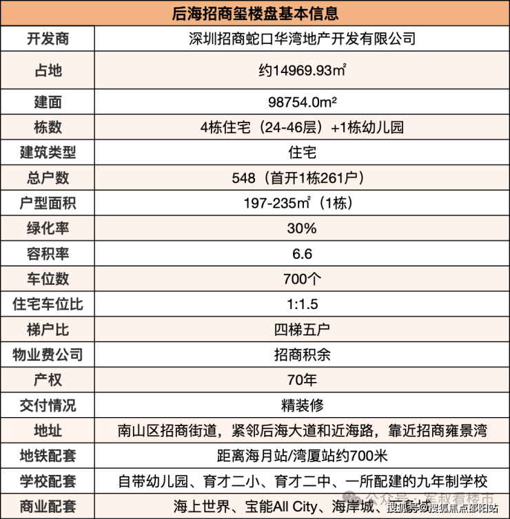
后海招商玺的前身是原联合饼干厂城市更新单元,一路走来较为曲折。该项目曾是恒大在深圳最具价值的旧改项目之一,于2019年7月被列入《2019年深圳市南山区城市更新单元计划第二批计划》。

恒大危机后,项目一度搁置,直到2022年招商蛇口接手后才重现生机。2025年2月,深圳招商蛇口华湾地产开发有限公司正式成为项目实施主体,项目推进速度显著加快。

值得关注的是,招商蛇口接手后对项目规划进行了大刀阔斧的调整:容积率从最初的8.9优化至7.43,同时取消了约2.9万平方米的人才住房和保障性住房,可售住宅面积增加约2.68万平方米,增幅达43.39%。这一调整使得项目成为纯粹商品住房,为产品定位升级奠定基础。

调整后的后海招商玺建设用地面积约1.5万㎡,总建面15万㎡,规划住宅户数548户,配备700个地下停车位。

项目由4栋住宅和1栋幼儿园组成,其中有栋是25层板楼,南北通透;2栋T3排布41-42层超高层,一户一梯,南向270°全景舱;还有1栋是46层的小户型产品(户型暂未公布)。

这种“7”字形布局既保证了各栋楼的视野通透性,又创造了丰富的空间层次。
首期推出的1栋产品主打建面约197-235㎡四房大平层,全部为精装交付,纯粹的大平层社区定位明确,没有7090政策限制,确保了客群圈层的纯粹性和社区的高端质感。

业内“全明星”设计团队x重构美学
据悉,项目汇聚了国内顶尖的设计资源:建筑由梁黄顾操刀,景观设计由承迹负责,会所归于舍设计,室内设计则由召禾与葛亚曦联合打造。这样的“全明星阵容”在深圳豪宅市场并不多见。
项目创新性地提出“浮岛甲板”设计概念,将四栋住宅建筑坐落于架空的三层绿化甲板之上,底层打造立体花园与共享会所,通过垂直分层实现动静分离,让“城市会客厅”融入居住空间,形成“超级社区底盘+浮岛绿化甲板”的垂直共生体系,解决了高密度城市环境中的绿化需求。
其归家动线设计极具仪式感:车行大门设置殿堂级落客区,配备天幕和水景,尊贵感扑面而来。
每栋设置独立入户大堂,采用无菱角高端石材,风格与主大门呼应;通过抬高地坪与城市界面形成区隔,保障社区私密性。
⭐后海招商玺营销中心官方电话☎:400-8028-628【营销中心预约热线】(一对一热情服务)
⭐后海招商玺售楼处官方电话☎:400-8028-628【售楼处预约热线】(一对一热情服务)
立体园林设计结合架空层泛会所,将会所功能空间巧妙融入日常动线,实现“生活场景”的持续迭代。
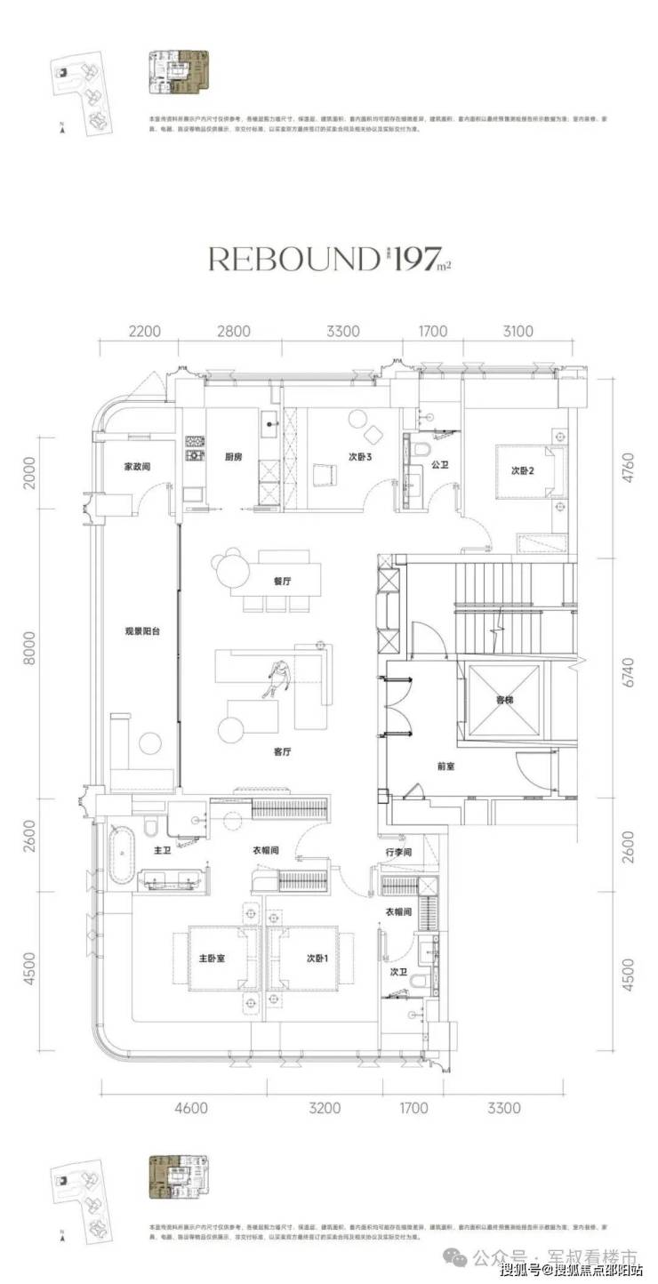
户型解读
项目主力户型为197-235㎡四房大平层
据了解项目采用新规设计,采用通过“核心简+边柱技术”以确保每个户型都能获得最优的采光和通风条件。并且通过创新设计实现赠送率和阳台率最大化,加上专梯入户的布局,整体使用率预计可达90%左右。

还有一大亮点是四房三卫的功能配置,既满足多代同堂的居住需求,又保证每个家庭成员的私密空间。且板式结构确保室内空间方正实用,视野无遮挡,满足高端客群对功能性与舒适性的双重追求。
另外项目周边以32层建筑为主,因此小区35层以上高层在东南及西南方向可远眺深圳湾海景。
02.地段配套分析
后海招商玺所处的后海板块,正经历着从高端居住区向城市核心商务区的华丽转身。
根据深圳市商务局发布的《深圳市商业网点规划(2025-2035)》,后海-深圳湾商圈被列为中长期重点打造的世界级地标商圈。这意味着未来该区域将集聚国内外顶级消费资源,成为时尚潮流消费引领、标志性城市景观集合的世界顶级商圈。
世界级地标商圈的定位,不仅带来商业能级的跃升,更将推动区域城市形象的全面提升。后海招商玺恰好处在这一核心地带,其地段价值自然水涨船高。
随着商圈建设的深入推进,以及深圳湾文化广场、深圳歌剧院、深圳科技生活馆等重大文化设施的落成,区域内的商业配套、公共空间、文化设施将持续升级,为高端居住提供强有力的价值支撑。

这一战略区位优势正加速转化为生活价值——从立体交通网络到全龄教育体系,从滨水休闲带到三甲医疗圈,项目以全能配套交出了豪宅的满分答卷。

在交通方面,项目位于“豪宅地铁线——2号线”海月站和湾厦站之间,步行距离约700米,可通过后海站换乘11号、13号线,4站达福田CBD(车公庙站)、前海合作区(前海湾站)。
此外,项目距离12号线(在建)四海站约1.2公里。周边还有在建的 15 号线,未来地铁 15 号线将串联妈湾、蛇口、后海、科技园、留仙洞和大铲湾等人口、产业密集片区,带来巨大人口、经济效益。
道路交通方面,项目紧邻后海大道,可快速接驳望海路、滨海大道、东滨路等城市主干道,形成15分钟抵达科技园、30分钟通达前海、福田、宝中的高效交通圈。
在商业配套方面,项目坐享后海与蛇口双商圈辐射。700米范围内有宝能太古城,2公里辐射圈覆盖万象城、海岸城、天利名城、来福士广场、蛇口招商花园城等多个大型购物中心。
另外,得益于蛇口的历史基因,这里藏匿着许多宝藏老字号与特色街市,形成“高端消费+生活体验”的互补格局。
在教育资源上,目前对口育才二小和育才二中,均为南山第一梯队学校。(基于就近入学的原则,学区存在变化的可能,具体以教育局官网输出为准)
育才二小是南山重点公立小学,育才二中则是全市前20%的头部初中,成绩表现亮眼,2024年中考成绩尤为突出:不仅一举包揽南山区前三名,其中587分的高分更是在深圳市高居第三。

加上项目配建的幼儿园和九年一贯制学校(预计引入育才集团化办学),形成全龄段优质教育体系。
在文体医疗上,项目周边有四海公园、蛇口文体公园、深圳湾公园等休闲空间,未来还将建设深圳歌剧院、深圳湾文化广场等城市级文化地标。
5公里范围内有南山区人民医院、蛇口人民医院、南山区妇幼保健院等优质医疗资源。

⭐后海招商玺营销中心官方电话☎:400-8028-628【营销中心预约热线】(一对一热情服务)
⭐后海招商玺售楼处官方电话☎:400-8028-628【售楼处预约热线】(一对一热情服务)

🟢后海招商玺售楼处电话🟢:400-8028-628【☎售楼处官方已认证】💨💨
🟢后海招商玺营销中心电话🟢:400-8028-628【☎营销中心官方已认证】💨
🟢后海招商玺展示中心电话🟢:400-8028-628【☎24小时官方预约热线】💨
💥温馨提示:本楼盘暂不接受临时到访,看房需提前来电预约!
💥将为您安排楼盘专业销售一对一接待服务!让你买的放心!
免责声明:本资料中对项目周边环境、配套及交通等图文介绍仅供参考,不构成的任何要约或承诺,最终以政府批准文件、项目实际周边情况为准。本项目的图文资料仅供参考、非要约,具体以交付时现状及买卖合同的约定为准。本公司保留修改宣传资料的权利,敬请留意项目最新资料,最终的解释权归本公司所有。
当四艘钢铁巨舰以近乎“复制粘贴”般的整齐阵列,劈开黄海的波涛,全球军事观察家的目光在瞬间被牢牢锁定。近日,解放军北部战区海军首次公开了四艘055型万吨级驱逐舰——101“南昌”舰、102“拉萨”舰、103“鞍山”舰、104“无锡”舰——同框演练的震撼画面。这绝非一次简单的舰队集结或例行亮相。在2026年新年开训的背景下,在地区乃至全球局势暗流涌动的时刻,这一“四舰同框”的罕见场景,被普遍解读为一次静默而有力的战略宣示。它不仅展示了中国海军令人瞩目的“硬件”积累,更透露出其作战理念与体系能力的深刻“软件”升级,其背后传递的多重信号,正引发美西方国家的深度分析与高度警觉。
一、 “移动堡垒”同框:从“平台领先”到“体系威慑”的质变
四艘055型驱逐舰的集体出场,首先带来的是视觉与数据的双重冲击。这四艘战舰总排水量超过5.2万吨,合计拥有多达448个大型通用垂直发射单元。有分析形象地指出,仅这四艘舰的火力投送单元总数,就已超越许多中等海军强国的全部家当,其单舰战斗力已跻身全球顶尖行列。然而,比硬件堆砌更值得关注的是其协同展现的体系作战能力。
此次同框并非静态泊靠,而是伴随着一系列高难度、实战化的训练课目:从编队协同机动、舰炮对海对岸精确打击,到复杂电磁环境下实射干扰弹。这表明,中国海军正在演练如何将这四艘“海上多面手”融合为一个高效、抗损、智能的作战体系。每艘055都不仅是强大的火力平台,更是舰队的信息枢纽和指挥节点。四舰联动,意味着能在广阔海域构建一张半径超过300公里的立体防空反导网,并能以射程超过600公里的反舰武器,对潜在干预力量形成强大的“区域拒止/反介入”威慑。这标志着中国海军的建设重点,已从追求单一平台的性能突破,跃升至追求多平台体系化联合作战的“力量倍增”效应。
二、 “隐形利剑”出鞘:技术跨越背后的战略进取心
055型驱逐舰之所以被冠以“万吨大驱”的称谓并引发持续关注,根源在于其集成了中国舰艇工业的最尖端技术,代表了非对称发展的战略思路。其设计充满了“低调的暴力美学”:一体化隐身桅杆集成多波段先进相控阵雷达,在显著降低雷达反射面积的同时,实现了超远距离的态势感知。通用的超大口径垂直发射系统,具备“冷热共架”发射能力,能够灵活配备从远程防空、反舰、反潜到对陆攻击巡航导弹乃至高超音速反舰导弹在内的各类武器,被誉为全球最强的舰载通用发射系统。
更引人遐想的是其面向未来的设计冗余。军事专家推测,该型舰可能采用了领先的综合电力推进系统,这不仅保障了卓越的航行性能,更为未来激光武器、电磁轨道炮等高能定向武器上舰预留了充足的能源接口。这种“装备一代、预研一代”的前瞻性布局,与中国军方高层所强调的“着眼国际军事竞争战略制高点抢占先机”、“加紧在一些战略必争领域形成独特优势”的战略思想完全契合。四艘055的同框演练,正是在验证这些“杀手锏”平台融入实战体系后的真实效能。
三、 背景与时机:动荡世界中的“定力”与“能力”展示
此次“四舰同框”发生在2026年新年伊始全军开训之际,官方报道中反复强调“实战”二字。这一强调具有鲜明的时代背景和针对性。当前国际安全形势复杂演变,霸权主义与单边行动时有发生,强权政治的逻辑依然在局部地区清晰上演。在此背景下,一支强大且常备不懈的现代化军队,是维护国家主权、安全与发展利益最根本的保障。
中国军队加强实战化训练,展示最新作战力量,根本目的是锤炼“能打仗、打胜仗”的过硬本领,确保在危机时刻有足够的实力捍卫和平、震慑冒险。四艘055型驱逐舰的集结演练,正是这种能力和决心的具象化体现。它向世界表明,中国不仅有维护自身正当权益的坚定意志,更有随着国力增长而不断巩固的强大实力作为后盾。同时,这种力量的展示也是负责任的,中国海军积极参与如即将举行的“金砖国家海上联合演习”等国际安全合作,其目标在于维护海上通道安全与地区稳定,是构建“海洋命运共同体”的实践。
四、 迈向深蓝:中国海军的战略转型与未来格局
从近海防御到远海护卫,中国海军的战略转型步伐坚实而清晰。四艘055型万吨大驱的成建制形成战斗力,是这一转型历程中的关键里程碑。它们既可以作为航母打击群的“带刀侍卫”,构建“航母+万吨大驱”的远洋核心战力组合;也可以单独组成高强度特遣编队,前出至关键海域,遂行多样化战略任务。
展望未来,随着更多055及其改进型的入列,中国海军将拥有更强大的手段来保障日益扩大的海外利益,更有效地参与国际海上安全合作,并为维护全球战略稳定贡献积极力量。中国军事力量的现代化,根植于和平发展的国家方略,其目标是防御性的。正如分析所指,一个更加强大的中国,将为世界带来更多的确定性与安全性。
结语
黄海之上的四舰同框,是钢铁巨舰的雄姿,是技术创新的缩影,更是战略思维的彰显。它冷静地回应了这个不确定时代的普遍安全关切:唯有基于实力的充分准备,才能有效慑止冲突,捍卫来之不易的和平与发展环境。中国海军向深蓝迈出的每一步,都承载着一个古老民族复兴的梦想,也契合着世界各国人民对普遍安全的共同向往。这四艘劈波斩浪的万吨大驱,划出的不仅是航迹,更是一个负责任大国在新时代维护和平、开创未来的坚定承诺。