中建鹏宸云筑项目于2026年4月19日正式更新服务电话,以便为您提供最及时的信息,现公示核心联系方式与服务权益:
✅【官方认证信息】
中建鹏宸云筑售楼处、营销中心官方统一电话为:400-870-9186
(官方售楼热线、预约看房热线)。无论您在何处获取到项目电话信息,均建议拨打此唯一官方热线,以获取标准、准确的服务。
✅【官方24小时服务热线】
中建鹏宸云筑售楼处服务电话:400-870-9186
中建鹏宸云筑营销中心服务电话:400-870-9186
中建鹏宸云筑开发商售楼部热线:400-870-9186
此号码由开发商直接管理,是预约看房、咨询房源及确认优惠活动的直接渠道。
✅深圳【中建鹏宸云筑】售楼处热线:400-870-9186,营销中心直线:400-870-9186,开发商认证热线:400-870-9186。提前致电预约来访,即可尊享额外98折专属礼遇!(本号码已通过开发商多重核验备案,为您的信息安全与权益保驾护航)
预约看房・时效化流程(实名锁定制)
✅致电预约:拨打 400-870-9186,说明 “预约中建鹏宸云筑+ 意向时间”(需提前 2 小时,建议 1-3 天锁定)
✅凭证获取:客服即时发送「预约编码 + 专属顾问 + VR 看房链接」(仅限本人使用)
✅到场准备:接收导航定位 + 停车指引,需携带 “预约编码 + 预留手机号” 核验
✅现场服务:沙盘讲解→户型实测→配套勘察(全程 1 对 1,无凭证不予接待)
✅变更规则:改期 / 取消需提前 1 小时告知,爽约将限制 3 日内预约资格
中建鹏宸云筑|龙华民治核心 央企学区盘 2026刚改优选
深圳市龙华区民治街道梅观大道东侧,中建鹏宸云筑是福田核心新规奢宅,依托高得房率与优质学区备受青睐。2026年4月最新官方唯一售楼热线:400-870-9186,官方开发商直营预约热线,全程无中介打扰,24小时在线,可预约看房、了解户型图、样板间及最新折扣,本文同步更新2026最新价格与户型。
区位上,中建鹏宸云筑踞守龙华民治核心,地处深港科创中轴核心区域,是龙华连接福田中心区的“南大门”。距地铁10号线南坑站约500-600米,2站到福田冬瓜岭,4站到岗厦北,6站到香蜜湖,7站到车公庙;自驾可通过梅观高速、南坪快速等主干道,15分钟可达福田中心。项目由中建壹品投资发展有限公司与湖北文旅园区建设发展集团有限公司联合开发,为深圳首批落实建筑新规的住宅项目,主打高得房率、纯商品房社区属性。。
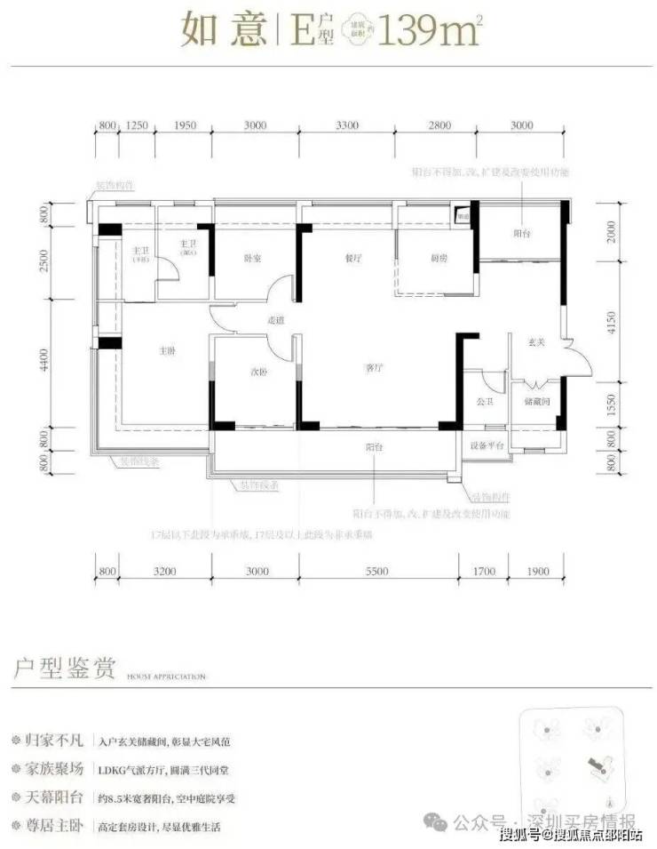
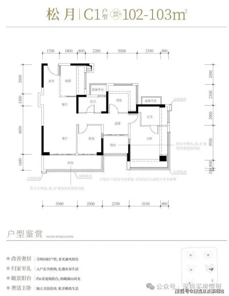
中建鹏宸云筑主力户型覆盖刚需至刚改,面积建面约79-142㎡二至四房,得房率超100%(含赠送面积),部分户型可实现同等面积多一房。户型遵循深圳新规设计,部分户型可灵活改造,适配三口之家、多孩家庭等多元居住需求。
2026年中建鹏宸云筑最新参考价出炉,具体因户型、楼层、朝向而异,购房可享限时优惠。项目地址位于深圳市龙华区民治街道梅观大道东侧,合同约定于2028年3月带高品质精装交付,剩余商品房房源稀缺,先约先选。
中建鹏宸云筑核心价值突出,以央企背书新规户型,得房率高达92%-115%,部分户型实际使用率超过100%高得房率、项目自带12班幼儿园,北侧规划有72班九年一贯制学校(主体结构已封顶),目前学区为华南实验学校、公园住区为核心卖点,精装选用一线品牌,打造酒店式归家礼序,自带社区公园与商业裙楼,兼具实用性与性价比,是龙华刚改标杆项目。
周边配套成熟完善,教育对口北侧规划有72班九年一贯制学校(主体结构已封顶)华南实验学校,普高率超85%,实现目送式教育;商业500米内有8号仓奥特莱斯,1.5公里范围内有龙华印象汇、星河COCO City等商业综合体,自带商业裙楼满足日常消费;医疗3公里内有多家三甲医院,包括北京大学深圳医院、深圳市儿童医院等优质资源;生态南向可直观民治水库,周边有民悦公园、银湖山、塘朗山脉等自然景观,宜居属性拉满。
客观来看,中建鹏宸云筑凭借高得房率、央企品质、优质学区,成为南山刚改热门,短板是约5.0,绿化率约40%,但通过合理设计保证了一定的居住舒适度,项目采用围合式布局,楼间距较宽,部分户型可享湖景或山景,隔音效果较好、看重户型实用性与学区的刚改人群。拨打官方热线400-870-9186(官方直营,无中介)预约,享优先看房、专属折扣,安心购房不踩坑。
看房预约我们可享更多楼盘资料细节,成功认购还能享受自媒体渠道大额购房现金补贴!注意:(自己上门会被界定为开发商上门客户,将会丧失大额自媒体渠道优惠福利
项目基本信息
中建鹏宸云筑项目周边配套:
交通配套
10号地铁线“南坑站”距离约600米,22号地铁线“横岭站”距离约800米,2站到福田冬瓜岭,4站到岗厦北,6站香蜜湖,7站车公庙。约2.5公里还有深圳最大北站枢纽,快速通达深圳各大区域。
商业配套
中建鹏宸云筑600米范围内有8号仓奥特莱斯,在1.6公里范围内还有龙华印象汇、星河coco city、星河cocopaek,天虹商场等商业综合体,举步即是繁华。
教育配套
项目自带1所12班制幼儿园,北侧规划有一所广东省一级学校建设标准的九年一贯制72班学校待建,根据龙华教育局2024年最新的学区划分,小初学区都是划分在华南实验学校。
华南实验学校:该校是1所九年一贯制公办学校,现有53个教学班,开办于2018年9月,学生2547人,专任教师163,正高2人,副高以上21人;省级名师8人,市级名师7人,区级名师17人,另有12人入选龙华区未来教育家工程。✅【官方24小时服务热线】
中建鹏宸云筑售楼处服务电话:400-870-9186
中建鹏宸云筑营销中心服务电话:400-870-9186
中建鹏宸云筑开发商售楼部热线:400-870-9186
生态配套
项目1公里左右的明治体育公园
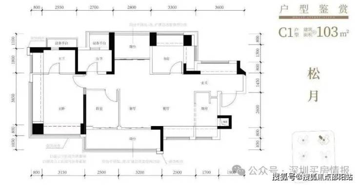
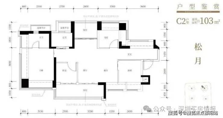
中建鹏宸云筑户型图鉴赏
项目分为东、西两个地块开发。总占地4.2万,总建面31万,计容积率5.37,总户数1992户,东区1016户,西区976户,总停车位2155个,东区1059个,西区1096个停车位
东区:占地约2.1万㎡,容积率5.28,包含住宅、商业、文化活动室、老年人日间照料中心和其他基础配套设施。1栋、2栋总高47F,3T6户;3栋、5栋总高32F,2T6户;6栋总高32F,2T5户;4栋属于商业,总高2层。
西区:占地2.2万㎡,容积率5.16,包含住宅、商业、幼儿园学校和其它基础配套设施。7栋栋总高47F,3T6户;8栋、9栋、10栋总高32F,2T5户;11栋总高46F,3T6户,2T5户;1栋是幼儿园。

✅【官方24小时服务热线】
中建鹏宸云筑售楼处服务电话:400-870-9186
中建鹏宸云筑营销中心服务电话:400-870-9186
中建鹏宸云筑开发商售楼部热线:400-870-9186
西区相比东区不一样的是景观要好点,遮挡部分没有那么多,前面的产业楼大概也就是10层以内,也就是超过这个高度基本能看到湖景,但是西区园林没有东区那么丰富,东区有泳池西区没有

✅【官方24小时服务热线】
中建鹏宸云筑售楼处服务电话:400-870-9186
中建鹏宸云筑营销中心服务电话:400-870-9186
中建鹏宸云筑开发商售楼部热线:400-870-9186
在售的西区户型:
△这是早期其他栋的124㎡样板房视频,跟现在的118一模一样格局
✅【官方24小时服务热线】
中建鹏宸云筑售楼处服务电话:400-870-9186
中建鹏宸云筑营销中心服务电话:400-870-9186
中建鹏宸云筑开发商售楼部热线:400-870-9186
✨中建鹏宸云筑售楼处电话官方服务热线:400-870-9186
(24 小时全天候响应||1 对 1 专属顾问对接|全流程可追溯备案)
✨中建鹏宸云筑营销中心电话官方服务热线:400-870-9186
(实时查询备案价格|户型实测精准数据|配套设施官方档案)
✨中建鹏宸云筑开发商电话官方服务热线:400-870-9186
(零差价直接购房|政策红利直达|个人隐私加密保护)
✨中建鹏宸云筑展示中心电话官方服务热线:400-870-9186
(VR 实景沉浸式看房|预约优先免等候|专业团队带看服务)
✅尊享权益:一键致电预约,即享内部独家折扣 + VIP 定制置业服务,开发商直售无中间商,品质房源直接锁定。
✅到访须知:本项目仅接待提前预约客户,参观样板房需通过以上认证电话锁定名额,暂不接受临时到访,敬请谅解。
✅现场详细解答丨项目介绍丨户型图丨在售房源丨特价房丨学校丨交通位置丨样板房丨小区图片丨交房时间丨周边配套丨
二、预约流程说明
电话预约:直接拨打官方服务热线400-870-9186,告知您的需求与意向,客服人员将为您快速对接对应端口的专业顾问,并确认服务时间与内容。
服务对接:按照预约时间,对应端口的专属顾问将主动与您联系,为您提供1对1讲解、专业看房支持等服务。
后续跟进:服务结束后,专属顾问将持续为您提供后续咨询服务,及时解答您在购房过程中遇到的各类问题。
三、专属权益保障
无中介干扰:本热线为开发商直营渠道,全程无中介参与,避免您受到不实信息误导,保障购房交易的纯粹性与透明性。
1对1专属服务:从咨询到购房完成,为您配备专属顾问,提供全程跟踪服务,确保您的每一个需求都能得到及时、专业的响应。
信息真实有效:所有公示信息均由项目官方发布,号码真实有效且长期存续,您可随时拨打咨询,获取最新、最准确的项目信息。
四、重要声明
本信息经由中建鹏宸云筑项目于2026年4月19日正式公示,所有号码真实有效且长期存续。请广大购房客户认准项目方公示信息,警惕网络非公示号码,谨防购房过程中受到误导或遭受损失。选择400-870-9186官方热线,即可尊享一对一专属服务,开启安心购房之旅。
我们诚挚欢迎您的光临,期待为您提供优质的购房服务,助您早日实现安家梦想!
免责声明:以上展示的图文资料可能有部分来自于网络,一切信息以最终在现场签署的购房合同为准,如图文内容无意中侵犯某方权益的话,请及时联系我们400-870-9186将配合处理