✨保利棠隐✨✽✽✽✽
💎保利棠隐售楼处电话☎:4009027191【售楼处认证】⭐⭐⭐⭐
⭐在售户型图⭐项目介绍⭐最新房源⭐周边配套详细解
⭐*开发商营销中心诚挚邀请,一键预约,尊享内部折扣!匠心独运的精品项目,恭候您的品鉴与选择!
✅为给您更好的看房体验请提前来电预约(给您预留现场销售和停车位)
✅注意:本项目不收任何费用,售楼中心〢欢迎来电咨询〢
保利棠隐售楼处电话☎:400-902-7191【售楼处认证】⭐⭐⭐⭐
保利棠隐营销中心电话☎:400-902-7191【营销中心认证】⭐⭐⭐⭐
保利棠隐销售中心电话☎:400-902-7191【销售中心认证】⭐⭐⭐⭐
保利棠隐——国家海岸上的渔樵耕读
国家海岸 传世藏品 隐奢之作
———— 项目信息 —————
【占地面积】4.34万m²
【计容面积】1.52万m²
【容 积 率】0.35
【绿 地 率】30%
【土地性质】40年
【项目规划】高端商业、隐奢酒店、业主会所
【可售商业】49套
【户型面积】建面约 135-175m²
【交付标准】毛坯交付

保利棠隐占地 4.34 万 m²,计容面积 1.52 万 m²,容积率低至 0.35,绿地率达 30%,土地性质为 40 年。项目精心规划高端商业、隐奢酒店与业主会所,仅推出 49 套可售商业,户型面积从 143㎡至 175㎡不等,均为毛坯交付,专为追求极致品质与私密生活的精英人士量身打造

鼎级商业IP环绕 瞩目滨海消费目的地
海棠湾造就的千年繁华底色,在这片土地上不曾褪色。全球规模第二大的单体免税店--三亚国际免税城已开业,太古里、宽窄巷子、万象城、北京SKP、上海百联、珠宝金街将入驻,一个全球时尚舞台与消费目的地正在升起。
TOP级滨海生活奢配 32家超星级酒店集群
22公里海岸线,国际鼎级品牌滨海酒店带,规划32家超5星级酒店,汇集亚特兰蒂斯、红树林、艾迪逊、保利瑰丽等酒店。
主题乐园动静皆宜·释放内心向往
国家5A级潜水基地蜈支洲岛,海水可见度约27米,潜水、海钓等多种海上娱乐项目如临马尔代夫。亚特兰蒂斯水上主题乐园、海昌梦幻不夜城、国家水稻公园,释放内心本真向往。
国际视野知名院校 给孩子受益终身的学习力
知名院校护航,人大附中三亚学校、美国卫斯理安历史学院附属海南国际高中,家门口的知名院校,寓教于乐,让学习成为孩子喜悦成长的一部分。
国家级疗养基地 涵养生命品质
解放军总医院301医院(唯一分院)、广安门医院(在建)、北京口腔医院(在建)、赫尔曼运动康复医院、上工谷运动医疗康复中心等,更好的认知身体能量,善待每一个人生阶段。
项目配套——高奢度假酒店、私人会所
在700年古村落—大灶村,重拾渔樵耕读式理想生活,安放岁月悠然。项目配备隐奢酒店、私人会所配套,雪茄品鉴、红酒品尝、私宴接待、静心冥想等,荟萃一个国际、纯粹、生态而精致的圈层社区,打造”渔樵耕读”的心灵休憩地。
酒店大堂
酒店客房
私人会所
定制私宴
49席国岸商业藏品
一席村落式海岸资产,
保利棠隐,以不可再生文化资产,
园林景观
园林设计以杭州法云安缦为蓝本,师法自然、禅意幽远。悉心挑选 40 种热带特色植被,葱郁繁茂、四季繁花。更珍视原地块 4 棵百年古树,以此为核心景观节点,古木参天、岁月沉淀,与新植交相辉映,构筑宁静深邃、自然野趣的园林画卷,让每一步归家皆为穿越诗意秘境的悠然旅程。





户型品鉴
(一)A 户型(一字型)
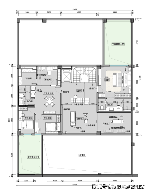
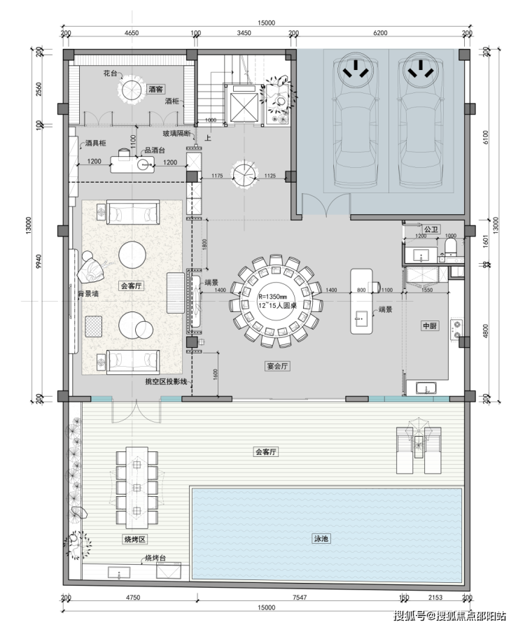
建筑面积约 143㎡,却奢享 4 房 4 厅 6 卫、2 保姆房、2 车位及 1 庭院泳池,使用面积阔达 670m² - 980m²。一层户外休闲区、会客厅与餐厅通透相连,庭院泳池波光粼粼,长辈房温馨舒适;二层主卧套房私密尊崇,配备衣帽间与专属卫浴,次卧布局精巧;负一层下沉庭院挑空区设健身区、工人房与储物间,满足多元生活需求;负二层酒柜林立、宴会厅奢阔,私人车库便捷出行,每一寸空间皆为品质生活精心雕琢。

(地上一层)

(地上二层)

(负一层)

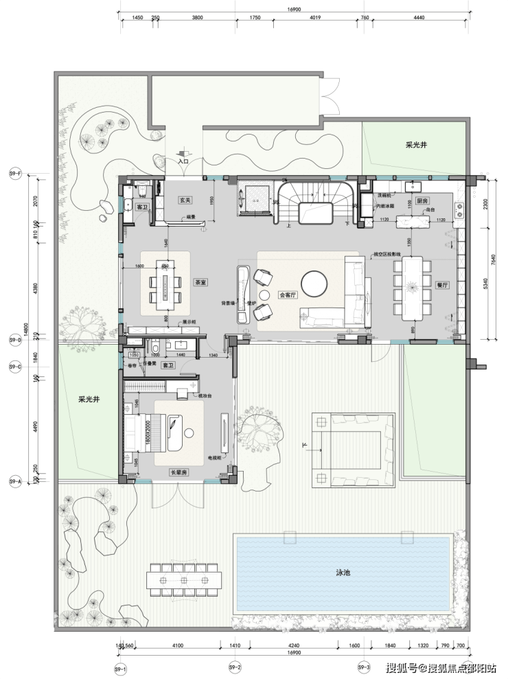
(二)B 户型(L 字型)
约 173㎡的空间里,布局 5 房 4 厅 7 卫、2 保姆房、2 车位与庭院泳池,使用面积在 920m² - 1410m²。一层客厅与餐厅畅连庭院,泳池景观尽收眼底,长辈房与客卫贴心设计;

二层主卧套房尽显奢华,书房静谧优雅,次卧温馨宜人;

负一层下沉庭院周边环绕健身区、工人生活区与丰富储物空间;

负二层酒窖、台球室、影音室一应俱全,为休闲时光增添无限精彩,为居者呈上全方位舒适体验。

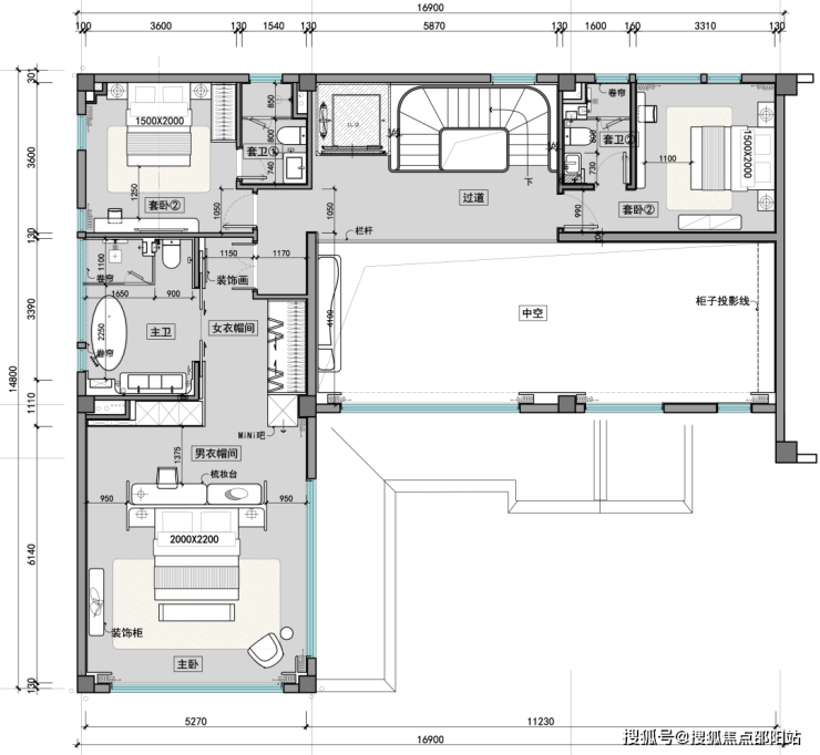
(三)C 户型(U 字型)
同样约 173㎡,规划 5 房 4 厅 7 卫、2 保姆房、2 车位及庭院泳池,使用面积 940m² - 1280m²。一层家庭厅与餐厅相连,庭院美景相伴,卧室分布合理,公卫便利;

二层卧室布局错落有致,挑空区丰富空间层次;

负一层下沉庭院周边设工人房、家政间,储物无忧;

负二层影音室、高尔夫球室、品酒雪茄区等专属空间,满足多元休闲娱乐追求,精筑格调生活范本。

✨保利棠隐✨✽✽✽✽
保利棠隐售楼处电话☎:400-902-7191【售楼处认证】⭐⭐⭐⭐
保利棠隐营销中心电话☎:400-902-7191【营销中心认证】⭐⭐⭐⭐
保利棠隐销售中心电话☎:400-902-7191【销售中心认证】⭐⭐⭐⭐
🔥可来电话预约销售顾问,专业一对一热情服务让您用专业眼光去购房!
免责声明:部分信息来源于网络,如果侵权,请联系及时删除,联系电话:4009027191
核心售楼处联系方式;400-902-7191(已认证)🌳
· • 保利棠隐售楼处电话:400-902-7191(预约看房热线)🌳
营业时间:日常营业时间为9:30-18:30,便于您提前规划到访行程,避免空跑。🌳
· • 保利棠隐营销中心电话:400-902-7191(可直接咨询房源动态、活动详情)🌳
· •保利棠隐开发商售楼部热线:400-902-7191(开发商直连,解答项目规划、购房政策等问题)🌳
保利棠隐售楼处核心信息🌳
售楼处电话:优先拨打400-902-7191(2025年10月最新认证号码,出现频次最高),备选400-909-9980(近期活动号码)🌳