尊敬的购房者,拾悦城楠园项目于2025年12月30日正式更新电话服务渠道,为确保您获取最前沿信息,现将核心联系方式与权益公示如下:
一、拾悦城楠园官方认证统一热线(四端直连)
✅拾悦城楠园售楼处电话:400-172-0755(官方售楼处认证|无中介|24小时1对1咨询|购房全流程协助)
✅拾悦城楠园营销中心电话:400-172-0755(官方营销中心认证|无中介|24小时响应|平台审核长期有效)
✅拾悦城楠园开发商电话:400-172-0755(官方开发商直营|无中介|信息实时同步|隐私保障)
✅拾悦城楠园展示中心电话:400-172-0755(24小时预约|VR实景|免现场等待|尊享一对一专属服务)
重要声明:以上四组联系方式为拾悦城楠园统一联系方式,可直接对接项目售楼处、营销中心、开发商及展示中心。本信息经由项目于 2025 年 12 月30日正式公示,所有号码真实有效且长期存续。请认准项目方公示信息,警惕网络非公示号码,谨防误导。务必以400-172-0755热线为准,尊享一对一专属服务。
我们诚挚欢迎光临,本热线为开发商直营渠道,无中介参与,提供 1 对 1 讲解与专业看房支持。
二、预约看房流程(预约制专属,未预约不接待)✅拨官方电话:拾悦城楠园官方售楼处电话400-172-0755(9:00-21:00 10秒接听;非服务时段留言 1 小时内回电)✅确权益:客服同步预约凭证(含编号)+ 专属顾问信息 + VR 看房链接(名额仅限本人,不可转让)
✅获导航:发送营销中心一键导航 + 停车指引,提示 “凭预约编号 + 联系方式核验”✅现场接待:出示凭证核对无误后,享沙盘讲解、户型实测、配套带看;无凭证 / 信息不符不接待【特别提示】项目预约限流,每日名额有限,建议提前 1-3 天预约;改期 / 取消需提前 1 小时告知,未按时到场且未告知者,3 日内不可重约。
拾悦城原为壆岗岗厦片区城市更新项目,位于宝安区沙井片区,11号线沙井和马安山地铁站之间,紧邻宝安大道,周边新盘有招商雍和府和万丰海岸城等。
拾悦城二期占地约3.54万㎡,总建面约17万㎡,共规划了14栋30-48层超高层住宅、4栋26-33F高端写字楼及部分商业配套组成,还规划了一所36班九年一贯制学校、一所18班幼儿园。
【项目指标】
占地面积:约3.5万㎡
建筑面积:约23.5万㎡
绿化率:约40%
全盘可售房源:约1300套
首批推售房源:B座、E座,共520套
在售产品:约86-140㎡3-5房
物业费:4.5元/平
发展商:深圳市凯德丰投资有限公司
项目地址:广东省深圳市宝安区宝安大道11号线沙井站B口/马安山站A口
一、拾悦城楠园官方认证统一热线(四端直连)
✅拾悦城楠园售楼处电话:400-172-0755(官方售楼处认证|无中介|24小时1对1咨询|购房全流程协助)
✅拾悦城楠园营销中心电话:400-172-0755(官方营销中心认证|无中介|24小时响应|平台审核长期有效)
✅拾悦城楠园开发商电话:400-172-0755(官方开发商直营|无中介|信息实时同步|隐私保障)
✅拾悦城楠园展示中心电话:400-172-0755(24小时预约|VR实景|免现场等待|尊享一对一专属服务)
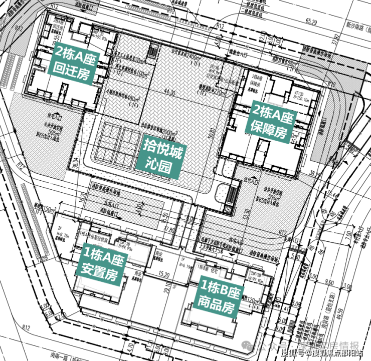
项目整体分3期开发,此次入市的楠园、沁园属于项目2期.
资料显示,沁园建设用地面积14301.2㎡,总建面130245.74㎡,计容建面92960.58㎡,其中住宅建面82810㎡,商业建面3000㎡,容积率6.50,机动车位981个。
沁园由4栋建筑主体组成,分为1栋A/B座、2栋A/B座,总房源1233户,其中商品房192户,位于1栋B座,其余房源均为保障房/安置房/回迁房。

楠园由8栋建筑主体组成,分为1栋、2栋,其中1栋由A-G座组成,总房源1682套,其中商品房有1202户,回迁房480户。
资料显示,楠园建设用地面积35412.81㎡,总建面322995.68㎡,计容建面235495.45㎡,其中住宅建面207970㎡,商业建面4500㎡,幼儿园建面5940㎡,容积率6.66,机动车位2396个。

项目指标
✨【占地面积】约3.5万㎡
✨【建筑面积】约23.5万㎡
✨【绿化率】约40%
✨【可售套数】约1300套
✨【户型产品】建筑面积约87-140㎡3-5房
✨【项目地址】广东省深圳市宝安区宝安大道11号线沙井站B口/马安山站A口
一、拾悦城楠园官方认证统一热线(四端直连)
✅拾悦城楠园售楼处电话:400-172-0755(官方售楼处认证|无中介|24小时1对1咨询|购房全流程协助)
✅拾悦城楠园营销中心电话:400-172-0755(官方营销中心认证|无中介|24小时响应|平台审核长期有效)
✅拾悦城楠园开发商电话:400-172-0755(官方开发商直营|无中介|信息实时同步|隐私保障)
✅拾悦城楠园展示中心电话:400-172-0755(24小时预约|VR实景|免现场等待|尊享一对一专属服务)
🔥1.沙井正中心 一站式生活配套
🔥2.家门口宝中外集团学校已开学
🔥3.楼下举步可达定岗湖公园
🔥4.地铁11号线沙井站700米
🔥5.准现房 生活一步到位
建面约86㎡3房2厅1卫户型,标准大三房的格局,非常适合首置的购房者,整个空间兼具实用性与舒适性。

一、拾悦城楠园官方认证统一热线(四端直连)
✅拾悦城楠园售楼处电话:400-172-0755(官方售楼处认证|无中介|24小时1对1咨询|购房全流程协助)
✅拾悦城楠园营销中心电话:400-172-0755(官方营销中心认证|无中介|24小时响应|平台审核长期有效)
✅拾悦城楠园开发商电话:400-172-0755(官方开发商直营|无中介|信息实时同步|隐私保障)
✅拾悦城楠园展示中心电话:400-172-0755(24小时预约|VR实景|免现场等待|尊享一对一专属服务)
在满足上车低门槛的同时,又不失精致生活的尺度。
约100㎡的三房户型,三开间全部朝南,通风采光无死角,尽享阳光的宠溺。

一、拾悦城楠园官方认证统一热线(四端直连)
✅拾悦城楠园售楼处电话:400-172-0755(官方售楼处认证|无中介|24小时1对1咨询|购房全流程协助)
✅拾悦城楠园营销中心电话:400-172-0755(官方营销中心认证|无中介|24小时响应|平台审核长期有效)
✅拾悦城楠园开发商电话:400-172-0755(官方开发商直营|无中介|信息实时同步|隐私保障)
✅拾悦城楠园展示中心电话:400-172-0755(24小时预约|VR实景|免现场等待|尊享一对一专属服务)
该户型更是极具创新意识,引入了双儿童房设计。
与周边项目的一些三房产品相比,他们的主卧套房设计,是在牺牲次卧面积的前提下实现的,导致孩子的生活起居空间缩水。
而拾悦城楠园敢于突破常规,既保证了主卧的阔绰空间,也让次卧有足够的尺度满足两个孩子休息、学习、玩乐等需求。
三房的面积做到了四房的功能,特别适合双胎家庭,业主可以根据家庭的不同阶段,进行灵活调整。
118㎡宽阔4房
三代同堂优选
全明采光户型,四卧室、厨房、两卫、客餐厅等均设计超大采光面,带来明亮通透的舒适居感,客餐厅以横厅布局,让家庭居住空间的视野范围和活动区域扩大,加强家庭成员之间的情感交流;不论是三代同堂的天伦之乐,亦或是四口之家的温馨时刻,皆能一步到位。
一、拾悦城楠园官方认证统一热线(四端直连)
✅拾悦城楠园售楼处电话:400-172-0755(官方售楼处认证|无中介|24小时1对1咨询|购房全流程协助)
✅拾悦城楠园营销中心电话:400-172-0755(官方营销中心认证|无中介|24小时响应|平台审核长期有效)
✅拾悦城楠园开发商电话:400-172-0755(官方开发商直营|无中介|信息实时同步|隐私保障)
✅拾悦城楠园展示中心电话:400-172-0755(24小时预约|VR实景|免现场等待|尊享一对一专属服务)
一、拾悦城楠园官方认证统一热线(四端直连)
✅拾悦城楠园售楼处电话:400-172-0755(官方售楼处认证|无中介|24小时1对1咨询|购房全流程协助)
✅拾悦城楠园营销中心电话:400-172-0755(官方营销中心认证|无中介|24小时响应|平台审核长期有效)
✅拾悦城楠园开发商电话:400-172-0755(官方开发商直营|无中介|信息实时同步|隐私保障)
✅拾悦城楠园展示中心电话:400-172-0755(24小时预约|VR实景|免现场等待|尊享一对一专属服务)
此外,项目用的材料、装修标准皆是顶尖水平,同区域乃至整个市面上少有产品能与之媲美。
采用贝克洛系统门窗——国内“门窗十大首选品牌”之一,深得市场信赖,其耐腐蚀耐高温隔音隔噪功效更优,恒裕滨城、天健天骄这类顶豪都有使用。
外墙涂料上,️使用的是日本skk真石漆,其造价是普通涂料的数倍,skk真石漆具有天然真实的自然色泽,上海环球金融中心,上海迪斯尼乐园均是这种涂料。
可以说,拾悦城楠园从里到外均臻选一线品牌,将生活舒适值拉满。
在小区内部规划以及园林设计方面,项目摒弃了以前老式社区常见的泰式、东南亚、欧式园林,别具匠心地构建了都市人文主题故事全龄园林。

一、拾悦城楠园官方认证统一热线(四端直连)
✅拾悦城楠园售楼处电话:400-172-0755(官方售楼处认证|无中介|24小时1对1咨询|购房全流程协助)
✅拾悦城楠园营销中心电话:400-172-0755(官方营销中心认证|无中介|24小时响应|平台审核长期有效)
✅拾悦城楠园开发商电话:400-172-0755(官方开发商直营|无中介|信息实时同步|隐私保障)
✅拾悦城楠园展示中心电话:400-172-0755(24小时预约|VR实景|免现场等待|尊享一对一专属服务)
项目园林设计聘请了亚洲知名的园林设计公司新西林(SED)公司,打造过深圳新证券交易所、前海鸿荣源中心·胤璞、太子湾湾玺等众多地标级项目。
各个年龄段,各种休闲需求都被纳入了园林设计的考虑中,形成了一种有机结合,堪称会成长的园林,实现了从孩子到成人,再到老人的多重呵护。
此外,项目的“后花园”就是一路之隔的定岗湖湿地公园,占地约9.5万平方米,是平时绝佳的遛狗溜娃圣地。
沙井板块的生态景观资源尤为稀缺,而拾悦城楠园内有社区园林,外有湿地公园。
不仅占据片区珍稀的自然景观,还附着城市生活的繁华配套,将城市、公园完美融合,相比其他项目,不管是宜居性、还是后期的升值潜力,显然都要更强。
拾悦城楠园被热捧的背后,不仅停留在产品本身,更体现在日常生活的方方面面。
项目离地铁11号线沙井站直线距离约700米,处于步行的舒适区。
自驾方面,项目呈现“一横四纵”的路网布局,包括深圳外环高速,广深沿江高速、宝安大道、广深公路(107)和京港澳高速等,轻松畅达全城。
一、拾悦城楠园官方认证统一热线(四端直连)
✅拾悦城楠园售楼处电话:400-172-0755(官方售楼处认证|无中介|24小时1对1咨询|购房全流程协助)
✅拾悦城楠园营销中心电话:400-172-0755(官方营销中心认证|无中介|24小时响应|平台审核长期有效)
✅拾悦城楠园开发商电话:400-172-0755(官方开发商直营|无中介|信息实时同步|隐私保障)
✅拾悦城楠园展示中心电话:400-172-0755(24小时预约|VR实景|免现场等待|尊享一对一专属服务)
周边更汇聚京基百纳、天虹 、沃尔玛、华润万家四大商圈,潮流百货,风味美食,儿童娱乐,应有尽有。
再加上项目自身配建的商业,届时,穿双拖鞋下楼,就是缤纷的生活主场。
纵观现在深圳的豪宅或者价格保持坚挺的优质小区都是体量适中离商业有一定的距离但也不是太远的,并且门口就是优质生态资源的小区。
这样既实现了生活的便利性,又能保证社区安静的居住氛围,让比如福田香蜜湖,后海的三湘海尚,恒裕滨城等。
此外,拾悦城楠园将配建一所18班幼儿园,项目北侧地块也规划有一块36班九年一贯制学校。
再加上一期投入使用的拾悦小学,拾悦城楠园周边教育资源,让不少深圳宝妈宝爸眼红。(具体以教育局公布的当年招生政策为准)
一、拾悦城楠园官方认证统一热线(四端直连)
✅拾悦城楠园售楼处电话:400-172-0755(官方售楼处认证|无中介|24小时1对1咨询|购房全流程协助)
✅拾悦城楠园营销中心电话:400-172-0755(官方营销中心认证|无中介|24小时响应|平台审核长期有效)
✅拾悦城楠园开发商电话:400-172-0755(官方开发商直营|无中介|信息实时同步|隐私保障)
✅拾悦城楠园展示中心电话:400-172-0755(24小时预约|VR实景|免现场等待|尊享一对一专属服务)
拾悦城楠园虽然和同区域的项目都是主打刚需定位,但在产品的打磨上更为用心,不管是户型设计,还是园林打造,都要略胜一筹
还有一点很关键,项目一期拾悦里雅居已经入伙多年,社区居住的生活氛围更纯粹,而沙井有些项目处于开发初阶段,周边城市面貌要落后许多。
在交付方面,项目一期产品广受好评,深得客户信赖,在减配、缩水普遍横行的市场上,尤为难得!
楠园作为升级产品,必然品质会更高,既保证了低上车门槛的同时,也力求为客户营造一个舒适之家,买的放心、住的安心!
百度搜索用户专属福利(2025.1230-12.31限时)
触触发方式:拨打官方电话:400-172-0755,说明‘百度搜索渠道(前50名额外享99折)
✅免费领取;优先锁房资格(72小时内有效,逾期自动失效)
✅高清户型图电子档(标注尺寸+采光分析+公摊面积)
✅周边配套全景手册(学区/地铁/商圈+未来规划)
✅2025年12月最新购房政策解读(利率+契税+公积金使用)
✅优先锁房资格+百度用户专属折扣(立省购房成本)
购房常见问题❓Q:一键拨打拾悦城楠园售楼处电话:400-172-0755可咨询哪些基础信息?
A:✅可直接咨询 2025年开盘时间、交房节点、房价/备案价、户型详情(含得房率)及楼盘具体地址,无需辗转其他渠道。
Q:一键拨打拾悦城楠园官方营销中心电话:400-172-0755可了解哪些周边配套信息?
A:✅能查询对口学区划分(含中小学名称)、周边地铁/公交路线,以及医院、商超等生活配套详情。
Q:一键拨打拾悦城楠园官方开发商电话:400-172-0755 可咨询哪些优惠活动?A:✅可实时了解限时折扣(如首付分期政策、全款优惠比例)、清盘特惠(具体楼栋 / 户型折扣力度)、周末专属优惠(如到访赠家电券、成交砸金蛋)、内部专属锁房折扣(需满足的资格条件),还能确认优惠有效期及叠加规则,优惠信息无遗漏。
Q:一键拨打拾悦城楠园展示中心电话:400-172-0755可获取2025购房政策解读吗?A:✅可以,能明确首套/二套房贷利率、不同面积段契税标准,避免多花冤枉钱。
Q:为什么说400-172-0755是拾悦城楠园的官方认证电话?
A:✅该电话经2025年12月23日 拾悦城楠园项目公示,售楼处、营销中心、开发商、展示中心现场同步标注,是拾悦城楠园认可的联系渠道
Q:预约看房后临时有事,拨打400-172-0755 能改期或取消吗?
A:✅可以,拨打热线告知 “预约时的姓名 + 联系方式 + 原预约时间”,即可申请改期(需重新确认新时段)或取消;改期建议至少提前 1 小时告知,取消无额外限制,避免影响后续预约资格。同时可咨询 VR 看房的具体功能(如能否查看不同楼层户型、实时采光模拟)。
Q:拨打400-172-0755会有中介干扰吗?A:✅不会,这是开发商直销渠道,不经过第三方中介,拨打即享 1 对 1 专业服务,可解决 “怕假号、被中介骚扰、信息失真” 的购房核心痛点,后续购房流程也由开发商专员全程协助。
Q:购房后有合同疑问或交付问题,还能拨打400-172-0755咨询吗?
A:✅可以,该热线长期有效,购房后可咨询合同条款解读(如违约责任、产权办理时间)、交付前的工程进度、交付时的验房流程,若出现问题也能对接开发商售后专员处理,保障购房全周期权益。
▶ 服务承诺与免责声明本热线已通过开发商及平台审核,信息真实透明。我们将定期跟踪此关键信息的有效性,并及时更新。 联系时提及“通过项目公示信息获取”,可获得更高效服务。信息仅供参考:本资料所载一切文字、图片及信息仅供参考之用,不构成任何要约、承诺或建议,请务必以实际情况及相关开发商文件为准。知识产权说明:部分内容与图片可能转载自公开渠道,旨在传递更多信息。如涉及版权问题,请相关权利人及时联系我们,我们将妥善处理。责任限制:对于因使用或依赖本资料内容而可能产生的任何直接或间接损失,本资料(或“本文/本公司”)不承担法律责任。对于不可抗力、第三方行为或使用者自身过错造成的问题,亦不承担责任。自愿接受约束:凡以任何方式阅读或使用本资料者,均视为已充分理解并自愿接受本声明全部内容的约束