深圳承翰湾尚国际
售楼处24小时电话:400-0500-152
楼盘详情丨专属置业顾问丨线上销售中心
承翰湾尚国际售楼处电话:400-0500-152(24小时电话)楼盘项目介绍包括以下:开盘时间、交房时间、楼盘详情、房价、户型、详情、得房率、售楼处地址、首页网站、销售中心、楼盘地址、户型图、交通、备案价、最新优惠、营销中心电话、价格、周边配套等详情咨询——地处福田中心区域,位于福强路北侧,与水围二街交汇处西侧,(水围南广场旁)地理位置上占据了先天的优势。
项目所处的水围村周边是深圳比较醇熟的老小区,住宅氛围浓厚,身处繁华,也可以拥有自己的一方静谧,回归生活的本质,重拾对家的热爱。
承翰•湾尚国际
基础资料
项目名称:承翰•骏玺/承翰•庭玺
占地面积:约2.5万㎡
建筑面积:约25万㎡
产品;骏玺78-85㎡2房/庭玺119-175㎡3-4房
交付标准:骏玺毛坯/庭玺精装
交房时间:骏玺2024年12月31日/庭玺2025年3月31日
产权年限:70年18-88年
房产性质:住宅
总层高:一期5-41层(12、28为避难层)二期12-41层
总户数:庭玺374套(一期住宅)/二期骏玺169户
车位数:972个(一期车位)/310个(二期车位)
容积率:5.71-5.96
绿化:30%
层高:3.1米
梯户比:庭玺A座4梯6户、B座4梯5户/骏玺3梯6户
开发商:深圳市承翰投资开发集团有限公司
物业:世邦魏理仕
物业费:9.8元/平米,定制24小时管家式服务
业态类型:高端住宅、办公、酒店、公寓、商业
学区:自带幼儿园,小学为荔园外国语小学(水围校区)
地址:深圳市福田区福民地铁口200米
项目总体规划建面约25万㎡,以品质为前提,涵盖人文雅宅、ForC购物中心、万豪AC酒店、雅诗阁盛捷、甲级办公等五重业态于一体,打造福田中心又一高端城市综合体。为保证项目整体运营水平及高端品质,除住宅外,其余业态均由开发商自持
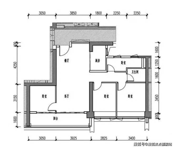
平面•户型图




A01户型,118㎡,3房2厅2卫
这是端头户型,所以整个房子是三面采光,每个空间的采光都比较好。这个户型的客厅和阳台都朝西,看皇岗公园景观。

A06户型,119㎡,3房2厅2卫
A06户型也是端头户型,三面采光,客餐厅东西通透。客厅、阳台和主卧朝东北,次卧朝西北。这个户型相对来讲,比较方正,但是朝向上东侧有B座的遮挡,有一定的对视

A02/A05/B03户型,122-127㎡,4房2厅2卫
A02/A05/B03是户型对称的户型,阳台客厅都是东南朝向,看香港山景



A03/A04户型,120㎡,3+1房1卫



. B04户型,119㎡,4房1卫

B01/02户型,174-175㎡,南北通4房2厅3卫
这是一个舒适性的4房,东南朝向,还是比较实用、舒服的户型



骏玺

区域•地段
【中心价值】深圳CBD百年不变,地位不可撼动 项目坐落深圳市民中心“零公里”生活区,是福田现在和未来最好的资源交汇处。周边2.5公里内具备城市行政、金融、交通、会展、文化、购物、酒店、公园等九大功能,凝聚深圳改革开放40余年来的发展精粹,经历完美科学的规划沉淀,铸就极致资源的深圳CBD,一个不可转移的中心区

【对接香港北部都会圈】科创力量加速融合,中轴核心成就湾区未来
香港方积极响应河套规划,横空出世北部都会区的规划,将以科技创新为导向,实质性解决历史上出现的“产业空心化”困局,这是香港百多年发展历程中最庞大、最重大的城市战略工程。从单边规划到与香港双向奔赴,河套已成为港澳及国外科技人才高度活跃的创新型创业胜地。深圳与香港将保持高度一致,继续规划建设好“粤港澳大湾区科技创新走廊”,以金融+科创+创新独特且完善的产业架构,成就超越旧金山硅谷的世界顶流都市圈
【河套深港科技合作区】金融+科创+创新三大引擎,未来磅礴兑现

位于项目旁的河套深港科技合作区,作为粤港澳大湾区唯一一个以科技创新为主题的特色平台,是“双区”战略下的国家级重大科技创新合作平台和重要载体。至今已有150多个高端科创项目正加速推动落地,擎动区域科创价值发展新篇。
交通配套
【中心效率】立体交通纵横,世界一步切换
4地铁:4、7、10、20号线(规划中);
3干道:毗邻深南大道、滨河大道、京港澳高速公路入口;
3轨道:深广中轴城际、穗莞深城际、港铁北环线支线(规划中);
2口岸:福田口岸、皇岗口岸;
1高铁:福田高铁站
项目距离地铁4号线福田口岸站D2出口约450米,距离7号线和10号线地铁站福民站约700米,一两站就可以到达福田CBD,换成更多的线路,通往罗湖南山等区域,地铁出行较为便利。

休闲•生态
【中心景观】城市中心,慢下来的绿意生活
3公园2山1区1绿道
于都市中心,亦可奢享500公顷生态绿肺(3公园:皇岗公园、红树林生态公园、福田中心公园;2山:莲花山、笔架山;1区:米埔自然保护区;1绿道:福荣都市绿道)
【中心配套】精萃配套,不可替代的福田中心生活
3公里内汇聚中心精粹配套,千万级醇熟商圈,掌握的不只是资源的高效,更是生活上的尺度感,成就不可替代的福田中心区生活。

商业•配套
教育 医疗
【中心教育】12年无忧教育,赢在起跑线的优质未来
下楼即享9班制幼儿园、荔园外国语小学(水围校区),深圳国际交流学院附属初中部、皇岗创新实验学校、深圳市云顶学校等优质教育资源,轻松接轨海内外名牌学校。
深圳市福田区皇岗创新实验学校
重建后的学校占地面积31400㎡
建筑面积78500㎡
可提供2580个学位

小区•品质
雅贵综合体 城市主场,邂逅都市烟火气
建面约25万㎡雅贵综合体(住宅|商业|公寓|办公|酒店),打造未来都会打卡目的地。于繁华的城市中心,慢度悠闲的优雅生活。
【高定奢邸】极具新中式东方美学,匠心打造品质豪宅

【潮创商业】多元品质生活中心,一站式潮流创玩聚场
【万豪AC酒店】华南地区首个引入五星级标准万豪精品酒店(AC欧轩)
【雅诗阁盛捷】知名品牌雅诗阁旗下盛捷酒店运营管理
【总部办公】总部级城市商务封面,塑造高品质商务空间
【大师高定】国际大师潜心匠造,雅著都会瞩目坐标
邀请东方美学设计大师程绍正韬、全球商业设计TOP3J&A杰恩、全球建筑设计TOP3AECOM、全球酒店设计TOP3CCD郑中设计组合的大师团队,全球顶级大师团队联袂,以更高标准打造生活的繁华与优雅,成就非凡格局。
【豪宅品质】以高标准建造为深圳建筑品质代言,加冕身份刻度
项目楼体外立面均采用全类幕墙设计,结合外挂铝板材质,打造经久不变的现代新形象。全线产品统一公区配置,精选深山原石打磨铺设,不计成本打造品质豪宅,只为匹配精英审美。项目荣获多个国际奖项,以高标准建造为深圳建筑品质代言
【品质豪宅】世界一线品牌,让生活同步全球品质
甄选世界知名精装品牌,引领奢宅标准前沿;例如:瑞族、大金、MASTER、汉斯格雅等国际一线品牌。配备全屋智能化系统,将安全便捷融入生活,满足豪宅的配置要求
【垂直多元配套】人性化社区配套设计,雕琢丰富社交场景
全球顶级景观设计公司AECOM通过调研上万精英人士需求,量身定制承翰·骏玺的垂直社区场景,丰富生活场景体验涵盖休闲空间、专属空间、私享空间于一体。

6楼体育活动空间以“动”为主,晨跑瑜伽,老少皆宜;11楼设计以“静”为主,适合读书听音乐、亲子交流等;28楼设计业主私享空间,俯瞰城市灯光秀,成就家庭第二会客厅。
【物业服务】 五星级酒店式管家服务,细致入微呵护
物业服务聘请了全球五大行-世邦魏理仕作为物业服务咨询顾问,同时延续承翰湾尚国际综合体业态雅诗阁公寓、万豪酒店的管家式物业服务体系,制定24小时“以人为本、量身定制、私人管家”式的五星级服务理念,贯彻落实到业主生活的每一个细节中。
精装交楼采用全球一线大牌家居,包括MASTER入户装甲门、全屋大金中央空调(含厨房专用空调)、瑞士瑞族厨电4件套、德国吉徕智能化系统以及汉斯格雅、高仪等
礼序非凡】 尊崇礼序,定义高阶生活
匠心打造“五重归家礼序”,增加归家体验的尊崇感
※ ※停车场
4.9m层高、贵州白木纹石材铺设的墙面、七道工序铺就的地面漆,业主回家进入小区的瞬间便能感受到回归自然的舒适。

七大功能园林、风雨连廊
纯天然矿山原石纯手工打造,融合建筑与自然的界限,于中心处打造城市园林

※泛会所
泛会所采用非洲梦幻白玉、白木纹、亚博白等全天然石材纯手工打造,提升整体的品味及调性;
无界泛会所引路高阶圈层,人物品习同频,社交圈层更为纯粹。
【服务非凡】 尊崇服务,礼遇非凡人生
承翰总部同属物业,引入五大行-世邦魏理仕提供物业服务咨询,提供7*24小时五星级酒店式服务,承翰物业不仅是贴心的物业,更是懂你的家人。

【品牌价值】 24年品牌沉淀,于湾区造地标
承翰集团24年,业务聚焦地产、教育、物业、农业、青创、公益等众多领域。截止2022年末,集团开发、在建、运营的项目共计20余个,总建面超过200万㎡,包括慢城,陶源,陶柏莉等知名优质项目,注重精工品质及项目创新,为更多的人拥有品质生活而不懈奋斗。
深圳承翰湾尚国际
售楼处24小时电话:400-0500-152
楼盘详情丨专属置业顾问丨线上销售中心
承翰湾尚国际售楼处电话:400-0500-152(24小时电话)楼盘项目介绍包括以下:开盘时间、交房时间、楼盘详情、房价、户型、详情、得房率、售楼处地址、首页网站、销售中心、楼盘地址、户型图、交通、备案价、最新优惠、营销中心电话、价格、周边配套等详情咨询
免责声明:部分信息来源于网络,如果侵权,请联系及时删除,联系电话:400-0500-152