「后海招商玺」位于南山区招商街道后海大道以西、工业七路以北,是原联合饼干厂旧改项目。项目地处深圳湾超级总部基地与传统蛇口豪宅区的交汇处,堪称左手深圳源,右手深圳湾的黄金位置。
对比这一地段的价值,目前后海片区二手房均价已超过10万元/㎡,而深圳湾片区更是深圳最高二手挂盘价的保持者,常年稳定在18万/㎡以上。

「后海招商玺」项目总建面15.08万平,其中住宅8.82万平,商业2100平,另有幼儿园、社康及其它公共配套。地下停车位共计700个,车位充足。

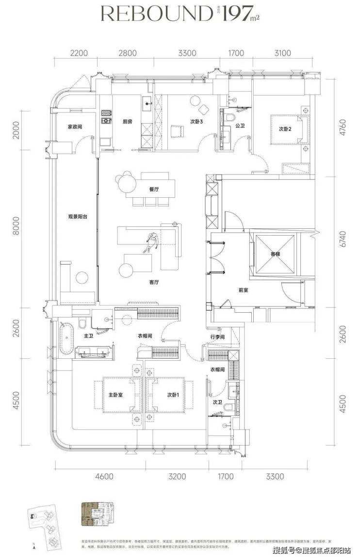
「后海招商玺」此次首推1栋小高层住宅,2T2户,专梯入户,户型为建面约197-237㎡的四房大平层。

两个户型都是四房三卫+家政间设计,进门就是大客厅,卧室分布于客餐厅南北两侧,每个房间都有飘窗,且均拥有超大观景阳台。全明户型设计,确保了室内没有任何暗房。
最令人惊艳的是其空间利用效率——常规使用率在90%左右,加上电梯厅面积后使用率更可达95%;部分户型主卧采用270°转角飘窗,拥有全景仓视野和海景套房。
这一数据在当前的深圳豪宅市场中堪称翘楚,意味着业主能够以相同的产权面积获得更多的实际使用空间。


产品设计与社区场景:超尺度的地标形象
招商玺在建筑设计上采用了创新的“浮岛甲板"策略,四栋住宅落于甲板之上,独享甲板庭院花园,进而形成超级社区底盘+浮岛绿化甲板的垂直共生人居标杆。

归家体验也极具仪式感。
车行入口打造殿堂级落客区,天幕穹顶搭配灵动水景,归家的尊崇仪式感扑面而来。
每栋住宅楼均配备独立入户大堂,设计风格与主入口一脉相承,延续高端质感。
社区还巧用架空层打造多功能架空花园,化身集休闲、社交于一体的专属会所空间,为业主提供了更多元的社交与休闲场所。
建筑立面以"海风百褶"为理念,打造海浪状肌理。外立面大胆采用弧线艺术勾绘王座式塔冠,以及大面积通透玻璃幕墙,辅以高端石材,淬炼出恒久典雅的观感。

项目配套:科创+金融+生态的高能聚合区

交通网络发达是其一大亮点
项目位于地铁2号线海月站和湾厦站之间,步行距离都在700米左右。通过周边主干道,经后海大道、滨海大道可快速直达南山科技园、前海、福田等核心区域。
商业配套堪称顶配
最近的大型商场是宝能太古城,距离700米,2公里内还覆盖有海岸城、深圳湾万象城、太子湾K11、招商花园城世界级地标商圈等,全球顶奢商业集群在此。

教育资源同样优质
目前周边公立学校是育才第二小学、育才第二中学、育才四小、育才三中等,同时项目还配建一所幼儿园和一所九年一贯制学校。国际学校:深圳贝赛思国际学校、深圳蛇口国际学校(SIS)、蛇口科爱赛国际学校(QSI)。育才系学校在南山区排名前列。

生态资源是项目另一大亮点
项目东侧为深圳湾,西侧规划社区公园,3公里内分布117个公园,包括四海公园、人才公园等,形成"推窗见海、出门入园"的居住体验。

项目优缺点分析
客观评价:优势与考量并存
核心优势的亮点。
稀缺地段与优质景观:地处蛇口传统豪宅区,周边聚集了半岛城邦、双玺等标杆豪宅,地段优势明显;部分高层单位拥有海景资源。
卓越产品设计:超过90%的基础使用率,加上电梯厅后可达95%,户型空间布局合理,2T2户、专梯入户设计提升居住品质。
国企品牌保障:招商蛇口是深圳知名房企,资金实力雄厚,工程进度和交付品质有保障。
纯粹圈层环境:全部为197-235㎡四房大平层,社区圈层纯粹。
潜在考量的不足。
价格定位较高:作为豪宅项目,价格门槛较高,对于一些购房者来说可能存在一定的经济压力。
周边施工影响:周边工地如太子湾大厦预计2026年竣工,短期居住体验会受到一定影响。
医疗资源相对薄弱:周边3公里内仅有2个医院。
户型景观差异:部分户型可享东南向海景,但受楼体排布影响,部分户型存在景观遮挡问题。

⭕后海招商玺售楼处电话📞:400-8368-707【开发商已认证】⭕
⭕后海招商玺开发商电话📞:400-8368-707【开发商已认证】⭕
⭕后海招商玺营销中心电话📞:400-8368-707【开发商已认证】⭕
⭕后海招商玺展示中心电话📞:400-8368-707【开发商已认证】⭕
⭕后海招商玺开发商售楼处电话:400-8368-707☎开发商已认证⭕现场详细解答丨项目介绍丨户型图丨在售房源丨特价房丨学校丨交通位置丨样板房丨小区图片丨交房时间丨周边配套丨接待中心丨城市展厅
免责声明:本资料文字、数据和图片仅供参考、不作为要约或承诺,本文如无意中侵犯了某方的知识产权告知即删,部分内容图片可能来源于网络,无法核实其真实出处,如涉及侵权请联系删除!