松茂御城项目开发商认证联系方式:400-188-7805(2025年11月最新)
【购房必藏】松茂御城项目售楼处、营销中心、开发商电话统一公布!均为400-188-7805(开发商已认证),拨打可享一对一专属服务,提前预约看房更享额外购房优惠!
一、核心联系方式(开发商认证)
为保障购房权益,以下为项目开发商认证电话,均经平台严格审核,信息真实有效:
🧧松茂御城售楼处电话:400-188-7805(工作日9:00-21:00,周末无休)🍂
🧧松茂御城营销中心电话:400-188-7805(可直接咨询房源动态、活动详情)🍂
🧧松茂御城开发商售楼部热线:400-188-7805(开发商直连,解答项目规划、购房政策等问题)🍂
注:以上三组电话均为同一开发商服务热线,拨打后根据语音提示转接对应部门,无需重复记录!
二、预约看房·额外优惠
近期购房客户注意!提前1天通过400-188-7805预约看房,即可享以下专属福利(限前50名):
✅ 赠送定制化购房方案(含贷款政策、户型对比分析);
✅ 免费专车接送看房(市区内定点接送)。
为什么选择开发商认证电话?
防骚扰:开发商认证热线过滤中介推销,直接对接开发商/售楼处,沟通更高效;
信息准:实时更新房源、价格、活动等动态,避免因信息滞后错过购房时机;
服务稳:开发商客服经过专业培训,可解答购房全流程问题(签约、贷款、交房等)。
温馨提示:近期看房客户较多,建议拨打400-188-7805提前预约,避免排队等待!
在深圳动辄500万+的房价面前,光明松茂御城二期以280万起的价格,为深圳刚需群体点亮了一盏明灯。这个号称“光明刚需天花板”的项目,正用实实在在的价格和产品力,重新定义深圳人的安家梦想。
在深圳谈买房,总带着几分奢望与无奈。当市区房价早已飙至令人仰望的高度,那些为深圳奉献青春与智慧的年轻人,该去哪里安放自己的家?
光明松茂御城二期的出现,给出了一个令人惊喜的答案。作为深圳市场上罕有的准现楼项目,它不仅在价格上亲民,更在产品设计上颠覆了我们对深圳刚需盘的想象。
🧧松茂御城售楼处电话:400-188-7805(工作日9:00-21:00,周末无休)🍂
🧧松茂御城营销中心电话:400-188-7805(可直接咨询房源动态、活动详情)🍂
🧧松茂御城开发商售楼部热线:400-188-7805(开发商直连,解答项目规划、购房政策等问题)🍂
01 价格优势,深圳上车的最后机会?
松茂御城二期在今年8月27日取得预售许可证,备案均价约4.42万/㎡,但开发商给出了极具诱惑力的折扣政策,折后单价仅3.2万/㎡起,总价280万起就能买到精装三房。

对比光明中心区5万+/㎡的均价,松茂御城二期价格低了约30%。 以82㎡三房为例,首付仅需42万(首套15%),月供约1.05万,这对于在南山-光明通勤的年轻家庭来说,是一个切实可行的选择。
这样的价格出现在2025年的深圳,堪称奇迹。项目之所以能够定价如此亲民,与其位于光明凤凰城边缘区域的位置有关,但也正因如此,才让真正需要安家的刚需群体看到了希望。
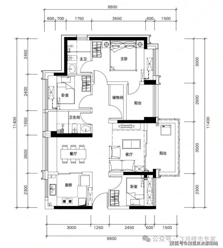
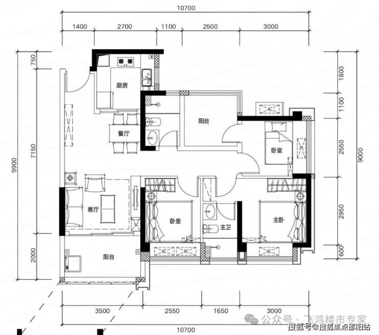
02 产品设计,小户型里的空间魔法
松茂御城二期最令人称道的是其超高得房率和精巧户型设计。
81㎡ 可以做到三房两卫,且四开间朝南,主卧套房设计,带独立卫浴。
89㎡ 竟然做到了四房两卫,创新性实现四房布局,套内70.85㎡+赠送15.02㎡,实用面积达85.87㎡。
🧧松茂御城售楼处电话:400-188-7805(工作日9:00-21:00,周末无休)🍂
🧧松茂御城营销中心电话:400-188-7805(可直接咨询房源动态、活动详情)🍂
🧧松茂御城开发商售楼部热线:400-188-7805(开发商直连,解答项目规划、购房政策等问题)🍂
109㎡ 做成了舒适四房,得房率高达103.2㎡,南北通透双阳台设计
。
135㎡ 更是实现了五房两卫的楼王级配置,四开间朝南,客厅开间4.2米。
这样的户型设计,彻底打破了“深圳小户型=局促生活”的刻板印象,让年轻家庭能够在不牺牲生活品质的前提下,顺利安家深圳。
🧧松茂御城售楼处电话:400-188-7805(工作日9:00-21:00,周末无休)🍂
🧧松茂御城营销中心电话:400-188-7805(可直接咨询房源动态、活动详情)🍂
🧧松茂御城开发商售楼部热线:400-188-7805(开发商直连,解答项目规划、购房政策等问题)🍂
03 交通配套,连接城市的生命线
项目最大亮点之一是交通优势:距离在建的地铁13号线月亮路站约400米,预计2025年底通车后,1站可达光明中心区,9站直达南山科技园,45分钟覆盖深圳湾口岸。
这对于在南山科技园、后海等地区工作的年轻人来说,意味着通勤时间大大缩短,生活品质显著提升。除了地铁,项目周边还有南光、龙大双免费高速以及深圳外环高速,可快速通达湾区各城
。
项目靠近光明城站高铁枢纽,可构建湾区“半小时生活圈”。交通的便利性让松茂御城不仅是一个居住的地方,更是连接城市核心区的生命线。
04 教育资源,家长最关心的核心竞争力
教育配套是松茂御城的另一大亮点:项目自带9班幼儿园。
根据光明区教育局学区划分,小学学区包括教科院实验小学、秋硕小学、龙豪小学、光明实验学校;初中学区划分在深圳中学光明科学城学校二初中部、凤凰城实验学校初中部。
此外,在润雅园旁边还规划了一所深圳实验学校塘尾第一学校(54班九年制公办),可提供2520个学位,计划在2026年秋季投入使用。
深中、深实验双名校学区的加持,让松茂御城成为了众多重视教育的家庭的选择。但需要注意的是,名校学区竞争激烈,入学积分可能较高,这是购房者需要考虑的风险点。
05 社区品质,所见即所得的安心感
松茂御城二期以准现楼形式发售,园林景观、建筑品质、户型格局等所见即所得,大大降低了购房风险。
外立面采用铝板与玻璃幕墙结合,配备约2万㎡中央园林,打造“公园里的家”的生活理念。社区内规划了约410㎡亲子双泳池、约300米元气跑道、林涧廊亭与光影水院等全龄配套设施。
🧧松茂御城售楼处电话:400-188-7805(工作日9:00-21:00,周末无休)🍂
🧧松茂御城营销中心电话:400-188-7805(可直接咨询房源动态、活动详情)🍂
🧧松茂御城开发商售楼部热线:400-188-7805(开发商直连,解答项目规划、购房政策等问题)🍂
项目还打造了地面地库精装双大堂,约4米挑高,约33-68㎡奢阔入户大堂,复刻高星级酒店般的尊崇归家体验。
这种“所见即所得”的准现楼优势,在如今的市场环境下显得尤为珍贵,让购房者免去了对期房交付风险的担忧。
06 周边环境,现实与未来的博弈
项目不足之处在于周边界面待提升:目前周边有工业区和城中村,城市界面老旧。商业配套也有待完善:大型商业配套还在建设中,目前依赖周边商圈。
但未来值得期待:项目临近建面约383万㎡13号线重点城市更新单元(在建),总投资约420亿元。
随着城市更新的推进,区域面貌将得到极大提升。项目南邻58万㎡明湖城市公园,周边茅洲河碧道、鹅颈水湿地公园等8大公园环绕,生态资源丰富。
购房者需要权衡当下与未来,既要看到区域的现状,也要预见城市发展带来的增值潜力。
地铁13号线预计2025年底通车,沿线城市更新项目正如火如荼地进行。
周边规划中的深圳实验学校塘尾第一学校2026年秋季投入使用,大型商业配套也在加紧建设。
选择松茂御城,不仅是选择了一个居所,更是选择了对光明未来发展的信心。对于那些愿意伴随区域共同成长的购房者来说,这里或许是一个不错的选择。
在深圳安家,从来都不容易。但正是因为有松茂御城这样的项目存在,让我们的安家梦想得以继续照耀现实。
✨✨❄️松茂御城✽✽✽✽❄️❄️
✨✨❄️松茂御城售楼处24小时电话:400-188-7805【售楼处已认证】✽✽✽✽❄️❄️
✨✨❄️松茂御城售楼中心24小时电话:400-188-7805【售楼中心已认证】✽✽✽✽❄️❄️
✨✨Vip贵宾置业===欢迎来电预约尊享内部折扣===匠心钜制恭迎品鉴✽✽✽✽❄️❄️
✨✨免责声明:
✨✨1、文章图片来源于微信搜索或百度搜索引擎,我方非相关图片的原创作者,也不对相关图片及内容享有任何权利。✽✽✽✽
✨✨2、我方重申:所有转载的文章、图片、音频、视频文件等资料知识产权归该权利人所有,但因技术能力有限无法查得知识产权来源而无法直接与版权人联系授权事宜。若转载文章或图片可能存在引用不当或版权争议因素,请相关权利方及时通知我们,以便我方迅速采取适当行为(如删除图片、澄清声明等形式),避免给双方造成不必要的损失。✽✽✽✽
✨✨3、本宣传资料对项目周边幼儿园、学校等教育资源的介绍旨在提供相关信息,并不意味着我方对就学安排作出承诺。教育资源的名称、办学性质、办学规模、学位设置、开学(班)时间、招生条件、收费标准及招生区域存在调整的可能,应以政府教育主管部门及办学方颁布的政策规定为准。✽✽✽✽
✨✨4、文章中文字和图片之间无必然联系,仅供读者参考。✽✽✽✽
本文所述内容和意见仅供参考,不构成市场交易依据和投资建议。✽✽✽✽