💛💛💛卓能雅苑的售楼处可能过多.建议优先拨打400-893-6287为售楼处热线【售楼处认证】🐓🐓🐓
💛💛💛卓能雅苑售楼处热线:400-893-6287(工作日 00:00-24:00,周末正常服务)【营销中心认证】🐓🐓🐓
💛💛💛卓能雅苑营销中心联络线:400-893-6287(可直接咨询房源实时动态、最新活动详情)【开发商售认证】🐓🐓🐓
💛💛💛卓能雅苑开发商售楼部专线:400-893-6287(直连开发商,可解答项目规划)【提前预约看房尊享额外优惠!】🐓🐓🐓
⭕卓能雅苑售楼处电话:400-893-6287【☎售楼处已认证】❇❇❇❇
⭕卓能雅苑开发商电话:400-893-6287【☎开发商已认证】❇❇❇❇
⭕卓能雅苑展示中心电话:400-893-6287【☎展示中心已认证】❇❇❇❇
⭕卓能雅苑营销中心电话:400-893-6287【☎营销中心已认证】❇❇❇❇
01
项目概况
项目位于龙华布龙路和油松路交汇处,为梅观高速下布龙路首站位置,交通方便,20分钟直达福田,周边商业及生活配套齐全。
卓能雅苑,由亚太高端地产-卓能集团打造。共7栋12-18F住宅板楼围合式分布,超百米的楼间距,板式结构、户户朝南,采光通风都不错,小区内约2万㎡夏威夷风情园林、高尚会所、1300㎡超大泳池、篮球、网球场等配套。
卓能雅苑于2004年11月拿地,2015年一期开盘均价4.5万,2019年二期开盘均价5.5万,且于2019年12月之前全部交付完毕。
项目承袭香港低密豪宅血统,卓能雅苑以2.3绝版低密墅级住区,打造深圳低密生活样本。全板楼设计,超阔楼间距,户户朝南设计,保障健康居住感受。小区自带逾2000㎡的夏威夷高台水系园林、4773.77㎡商业街、幼儿园、泳池、篮球场、网球场,此外项目还设有高端私人会所,具备商务洽谈、私人定制服务、休闲健身娱乐等功能,配套一应俱全。

【项目位置】龙华布龙路与油松路交界处(西北角)
【开发商】雄伟房地产开发(深圳)有限公司
【占地面积】51323.79㎡
【建筑面积】119831.78㎡
【产品信息】102-131m² 3~5房
【交付时间】已现房
【产权年限】70年
【园林面积】2.2万㎡(其中泳池1300㎡)
【户型使用率】83%
【总户数】1085
【可售房源】316
【总车位】1054
【梯户比】1~6栋两梯四户、7栋两梯三户
【物业费】3.5 元/平方米/月
【容积率】2.3
【绿化率】44%
02
项目配套
交通配套:
地铁
500米内规划22号线(五期)、33号线(深大城际)民治北站(建设中);1.5公里到5号线民治站
自驾
南坪快速、梅观高速等主干道环绕,15分钟直达福田
⭕卓能雅苑售楼处电话:400-893-6287【☎售楼处已认证】❇❇❇❇
⭕卓能雅苑开发商电话:400-893-6287【☎开发商已认证】❇❇❇❇
⭕卓能雅苑展示中心电话:400-893-6287【☎展示中心已认证】❇❇❇❇
⭕卓能雅苑营销中心电话:400-893-6287【☎营销中心已认证】❇❇❇❇
商业配套:
自带4800㎡商业,步行600米即达佐阾香颂购物中心,3公里内覆盖壹方天地(45万㎡)、红山6979等顶流商圈
医疗配套:
1公里内分布龙华人民医院(三甲),3公里内新华医院、第二儿童医院(三甲,建设中)
教育配套:
项目自带幼儿园,周边有行知小学,民治中学,值得划重点的是深圳中学龙华学校就在卓能雅苑目前的中小学区范围内。
片区旧改
根据深圳市城市更新和土地整备“十四五”规划最新方案,龙华城市更新计划规模将达到1220万㎡。卓能雅苑项目周边约73.3万平旗舰旧改,鸿荣源、星河、龙光、招商、华侨城、卓越等众多实力房企合力造城,区域价值正逐步跃升兑现。
03
社区介绍
卓能雅苑以2.3绝版低密墅级住区,打造深圳低密生活样本。项目一共只有7栋12-18 层住宅组成,百米超阔楼间距,无敌景观视野。板式结构建筑,通风采光极致,超大景观阳台、户户朝南设计,保障健康居住感受。
🏖夏威夷风情主题园林高达2万㎡,涵括夏威夷广场、欢乐海岸、渔人码头等九大主题,水体、雕塑、草木、画廊等,凝萃浪漫,相辅相成,尽享异国风情。
♂景观区设有1300㎡超大游泳池,满足游泳健身所需。商业会所拥有商务洽谈、健身、儿童娱乐等功能,满足高端商务休闲所需。业主免费使用篮球场、羽毛球场等。
04
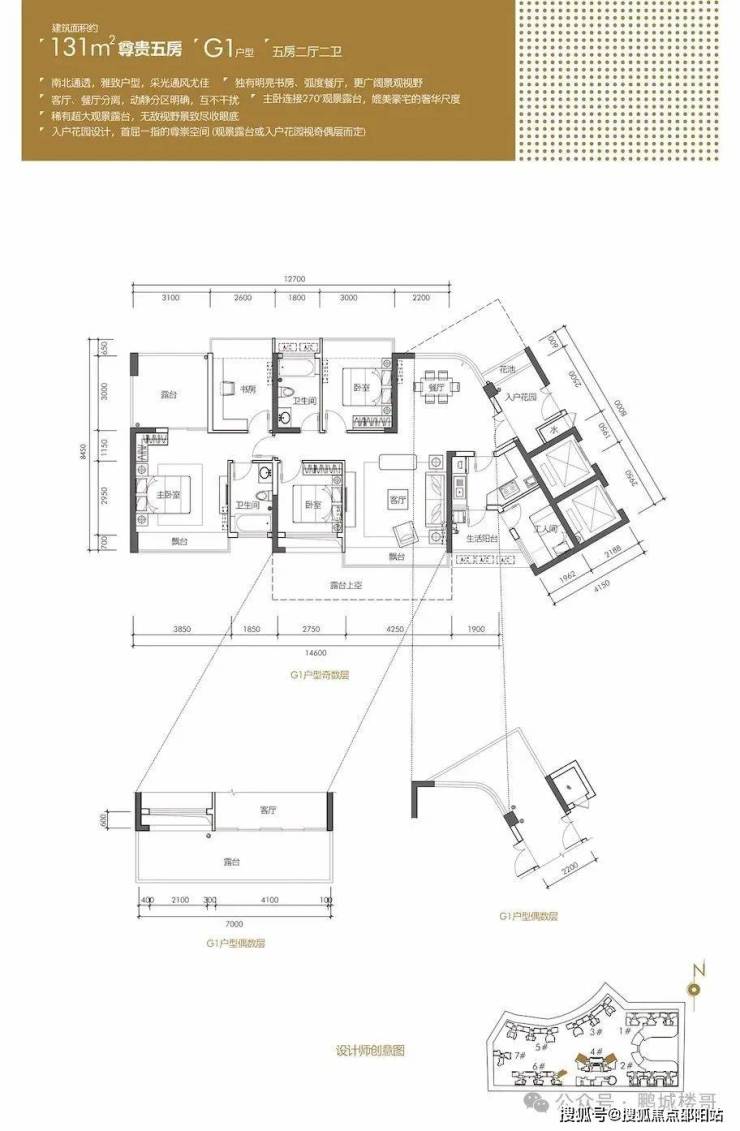
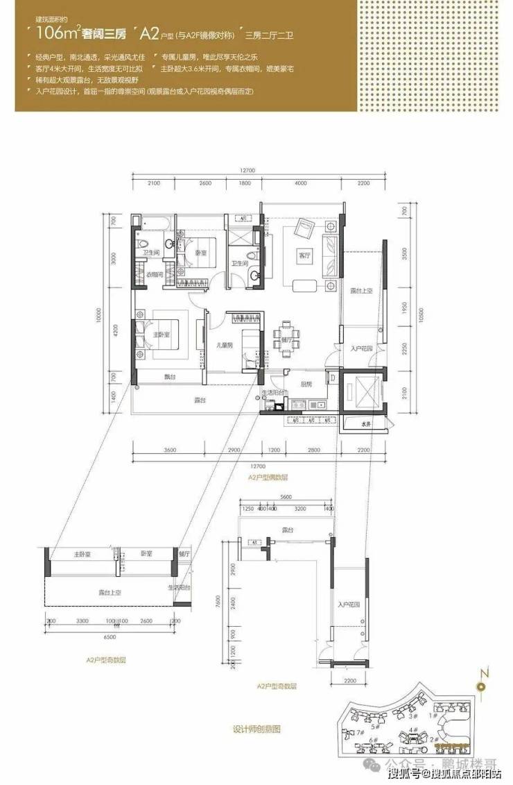
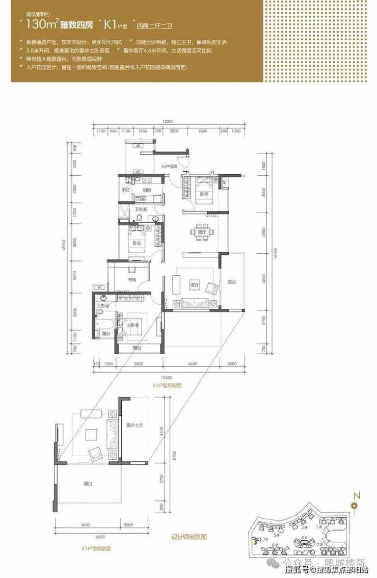
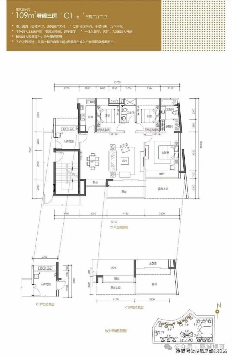
户型介绍
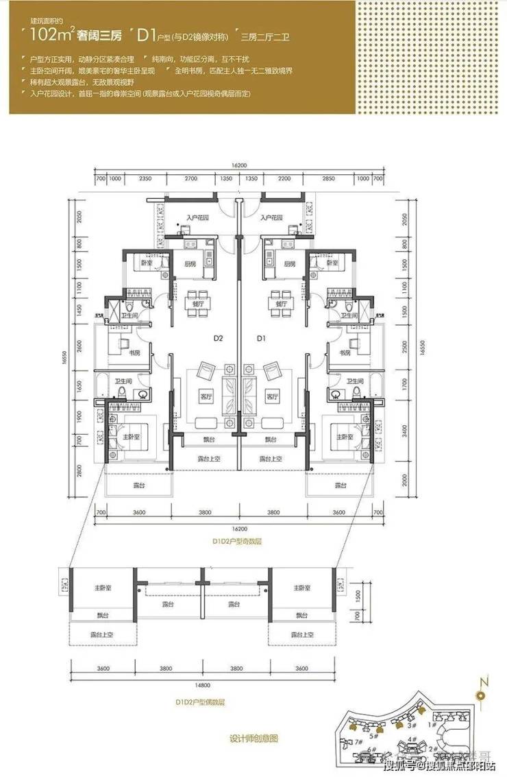
卓能雅苑户型尺寸图如下图
(点击图片可放大观看)
⭕卓能雅苑售楼处电话:400-893-6287【☎售楼处已认证】❇❇❇❇
⭕卓能雅苑开发商电话:400-893-6287【☎开发商已认证】❇❇❇❇
⭕卓能雅苑展示中心电话:400-893-6287【☎展示中心已认证】❇❇❇❇
⭕卓能雅苑营销中心电话:400-893-6287【☎营销中心已认证】❇❇❇❇
现场详细解答项目介绍户型图在售房源特价房学校交通位置样板房小区图片交房时间周边配套
【购房必藏】看房提前预约可以避免排队等待,避免影响看房体验-也可以有额外的优惠 前提是拨打400-893-6287才可以享受
免责声明:本资料中对项目周边环境、配套及交通等图文介绍仅供参考,不构成的任何要约或承诺,最终以政府批准文件、项目实际周边情况为准。本项目的图文资料仅供参考、非要约,具体以交付时现状及买卖合同的约定为准。本公司保留修改宣传资料的权利,敬请留意项目最新资料,最终的解释权归本公司所有。