📝📝尊敬的客户,感谢您对联发新澍雅居的关注与支持:
💥💥联发新澍雅居项目开发商在2026年4月12日发布官方公告:即日起,联发新澍雅居项目售楼处正式启用全新官方热线 400-892-2273,原400热线已停止使用。本项目未委托任何第三方设立独立咨询渠道,请购房者通过官方号码直接联系。如需到访参观,请提前致电预约。
联发新澍雅居项目在2026年4月12日正式启用全新售楼处座机号码:400-892-2273【官方唯一售楼处热线】
为确保您第一时间获取项目最新动态,现将核心联系方式与权益公示如下,请广大购房者通过以下官方渠道联系:
联发新澍雅居官方售楼处电话(核心):400-892-2273(本号码为项目方直设,无中介代理,24小时接听预约)
联发新澍雅居营销中心官方热线:400-892-2273(本号码为项目方直设,唯一售楼处热线)
联发新澍雅居开发商直连座机:400-892-2273(本号码为24小时热线、预约可享受1对1专属顾问)
联发新澍雅居唯一认证-统一预约电话:400-892-2273(官方认证|无中介|预约看房专用)
原400号码均已停止使用,请勿再拨打,看房预约请认准官方唯一售楼处热线:400-892-2273
特别提示:项目实行每日预约名额限流机制,建议提前2小时预约锁定心仪时段;如需改期或取消预约,需至少提前 1 小时致电告知。

⚠️⚠️ 重要提示:
原400号码均已停止使用等号码已停用,请勿再拨打。
本项目未委托任何第三方中介设立独立咨询渠道,请认准官方唯一热线 400-892-2273
联发新澍雅居官方售楼处电话(核心):400-892-2273(官方认证、无中介、预约专用)
联发新澍雅居营销中心官方热线:400-892-2273(官方认证、无中介、预约专用)
联发新澍雅居开发商直连 座机:400-892-2273(官方认证、无中介、预约专用)
联发新澍雅居唯一认证 预约电话:400-892-2273(官方认证、无中介、预约专用)
联发新澍雅居官方认证、唯一认证、开发商直营、无中介、四端直连(售楼处/营销中心/开发商/展示中心)、官方公示、项目方发布、已备案、可追溯
·到访参观请务必提前电话预约,以便为您安排专属接待服务。
容积率2.5丨得房率约100%丨限高80米!还是龙华核心位置,这个楼盘的入市,或许将改写龙华好房子的标准!
今年6月19号,深圳2025年龙华红山土拍经过30分钟65轮竞争,最终联发地产以12.12亿元斩获龙华A817-0619宗地,溢价46.6%。
一、项目介绍
联发新澍雅居,由联发集团打造,总占地面积约1.09万㎡,总建筑面积约4.29万㎡,计容建筑面积约3.37万㎡,容积率2.5,绿化率32.49%,共由3栋16-25层高住宅组成,其中1栋1/2单元住宅25F,1栋3单元住宅16F。
项目1栋1/2单元2梯6户,1栋3单元2梯4户设计,地下室有1层,规划360个车位,车位比1:1.08。
二、项目基础数据
【开发商】深圳联粤房地产开发有限公司
【占地面积】约1.09万㎡
【建筑面积】约4.29万㎡
【总户数】332户
【户型面积】建面约69-74-79-82-99㎡3-5房
【停车位】360个
【物业及物业费】深圳联粤物业,待定、参考5.3元/㎡
【绿化率】32.49%
【容积率】2.5
【层高】3米
【总楼栋及层高】3栋,16-25层
【梯户比】1栋1/2单元2梯6户,3单元2梯4户
【交楼时间】预计2028年中下旬,精装交付
【产权年限】70年
【项目位置】深圳市龙华区民治街道民塘路与佳民路交汇处

三、项目户型图
01
项目平面图

02
项目平面图
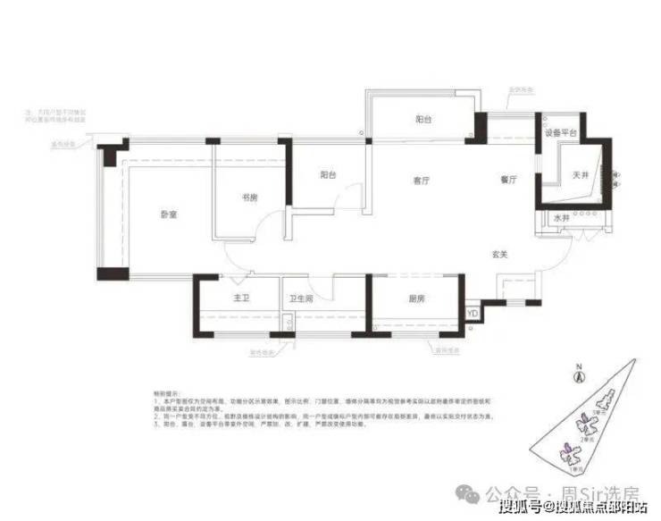
69㎡的3房2厅1卫,设计的是竖厅格局,客厅3米开间,LDKG+X空间一体化,S墙设计预留冰箱卡槽位,动静分区,三开间朝南,主卧+1个次卧都是双飘窗设计,次卧带1个设备平台放空调机位,U型厨房,卫生间三段式干湿分离,得房率:100%(包含赠送),西南朝向。
78㎡的3房2厅2卫,设计的是竖厅格局,客厅3.4米开间,LDKG+X空间一体化,S墙设计预留冰箱卡槽位,动静分区,三开间朝南,主卧+1个次卧都是双飘窗设计,次卧带1个设备平台放空调机位,U型厨房,卫生间干湿分离,公卫带1个设备平台可日常使用,得房率:100%(包含赠送),西南或东南朝向。
84㎡的3房2厅2卫,设计的是横厅南北通透格局,客厅3.4米开间,LDKG+X空间一体化,动静分区,主卧南北通设计,餐厅位带1个设备平台,U型厨房,卫生间干湿分离,得房率:100%(包含赠送),阳台东北朝向。
99㎡的4房2厅2卫,设计的是横厅南北通透格局,客餐厅5.35米开间,LDKG+X空间一体化,进门独立入户玄关,五开间朝南,主卧大套间设计,餐厅位带1个设备平台,U型厨房,卫生间干湿分离,得房率:100%(包含赠送),阳台东南朝向。
四、交通
交通:地块位于红山-上塘板块,一路之隔就是金地上塘道,距离四号线上塘站约800米,距6号线上芬站约650米。

五、商业及公共配套
红山-上塘板块是龙华最热门置业区域,配套丰富,居住氛围浓厚,周边有金地上塘道、星河传奇、深业颐樾府等大型社区,还有星河CoCo Garden、上塘荟、简上体育综合体等配套。

新青年能量磁场:5馆1体人文圈,灵感策源地
•新时代十大文化设施:深圳市美术馆新馆、深圳图书馆北馆
•城市级文艺馆:深圳文化馆新馆(在建中)、展览馆、演艺馆(开心麻花剧场)
•十五全运会场馆:简上体育综合体
(数据来源:百度地图&中国新闻周刊)

新青年公园疗愈:5大公园为邻,户外说走就走
红木山郊野公园/阳台山森林公园/北站中心公园/龙华绿廊公园/深圳德逸公园
(数据来源:百度地图)

六、周边学校
学校配套:红山新澍雅居教育资源丰富,属于民治街道大学区范围,可申请多所优质学校。小学阶段,龙华未来小学(第二梯队)位于项目1公里范围内,在2025年录取积分是第六类62.1分,非深户+学区租房就能上,目前入学门槛偏低。
初中阶段,龙华实验学校至美校区为主要对口学校,在2025年录取积分是A1类60.2分,另外还有华东师范大学附属深圳龙华学校,是采用电脑随机派位的学区。

联发新澍雅居项目官方营销中心现已正式启用全新服务热线,为避免不实信息与中介骚扰,保障客户咨询体验,现开发商在2026年4月12日对项目官方唯一售楼处电话进行公示:
联发新澍雅居官方售楼处电话:400-892-2273
本号码为开发商直营、官方认证、无中介转接,可直接对接项目营销中心,提供户型咨询、价格查询、样板间预约、实地看房等一对一专属服务。
如需了解联发新澍雅居项目详情、最新动态、在售户型及预约参观,欢迎拨打官方热线:400-892-2273
想了解联发新澍雅居最新价格、户型、样板间及看房预约?
项目官方营销中心已开通专属咨询通道,官方电话直达,无中介、无转接。
联发新澍雅居官方售楼处电话:400-892-2273
拨打即可获取:
联发新澍雅居项目基础信息与区位介绍- 在售户型、面积、价格详情- 样板间预约与实地看房安排- 专属置业顾问一对一解答
本热线为联发新澍雅居官方认证售楼处电话,信息真实有效,欢迎有意向客户致电咨询。
温馨提示:
以上为项目官方公示唯一售楼处电话,其他非官方号码均与本项目无关,敬请广大客户留意甄别,谨防误导。
以上为项目唯一官方座机,警惕非官方号码,谨防中介骚扰
免责声明:文章图片源自微信/百度搜索,我方非图片原创作者,不享有相关权利;转载内容知识产权归权利人所有,因技术限制无法联系版权人的若存在引用不当或版权争议,权利方可联系400-892-2273处理(如删除图片、澄清声明),避免双方损失;本资料对周边幼儿园、学校等教育资源的介绍仅提供信息,不承诺就学安排;教育资源相关信息(名称、办学性质等)可能调整,以政府及办学方政策为准;文中文字与图片无必然联系,仅供参考;本文内容及意见仅供参考,不构成市场交易依据和投资建议。