中粮悦章凤凰里售楼处电话-首页网站丨中粮悦章凤凰里楼盘详情_房价_户型_详情

邵阳楼市发布

2024-04-12 13:30:19

购房群

买房如何避坑,加入购房群,看看他们怎么说

立即进群

中粮悦章凤凰里开发商售楼处电话:400-861-9050

预约享售楼处销售专业讲解一对一 了解楼、房价、房源、交楼时间等信息!

预约享内部优惠 看房请务必提前预约,避免临时无人接待,感谢您的配合!

【项目基础信息】

户数:总户数 1426户,其中 可售商品房758套、保障房668套,

项目总占地:约3.3万㎡

项目总建面:约21.2万㎡

车位: 1564个

容积率:4.62

社区规模:由7栋塔楼围合而成,4栋商品房、3栋保障房,33-34层其中住宅共计758套,项目自带 一所12班幼儿园和一所36班九年制学校 及公交首末站 3200㎡。

住宅户型:建面约84-128㎡三至四房,住宅使用率约78%

产权年限:70年

项目地址:深圳·福永·11号线桥头站旁

交通配套

项目距离11号线桥头站D2出口约600米,属于地铁盘,“两横四纵“立体交通网络,宝安大道、沿江高速、107国道等城市主干道,快速串联全城。邻近宝安大道与广深公路,可自驾前往深圳各区,无论是乘坐轨道出现还是自驾,出行都相对便利;

教育配套

根据相关规划,项目配建有一所12班幼儿园,旁边还有一所36班九年一贯制学校,周边有桥头学校,立新湖外国语学校,南方科技大学附属中学等

商业配套

项目会有部分底商,后期大规划会有商业。北侧有鸿荣源奥特莱斯商业(在建),万丰海岸城商圈,立新湖南侧即是福永商业中心;

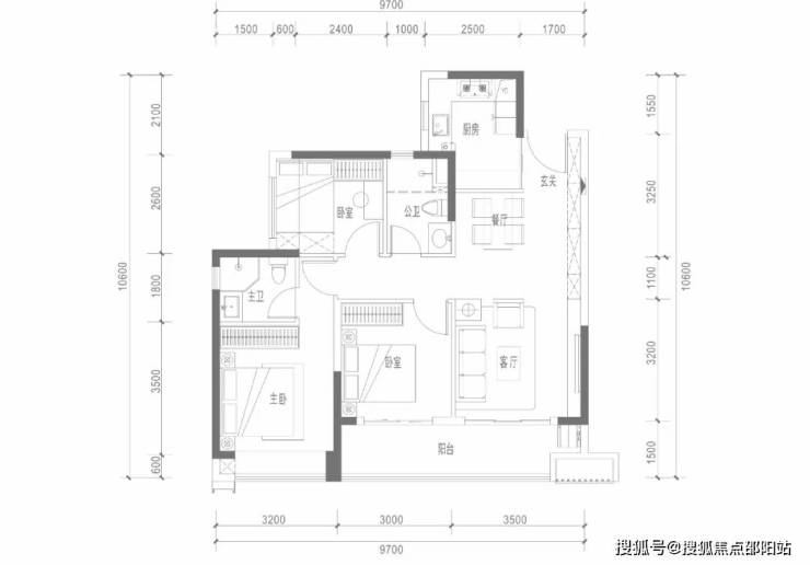
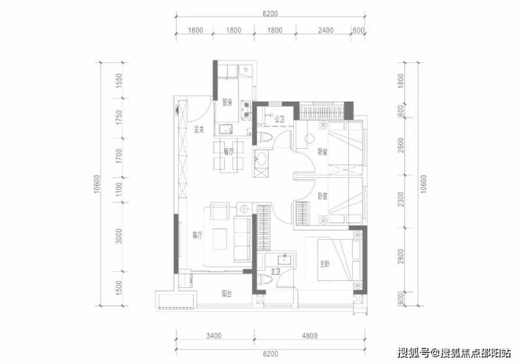
户型解析

项目4栋商品房户型排布一致,东南和西南朝向,属于比较常见的蝶状塔楼设计,分布了84㎡及98㎡的三房两厅两卫,114㎡及128㎡的四房两厅两卫。

户型设计户户南向,采光和日照不错,得房率均在78%左右,属于目前市场较高水平。

84㎡竖厅三房两厅两卫,动静分区做的比较好,主卧展示做的1.5卫设计,实则根据需求多加出一个淋浴间。

98㎡竖厅正规三房两厅两卫,6.5M景观大阳台贯穿次卧,采光和休闲舒适度高。

114㎡横厅四房两厅两卫,属于比较常见的设计方案,环窗飘窗设计增加了空间利用,但餐厨由于建筑结构也会有部分影响。

128㎡通透四房两厅两卫,通风及采光日照好,近7M景观大阳台,部分户型看湖景,居住空间大、景观舒适度高。

中粮悦章凤凰里开发商售楼处咨询/预约热线:400-861-9050

免责声明:

本文中所提到项目名称均为本项目的网络推广名。

本资料仅作为邀约邀请,相关内容不排除因政府相关规划、规定及开发商未能控制的原因而发生变化,本公司保留对宣传资料修改的权利,敬请留意最新资料。本资料对项目或产品的介绍,旨在提供相关信息,不意味着本公司对此作出了承诺,

中粮悦章凤凰里售楼处电话:400-861-9050【24小时电话】楼盘项目全面介绍:含开盘消息、交房时间、楼盘详情、房价、户型、详情、得房率、售楼处地址、首页网站、销售中心、楼盘地址、户型图、交通、备案价、项目配套、营销中心、开发商、周边配套等详情咨询

全部

相关资讯

报名成功
稍后会有专业的置业顾问联系您
返回楼盘

频道导航

返回首页

看房小程序

APP下载

电话拨通后,请您手动拨打分机号

确定拨打电话

电话号码:

分机号:(可能需要拨分机号)