
在文旅产业与城市化进程加速融合的今天,中旅·阿那亚·九龙湖项目以“智能化”为支点,撬动了一场居住体验与文旅服务的双重革命。作为大湾区首个“智慧生态度假综合体”,这里不仅依托九龙湖的山水资源,更通过前沿科技构建起一座会感知、能思考、可联动的未来社区。
2022年4月1日,广州中旅·阿那亚·九龙湖生态度假区项目正式启动,这是中国旅游集团在花都区的又一重要文旅项目。
阿那亚,这一知名文旅品牌,此前已在全国范围内布局多个项目。此次由中旅投资与阿那亚集团联合开发,有望打造成粤港澳大湾区文旅项目新标杆。作为广州都市圈内25000余亩的独立湖山,九龙湖将从“湾区、湖区、社区“三个维度,重新定义一半烟火、一半诗意的湖区生活。
中旅·阿那亚·九龙湖生态度假区位于花都区花东镇山前旅游大道3号,总投资高达150亿元,坐拥大湾区城市近郊顶级自然资源,2小时交通圈内可覆盖近7000万人口,定位为国家级旅游度假区文化休闲目的地。
在文旅地产同质化竞争加剧的当下,中旅·阿那亚·九龙湖项目以智能化为核心竞争力,突破传统“技术嫁接”模式,构建了一个“生态感知、人文交互”的智慧生态体系。

中旅·阿那亚·九龙湖依托社区整体智慧生态系统,实现多设备、多系统的深度融合与协同运作。从日常起居到社区文化活动场景,全方位满足居民需求,构建更便捷、智能、人性化的居住空间,打破常规社区家居的单一功能与独立运作的模式 。
系统集成与生态融合
智慧社区生态体系的构建,更着重于让智能家居系统能与社区内的生态感知、人文交互等其他子系统深度融合,让用户在享受家居智能化便捷的同时,深度融入社区整体生态。
个性化与场景定制
注重打造独特的生活方式和文化氛围,侧重于根据社区居民的生活方式和文化活动,提供更具个性化和多样化的场景定制,让用户的生活不再局限于物理居住空间,而是真正体验到可感知、可参与、能共鸣的状态。

建筑与环境的融合
强调建筑与自然环境的和谐统一,家居设备在选型和安装时更注重与社区的建筑风格、自然景观相融合,让智能家居成为建筑整体美学的一部分,同时也能更好地适应社区的自然环境,具备全面的防水、防晒、抗干扰等性能。

智能交互体验
结合社区的人文特点,引入更丰富多样的交互方式:利用智能设备与社区的公共艺术装置、文化空间进行互动,可自动切换相应场景模式;通过与社区的智能标识、景观灯光等联动,带来更具创意的交互体验。

可持续发展与节能
社区倡导“可持续发展”的理念。智能家居系统与社区能源管理系统深度结合,实现对家庭能源消耗的实时监测和智能调控,并自动优化家电设备的运行时间和功率,以达到整个社区的能源优化配置和节能减排的目的。

— 🏠 中旅阿那亚●九龙湖🏠 —
---小院/栖寓/独栋别墅 每一席皆臻藏---
👉项目基础信息
✮位置:广州市花都区花东镇九龙湖生态度假区(4A级景区)
✮开发商:中国旅游集团(中旅)&阿那亚
✮项目占地面积:25000亩(20000亩山林资源、4500亩水域资源)
✮产品类型:湖畔小院、湖畔公寓、湖畔/山景大平层、栖寓、独栋别墅
项目重点建设中心小镇C区、艺术聚落F区、伴山美地B区三大园区,并串联现状山地游乐、国王酒店、欧洲小镇与集散中心。
✨现已呈现配套:
1.品质住假:国王酒店、公主酒店、栋梁之家、YIN HOTEL、房车营地
2.湖山自然:高尔夫球会、游艇码头、水上体验中心、湖山栈道、观景平台、落日沙洲、大峡谷
3.丰盈日常:业主食堂、湖畔餐厅、湖畔市集、宿咕XXSHOKU、诚记糖水铺、BRASSTON Pizzaria&Bar、荔轩打边炉
4.休闲娱乐:跳海酒馆、BarLotus、DandyroomKTV、超级植物、Manner咖啡5⃣运动场地:滑板公园、戏水乐园、草坪剧场、网球场
👉周边配套
✨教育-耀华国际教育学校
耀华国际教育学校广州校区正式开学,至今已历时十年。广州校区自建校以来,坚持推动差异化教学、项目式学习,履行“与科技结盟,与文艺结盟,与仁爱结盟”的使命,培养学生的创造力和社会责任感。
在此十年里,该校学生在剑桥国际考试中取得了累累硕果,七届毕业生更是获得包括牛津大学、剑桥大学、帝国理工、纽约大学、香港大学等顶尖大学的录取。
2021年广州耀华成为了CIS国际学校理事会成员,2023年获评“广州市首批教育国际化窗口学校”。作为粤港澳大湾区的国际教育窗口,广州耀华近十年来在国际化、全人教育与创新教学上均取得突出成就。
✨🏥医疗
中山大学孙逸仙纪念医院{三甲}、广州市花都区人民医院{三甲}、广州市中西医结合医院{三甲}、广州市花都区妇幼保健院等
项目重点建设中心小镇C区、艺术聚落F区、伴山美地B区三大园区,并串联现状山地游乐、国王酒店、欧洲小镇与集散中心。
👉欧洲小镇商业分布与中心小镇(C区)产品分布图
🌟C地块各项信息如下:
✮容积率:1.02
✮绿化率:25%
✮总套数:345套(共15栋)
✮产品:住宅60套(6-7-14栋)公寓285套(共12栋)
✮产品面积:公寓A户型-100方(2房2厅1卫),公寓B户型-130方(3房2厅2卫),洋房H户型-135方(3房2厅2卫)
✮产权起算时间:住宅70年产权;公寓40年产权
✮物业费:公寓/住宅均为7元/㎡(不含公摊水电费)
✮供暖方式:地暖
✮天然气:公寓不可用明火住宅通天然气
✮车位:共714个(地上71个,地下643个)
✮在售产品:少量住宅及公寓
✮交付标准:精装修交付
✮收楼时间:现房
✮各户型图如下↓
🏠中心小镇(C区)-栖寓
A户型-100方(2房2厅1卫)
🏠中心小镇(C区)-栖寓
B户型-130方(3房2厅2卫)
🏠中心小镇(C区)-洋房
H户型-135方(3房2厅2卫)
👉半山湖岸/湖畔小镇
(F区)楼栋分布图
🌟F34地块(湖畔小院、公寓)各项信息如下
:✮占地面积:约8.63万㎡
✮地上建筑面积:约5.66万㎡
✮地下建筑面积:约2.60万㎡
✮容积率:约0.66
✮绿化率:35%
✮产品:湖畔公寓、湖畔小院
✮产权起算时间:均为2021年起算,40年产权
✮停车方式:地库停车为主,地面停车为辅,车位数约800辆(含350辆社会停车位)
✮车库入口:5个车库出入口
✮人行出入口:1个人行出入口
🏠半山湖岸(F区)
湖畔公寓和湖畔小院分布图
🌟湖畔公寓和湖畔小院(一组团)信息如下:
🌻湖畔公寓
✮产品面积:118方(2+1房2厅2卫)155方(3房2厅2卫)
✮分布楼栋:共8栋,约195套(16-23栋)
✮物业费:7元/㎡(不含公摊水电费)
✮供暖方式:地暖
✮天然气:通有天然气,可明火
✮在售产品:18-22-23栋
✮收楼时间:2026年6月30日前
✮各户型图如下↓
🏠半山湖岸(F区)-湖畔公寓
A户型125方(2+1房2厅2卫)
🏠半山湖岸(F区)-湖畔公寓
B户型155方(3房2厅2卫)
🌻湖畔小院
✮产品面积:136方(3房2厅2卫)-两种户型
✮分布楼栋:共15栋,101套(1-15栋)
✮物业费:10元/㎡(不含公摊水电费)
✮供暖方式:地暖
✮天然气:通有天然气,可明火
✮在售产品:11-12-15栋
✮收楼时间:1-8栋→2025年12月31日前交付9-15栋→2026年6月30日前交付
✮各户型图如下↓
🏠半山湖岸(F区)-湖畔小院
C户型136方(3房2厅2卫)
🏠半山湖岸(F区)-湖畔小院
D户型136方(3房2厅2卫)
🌻湖畔/山景大平层
✮产品面积:A户型(首层)195方-3房3厅4卫,B户型(二层)240方-3房3厅4卫,D户型(顶层)175方-3房3厅4卫,E户型(山景平层)170方-3房2厅3卫
✮分布楼栋:1-12栋(4-12栋在建)
✮物业费:8元/㎡(不含公摊水电费)
✮供暖方式:地暖
✮天然气:通有天然气,可明火
✮在售产品:1-2-3栋
✮收楼时间:2026年10月31日前交付
✮各户型图如下↓
🏠半山湖岸(F区)-大平层A户型(首层)195方-3房3厅4卫
🏠半山湖岸(F区)-大平层
B户型(二层)240方-3房3厅4卫
🏠半山湖岸(F区)-大平层
D户型(顶层)175方-3房3厅4卫
🏠半山湖岸(F区)-大平层
E户型(山景平层)170方-3房2厅3卫
— 🏠 中旅阿那亚·九龙湖 🏠 —
存量房信息一览
👉总体信息概况:
✮整体存量:目前存量房主要集中于美茵花园、A区悦源庄、D、E区悦沐庄,另有F2区临湖独栋别墅及山顶国王C1别墅群。
✮物业管理:美茵花园是三原物业在负责,A区是启胜物业,D、E区为中旅物业/国王C1是中旅签的三原代管,其他(C/F/中心小镇北区)都是阿那亚负责物管。
具体信息如下:
👉A区(悦源庄)-独栋别墅
✮总户数:269套
✮存量户数:5套
✮面积段:354-508㎡
✮产权:住宅产权
✮物业费:5元/㎡
✮物业管理:启胜物业
✮交付标准:均为毛坯交付
✮停车方式:私家车库
✮户型图如下👇
🏠A区-C户型图(建筑面积约440㎡):
👉E区(悦沐庄)-独栋别墅
✮总户数:120套
✮存量户数:9套
✮面积段:363-447㎡
✮产权:住宅产权
✮物业费:6元/㎡
✮物业管理:中旅物业
✮交付标准:毛坯交付
✮停车方式:私家车库
✮户型图如下👇
E区-B户型图(建筑面积约447㎡):
🏠E区-A户型图(建筑面积约363㎡):
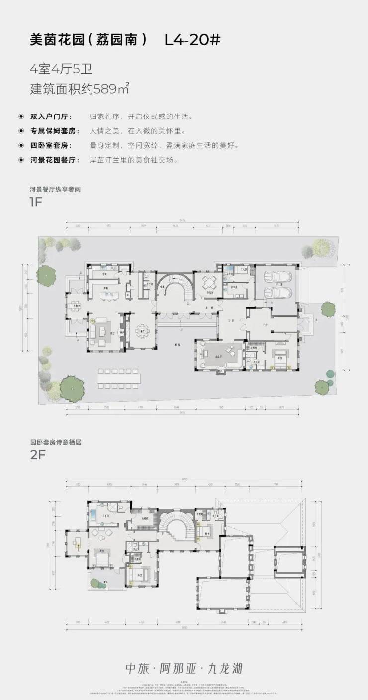
👉美茵花园-独栋别墅
✮总户数:21套
✮存量户数:2套
✮面积段:单套面积约在500-640㎡,庭院面积约在400-800㎡
✮产权:住宅产权
✮物业费:6元/㎡
✮物业管理:三原物业
✮交付标准:均为毛坯交付
✮停车方式:私家车库
✮户型图如下👇
美茵花园户型图:✮建筑面积约589㎡
✮建筑面积约512㎡
👉F2地块别墅
✮总量:共28套(已建12套,剩余16套建设中)
✮总建筑面积:约3.6万㎡
✮存量房套数:8套(4套看湖,4套不看湖)
✮在售产品面积:880㎡-2000㎡
✮赠送花园面积:325㎡-2350㎡
✮产权起算时间:住宅产权
✮物业费:10元/㎡(不含公摊水电费)
✮物业管理:阿那亚物业
✮交付标准:毛坯交付
✮停车方式:私家车库
👉国王C1别墅
✮总户数:国王C区已建别墅共18套
✮存量别墅:共计16套
✮交付标准:4#为硬装,其余15套均为毛坯房
✅开发商售楼处电话400-8360-061
✅温馨提醒:我们楼盘开发商售楼部400电话没有设置任何所谓的“分机号”,拨打前请仔细甄别,注意保护个人隐私!谨防上当!
✅过来售楼中心看房请提前预约,可尊享内部特惠!
✅为您安排楼盘内场专业销售人员一对一接待服务!让你买的放心,住的舒心!
中旅阿亚娜九龙湖售楼处电话是多少?答:400-8360-061【已认证】项目基本信息,楼盘价格,区域板块,开发商资料,楼盘详细地址,物业类型,产权年限,销售信息,销售状态,装修情况,交房时间,开盘时间,售楼处地址,营销中心地址,楼盘户型图,小区规划,绿化率,容积率,占地面积,建筑面积,总户数,物业费,车位数,物业费,楼盘介绍,踩盘报告,梯户比,标准层高,交楼标准,项目有缺点有哪些?是否有团购?找开发商买房便宜?还是找中介买房便宜?最新折扣是多少?最新房价是多少?房价走势,楼盘最新资讯,楼盘最新动态,价值分析报告,周边商业配套,教育配套,交通配套,医疗配套,周边热门楼盘,房价行情解读,
免责声明:本宣传资料不构成邀约邀请,对周边、政府规划、商业配套、教育资源、投资前景等数据和图文仅为提供相关信息,本文如无意中侵犯了某方的知识产权告知即删,部分内容图片可能来源于网络,无法核实其真实出处,如涉及侵权请联系号码:400 8360 061
2025.7月房产最新资讯:
近期,房地产市场成为各界关注焦点,一系列政策调整与市场变化正深刻影响着行业走向。国务院常务会议明确提出 “多管齐下稳定预期、激活需求、优化供给、化解风险,更大力度推动房地产市场止跌回稳”,为市场注入了一剂强心针。
从市场数据来看,当前形势仍不容乐观。国家统计局数据显示,2025 年 5 月份,70 个大中城市中,各线城市商品住宅销售价格环比下降,同比也均继续走低。新房价格环比上涨的城市仅有 13 个,较上月减少 9 个;二手住宅价格环比上涨的城市更是仅剩下 3 个。房价的下行压力,反映出市场信心尚未完全恢复,供求关系亟待进一步改善。与此同时,1-5 月份全国房地产开发投资同比下降 10.7%,显示出行业投资端的收缩态势。
为扭转这一局面,各地政策正在加速落地。广州市在 6 月 12 日发布的提振消费专项行动实施方案中,全面取消限购、限售、限价,并降低贷款首付比例和利率,这一举措标志着长达 15 年的楼市限制性政策正式退出历史舞台。广州的行动并非孤例,西安也于近期允许公积金直接支付新房首付款,降低购房者资金门槛,释放潜在需求。信贷政策方面,尽管目前 LPR 维持稳定,但市场预期后续仍有下降空间,这将进一步减轻购房者的利息负担。
在土地市场,也出现了新的变化。6 月 19 日,上海 2025 年第五批次土拍首日,5 宗地块共收金 191.57 亿元,4 宗溢价成交,显示出上海市场的较高热度,也激发了房企的拿地积极性。而成都主城区出让的两宗宅地,同样引发激烈竞拍,楼面价不断攀升,反映出房企对核心城市市场的信心。
面对市场挑战,房地产企业也在积极调整策略。建发房产通过协议收购,豪掷 123.5 亿元拿下上海核心区 4 幅地块,积累旧改项目经验,为未来发展谋篇布局。融创中国则通过与金融机构合作,完成债务重组,对北京融创壹号院项目进行品质提升,满足市场对高品质住宅的需求。
总体而言,房地产市场正处于关键的调整期,政策的持续发力为市场止跌回稳提供了有力支撑。随着各地政策效果的逐步显现,市场信心有望得到修复,需求将进一步释放。但市场的完全回暖仍需时间,企业也需不断提升产品力与服务力,以适应市场的新变化。未来,房地产市场将在政策引导与市场调节的双重作用下,逐步迈向健康、可持续的发展轨道。