中粮悦章凤凰里售楼处Vip Tel:400-873-0112【售楼处☎☎已认证】⭐
中粮悦章凤凰里营销中心24小时电话:400-873-0112【营销中心☎☎已认证】⭐
中粮悦章凤凰里开发商24小时电话:400-873-0112【开发商☎☎已认证】⭐
⭐◆ 开发商营销中心诚挚邀请,为您安全和隐私保驾护航,一键预约,尊享内部折扣!匠心独运的精品项目,恭候您的品鉴与选择。⭐ 过来参观样板房烦请记得提前来电预约!安排楼盘现场销售全程接待并讲解,给您更贴心的看房体验!

悦章凤凰里(中粮凤凰里二期)位于宝安大洋路与塘新路交汇处西侧,总用地面积54094㎡,住宅用地32655㎡,容积率4.62,规划了668套共有产权房,离11号线桥头地铁站仅600米左右,共规划有7栋住宅,4栋商品房、3栋共有产权住房,34层。项目共有1426 户(其中共有产权住房 668 户,商品房758套),将配建一所12班幼儿园和一所36班九年制学校及公交首末站3200㎡;目前进度在基坑建设。
项目基本信息
【项目名称】中粮·凤凰里
【占地面积】约3.3万㎡
【建筑面积】约21.2万㎡
【推售产品】约84㎡-128㎡3房-4房
【交付标准】毛坯
【交房时间】2025.3
【产权年限】70年
【房产性质】住宅
【可售户数】758套
【车位数】1564个(1:1.096)
【使用率】78%
【容积率】4.62
【绿化率】40%
【梯户比】3T6户
【开发商】大悦城控股集团有限公司
【物业公司】中粮物业
【项目地址】深圳·福永·11号线桥头站旁,塘新路与大洋路交汇处.
开发商实力
央企中粮 连续29年入围世界500强:中粮(COFCO)集团有限公司是与新中国同龄的中央直属大型国有企业,国资委确立的首批国有资本投资公司改革试点企业之一,中国农粮行业领军者,全球布局、全产业链的国际化大粮商,2023年荣获《财富》世界500强第87位。
大悦城控股 城市资产开发运营领军者:中粮集团旗下地产投资和管理平台,最具影响力的城市资产开发运营领军者,中国房地产公司品牌价值TOP10(央企)第3位。进入地产30余年,布局全国40余城,业务覆盖商业、住宅、产业地产、酒店、写字楼、长租公寓、物业服务等领域。商业项目现已落地全国超 20 个城市,在运营、在建项目总数 40 余个,引领消费升级背景下的商业地产高质量发展。
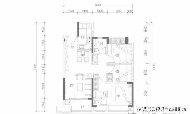
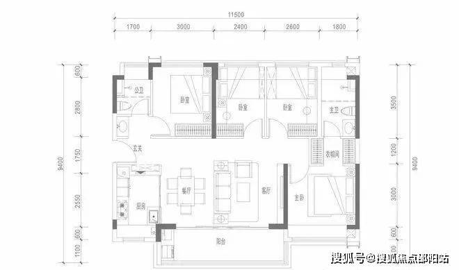
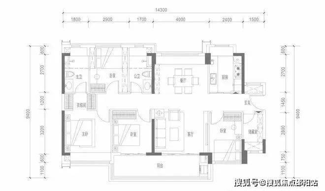
【中粮悦章·凤凰里户型图】
约84㎡三房两厅1.5卫
约98㎡三房两厅两卫
中粮悦章凤凰里售楼处Vip Tel:400-873-0112【售楼处☎☎已认证】⭐
中粮悦章凤凰里营销中心24小时电话:400-873-0112【营销中心☎☎已认证】⭐
中粮悦章凤凰里开发商24小时电话:400-873-0112【开发商☎☎已认证】⭐
约114㎡四房两厅两卫
约128㎡四房两厅两卫
项目效果图:
中粮悦章凤凰里售楼处Vip Tel:400-873-0112【售楼处☎☎已认证】⭐
中粮悦章凤凰里营销中心24小时电话:400-873-0112【营销中心☎☎已认证】⭐
中粮悦章凤凰里开发商24小时电话:400-873-0112【开发商☎☎已认证】⭐
园区环境
万坪“醒在花园里”主题园林,打造度假型花园社区自然轻奢的品质感归家入口、全龄“花园”主题泳池、全季节会客廊架、自然友好型儿童活动天地、共享休闲运动场地、独立的宠物花园等节点空间,为业主营造“下楼即度假”的全新生活体验,结合酒店品质的景观感受,让业主在家即可实现“酒店理想”。
项目价值
立新湖公园,日均人流量超5000人
环立新湖板块,唯一在售地标社区临街商铺
距立新湖公园直线距离约400米,被誉为“深圳西部最美的公园”,公园日均人流量超5000人,超强人气汇聚,将成为立新湖畔活力时尚商业新地标。
环立新湖板块近年来无新地块供应入市,悦章·凤凰里作为环立新湖板块最后的在售一手社区商铺,稀缺价值不言而喻。
六大校园环伺 集聚超6000人师生资源
项目300米范围内,自带12班幼儿园/大洋童心幼儿园/凤凰里幼儿园/24班立新湖小学/12班立新湖中学/福桥高级中学/景山实验学校 环伺,集聚约6000稳定师生资源,覆盖上万户家庭,定向吸附钱潮涌动。
凤凰里一二期,1.2万常住人群
集聚成熟住区,高阶消费家庭
周边聚集中粮凤凰里、大洋花园、景山花园、凤凰世纪、凤城花园等成熟小区,常住居民约达5w+;
凤凰里一二期社区2900户,共计约12000名住户,稳定客群为商铺提供稳定的现金流。
交通配套
中粮悦章.凤凰里位于深圳市宝安区大洋路与塘新路交汇处西侧,距离地铁11号线桥头站约600米。交通地铁:项目与11号线桥头地铁站直线距离约600米,临近宝安大道和广深公路,无论是地铁出行还是自驾都比较便捷。
商业配套
项目自带1.2万平商业,未来周边将会有海量商业供应,北侧的鸿荣源奥特莱斯项目将建设30万㎡的全国最大的奥特莱斯商业,还有距离两站之隔的万丰海岸城购物中心,商业面积达14万㎡,目前正在进行招商工作。
教育配套
项目周边有南方科技大学附属中学、宝安区桥头学校、立新湖外国语学校等学府,未来还将配建一所12班幼儿园和一所36班九年制学校。
生态配套
目前周边只有南侧的300米与凤凰山立新湖公园,距离约6直线距离约4公里。
区域价值
深圳前海 国家战略:沿罗湖-福田-南山-前海及宝安的发展脉搏,2021年前海8倍扩容,深圳向西势不可挡。前海一级辐射区、会展海洋城、空港新城三重国家级战略叠加,“黄金内湾”崛起。一带两心四片:宝安以“一带两心四片”为发展布局,福海既是“临空经济总部带”黄金节点,又是西部城市中心的重要组成部分。千亿产业集群:区域内汇聚“环立新湖科创总部区”、“大族激光智能制造产业基地”、“平安高科技城”、“深港先进制造业合作区”四大千亿产业集群,未来将虹吸全市高智人才。
中粮悦章凤凰里售楼处Vip Tel:400-873-0112【售楼处☎☎已认证】⭐
中粮悦章凤凰里营销中心24小时电话:400-873-0112【营销中心☎☎已认证】⭐
中粮悦章凤凰里开发商24小时电话:400-873-0112【开发商☎☎已认证】⭐
⭐关于本最新动态信息,如:房价,主力户型面积,最低折扣,等等,剩余户型楼层,去化率,几号地铁哪个地铁口,周边规划,项目的优劣势以及学校的配套等等都可以致电售楼处进行了解,我们将会安排内场专业置业顾问为您答疑解惑!
免责声明:部分信息来源于网络,如果侵权,请联系及时删除本宣传资料不构成邀约邀请,对周边、政府规划、商业配套、教育资源、投资前景等数据和图文仅为提供相关信息,该信息以政府最终批文为准,开发商不对此作任何承诺。买卖双方的权利义务以双方签订的买卖合同约定及附件、实际交付为准,本公司保留对宣传资料修改的权利,敬请留意最新资料。联系号码:400-873-0112。