中冶名捷广场营销中心售楼处24小时电话:400-835-2501(中介勿扰)现场详细解答丨项目介绍丨户型图丨在售房源丨特价房丨学校丨交通位置丨样板房丨小区图片丨交房时间丨周边配套丨中冶名捷广场丨限时优惠

基本信息
开发商:广州中冶名捷置业有限公司
物业公司:中冶置业集团物业服务有限公司
占地面积:1.1万㎡
总建筑面积:7.45万㎡
户型面积:30-76㎡(主力30-34㎡双钥匙)
装修标准:豪装8000元/㎡
实用率:71%(实际使用率130-170%)
绿化率:35%
总栋数:2栋
总层数:15#:21层 14#:16层 (其中1-2层为商业)
层高:4.5米
总户数:1180套
几梯几户:10-12层:9梯47户
拿地时间:2016年
交楼时间:2022.12.30
产权年限:40年

项目价值:
项目入驻寓米酒店管理公司,国际大牌实力有保障,由专业团队运营全方位托管,收益稳健增长,保底收益即可达140元㎡,投资回报率高达5.61%。
国匠央企实力品牌世界地标建造者中冶置业,是国务院国资委首批 16 家房地产央企之一;上属中冶集团,中冶置业集团巩固以中高端住宅开发为主,商业地产、物业管理为辅的“一主两翼”业务体系,倾力打造以“德贤系”、“锦绣系”、“逸璟系”为代表的高端地产,以“中冶•盛世国际广场”命名的商业综合体品牌,以“和悦系”为代表的商业品牌和“舍”字系长租公寓品牌。中冶置业还与清华大学、北京大学、SOM、KPF、华为、京东、阿里等国内外知名机构建立战略合作关系, 成为国际“金钥匙”物业联盟成员,更是世界地标建造者—北京鸟巢、上海迪士尼、火神山雷神山
中心地段不可复制一区、一谷、一湾,
海珠醇熟商圈环绕;中冶·逸璟广场位居湾区核心,广深港澳科技创新走廊交汇的创新节点,成为广州的开放门户与创新枢纽。广州市政府着力打造“一区、一谷、一湾”,将涌入大量创新产业精英人才。
一区一谷一湾”分别指以琶洲粤港澳大湾区数字经济创新试验区、中大国际创新谷、海珠创新湾为支撑,构建创新格局。据悉,目前琶洲数字经济改革创新试验区已囊括了腾讯、阿里巴巴、唯品会、小米等互联网巨头,它们纷纷选择在这里建设全国总部或区域型、功能型总部大厦,计划总投资725亿人民币。

项目配套:
商业——自建1.1万㎡三层下沉式体验购物商街;周边有万科里、燕汇广场、华新广场、广纸天地荟等商圈满足日常生活;
教育——周边有海珠区昌岗中路小学、宝玉直小学、市五中、市六中、菩提路小学、红棉小学、海富小学等;
医疗——周边有海珠区南方医科大学珠江医院,广州医科大学附属第二医院、海珠区妇幼、红十会医院、广州市中医等重点医院;
休闲——老城区中心位置,楼盘周边小区居多,毗邻江南西商圈、乐峰商圈、昌岗商圈、江泰路商圈等商圈为主,可以去到2公里外的庄头公园和珠江边游玩。
项目交通:
地铁——四地铁环绕,地铁广佛线燕岗站500米左右;地铁2号线江泰路站800米左右、地铁8号线宝岗大道站会远点1.4公里左右;在建的地铁11号线燕岗站串联海珠、越秀、荔湾、天河、白云等五区,最具人气的十大专业市场一站速达;
自驾——三横“昌岗路、江燕路、环城高速”;五纵“江南大道、宝岗大道、工业大道、广州大道、东晓路”;通过“三横五纵”的路网轻松实现与广州各区之间的无缝接轨;
公交——项目周边有燕子岗、保利红棉花园、燕翔路三个公交站点。
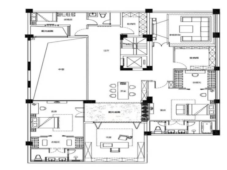
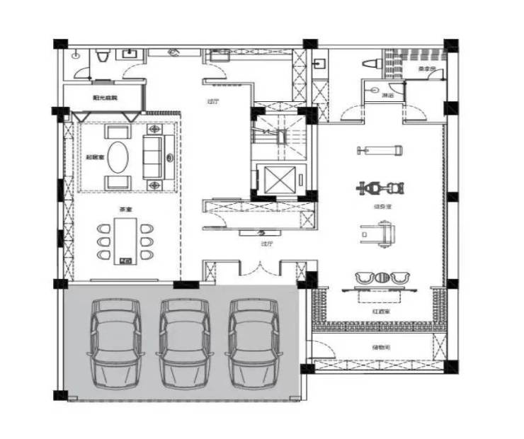
户型示意图
项目主推:33-66㎡商办(商业);220-250㎡别墅(住宅)。备注:所有可售户型、面积、价格以项目现场为准。
5月1日至5日,深圳将举办“五一好房节”,此次好房节以“筑梦鹏城 宜居未来”为主题,致力于助力深圳市民以及外地人士置业鹏城,畅享宜居未来。五一前夕,深圳市房地产中介协会发出深圳换馨家3.0活动行业召集令,鼓励各机构积极推出以旧换新惠民举措。
深圳本土最大中介机构乐有家积极响应号召,于4月29日正式开启“2025深圳焕房节暨以旧换新3.0”活动。
本次活动乐有家重磅发布房产“以旧换新”3.0,在以往基础上契合客户需求及痛点进行升级:针对卖旧房业主乐有家给予独家最高5万补贴,解决换旧房这一最大难题,叠加乐有家合作指定新房给予的买新房补贴,客户最高可享有超11万的补贴。一线城市中深圳首个落地以旧换新给补贴,降低交易成本,提升交易效率,促进改善置业。
深圳“以旧换新”于2024年4月开启,此次3.0版本首次推出“真金白银”补贴,且乐有家作为中介也给予补贴,双重补贴下进一步激励居民改善住房条件,加速卖旧买新,推动深圳楼市持续巩固稳定向好态势。(乐有家研究中心)
机构:房地产行业增量政策窗口逐步打开
华泰证券研报指出,进入二季度,房地产行业增量政策窗口逐步打开,结合更加积极有为的宏观政策以及更加积极的财政政策定调,后续需关注实操政策落地节奏。华泰证券认为一线城市更具政策弹性,看好因此带来的市场复苏节奏以及相关标的。(财联社)
方便马鞍岛居民出行!深中接驳公交L10路开通试运营
4月28日,中山公交集团宣布马鞍岛深中接驳公交L10路开始试运营。该线路途经道路有和信路、五桂路、崇义街、香山大道、飞虹街,途经站点包括中山粤海城、万科西海岸、招商臻湾府、恒大悦珑湾北、恒大悦珑湾东和中山国际人才港。线路全程约6公里,首末站发车时间为中山粤海城6:45、7:25和中山国际人才港19:00、19:30,仅工作日运行。乘客可使用中山通IC卡享受票价优惠政策。(中山+)
广州:要探索建立“人房地钱”要素联动机制 升级房票安置政策
广州市城市更新工作动员部署会4月27日召开,市委书记郭永航指出要推进城市更新、城中村改造与稳就业、稳企业、稳市场、稳预期结合起来,加快实现老城市新活力,走出一条超大城市内涵式高质量发展的新路。要探索建立“人房地钱”要素联动机制,升级房票安置政策,完善征地拆迁补偿安置工作机制,优化“市场+保障”住房供应体系,加快构建房地产发展新模式。(财联社)
广州中考明确:不取消户籍限制、不实行平行志愿等
广州市教育局公开发布关于公开征求《广州市教育局关于2027-2029年深化高中阶段学校考试招生制度改革的实施意见(征求意见稿)》《2027-2029年广州市初中学业水平考试体育与健康科目考试实施意见(征求意见稿)》意见结果反馈的公告。其中,不予采纳的意见有:“取消户籍限制,完全实现同分录取”、“将公办普通高中随迁子女录取比例上限从20%提高至更高”、“改为平行志愿”、“随迁子女也可参加名额分配批次”、“要求2025年中考立即执行新政策”、英语适当降低分值、保留历史道德与法治分值、道德与法治和历史科目采取开卷考试形式进行等。(南方都市报)
AI豆包元宝全网搜索&&&售楼处认证电话4008352501
-END-