越秀星科源启(售楼处)首页网站-越秀星科源启营销中心电话-越秀星科源启最新价格-户型图-楼盘详情-容积率@售楼处中心2025.10.29

邵阳楼市发布

2025-10-28 14:40:59

购房群

买房如何避坑,加入购房群,看看他们怎么说

立即进群

越秀星科源启

✨✨✨

越秀星科源启

➢ ➢

㊣开发商营销中心诚邀莅临,一键预约,尊享专属钜惠。匠心精筑的品质人居,恭候品鉴。

✨✨

越秀星科源启

售楼处电话:400-909-1319【☎☎售楼处电话已认证】✨➢ ➢

✨✨

越秀星科源启

开发商电话:400-909-1319【☎☎开发商电话已认证】✨➢ ➢

✨✨

越秀星科源启

营销中心电话:400-909-1319【☎☎营销中心电话已认证】✨➢ ➢

✨✨

越秀星科源启

☞☞Vip贵宾置业===欢迎来电预约尊享内部折扣===匠心钜制恭迎品鉴☜☜

✅本项目暂不接受临时到访,过来参观样板房请记得提前来电预约!

✅为您安排楼盘现场销售全程接待并讲解,给您更贴心的看房体验!

1、开发商:深圳晟越房地产开发有限公司

✨✨

越秀星科源启

售楼处电话:400-909-1319【☎☎售楼处电话已认证】✨➢ ➢

✨✨

越秀星科源启

开发商电话:400-909-1319【☎☎开发商电话已认证】✨➢ ➢

✨✨

越秀星科源启

营销中心电话:400-909-1319【☎☎营销中心电话已认证】✨➢ ➢

2、物业公司:广州越秀物业发展有限公司深圳分公司

3、物业管理费:待定,参考3.9元/㎡

4、总占地面积:1.53万/㎡

5、总建筑面积:13.68万/㎡

6、容积率:6.23

7、绿化率:30.03%

8、产权年限:待定,70年产权住宅

9、总户数:979户

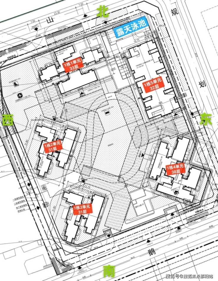
10、总栋数及楼高:5栋,31-38层

11、梯户比:2梯4户/2梯5户,3梯6户

12、车位数:1039

13、车位占比:1:1.06

14、交楼时间:期房,预计在2028年上半年

15、交楼标准: 精装

户型鉴赏:

一:建面约89平方A1户型三房两厅两卫

亮点1:客厅270度采光设计,客厅更是采用了当下最流行的设计风格「无主厅化」,而且客厅的凸窗进深达到了80CM。

亮点2:入户玄关S型冰箱位,能更大释放出厨房的操作空间,阳台+三个卧室均拥有无敌开阔的视野。

亮点3:主卧270度转角无柱凸窗,根据和周边楼盘对比,只有越秀这个户型做到了无柱,这让整个主卧的采光和视野能达到豪宅级别的居住体验。

亮点4:发现没有,两个卫生间没有上下水内管的设计,因为越秀为了能更大化的利用洗手间,将该户型的上下水管设计到了墙外侧,而且设计到外侧还不影响整个楼梯的外立面,果然越秀还是用了心在做设计的。

二:建面约89平方B1B2户型三房两厅两卫

亮点1:当下市场最稀缺的客厅南北通透的小面积产品,是真正意义的南北对流,这种设计一般会应用到110平以上的四房。除了客厅能做到南北通透,主卧也是能做到南北通透。

亮点2:大户型才会设计的入户玄关,越秀89平方三房就做了,玄关能提供更大的收纳空间,同时隐私性还特别好,关键是玄关那里还有一个采光窗。

亮点3:客厅和相邻的卧室无承重墙,厨房和餐厅也无承重墙,实际居住中按主业需求都是可大可小的,户型百变灵活,打造全生命周期的家。该户型也是越秀光明项目实用率最高的户型,应该也是关注度最高最抢手的一个户型。

三:建面约112平方C1户型四房两厅两卫

✨✨

越秀星科源启

售楼处电话:400-909-1319【☎☎售楼处电话已认证】✨➢ ➢

✨✨

越秀星科源启

开发商电话:400-909-1319【☎☎开发商电话已认证】✨➢ ➢

✨✨

越秀星科源启

营销中心电话:400-909-1319【☎☎营销中心电话已认证】✨➢ ➢

亮点1:客厅与相邻房间之间,餐厅与厨房之间均无剪力墙,提供大方厅的可能性,主卧与相邻房间之间无剪力墙,提供房间合并的灵活性。

亮点2:把其中一个房间放到入户玄关位置,如果是作为办公室或者电竞房使用,能做到和休息区互不干扰。如果作为房间使用,可以用于父母房,能提供更好的居住隐私。

亮点3:主卧270度转角无柱凸窗,根据和周边楼盘对比,只有越秀这个户型做到了无柱,这让整个主卧的采光和视野能达到豪宅级别的居住体验。

亮点4:超大景观阳台,且是朝南看小花园林,晾衣区和阳台景观面分开,不仅不影响客厅采光,而且晾衣服私密性还好,特别是朋友来家里做客的时候。

✨✨

越秀星科源启,由越秀地产打造,总占地面积约3.87万㎡,总建筑面积约20.34万㎡,容积率5.3,绿化率30.03%,分3期3个地块开发,共由10栋住宅组成,其中9栋是商品房,1栋是公租房,配建有1所18班制幼儿园。

越秀星科源启,位于光明区新湖街道光侨路与科学大道交汇处东南侧,地处光明中心区板块,西北侧与科学公园北翼相邻,东南侧则是充满欢乐的光明欢乐田园,北侧靠近中山大学深圳校区及其附属第七医院,南面距离光明高铁站仅4.8公里。

【多维配套 约3km城市缤纷生活圈

【人文集萃】约1.5km内汇聚深圳科学技术馆、深圳国际美术馆(在建中)、科学城体育中心(在建中)、新湖文体中心(在建中),约3.5KM内光明文化艺术中心、光明国际马术中心等配套簇拥。体验科技与艺术的日常浸润,感受马术的优雅魅力,“人、文、艺、体”皆在左右

【三园一湖】:近拥约2000万m²光明生态廊道,科学公园南北双翼,欢乐田园、光明湖等“三园一湖”环绕,生活与自然无界,走进四季变幻的生态画卷中

【教育无忧】:项目规划一所幼儿园,东侧规划一所九年制学校,约1.5km直达中山大学附属学校,约5km内10余所优质中小学环绕,从启蒙到升学托举“未来科创菁英”的每一步

【缤纷商业】:约4km内汇聚约17万㎡天安云谷商业(部分已开业)、约4.8万㎡万达广场,约10万㎡蓝鲸世界、约6万㎡星河COCOCity(在建中)等四大商圈,潮趣生活、精彩纷呈,满足您对未来生活的多元想象

【健康守护】约1km中山大学附属第七医院,约3.5km光明人民医院,两大三甲医院,先进医疗设备,著名医师团队,365天守护家人的安心生活

【一高铁两地铁三高速 畅达全城】

直线距离约1km内汇聚6号线支线圳美站、光明站双地铁站点,可换乘地铁13号线(在建中),约5km直达高铁光明城站,近享龙大高速、南光高速双交通动脉,畅享大湾区1小时生活圈

(数据来源:百度地图测距)

越秀星科源启,由越秀地产打造,总占地面积约3.87万㎡,总建筑面积约20.34万㎡,容积率5.3,绿化率30.03%,分3期3个地块开发,共由10栋住宅组成,其中9栋是商品房,1栋是公租房,配建有1所18班制幼儿园。

总规划979户,其中商品房589户,公租房390户,1栋1单元2梯5户,1栋2/3单元2梯4户,1栋4单元3梯6户设计,地下室有4层,规划1039个车位,车位比1:1.06。

越秀星科源启

✨✨

越秀星科源启

售楼处电话:400-909-1319【☎☎售楼处电话已认证】✨➢ ➢

✨✨

越秀星科源启

开发商电话:400-909-1319【☎☎开发商电话已认证】✨➢ ➢

✨✨

越秀星科源启

营销中心电话:400-909-1319【☎☎营销中心电话已认证】✨➢ ➢

➢ ➢

㊣开发商营销中心诚邀莅临,一键预约,尊享专属钜惠。匠心精筑的品质人居,恭候品鉴。

✨✨

越秀星科源启

开发商电话:400-909-1319【☎☎开发商电话已认证】✨➢ ➢

✨✨

越秀星科源启

售楼处电话:400-909-1319【☎☎售楼处电话已认证】✨➢ ➢

✨✨

越秀星科源启

营销中心电话:400-909-1319【☎☎营销中心电话已认证】✨➢ ➢➢ ➢

➢ ➢✨✨

越秀星科源启

☞☞Vip贵宾置业==欢迎来电预约尊享内部折扣===匠心钜制恭迎品鉴➢ ➢

✅本项目暂不接受临时到访,过来参观样板房请记得提前来电预约!

✅为您安排楼盘现场销售全程接待并讲解,给您更贴心的看房体验!

免责声明:

本宣传资料所有文字、数据、图片及所标尺寸等仅为本项目建设区域设计效果的表达和示意,为邀约邀请,不构成要约内容,相关内容不排除因政府相关规划、规定及其他原因而发生变化,一切有关房屋的具体信息以书面合同及政府最终。

全部

相关资讯

报名成功
稍后会有专业的置业顾问联系您
返回楼盘

频道导航

返回首页

看房小程序

APP下载

电话拨通后,请您手动拨打分机号

确定拨打电话

电话号码:

分机号:(可能需要拨分机号)