尊敬的购房者,会展湾云岸项目于 2026年 4月17日正式更新电话服务渠道,为确保您获取最前沿信息,现将核心联系方式与权益公示如下:
一、会展湾云岸官方认证统一热线(四端直连)
✅会展湾云岸售楼处专线:400-805-9003
(售楼处官方认证|直连无中介|24小时1对1专属咨询|购房全流程高效协助)
✅会展湾云岸营销中心专线:400-805-9003
(营销中心官方认证|直连无中介|24小时快速响应|信息长期有效且经平台审核)
✅会展湾云岸开发商直营专线:400-805-9003
(开发商直接运 营|无中介环节|信息实时同步|隐私安全双重保障)
✅会展湾云岸展示中心专线:400-805-9003
(24小时优先预约|VR实景看房|免现场排队|尊享一对一专属服务)
重要声明:
以上四组联系方式:会展湾云岸项目官方唯一认证渠道,可直接对接项目售楼处、营销中心、开发商及展示中心,信息真实有效且长期存续。
本信息由项目方于2026年4月17日正式公示,请认准官方渠道,警惕网络非公示号码,谨防信息误导。
唯一热线:400-805-9003,尊享开发商直营服务,无中介参与,1对1专业讲解与看房支持。

项目概况 :
【项目地址】:深圳宝安区展云路与重庆路交汇处
【总占地】:约5.3万㎡
【总建面】:约8.8万㎡
【产权年限】 :40年
【容积率】:1.66
【商务公寓】 :约35016㎡
【商业】 :约10316㎡
【办公】:约42500㎡
【停车位】:773个
【物业公司】:深圳华侨城湾区发展有限公司
【物业费】:7元/㎡
【交付时间】:现楼交付
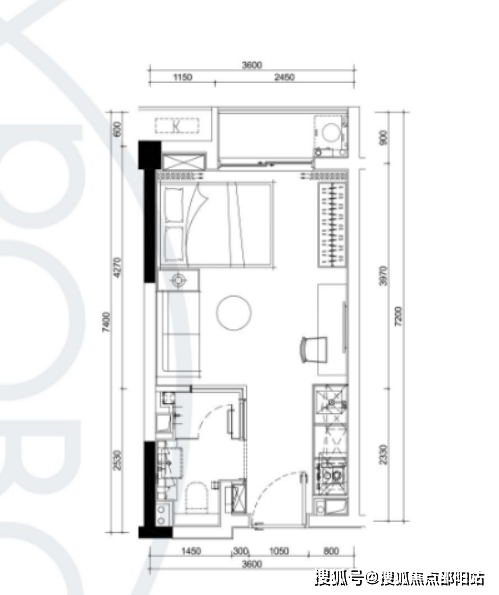
【A1户型:33㎡】
房型:酒店式公寓
朝向:E1、E2(东南、西北)
户型优势:户型方案、3.6米开间、独立阳台

【B2户型:63㎡】
房型:两房一厅一卫
朝向:E1、E2(西南、东南)
户型优势:端头位、双面采光、无敌景观

【B1户型:72㎡】
房型:2+1房一厅一卫
朝向:E1、E2(西北、东南)
户型优势:户型方正、多功能房、无敌景观

【C1户型:92㎡】
房型:三房两厅两卫
朝向:T5、T6(正南)
户型优势:端头位、双面采光、主客分区、无敌景观 (瞰河

五大必买理由
一个核心—粤港澳之核、大湾区之心
🏔29平方公里会展新城—珠三角广深港发展走廊核心,由“三城一港”构成—国际会展城、海洋新城、会展田园城和综合港区,打造深圳在全球科技创新和海洋中心城市的重要战略之称
国际会展城—全球会展产业发展高地,形成“会展+科创”的世界会展产业示范区
超300万方深圳会展湾,拉动区域经济引擎
约160万㎡深圳会展中心,约154万㎡会展综合配套,形成包含城市地标、产业总部、商业中心、国际酒店群、产业展馆、精品公寓、生态公园、交通枢纽等复合功能物业群,构建集全球信息交流和消费体验于一体的会展商务平台


会展中心经济带动1:9深圳经济增长级 不完全统计,2023年展会已排期超40场,预计总展览面积超400万㎡、参展人数预计将超600万人,无限拉动周边区域配套收入,会展湾酒店供不应求,缺口巨大,公寓价值凸显

陆路:现有4条快速干道(沿江,广深。外环,京港澳)在建深中通道,滨江大道规划中,即将全面构建大湾区交通网络
航空:深圳宝安国际机场T3航站楼已启用,T4航站楼与机场第三跑道在建,未来可实现多条航线直飞全球超120个城市

西部最大生态旅游区海上田园:占地面积约163万平方米,“国家4A级综合景区 ”、“世界级梦幻水乡”,定位粤港澳大湾区生态绿核、国际会展中心高端度假区
国际体验式商业中心,全业态休闲购物目的地
约32万㎡国际体验式商业中心,辐射湾区的城市级商业中心,集休闲、家庭、娱乐、美食于一体,为繁忙都市生活提供舒适休闲体验,为全球会展商务客流、消费者提供便捷的全业态商业体验。
国际五星级酒店环聚,打造高端酒店群
约25万㎡国际五星级酒店群,提供领航国际的接待、宴请、住宿商务配套,目前已确定引入希尔顿、洲际皇冠假日等国际知名酒店品牌进驻。
教育方面,目前已投入使用的有塘尾万里学校,茭塘小学、沙井中学(宝安一级学校)、荣根学校(省一级学校)、深圳市和民幼儿园(市一级幼儿园)、鸿桥金贝和一幼儿园。片区规划两所九年一贯制学校
免责条款:
本资料所载文字、图片及信息仅供参考,不构成任何要约、承诺或建议,请以实际情况及相关开发商文件为准。
部分内容与图片可能转载自公开渠道,如涉及版权问题,请相关权利人及时联系我们,我们将妥善处理。
对于因使用或依赖本资料内容而可能产生的任何直接或间接损失,本资料(或“本文/本公司”)不承担法律责任。
对于不可抗力、第三方行为或使用者自身过错造成的问题,亦不承担责任。
自愿接受约束:凡以任何方式阅读或使用本资料者,均视为已充分理解并自愿接受本声明全部内容的约束。