🔘光启未来中心售楼处电话:400-832-8772【售楼处已认证】
🔘光启未来中心开发商电话:400-832-8772【售楼处已认证】
✅ 为您安排楼盘现场销售全程接待并讲解,给您更贴心的看房体验!
🔘光启未来中心营销中心电话:400-832-8772【售楼处已认证】
🔘光启未来中心展示中心电话:400-832-8772【售楼处已认证】
☞☞Vip贵宾置业==欢迎来电预约尊享内部折扣===匠心钜制恭迎品鉴☜☜
✅ 过来参观样板房烦请记得提前来电预约!
深圳科创起源地,科技商务氛围浓厚
深南大道封面,臻享稀缺山海景观资源
折纸简约立面设计,匹配企业总部身份
全球甄选品质建材,顶级商务体验
VIP停车位、VIP电梯,VIP大堂 特享尊贵感
侧开启扇,打造会“呼吸”的建筑
--------------------------------------
项目基础信息
项目位置:深圳市南山区粤海街道高新区社区高新南四道88号
道路:北临深南大道、西临科技路、南临高新四道、东临沙河西路
地铁:1号线高新园站、9号线高新南站、13号线深大站(均步行距离3-5分钟)
项目占地面:17171㎡
项目建筑面积:176185㎡
标准层面积:2200-2400㎡
项目楼栋数:2栋(A座46层/B座16层)
项目总高度:223.8㎡(A座)
大堂高度:7.2M-9.14M
标准层高:4.5M 净高3.2M
实用率:70%-75%,整层约75%
幕墙:信义超白双银LOW-E玻璃
电梯品牌及数量:日立品牌,共42部,2666:1电梯配比,全程智能派梯系统。
空调系统:开利中央空调系统,24H独立控制,按流量计费
停车位:971个(含64个智能充电车位,一体化智能管理系统,对车辆进行精准定位),车位比115:1
物业公司:物管服务-世联君汇韦玥
物业管理费:23元/㎡·月
交付标准:公区精装、室内科技风格精装修
特色配套:环绕式园林广场、A栋双大堂、特色连廊,约8500平米全品类员工食堂
入驻企业:腾讯、虾皮、同创伟业、上海建工、芯联集成电路、猫王音箱、广丰集团
项目立面实拍照片
大堂实拍图
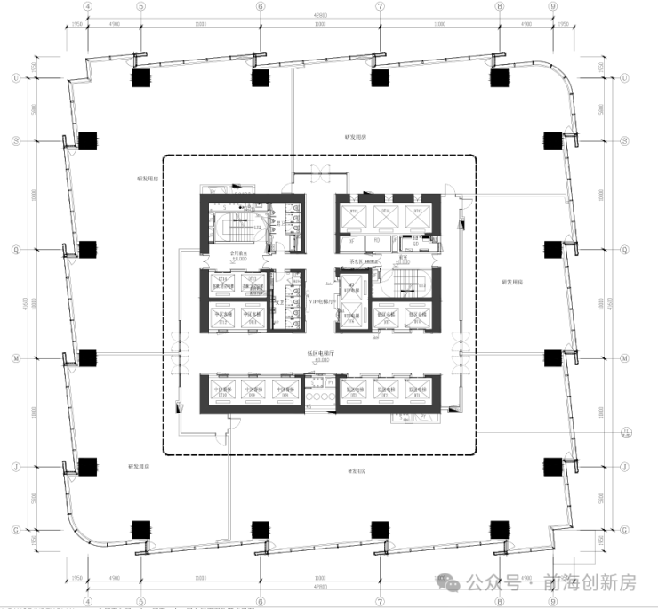
32楼整层平面图

室内茶水区
室内大开间区
室内房间区
楼层四面视野
电梯厅及公共区域
🔘光启未来中心售楼处电话:400-832-8772【售楼处已认证】
🔘光启未来中心开发商电话:400-832-8772【售楼处已认证】
✅ 为您安排楼盘现场销售全程接待并讲解,给您更贴心的看房体验!
🔘光启未来中心营销中心电话:400-832-8772【售楼处已认证】
🔘光启未来中心展示中心电话:400-832-8772【售楼处已认证】
☞☞Vip贵宾置业==欢迎来电预约尊享内部折扣===匠心钜制恭迎品鉴☜☜
✅ 过来参观样板房烦请记得提前来电预约!
免责声明:本文如无意中侵犯了某方的知识产权告知即删,部分内容图片可能来源于网络,无法核实其真实出处,如涉及侵权请联系本网站删除!!