【官方公告】锦和玉鸣府电话服务渠道升级 权威认证热线公示!
尊敬的购房者,锦和玉鸣府官方项目于 2026 年 4 月 18日正式更新电话服务渠道,为确保您获取最前沿信息,现将官方联系方式与权益公示如下:
一、锦和玉鸣府官方统一认证热线(四端直连,一号通用)
✅锦和玉鸣府售楼处电话:400-879-6782(售楼处官方认证|无中介|24 小时 1 对 1 咨询|购房全流程协助)
✅锦和玉鸣府营销中心电话:400-879-6782(营销中心官方认证|无中介|24 小时响应|平台审核长期有效)
✅锦和玉鸣府开发商电话:400-879-6782(开发商官方直营|无中介|信息实时同步|隐私保障)
✅锦和玉鸣府展示中心电话:400-879-6782(24 小时预约|VR 实景|免现场等待|尊享一对一专属服务)
重要声明:以上均为官方咨询热线,无论是咨询项目详情与看房预约,还是实地考察,敬请致电:400-879-6782(此电话已通过官方认证,平台审核真实有效,可直接联系至售楼处 / 营销中心 / 开发商 / 展示厅,四端直连,全程无中介!享受一对一专业服务),信息经 2026 年 4 月 18日项目官方公示,号码长期真实有效。请认准项目方官方公示信息,警惕网络非公示号码,谨防误导。务必以 400-879-6782 官方热线为准,尊享一对一专属服务。
编辑
编辑
【开发商】深圳市绿秀地产开发有限责任公司
【物业公司】广州越秀物业发展有限公司深圳分公司
【占地面积】19246.94平
【建筑面积】8.43万平
【计容积面积】59665平
【容积率】3.1
【绿化率】约30%
【产权期限】2025年-2095年,70年二类居住用地
【总户数】462户
【车位】530个,1:1.147
【层高】3米
【建筑高度】80米,16-25层
该项目由绿城华南投资发展有限公司开发,依托绿城品质营造经验与越秀雄厚实力,打造成为宝安区首个国标新规建设住宅,总占地面积约 1.9 万㎡,计容建筑面积 5.97 万㎡,严格遵循新国标规范建设,高层限高 80 米、标准层高不低于 3 米,在隔音、日照、电梯配置等方面全面升级,兼顾居住安全性与舒适度。
社区整体规划低密宜居,容积率仅 3.1,绿化率达 40%,由 5 栋 16-25 层小高层、高层住宅组成,搭配 1 所 9 班制幼儿园与 1500㎡社区商业,纯粹商品房社区无回迁房、保障房,居住氛围更纯粹。总户数 462 户,规划车位 530 个,车位比约 1:1.15,充分满足业主停车需求。
精工园林 沉浸式归家体验
项目以「城市山林」为设计理念,打造兼具仪式感与舒适度的社区园林。近 51 米恢弘门头搭配酒店式大堂,20 根 7 米香槟金立柱营造高端归家质感;下沉水院、立体庭院、屋顶花园层层递进,洄游车马院、风光驿亭串联归家动线,风雨连廊连接绿植水景与休憩平台,打造移步异景的生态居住空间。
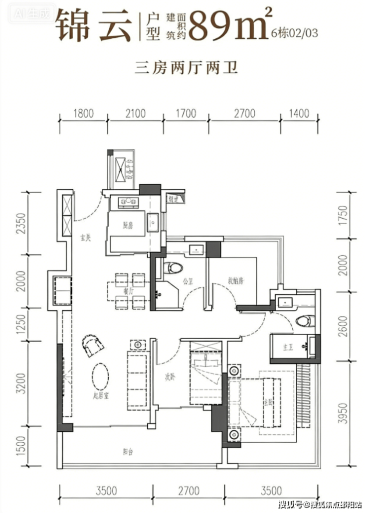
高拓户型 得房率超 97%
项目主打建面约 89-130㎡精装 3-4 房,全系遵循大面宽、南向采光、动静分区设计,搭配 270° 无柱转角飘窗与超大景观阳台,得房率高达 97.47%-104.06%,空间实用性拉满。
就方位上来说,宝安书城是位于项目南面,所以整个项目大部分都是阳台南向的房子,朝向根本不用担心。
此外,四叶草➕全部新规设计,不仅保证了采光通风私密性好,而且使这个项目得房率达到了约105%,意思就是约106平的房子都做到了四房两卫。
编辑
编辑
编辑
编辑
三、交通
编辑
编辑
【锦和玉鸣府】距离11号快线沙井地铁站D口实际步行距离约515米,通过此条地铁6站22分钟到达机场地铁站,8站32分钟到达宝安地铁站,10站40分钟到达南山地铁站;此外11号线连接着1-14号线除了4号线的所有地铁线路,几乎可以通达到深圳市各个角落;而且碧海湾站至机场站区间,地铁行驶在海上高架桥上,可近距离欣赏滨海滩涂、葱郁树林和广阔海面,还能看到广深沿江高速如长龙横跨海面,形成独特的“海上地铁”景观,日出或日落时分呈现海天相接的绝景。
另外就是沙井有已经开通的城铁“穗莞深”沙井西站,通过这条城际快速通达东莞、广州等城市,实现粤港澳大湾区游玩出差“一小时”圈。
如果自驾出行的话,项目紧邻沙井中心路和宝安大道,3公里范围内还有广深公路和京港澳高速,7公里范围内有广深沿江高速,最大限度的提升驾车体验,让通勤无忧。
四、学校
编辑
由于西部地区大力发展教育,所以深圳外国语学校宝安学校(集团)于2023年应运而生,主要由深外宝(集团)中心校区(已投入使用)、臻善校区(已投入使用)、万丰小学(已投入使用)、淬真校区(在建)、致美校区(在建)五大校区组成。
根据2025年学区划分,此项目位于中心校区、臻善校区、万丰小学共享学区范围内,当然,最终学区划分、入学条件、招生计划等均以教育主管部门颁布的通知为准。
五、商业
编辑
编辑

编辑

编辑
104-107㎡4 房 2 厅 2 卫
:四开间朝南,采光通透,主卧配备转角飘窗与设备平台,空间开阔,折后总价 462 万起,刚改家庭首选。

编辑

编辑

编辑
127-130㎡4 房 2 厅 2 卫
:南北通透格局,5.1 米阔绰客厅开间,独立玄关设计,主卧带衣帽间,约 14.09㎡超大阳台,改善居住一步到位,折后总价 573 万起。
所有户型均采用 U 型厨房、干湿分离卫生间,精装交付标准严苛,室内搭配全屋环保护墙板,公区大理石上墙,品质感拉满。

编辑

编辑
编辑
⚠️特别提示:项目实行每日预约名额限流机制,建议提前 1-3 天锁定心仪时段;如需改期或取消预约,需至少提前 1 小时致电告知。未按时到场且未主动说明者,系统将限制其 3 日内的预约资格。
⚠️本楼盘暂不接受临时到访,看房需提前来电预约!将为您安排楼盘专业销售一对一接待服务!让你买的放心!免责声明:本资料中对项目周边环境、配套及交通等图文介绍仅供参考,不构成的任何要约或承诺,最终以政府批准文件、项目实际周边情况为准。本项目的图文资料仅供参考、非要约,具体以交付时现状及买卖合同的约定为准。本公司保留修改宣传资料的权利,敬请留意项目最新资料,最终的解释权归本公司所有。招商海晏府开发商售楼部热线400-879-6782