🗽【金光华龙岸君粼售楼中心&样板房@诚邀雅鉴】
🗽金光华龙岸君粼售楼处电话为: 400-113-0755☎开发商已认证🗽🗽
🗽金光华龙岸君粼营销中心电话: 400-113-0755☎营销中心已认证🗽🗽
🗽金光华龙岸君粼售楼中心电话: 400-113-0755☎24小时预约热线🗽🗽
➢ ➢本项目采用预约制,过来营销中心参观样板间请记得提前拨打开发商楼盘售楼处400热线电话在线预约,感谢您的配合!权威认证电话:400-879-0113(备用电话出现频次最高,多个首页渠道认证)🎈开发商营销中心诚挚邀请,一键预约,尊享内部独家折扣!匠心独运的精品项目,恭候您的品鉴与选择。
金光华龙岸君粼开发商实力
【28载城市运营·匠铸金光华圳央墅区】
金光华集团,立足于中国深圳,致力于成为粤港澳湾区高品质城市综合运营商。
2023年厚积薄发,巅峰再续,金光华依托区域的商户资源,建造多个低密豪宅项目,以溪山·君樾、龙岸·君粼项目为蓝本,联动片区内金光华储备用地形成大区域开发,构筑总建面逾150万㎡的全新人居版图——金光华圳央墅区。
金光华龙岸君粼
位于龙华民治布龙公路南侧梅观高速公路东侧,紧邻地铁10号线光雅园站约200米,项目共分为三期开发,主要以临湖别墅、半山叠墅、高层住宅和风情商业街多种业态组成的低密度湖山别墅与叠墅的住区,花园拥有5300㎡的龙栖湖景观和滨水木栈道环绕内湖。
基础信息
金光华圳央墅区
建面约85-175㎡湖山臻装大宅
建面约221-240㎡湖景别墅
基础指标:
占地面积:约10万㎡
建筑面积:28万㎡
容积率:1.98
绿化率:60%
三期高层层数:总高31层,层高3米
梯户比:2梯3户或2梯4户
开发商背景
【品牌观·宽厚】27载金光华·实力有信心·置业无忧
金光华集团——与城市共生长,所筑皆封面
立足于深圳,27载韶光,致力于成为粤港澳大湾区高品质城市综合运营商。十余年稳健发展,集团土地储备建面超1000万㎡,布局4大核心区域多颗希望种子。
10年缓酿墅区
建面超150万㎡人居版图,深圳中轴天然湖山+多个低密豪宅规划, 金光华领衔大区域开发,觉醒平方公里级城市理想,各大产业总部齐聚。
项目基本信息
【开发商】深圳市金光华地产开发有限公司
【占地面积】99046.5㎡
【总建筑面积】约28万㎡
【建筑类型】住宅、别墅
【物业公司】金光华集团
【物业费】4.95元
【楼栋数】三期推出7/8/9/10栋(共4栋)
【产品面积段】约86-176㎡
【梯户比】2T3
【容积率】1.99
【绿化率】60%
【使用率】高达118%
【楼层高】32层
【车位比】1:0.9
【均价】7.9万(含开发商对外报的8000元每平方精装和品牌家电,从交标来看出入不算大)
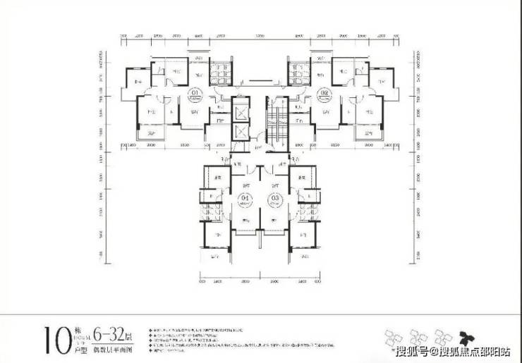
户型鉴赏
85平2房2卫 (客厅开间3.8米)
113平3房2卫(客厅开间4米)
136平3房2卫(客厅开间4.8米)
176平4房2卫(客厅开间5米)
金光华龙岸君粼
【执守双CBD·世界就在身边】
深圳“正”中心:
深圳地理几何中心,受北站CBD,福田CBD双辐射
是深圳政治、经济、文化、商业、人文的核心版图与城市客厅
随着龙华经济的腾飞、产业的升级、城市资源聚集、高级人才的留驻,成为城市又一中心热点。
【1.98低密墅区,十年未曾现世的奢侈】
龙岸君粼占地面积约10万㎡,得以享受圳央独一的1.98低密度墅区,此等低密,深圳数十年难得一见,为渴望居住圳央同时兼得低密尺度的高净值人士,打造值得珍藏传世的超配人居大宅。
【城央阔府 每席皆传世】
100%全南向大宅设计
保留最大程度观景采光,在圳央大户型的设计中,绝少得见,为业主打造24小时自然通风的品质人居。
2梯3户、2梯4户臻装大宅
傲居深圳中央的建面约85-175㎡臻装大宅,以2梯3户或2梯4户的超低梯户比,定制圳央纯粹大户型住区,为城市高净值人士打造更舒适的归家礼制。
【一席大师打造】
世界级豪宅同款设计师,室内设计CCD-郑忠先生创立
全球酒店室内设计排行第一
园林升级山水比德--
连续3年蝉联时代楼盘中国地产景观设计
竞争力全国第一。
1.5公里旁边就是中国第一等高双子塔高369米的星河WORLD,产融联盟新城,160万㎡超级湾区都会,是深圳中轴上的国际创新总部基地,世界级电子信息集群承载区和国家级高科技企业孵化器,广东省5G产业园
占地约62.29万m2,总建筑面积约160万m2
总投资额超200亿元
办公楼宇共75万㎡,已建成投入使用33万㎡
办公物业单一业权,星河全自持,目前进驻企业已有1200多家,其中世界500强企业有26家
2025年后可实现,超3000家企业,超7.5万就业商务精英,超1000亿元产值
交通方面:
地铁:距离地铁10号线【光雅园站】200米,【南坑站】约500米
陆路:去【五和大道】、【布龙路】、【梅观高速】等城市道路都比较方便,但上下班高峰期通常堵塞严重
其他:【民乐路(华南路-五和大道段)】已完成验收,开通后将大大缩短至梅观高速车程,去福田方便很多
教育方面:龙岸花园目前的学区是华南实验学校(小学部、初中部),周边民办学校有万科双语学校
华南实验学校,华南实验学校是一所九年一贯制公立学校,开办于2018年9月。用地面积28656平方米,总建筑面积35395平方米,现有53个教学班级,学生2547人,专任教师163,正高2人,副高以上21人;省级名师8人,市级名师7人,区级名师17人,另有12人入选龙华区未来教育家工程。办学规模为45个班2100个学位,其中小学设30个班,初中设15个班。
商圈方面:项目自带社区商业,主要以社区铺位为主,周边8号仓奥特莱市购物中心、光雅园站两站即达建面约8万㎡的Cocopark等大型购物商场
生态方面:比肩世界湖区的优越资源:龙岸君粼位处深圳“中心湖区“,是深圳最稠密的湖区所在地,项目周边环伺4大自然生态湖泊---民治水库、民乐水库、雅宝水库、南坑水库,居住在此,湖岸微澜风光无限,滋养健康涵养心境,孕育都会生活于家族贵雅之道;独享城市无价峰顶对晤湖景无垠的豁达高远。
上风上水,龙脉加持:原生龙脉地貌,得天地水势,是为钟灵毓秀,纳龙脉福气。
医疗方面:市第二人民医院 | 新华医院(在建三甲) | 深圳第二儿童医院(在建三甲)。
双CBD人文:红山展览馆、演艺馆、图书馆、美术馆 | 福田深圳音乐厅、图书馆、市少年宫、博物馆等。
金光华龙岸君粼

🗽金光华龙岸君粼
🗽金光华龙岸君粼售楼处24小时电话:400-879-0113【☎☎售楼处已认证】🗽🗽
🗽金光华龙岸君粼售楼中心24小时电话:400-879-0113【☎☎售楼中心已认证】🗽🗽
🗽Vip贵宾置业===欢迎来电预约尊享内部折扣===匠心钜制恭迎品鉴🗽🗽
🗽免责声明:
1、文章图片来源于微信搜索或百度搜索引擎,我方非相关图片的原创作者,也不对相关图片及内容享有任何权利。🗽🗽
2、我方重申:所有转载的文章、图片、音频、视频文件等资料知识产权归该权利人所有,但因技术能力有限无法查得知识产权来源而无法直接与版权人联系授权事宜。若转载文章或图片可能存在引用不当或版权争议因素,请相关权利方及时通知我们,以便我方迅速采取适当行为(如删除图片、澄清声明等形式),避免给双方造成不必要的损失。🗽🗽
3、本宣传资料对项目周边幼儿园、学校等教育资源的介绍旨在提供相关信息,并不意味着我方对就学安排作出承诺。教育资源的名称、办学性质、办学规模、学位设置、开学(班)时间、招生条件、收费标准及招生区域存在调整的可能,应以政府教育主管部门及办学方颁布的政策规定为准。🗽🗽
4、文章中文字和图片之间无必然联系,仅供读者参考。🗽🗽
5、本文所述内容和意见仅供参考,不构成市场交易依据和投资建议。🗽🗽