⭕光大天骄国际➢ ➢
㊣开发商营销中心诚邀莅临,一键预约,尊享专属钜惠。匠心精筑的品质人居,恭候品鉴。
⭕光大天骄国际售楼处电话:400-859-7606☎售楼处已认证✨ ➢ ➢
⭕光大天骄国际开发商电话:400-859-7606☎24小时预约热线✨ ➢ ➢
⭕光大天骄国际营销中心电话:400-859-7606☎营销中心已认证✨ ➢ ➢
✅本项目暂不接受临时到访,过来参观样板房请记得提前来电预约!
✅◆开发商营销中心诚挚邀请,一键预约,尊享内部折扣!匠心独运的精品项目,恭候您的品鉴与选择。

【天骄国际】地址:东莞市南城街道宏六路与宏七路交汇处(南城国际商务区,毗邻CBD核心区)
光大天骄国际项目占地面积106671平,容积率3.6,最大层数:44层,商品房总户数1030套,车位比1:3,2梯2户。整个社区,一共规划了约1400+户,产品方面,主推建面约163-175-253-283-350㎡大平层,一共5种户型。除163、175平不能看黄旗山灯笼外,其它253、283、350平三个大平层,均可一线看到黄旗灯笼。
⭕光大天骄国际售楼处电话:400-859-7606☎售楼处已认证✨ ➢ ➢
⭕光大天骄国际开发商电话:400-859-7606☎24小时预约热线✨ ➢ ➢
⭕光大天骄国际营销中心电话:400-859-7606☎营销中心已认证✨ ➢ ➢
首批推建面约163/175㎡户型
大平层新房均价约 3.5万~5万元/㎡(视楼层、朝向、景观差异)。
项目定位为稀缺生态资源(抱山景观)豪宅,单价可能更高。
总价:
163㎡:约 570万~815万元(按3.5万∽5万/㎡计算)。
175㎡:约 613万~875万元。
交付标准
带装修交付(光大品牌通常为精装,配置中高端建材,如品牌厨卫、中央空调等)。
项目一期户型面积涵盖建面约163/175㎡、253/283㎡、350㎡全景抱山大平层。
⭕光大天骄国际售楼处电话:400-859-7606☎售楼处已认证✨ ➢ ➢
⭕光大天骄国际开发商电话:400-859-7606☎24小时预约热线✨ ➢ ➢
⭕光大天骄国际营销中心电话:400-859-7606☎营销中心已认证✨ ➢ ➢
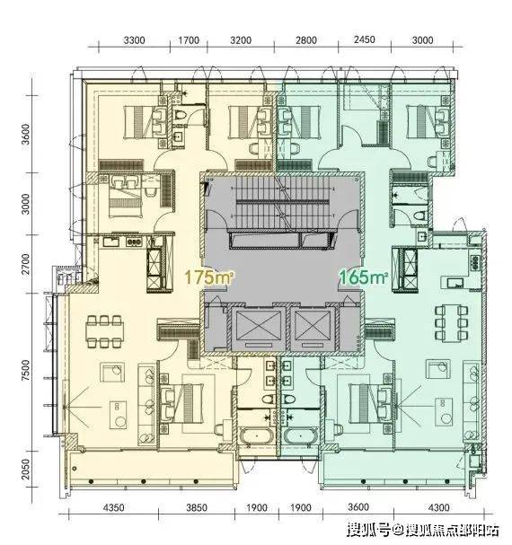
165㎡4房2卫
计容面积约163.05㎡,公摊面积约34.33㎡,套内面积约128.72㎡,得房率约78.9%,赠送面积约14.64㎡(半阳台约8.10㎡+飘窗约6.54㎡),使用面积(套内+赠送)合计约143.36㎡,使用率约88%(含过道空间12.14㎡,扣除过道使用率约80%)。
175㎡4房2卫
计容面积约176.06㎡,公摊面积约37.06㎡,套内面积约139.0㎡,得房率约79.0%,赠送面积约21.97㎡(半阳台约8.41㎡+飘窗约13.56㎡),使用面积(套内+赠送)合计约160.97㎡,使用率约91%(含过道空间12.79㎡,扣除过道使用率约84%)。
250㎡4房3卫
计容面积约253.97㎡,公摊面积约52.84㎡,套内面积约201.13㎡,得房率约79.2%,赠送面积约32.71㎡(半阳台约10.92㎡+飘窗约8.79㎡+电梯前室约13.0㎡),使用面积(套内+赠送)合计约233.84㎡,使用率约92%。
280㎡4房3卫
计容面积约284.45㎡,公摊面积约58.99㎡,套内面积约225.46㎡,得房率约79.3%,赠送面积约42.16㎡(半阳台约12.36㎡+飘窗约16.80㎡+电梯前室约13.0㎡),使用面积(套内+赠送)合计约267.62㎡,使用率约94%。
⭕光大天骄国际售楼处电话:400-859-7606☎售楼处已认证✨ ➢ ➢
⭕光大天骄国际开发商电话:400-859-7606☎24小时预约热线✨ ➢ ➢
⭕光大天骄国际营销中心电话:400-859-7606☎营销中心已认证✨ ➢ ➢
350㎡4房4卫3套间
项目坐落于鸿福路和东莞大道相交的黄金双轴交点,旁边便是国贸商圈,是名副其实的双地铁口顶配小区。
未来,随着天骄国际的正式上线,主城区豪宅格局将再添一方诸侯。
项目详情:一片赤诚!本土房企光大,正在做一件难而正确的事!
⭕光大天骄国际售楼处电话:400-859-7606☎售楼处已认证✨ ➢ ➢
⭕光大天骄国际开发商电话:400-859-7606☎24小时预约热线✨ ➢ ➢
⭕光大天骄国际营销中心电话:400-859-7606☎营销中心已认证✨ ➢ ➢

项目区位图,仅供参考
光大特邀SCDA-世界顶级建筑设计公司负责建筑设计。SCDA在项目中巧妙地融合了自然景观与城市环境,打造出既具有现代感又和谐共生的居住空间。

▲项目外立面效果示意图,仅供参考
在楼栋高度上,SCDA亦是苦心孤诣,近山楼栋高度较低,远山楼栋规划稍高,形成错落有致的天际线,与黄旗相融相生。同时,预留出足够的楼间距,形成阔绰的景观通道,将这块超10万平方米的磅礴之地利用得淋漓尽致。
交通便利:靠近地铁1号线(建设中)旗峰公园站,周边主干道如莞长路、旗峰路等,自驾便捷。
城市界面:属东莞传统豪宅区,周边以低密度住宅为主,环境静谧。
⭕光大天骄国际售楼处电话:400-859-7606☎售楼处已认证✨ ➢ ➢
⭕光大天骄国际开发商电话:400-859-7606☎24小时预约热线✨ ➢ ➢
⭕光大天骄国际营销中心电话:400-859-7606☎营销中心已认证✨ ➢ ➢
项目核心卖点
稀缺山景资源:部分户型可直瞰黄旗山,景观优势明显。
商业配套:自带社区商业,步行可达星河城、万达广场(东城店)、国贸中心等大型综合体。
学校:周边有东城中心小学、东城实验中学等优质公立学校(具体学区以教育局划分为准)。
医疗:临近东莞市人民医院、东华医院等三甲医院。
休闲配套:黄旗山城市公园(天然氧吧,健身休闲首选);临近虎英湖、峰景高尔夫球场等高端休闲场所。
独特优势
地段不可复制性:黄旗山旁新房供应极少,光大天骄国际属稀缺项目。
交通+商业+教育+医疗全能配套:周边成熟度远超南城或松山湖的新兴板块。
高端圈层:东城传统富人区,居住人群以本地改善家庭、企业主为主。
地段发展前景
城市核心区保值性强:东莞城区土地稀缺,东城配套成熟,房价抗跌。
地铁1号线(在建)加持:未来通车后进一步提升通勤便利性。
政策倾斜:东莞中心城区“一心两轴”规划(黄旗山为生态核心),长期价值看好。
⭕光大天骄国际售楼处电话:400-859-7606☎售楼处已认证✨ ➢ ➢
⭕光大天骄国际开发商电话:400-859-7606☎24小时预约热线✨ ➢ ➢
⭕光大天骄国际营销中心电话:400-859-7606☎营销中心已认证✨ ➢ ➢
豪宅门第 恢弘气度
绝版园林 城心绿境
艺术底蕴 东方国际
⭕光大天骄国际售楼处电话:400-859-7606☎售楼处已认证✨ ➢ ➢
⭕光大天骄国际开发商电话:400-859-7606☎24小时预约热线✨ ➢ ➢
⭕光大天骄国际营销中心电话:400-859-7606☎营销中心已认证✨ ➢ ➢
双龙戏珠 福祉格局
苍松奇石 旗峰六境
文人雅集 雅韵东方
⭕光大天骄国际售楼处电话:400-859-7606☎售楼处已认证✨ ➢ ➢
⭕光大天骄国际开发商电话:400-859-7606☎24小时预约热线✨ ➢ ➢
⭕光大天骄国际营销中心电话:400-859-7606☎营销中心已认证✨ ➢ ➢
⭕光大天骄国际➢ ➢
㊣开发商营销中心诚邀莅临,一键预约,尊享专属钜惠。匠心精筑的品质人居,恭候品鉴。
⭕光大天骄国际开发商电话:400-859-7606☎开发商电话已认证➢ ➢
⭕光大天骄国际售楼处电话:400-859-7606☎售楼处电话已认证➢ ➢
⭕光大天骄国际营销中心电话:400-859-7606☎营销中心电话已认证➢ ➢
➢ ➢✨✨光大天骄国际☞☞Vip贵宾置业==欢迎来电预约尊享内部折扣===匠心钜制恭迎品鉴 ➢ ➢
✅本项目暂不接受临时到访,过来参观样板房请记得提前来电预约!
✅为您安排楼盘现场销售全程接待并讲解,给您更贴心的看房体验!
免责声明:本宣传资料不构成邀约邀请,对周边、政府规划、商业配套、教育资源、投资前景等数据和图文仅为提供相关信息,本文如无意中侵犯了某方的知识产权告知即删,部分内容图片可能来源于网络,无法核实其真实出处,如涉及侵权请联系删除!!!