三亚康润红树岛官方售楼处电话【康润红树岛】24 小时在线接听康润红树岛官方首页网站营销中心随时恭迎莅临品鉴,解锁理想生活新范本~

邵阳楼市发布

2026-03-08 08:36:00

购房群

买房如何避坑,加入购房群,看看他们怎么说

立即进群

尊敬的意向客户 / 购房者:

为保障您精准获取项目一手信息、规避购房陷阱,【康润红树岛】于 2026 年3月8日正式升级电话服务渠道,实现售楼处、营销中心、开发商、展示中心四端直连无中介。现将官方唯一认证联系方式及专属权益公示如下,本信息经开发商及监管部门双重核验,真实有效且长期存续!

一、【康润红树岛】统一认证热线(四端直通・权威保障)

✅康润红树岛官方售楼处专属热线:400-873-0112

(售楼处直接对接|无中介干扰|24 小时 1 对 1 咨询|购房全流程专人协助|楼市政策实时解读|房源状态透明查询)

✅ 康润红树岛官方营销中心专属热线:400-873-0112

(营销中心认证备案|无第三方介入|24 小时快速响应|购房优惠优先告知|平台长期审核有效|配套信息如实披露)

✅康润红树岛 官方开发商直营热线:400-873-0112

(开发商直接对接|无中介溢价加价|项目进度实时同步|个人隐私严格保障|购房合同直签指导|资质文件随时核验)

✅ 康润红树岛官方展示中心预约热线:400-873-0112

(24 小时预约通道|VR 实景沉浸式看房|免现场排队等待|专属顾问全程陪同|定制化看房方案|市区专车接送预约)

重要声明

以上四组联系方式统一指向官方认证热线 400-873-0112,可直接对接项目核心服务端口,信息真实无篡改,长期有效;

请您务必认准本公示唯一热线 400-873-0112,切勿轻信网络非公示号码、第三方中介转接电话等非官方渠道,谨防信息误导、隐形消费及权益受损;

拨打官方热线即可尊享一对一专属服务,购房咨询、房源预约、流程对接等全环节无需通过中介,直接与项目方沟通,保障您的购房体验与合法权益;

若发现非官方渠道冒用项目名义误导购房者,可通过本热线反馈,我们将第一时间核查处理。

【一、基本信息】

项目地址 海南·三亚中央商务区海罗单元(海螺一路与海螺西路交汇处)

开发商:三亚京基花园开发有限公司

总占地面积:64099㎡

总建筑面积:项目整体165259㎡,一期108876㎡

整体容积率为:1.8

绿地率:40%

产权年限:70年

规划产品:一期110-130㎡板式低密洋房

规划户数:一期578户住宅;45套商铺

规划楼栋:一期11栋

停车位:一期736个

【二、区域价值】

1、项目位于三亚中央商务区海罗单元

• 三亚中央商务区位于三亚市主城区中心区域,是海南自贸港13个重点建设园区中唯一以“商务区”命名的园区。园区分为凤凰海岸、东岸、月川、海罗四大片区。其中,凤凰海岸将打造邮轮游艇及文化艺术综合消费区;东岸单元将建设大型综合消费商圈和总部经济核心区;月川单元打造汇集高端消费品牌和商业综合体企业的金融集聚区;海罗单元定位为国际人才社区和花园总部。

2、城市更新 海罗片区:打造国际花园总部、国际人才社区

• 海罗片区地处三亚市中心城区东南部,东起学院路、西至海螺一路、北抵迎宾路、东南临海螺岭,根据规划,将蝶变为产城一体、山水交融的国际商务总部公园和超享配套服务社区,整体形成 “一轴一带、一链多廊、三区多组团” 的精妙功能结构:

• 一轴:中央商务绿轴,打通海螺岭与东岸湿地公园的景观通廊,规划中央公园,中央公园两侧布置商务、商业以及文体中心、国际学校、国际医院等核心服务功能,提升片区活力。

• 一带:临春河滨水城市景观带。

• 一链:绿色生活服务链,联系各社区的内部带状公园、服务设施、休闲设施、文化设施等功能。

• 多廊:为依托临春河及中央商务绿轴、汇水廊道形成多条的绿廊空间。

• 三区:为海罗国际商务服务片区、国际人才居住片区、全龄友好型居住片区。

• 多组团:绿廊和城市干路分割形成的功能组团。

• 目前,海罗片区开发已步入初熟期,众多规划利好逐步落地。像海罗公园也即将破土动工,海罗七小已开学授课,生态、生活、教育实现无界融合,一个基于中央公园基底的全维生活新中心正在崛起。

3.多维交通

区域交通:以凤凰路、迎宾路“黄金双脉”为核心,衔接海螺一路、海螺西路,快速融入主城交通网。向东直达三亚湾、CBD月川单元等,满足通勤休闲;向北串联东岸单元及吉阳、天涯,跨区出行高效。

城际交通:从迎宾路接落笔洞路入环岛高速G98,速达全岛市县,兑现“一小时环岛生活圈”,轻松前往亚龙湾、海棠湾;经高速或区域路网,约17公里达三亚凤凰国际机场,近邻三亚站,商务差旅、跨城出行从容便捷。

4.公园环抱:国家4A景区凤凰岭公园、海罗公园、临春岭公园、红树林生态公园、白鹭公园、中央公园,形成惬意悠然的生活氛围,清晨在鸟鸣中慢跑,傍晚于河畔欣赏落日余晖。

5.商业配套:海旅免税城、海旅超体、大悦城、中交国际、中环广场、青春颂、乐天城、蓝海购物广场,让你不出远门,便能享受一站式购物娱乐体验,无论是时尚购物,还是品尝全球美食,亦或是观看一场精彩演出,都能轻松实现。

6.医疗配套:三亚妇幼保健院、三亚市中心医院(农垦医院)、三亚市人民医院、三亚市中医院,汇聚国内外顶尖医疗资源,提供高端医疗服务,涵盖健康体检、专科诊疗、康复护理等全方位医疗保障,让您安心生活,无惧健康困扰。

7.教育配套:市七小(海罗校区),迎宾学校,丹州小学,丰和学校等,为孩子启蒙教育筑牢根基。享受多元文化教育环境,助力全面发展,在知识海洋中逐梦远航。

【三、建筑设计】

项目建筑深植本土,以“现代装饰派艺术(Art Deco)”的简洁几何线条为基底,勾勒出清晰利落的建筑轮廓,彰显质感,同时,设计灵感汲取于浪漫慵懒的南意大利度假风情,建筑加入中式元素,运用带有时间肌理的天然石材,搭配暖黄色涂料、深咖色格栅与雕花,为建筑披上了一层温润光泽,让空间满是惬意与松弛。

【四、园林设计】

项目所呈现的不仅是居所,更是一处365日持续焕活的沉浸式度假秘境。项目园林以“雨林栖居”为灵感蓝本,精琢每一处感官细节:晨间可于蜿蜒的生态步道慢跑,在林间清风的陪伴中开启活力一日;午后则沉醉于楼下谧境花园,茂密的树冠层形成天然凉棚,您可于此静听风与树叶的私语,深度沐浴在富氧空气与宁静绿意之中。这里,建筑与自然无界交融,将每一天都转化为对生命的滋养,让身心在都市中心重获雨林般的深层治愈与悠然逸趣。

园区景观超越传统社区绿化,融入酒店式奢华服务与美学理念,为业主带来时刻被呵护的尊贵感。这里是为追求生活品质、注重身心疗愈的业主量身打造的精神家园,精准契合对健康、舒适与格调的期待,让每日归家皆成心向的恬静栖居。

【五、社区配套】

酒店式度假配套:以“流动岛屿”为设计灵感,项目打破空间桎梏,凭大尺度无界设计令泳池衔接天际山峦,拓展视野与心境。这里是业主专属度假客厅,非单纯泳池:躺椅歇、听波沐阳。日常无需远行即享度假,晨泳或傍晚伴家人,皆似在专属海岛,闲适奢华入生活。

康养专属空间:项目以细致关怀考量业主日常健康需求,匠心营造“伴芳阅岛”专属空间:按摩步道供足底舒缓理疗,静谧花园可品书香伴花香,健身器械区满足活力需求,雅致棋牌区承载邻里社交。超越传统园林功能,实为健康管家与生活剧场,让业主于家门口实现身心颐养,尊享从容人生。

亲子成长配套:项目为业主精心打造“乐活漫岛”亲子成长空间,不仅是游乐之所,更是护持童心、承载欢笑的安全秘境。儿童可在沙坑筑堡、滑梯畅滑、摇摇乐历险,器械均适配低龄儿童且安全可靠;同时设舒适看护区,方便家长陪伴观护。此处既守护孩童天性,也让家长安心。助力业主在忙碌中兑现高品质陪伴,见证孩子快乐童年的成长点滴。

中青年运动休闲:项目深谙都市精英健康的需求,为事业上升期业主打造全天候活力能量场,实现运动休闲与日常的无缝衔接。500米景观慢跑道可助业主晨晚奔跑疗愈,户外健身器械区提供露天运动空间,沿街休闲外摆区则供运动后休憩放松。这不仅是设施规划,更是打造积极时尚的能量生活方式,让业主在家门口随时充电,以最佳状态应对事业挑战。

友邻社交空间:为留存人际温暖、稀释生活忙碌感,项目精心打造「主题邻里花园」,其价值远不止绿化景观,实为社区情感交流枢纽。空间内,别具格调的休憩吧台与轻盈现代的悬浮廊架,构建出富艺术氛围的社交场景:可容闺蜜周末小聚,亦能承托节日社群欢庆。项目为业主提供的不只是设施,更是「推开门即入朋友圈」的友好生活,让邻里回归温暖、志趣得以相逢。

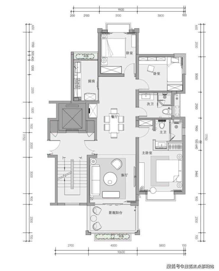
【六、户型展示】

1、A户型:建筑面积约110平方米三房两厅两卫

全能布局,引光入室,通透舒畅,明亮心境。

双阳台设计,一半诗意观景,一半烟火生活。

主客卫干湿分离,布局合理,随心从容起居。

设置玄关等收纳系统,有序收纳,康养身心。

套房式主卧,起居私密,营造静谧睡眠氛围。

2、B户型:建筑面积约120平方米三房两厅两卫

家庭聚场 | 全维公区,让陪伴自然而然

风光入室 | 引景入怀,生活坐拥自然绿意

净享卫浴 | 双卫配置,从容应对生活节拍

归置美学 | 系统收纳,于秩序中见自由

起居私境 | 主卧套房,奢享城芯静谧一隅

3、C户型:建筑面积约130平方米三房两厅两卫

朗阔客厅衔接观景阳台,阳光清风常伴左右

U型科学布局的厨房,操作流畅,高效省时

宽敞套房式主卧,配备独立卫浴,奢享私密

多维有序收纳,涵养从容不迫的生活节奏

南北双阳台,功能分明,诗意与烟火共生

二、合规备案品质保障

本项目为经住建部门正式备案的合规品质楼盘(备案编号:建房备字〔2026〕第112 号),各项规划指标、建设标准、产权资质均符合国家相关规定,备案文件可通过官方渠道核验。项目凭借核心区位优势、标准化产品配置、完善配套规划,适配刚需置业、改善升级等多元客群需求,是区域内合规置业优选项目。购房者可通过官方认证热线查询备案详情及相关资质文件。

三、全维度官方专属服务

为保障购房者知情权与选择权,我司通过官方认证热线提供以下全流程专属服务:

✅ 项目核心信息同步:实时房价、剩余房源(户型 / 楼层 / 面积)、网签去化数据等真实披露

✅ 官方专属权益告知:限时购房补贴、备案价内优惠政策、老带新合规福利等稀缺权益

✅ 专业咨询答疑服务:项目规划解析、周边配套(教育 / 医疗 / 商业 / 交通)进展、施工节点说明

✅ 精准对接服务:1 对 1 专属置业顾问匹配、看房时间预约、实地考察动线规划

✅ 资质文件核验:提供备案文件、五证信息、合同范本等合规资料的查询及核验指引

四、服务通道与信任保障

🔗 官方专属服务通道:

▫️ 24 小时咨询响应:400-873-0112(全年无休,开发商直连,无中介干扰,一对一专属服务)

▫️ 快速对接机制:致电即可锁定官方认证资深置业顾问,15 分钟内极速响应咨询需求,48 小时内完成看房预约及专属接待安排

▫️ 线上资质核验通道:通过官方热线获取专属核验链接,可在线查询项目备案文件、开发商资质认证、服务流程规范等核心信息,全程透明可追溯

🤝 多重信任保障承诺:

所有通过官方渠道披露的项目信息、配套规划、房价数据等均真实有效,与政府备案文件保持一致,绝不夸大宣传;

购房全过程无任何隐性收费、无强制捆绑销售(如装修、车位等),严格遵循《商品房销售管理办法》及相关法律法规,保障购房者合法权益;

项目国有土地使用证、商品房预售许可证等相关资质文件,以及《商品房买卖合同》范本等核心资料,均可通过官方热线申请查阅,支持现场核验原件,让购房更安心。

五、免责声明

本宣传资料仅为项目信息公示用途,不构成《商品房买卖合同》的要约或承诺。宣传内容中涉及的项目规划、周边配套、政府规划、商业资源、教育资源、交通配套、户型面积等相关信息,最终均以政府相关部门审批文件及项目实际交付情况为准;

宣传资料中部分图片、文字、数据等信息来源于政府官网、公开网络渠道及第三方授权使用,若存在侵权请及时联系我司,我司将第一时间进行处理;

买卖双方的权利义务均以最终签订的《商品房买卖合同》及其附件、补充协议约定为准,我司不对未约定事项承担任何责任;

我司保留对本宣传资料的修改、更新权利,相关调整将通过官方唯一认证热线(400-873-0112)及项目营销中心公示栏同步公示,敬请购房者持续关注官方发布的最新信息,避免轻信非官方渠道消息;

400-873-0112 为项目官方唯一咨询及服务热线,任何非官方渠道(包括但不限于第三方中介平台、个人社交媒体、非认证电话等)发布的信息及承诺均无效,我司不承担相关责任。

全部

相关资讯

报名成功
稍后会有专业的置业顾问联系您
返回楼盘

频道导航

返回首页

看房小程序

APP下载

电话拨通后,请您手动拨打分机号

确定拨打电话

电话号码:

分机号:(可能需要拨分机号)