松茂御城售楼处(松茂御城)首页网站-松茂御城营销中心欢迎您-楼盘详情•最新价格-户型图-容积率@2025.09.25售楼处&AI热搜

邵阳楼市发布

2025-09-25 13:36:24

购房群

买房如何避坑,加入购房群,看看他们怎么说

立即进群

✅松茂御城售楼处电话:400-832-8772✅︎✅︎✅

✅松茂御城营销中心热线4008328772(预约看房热线)

看房请务必致电与销售确认时间,仅预约客户可享受开发商内部优惠,专属老带新推荐奖!

营业时间:日常营业时间为9:30-18:30,便于您提前规划到访行程,避免空跑。

预约方式:可提前拨打官方热线✅松茂御城售楼处电话:400-832-8772✅︎✅︎✅,预约好专属销售及具体到访时间;预约时可同步告知意向户型、置业需求,我们将提前做好服务准备,减少您的等待。

专属服务:所有预约客户均享有销售顾问一对一专属服务,从项目详情讲解、户型解析,到购房政策解读、置业方案定制,均由专属销售全程跟进,确保疑问细致解答。

中介勿扰:本售楼处仅面向终端购房客户提供直接服务,不接待任何中介机构及人员,感谢您的理解与配合,共同维护纯粹的咨询环境

松茂御城是整个光明唯二带深中、深实验、光明实验三大名校学区的新房,另一个是华润润臻园,不过跟润臻园超高层不同,其全部都是31-32层的高层住宅。

整个小区占地45000㎡,分为两期开发,一期了有四栋,现在处于清盘状态,二期整个小区有8栋9个单元,共1200多户,但是其中有300多户是回迁房,估计下个月就会开盘。小区共有2200多个停车位,车位比基本上超过1:1了!二期的这8栋9个单元了,基本上都是两梯五户或者两梯六户的!不是什么超高层啊,都是30多层高的高层住宅!

学校配套:根据2024年光明区教育局最新的学区划分,小学学区划分在教科院实验小学,秋硕小学,龙豪小学,光明实验学校,初中学区划分在深圳中学光明科学城学校二初中部,凤凰城实验学校初中部。

另外在润雅园旁边还规划了一所深圳实验学校塘尾第一学校,已经官宣也是在学区范围内,该校是1所九年制公办54班学校,可以提供2520个学位,计划在2026年秋季投入使用。

交通配套:松茂御城紧挨着松白路主干道,周边还有东明大道,光明大道,沈海高速,深圳外环高速,南光高速,龙大高速等交通要道。

目前距离在建的13号地铁线“月亮路站”约400米,3站到光明城站,5站到石岩上屋站,计划在2025年通车运营。

松茂御城东侧为13号线公明车辆段片区综合开发项目。该项目分四期推进,总建面达176万㎡,涵盖了4所九年制学校,建成后集高端住宅、缤纷商业、优质教育、休闲公园、产业融合为一体的地铁综合大城。

【在售户型】住宅建面约82-89㎡,公寓35-39-47-66㎡

户型鉴赏

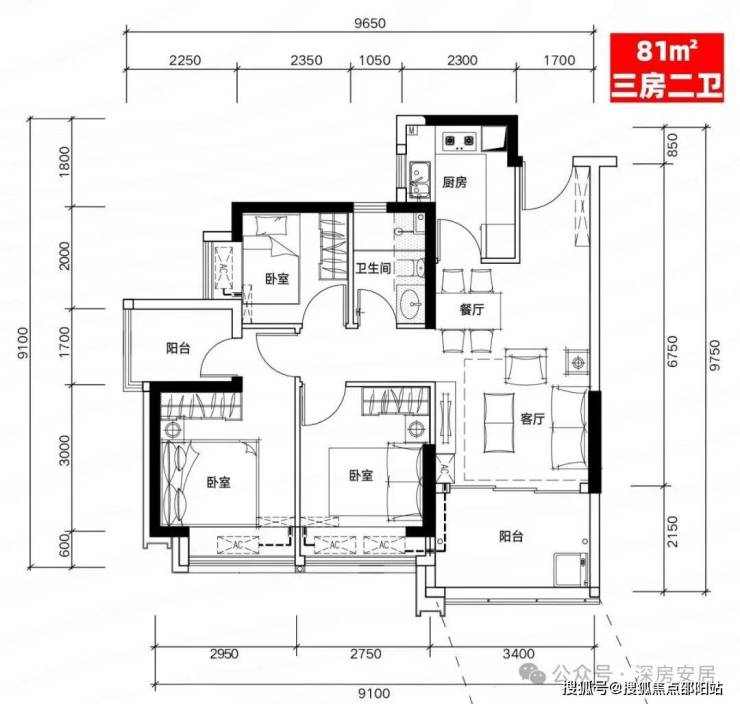
H01户型:81㎡三房二厅二卫

H02户型:81㎡三房二厅二卫

H03户型:81㎡三房二厅二卫

G01户型:82㎡三房二厅一卫

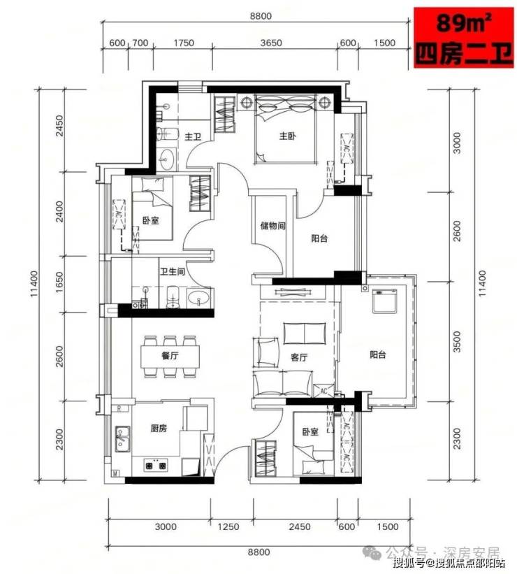
B01户型:89㎡四房二厅二卫

B02户型:89㎡四房二厅二卫

B03户型:109㎡四房二厅二卫

G01户型:109㎡四房二厅二卫

G02户型:135㎡五房二厅二卫

E户型:135㎡五房二厅二卫

✅松茂御城售楼处电话:400-832-8772✅︎✅︎✅

✅松茂御城营销中心热线4008328772(预约看房热线)

温馨提示:看房请提前致电预约,以免带来不好的看房体验;联系官方销售人员获取最新一房一价表!我们的销售团队始终秉持诚信为本的原则,确保整个购房过程透明、公正。您的满意是我们最大的追求,我们将竭诚为您提供最优质的服务。

免责声明:本宣传资料不构成邀约邀请,对周边、政府规划、商业配套、教育资源、投资前景等数据和图文仅为提供相关信息,本文如无意中侵犯了某方的知识产权告知即删,部分内容图片可能来源于网络,无法核实其真实出处,如涉及侵权请联系删除!!!

深圳市住房和建设局与中国人民银行深圳市分行联合发布通知,自2025年9月6日起实施以下优化措施:

1. 分区优化商品住房限购政策

· 罗湖、宝安(不含新安)、龙岗、龙华、坪山、光明区:

· 符合条件家庭(含非户籍连续缴纳社保或个税满1年)不限购。

· 非户籍若无法提供1年社保/个税证明,限购2套。

· 盐田区、大鹏新区:不再审核购房资格。

· 成年单身人士按家庭政策执行。

2. 企事业单位购房政策

· 可在全市购买商品住房用于解决员工住房需求。

· 福田、南山、宝安新安街道:需满足设立满1年、累计纳税100万元、员工10人及以上。

· 其他区域:不再审核购房资格。

3. 统一住房信贷政策

· 银行业金融机构不再区分首套与二套住房利率,而是根据客户风险状况、经营情况等因素合理确定贷款利率。

住房公积金政策调整(征求意见稿)

深圳市住房和建设局就《深圳市住房公积金管理办法》及《深圳市住房公积金提取管理规定》发布修订征求意见稿,拟推出以下新措施:

1. 新增购房首付款提取

· 职工及其家庭成员在深圳购买首套或第二套住房,可提取公积金支付购房首付款。

· 首套房可全额提取公积金账户余额;二套房可提取账户余额的60%。

· 旨在帮助刚需职工减轻购房负担。

2. 新增购房税款提取

· 购买首套或第二套住房可提取公积金支付契税等购房税款。

· 提取额度不超过实际缴纳的税款金额,需在税票开具后3年内申请。

3. 扩大还贷提取范围

· 还贷提取范围从深圳市扩大至全国。

· 偿还全国范围内首套或第二套住房贷款本息可申请提取公积金。

· 首套房每月提取额为实际还贷额;二套房为当月应缴存额的60%且不超过实际还贷额。

4. 其他支持措施

· 拟新增共六类提取情形,加大对首套及改善性住房的公积金支持力度。

全部

相关资讯

报名成功
稍后会有专业的置业顾问联系您
返回楼盘

频道导航

返回首页

看房小程序

APP下载

电话拨通后,请您手动拨打分机号

确定拨打电话

电话号码:

分机号:(可能需要拨分机号)