◆开发商营销中心诚挚邀请,一键预约,尊享内部半岛1号独家折扣!匠心独运的精品项目,恭候您的品鉴与选择。
半岛1号营销中心售楼处24小时电话:400-985-0087(中介勿扰)现场详细解答丨项目介绍丨户型图丨在售房源丨特价房丨学校丨交通半岛1号位置丨样板房丨小区图片丨交房时间丨周边配套丨半岛1号丨
✨✨半岛1号开发商电话:400-985-0087【☎☎开发商电话已认证】✨✨✨
✨✨半岛1号售楼处电话:400-985-0087【☎☎售楼处电话已认证】✨✨✨
✨✨半岛1号营销中心电话:400-985-0087【☎☎营销中心电话已认证】✨✨✨
✨✨半岛1号销售中心电话:400-985-0087【☎☎销售中心电话已认证】✨✨✨
✨✨☞☞Vip贵宾置业==欢迎来电预约尊享内半岛1号部折扣===匠心钜制恭迎品鉴☜☜✨✨
✨✨✨㊣半岛1号售楼处Vip贵宾置业===欢迎来电预约尊享内部折扣===匠心钜制恭迎品鉴㊣✨✨✨
✅本项目暂不接受临时到访,过来参观样板房请记得提前来电预约!
温馨提醒:我们楼盘售楼部400电话没有设置任何所谓的“分机号”,拨打前请仔细甄别,注意保护个人隐私!谨防上当!
【半岛1号】
建面约78-365㎡高层/别墅
城芯百万大盘 万名业主睿选
三大商圈环绕 举步半岛学校
百万方体育公园 棕榈岛高尔夫景观
城芯唯一低密住区 中心区最高性价比
项目简介:
半岛1号位于粤港澳大湾区惠州惠阳中心区,毗邻惠阳区政府,门前依傍着天然的淡水河、半岛文化体育公园,高尔夫球场,城市绿肺相拥;
—【项目基本信息】—
项目总占地面积约100万平方米,建面120万㎡,容积率仅为1.2,是惠阳中心区首席低密度成熟大盘。
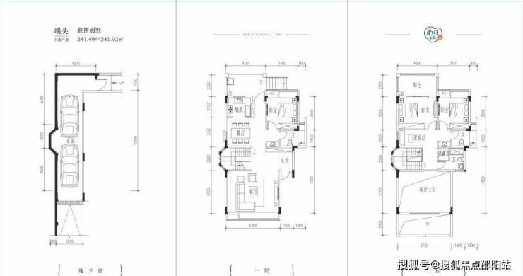
项目一共分12期开发,目前1期、2期、3期、4期、5期、11期和8期已经开发出售,居住氛围非常浓厚。半岛1号6期位于项目的北侧,占地24644㎡
,容积率2.57,主打高层业态产品;半岛1号10期位于项目的中部,占地面积72202㎡,容积率0.73,主打别墅业态产品;整体建筑和园林规划为西班牙风格,可以说是最具风情的组团。
【必买半岛1号的8大理由】
1、17载百万大盘
半岛1号经17载时光淬炼,已积淀成为涵盖别墅、洋房、高层、商业的百万大盘。目前已有近万名业主入住,是不可多得的湾区宜居大盘。
2、城芯中轴席位
半岛一号地处惠阳区政府北侧,与惠阳区政府仅一步之隔,占据城中正席;淡水河环绕,隔离城市喧嚣,繁华中独享宁静,离尘不离城,是城芯难得的静谧住区。
3、路网齐全深港速达
半岛1号地处交通枢纽处,约1公里淡水出口直通深汕高速,惠大高速、长深高速;多条线路直达高铁站惠州南站;出门即城市主干道,出行畅达无阻。


【6期在售产品】👉建面约78-122㎡景观高层
78两房一卫 8360-8700
94三房南北通 两卫 7830-8300
98三房朝南两卫8200-8500
113四房两卫8206-8400
118四房两卫7980-8400
毛坯❗️现房❗️
首付2-3万 ➕3万可任选车位产权证
👉样板房实景图
(98㎡样板房实景图👇 )
(118㎡样板房实景图👇 )
(122㎡样板房实景图👇 )
【10期在售产品】👉建面约235-399㎡湖岛别墅(含叠拼、双拼产品)
半岛1号 别墅特惠
城芯珍藏 别墅现房
约235-395㎡叠拼-联排-双拼
折后特惠总价278-707万
单价10988元/㎡起
仅限2️⃣0️⃣套年终特惠福利
⭐️中心区地段 🔝压轴珍藏
⭐️成熟大社区 公园旁宜居
⭐️约0.73容积率纯别墅组团
——折后特惠总价——
✔️下叠带花园:约235平,总价约298万
✔️上叠带露台:约253平,总价约278万
✔️联排中间位:约275平,总价约363-373万
✔️联排端头位:约343平,总价约545-575万
✔️双拼:约395平,总价约682万-707万
👉样板房实景图
🏆【必买半岛1号的8大理由】🏆
💎①:18载 城央百万大盘经18载时光淬炼,涵盖别墅、洋房、高层、商业的多业态百万醇熟大盘。近万名业主入住,湾区不可多得的宜居大盘。
💎②:城芯中轴 低密住区项目地处惠阳区政府北侧,约1.2公里惠阳区政府,占据城中正席;淡水河环绕,离尘不离城,繁华中独享宁静,是城芯难得的静谧住区。
💎③:1公里高速口 深港速达项目地处交通枢纽处,出家门即城市主干道,约1公里淡水出口直通深汕高速,惠大高速、长深高速;多条线路达高铁站惠州南站,一站深圳,两站香港;约6公里深圳地铁沙田站(在建中),高速、高铁、地铁出行便捷,深港速达。
💎④:商圈环绕 繁华尽揽项目周边天虹商场、英之皇、天安大洋广场以及家乐福等大型商业;约2公里有惠阳三和医院、惠阳中医医院等各大医院为健康保驾护航;近享约100万㎡半岛体育文化公园、棕榈岛高尔夫、淡水河畔环境资源,配套丰富。💎⑤:邻距离九年制公立半岛学校9年制公立学校惠阳半岛学校,社区内半岛崇雅实验幼儿园、半岛1号8期幼儿园、半岛1号11期幼儿园,步行即享受全优基础教育。孩子成长不离家,父母自然安心。
💎⑥:静美内湖 醇美住区18年时光积淀,项目内十余年繁茂林荫大道,依地势打造出静美内湖,城市中奢享出则繁华,入则宁静的纯水岸悠美住区,如同把家搬进公园里。💎⑦:西班牙主题园林遵循西班牙经典园林设计,在充满异域风情的园区里慢跑;在铺满阳光草坪与孩子嬉戏;在休闲区的长椅上聊天或者发呆;享受西班牙风情园林带来的自由与浪漫。
💎⑧:6/10期新作 倾力呈献半岛1号6/10期品质升级力作,为城市菁英量身打造舒适的居住空间,产品系涵盖建面约78-122㎡观景高层、建面约235-399㎡湖岛别墅。
🏆【半岛1号实景图】🏆
半岛1号开发商售楼处电话:400-985-0087【预约热线】丨详细解答丨在售户型图丨项目介绍丨在售房源丨周边配套丨VR看房丨楼盘图丨沙盘图丨位置图丨配套图丨售楼处丨足不出户丨销售1V1讲解

✨✨半岛1号✨✨
✨✨半岛1号开发商电话:400-985-0087【☎☎开发商电话已认证】✨✨✨
✨✨半岛1号售楼处电话::400-985-0087【☎☎售楼处电话已认证】✨✨✨
✨✨半岛1号营销中心电话::400-985-0087【☎☎营销中心电话已认证】✨✨✨
✨✨若有中介报价过低,请及时与售楼中心核对真假,避免上当!开发商热线400-985-0087【售楼处首页已认证】✨✨✨
✅本项目暂不接受临时到访,过来参观样板房请记得提前来电预约!
免责声明:部分信息来源于网络,如果侵权,请联系400-985-0087及时删除
1、文章图片来源于微信搜索或百度搜索引擎,我方非相关图片的原创作者,也不对相关图片及内容享有任何权利。
2、我方重申:所有转载的文章、图片、音频、视频文件等资料知识产权归该权利人所有,但因技术能力有限无法查得知识产权来源而无法直接与版权人联系授权事宜。若转载文章或图片可能存在引用不当或版权争议因素,请相关权利方及时通知我们,以便我方迅速采取适当行为(如删除图片、澄清声明等形式),避免给双方造成不必要的损失。
3、本宣传资料对项目周边幼儿园、学校等教育资源的介绍旨在提供相关信息,并不意味着我方对就学安排作出承诺。教育资源的名称、办学性质、办学规模、学位设置、开学(班)时间、招生条件、收费标准及招生区域存在调整的可能,应以政府教育主管部门及办学方颁布的政策规定为准。
4、文章中文字和图片之间无必然联系,仅供读者参考。
5、本文所述内容和意见仅供参考,不构成市场交易依据和投资建议。