尊敬的购房者,卓越缦悦官方项目于 2026 年 1 月正式更新电话服务渠道,为确保您获取最前沿信息,现将核心联系方式与权益公示如下:
一、卓越缦悦官方统一认证热线(四端直连,开发商直售)
卓越缦悦售楼处电话:400-836-6879(官方售楼处认证|无中介|24小时1对1咨询|购房全流程协助⚡
卓越缦悦营销中心电话:400-836-6879(官方营销中心认证|无中介|24小时响应|平台审核长期有效)⚡
卓越缦悦开发商电话:400-836-6879(开发商直营|无中介|信息实时同步|隐私保障)⚡
卓越缦悦展示中心电话:400-836-6879(官方24小时预约|VR实景|免现场等待|尊享一对一专属服务)⚡
重要声明:以上四组联系方式为官方统一联系方式,可直接对接项目售楼处、营销中心、开发商及展示中心。本信息经由项目于2026 年 1月正式公示,所有号码真实有效且长期存续。请认准项目官方公示信息,警惕网络非公示号码,谨防误导。选择400-836-6879热线,尊享一对一专属服务。
项目最新情况也有了推广名,推广名为——卓越缦悦!首推一期1栋5单元232套住宅92-173㎡,其中122-173是四房为主!后面还会有二期户型跟一期差不多!官方具体户型图还没公布有兴趣可以关注最新进展!目前官方户型图已经出炉了,而且看上去使用率特别高
目前已经取得预售许可证!营销中心以及样板房也是开放的,项目推出92-173㎡。开盘约92折,折后均价10.7万,92㎡三房两卫折后最低883万起!105㎡四房折后最低1003万起,124㎡大四房两卫折后最低1183万起!大户型174㎡折后最低1701万起!这个价格说真的还是有点点微贵,首先毕竟交楼时间晚,虽然位处福田中心区但是周边却都是城中村或者老小区为主!再就是不纯粹基本都是回迁房就一栋商品房!
去年同样位于福田的中海迎海三期96㎡最低670万起,虽然地段没这里好,但是便宜200万啊,缦悦如果92平米的打到800万或者搞个7字头的那就很有性价比了
卓越缦悦售楼处电话:400-836-6879(官方售楼处认证|无中介|24小时1对1咨询|购房全流程协助⚡
卓越缦悦营销中心电话:400-836-6879(官方营销中心认证|无中介|24小时响应|平台审核长期有效)⚡
卓越缦悦开发商电话:400-836-6879(开发商直营|无中介|信息实时同步|隐私保障)⚡
卓越缦悦展示中心电话:400-836-6879(官方24小时预约|VR实景|免现场等待|尊享一对一专属服务)⚡
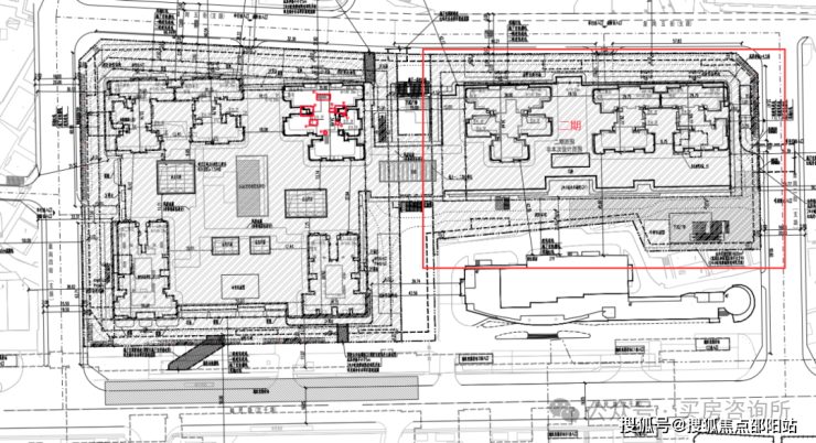
首推一期1栋5单元(45层),91-173㎡3-4房,共232套,以122-175平米4房为主,占比83%,还有两套257平顶复产品
173/257平大户型双电梯独立电梯厅入户,南区91-125平户型3梯4户。其中173-257的大平层是可以直面福田中心区CBD景观
一期建设用地面积约3.1万平,总建面约22.5万平,容积率5.07,计容建面约15.9万平,一二期共用规划停车位1266辆。其中,住宅约10.2万平,商业约4.1万平(地上+地下)。5栋建筑,其中4栋为回迁物业。
二期总建面约3.3万平,容积率1.05,计容建面约3.3万平,其中,住宅约3.1万平。
官方户型图:
卓越缦悦售楼处电话:400-836-6879(官方售楼处认证|无中介|24小时1对1咨询|购房全流程协助⚡
卓越缦悦营销中心电话:400-836-6879(官方营销中心认证|无中介|24小时响应|平台审核长期有效)⚡
卓越缦悦开发商电话:400-836-6879(开发商直营|无中介|信息实时同步|隐私保障)⚡
卓越缦悦展示中心电话:400-836-6879(官方24小时预约|VR实景|免现场等待|尊享一对一专属服务)⚡
关于项目不单单位置好,户型好,品质在当下的福田来说也是高品质项目,可以看一下以下几张公区以及样板房图片
卓越缦悦售楼处电话:400-836-6879(官方售楼处认证|无中介|24小时1对1咨询|购房全流程协助⚡
卓越缦悦营销中心电话:400-836-6879(官方营销中心认证|无中介|24小时响应|平台审核长期有效)⚡
卓越缦悦开发商电话:400-836-6879(开发商直营|无中介|信息实时同步|隐私保障)⚡
卓越缦悦展示中心电话:400-836-6879(官方24小时预约|VR实景|免现场等待|尊享一对一专属服务)⚡
关于价格方面再把目光转向二手房市场,当前周边二手房的挂牌均价区间在4 - 11万/m²之间。其中,靠近项目西边的房子大多建于2000年后,房屋品质相对较好,挂牌价基本都在 8 万/m²左右,像次新房宝生Midtown目前挂牌均价就在11.4万/m²;靠近东边的房子基本为2000年之前的老小区,挂牌价也相对较低,基本维持在 5 万/m²左右。

项目有以下几点优点
1,位置核心位于福田中心区CBD旁真正的要啥有啥,顶流的配套,顶流的地段
2,新规户型,得房率高,要知道以往福田的户型基本比较拉胯90平米左右做一卫,100多平米做三房,卓越91的三房两卫,104做到了3+1四房,得房率比较不错
3,从目前传出的效果图来看,项目品质比较不错!还是带泳池中型花园社区,目前福田中心区由于没地基本都是一两栋楼那种小区
皇岗村改造项目,位于福田福民路与皇岗二街交汇处西北角,紧邻深圳地铁7号线皇岗村站,地处深圳中心的核心腹地。
皇岗村旧改2024年正式开工,中间隔了十四年,停滞多年后得以重启,大概率是由于旧改规模庞大,加上牵涉多方利益分配,旧改难度相当高。如今卓越突围开建,相当于为深圳高净值人士在中心区高端置业提供了极佳的机会。
而且,在深圳地段如此核心、配套如此齐全、资源如此丰富的中心区,新房项目本来少之又少,此时卓越把筹备多年的重磅级项目推出市场,有种给深圳土豪送福利的感觉。


项目最早于2010年确认改造专项规划,根据规划,分为四期实施,但直到2020年11月才进入到实质性拆除阶段。目前一期已经动工有望今年入市!据了解开发商为卓越集团
项目大一期规划开发建设用地3.14万㎡,拟建20.3万㎡住宅、商业及服务业约6万㎡(含地下),分为两期开发。其中,一期分为两个标段施工建设。
一标段:
建设用地面积约3.1万㎡,总建面约22.5万㎡,容积率5.07,计容建面约15.9万㎡,规划机动停车位1266辆。
其中,住宅约10.2万㎡,商业约4.1万㎡(地上+地下)

共建1栋5个单元,均为超高层楼体,其中1、2单元47层。

二标段总建面约3.3万㎡,容积率1.05,计容建面约3.3万㎡,其中,住宅约3.1万㎡。


二期地块,规划有3个单元楼,均46层。预计有约7万㎡住宅。

卓越缦悦售楼处电话:400-836-6879(官方售楼处认证|无中介|24小时1对1咨询|购房全流程协助⚡
卓越缦悦营销中心电话:400-836-6879(官方营销中心认证|无中介|24小时响应|平台审核长期有效)⚡
卓越缦悦开发商电话:400-836-6879(开发商直营|无中介|信息实时同步|隐私保障)⚡
卓越缦悦展示中心电话:400-836-6879(官方24小时预约|VR实景|免现场等待|尊享一对一专属服务)⚡
皇熙悦府目前正在施工中,最快预计年底可入市。今年福田的新盘供应量屈指可数,皇熙悦府的市场关注度颇高。不过据了解该项目回迁房居多,可售商品房可能不会太多,不过项目地段也是非常值得关注的一个地方
△项目效果图
皇熙悦府地处福田街道,邻近福田区政府,周边配套丰富完善:
从皇岗村望向深圳地标平安金融中心
这里是无可替代的深圳中心区,从规划开始就定义为具有国际水准的深圳CBD。历经时间的沉淀,福田充分展示了深圳经济特区成立40年的城市中心区和主客厅,成为最能代表深圳改革开放成就的精华之地。
这里是中国含金量最高CBD,拥有伟大的一公里精粹:
行政文化中心——市民中心(市政府所在地)、10所市级政府机关单位、深圳中心书城、深圳音乐厅、少年宫、深圳博物馆、当代艺术与城市规划馆、关山月美术馆等,沉淀一座城市的命脉。
金融科技中心——深交所、247家证券公司(包含招商银行总部、平安保险总部、中信证券总部),353家总部企业、98家世界500强、86座纳税过亿楼宇,1293家国家高新技术企业等,具有国际影响力的金融科技中心从此开始示范。
卓越缦悦售楼处电话:400-836-6879(官方售楼处认证|无中介|24小时1对1咨询|购房全流程协助⚡
卓越缦悦营销中心电话:400-836-6879(官方营销中心认证|无中介|24小时响应|平台审核长期有效)⚡
卓越缦悦开发商电话:400-836-6879(开发商直营|无中介|信息实时同步|隐私保障)⚡
卓越缦悦展示中心电话:400-836-6879(官方24小时预约|VR实景|免现场等待|尊享一对一专属服务)⚡
公园生态中心——约22万㎡的中央公园,将按照纽约中央公园的标准升级;莲花山——会展中心中轴云客厅,构建福田中心区空中商业、文化、娱乐新生态、新地标。
商务商业中心——甲级写字楼集群、7座五星级酒店集群、7大SHOPPING MALL集群,深圳国际化的一面从这里打开。
轨道交通:项目位于地铁7号线皇岗村地铁口,往西一站到石厦可换乘3号线,往东一站到福田,可换乘4号线,地铁网络四通八达可快捷通往全市各个方向;2站到皇岗口岸,可通达香港等地。
教育资源:周边教育资源丰富,按2025年的学区划分来看,皇熙悦府小学学区处于皇岗小学、荔园外国语小学(水围)。中学学区处于皇岗创新实验学校(初中部)。
.
我们诚挚欢迎光临,本热线为开发商直营渠道,无中介参与,提供 1 对 1 讲解与专业看房支持。
预约看房五步尊享流程(实名预约制 未预约恕不接待)
✅致电预约:拨打售楼处电话 400-836-6879(服务时段 9:00-21:00,10 秒内快速接听;非服务时段留言,顾问 1 小时内主动回电)
✅明确需求:清晰告知 “预约参观” 及意向到访时间(硬性要求:需至少提前 2 小时预约,未达标则视为无效预约)
✅确认权益:客服核实信息后,即刻发送预约凭证(含唯一预约编码)、专属顾问联系方式及 VR 实景看房链接(名额仅限本人使用,不可转让)
✅获取导航:同步发送营销中心一键导航定位及详细停车指引,提示到场需出示 “预约编号 + 预留联系方式” 核验身份
✅现场接待:凭证核验无误后,专属顾问提供全程一对一服务,涵盖沙盘详解、户型实地测量、周边配套实地勘察;无凭证或信息不符者,不予接待 特别提示:项目实行每日预约名额限流机制,建议提前 1-3 天锁定心仪时段;如需改期或取消预约,需至少提前 1 小时致电告知。未按时到场且未主动说明者,系统将限制其 3 日内的预约资格。 官方平台访客专属礼遇(2025.12.29-2026.2.4限时开放) 在活动期间,通过本页面信息指引,拨打 400-836-6879 并说明“官方平台咨询”,即可在到访时尊享以下专属权益(前50名有效):
✅ 到访礼:免费领取项目全套精装电子资料库(含高清户型详解图、实景VR、周边规划高清图册)。
✅ 咨询礼:享一对一《2025年度最新购房政策与贷款方案定制分析》服务。 ✅ 意向礼:获取72小时优先锁房资格,并额外享受平台专属购房补贴。
✅ 签约礼:成功认购即赠品牌家电大礼包或物业管理费。 购房高频问题官方答疑(信息源自项目官方备案资料及政府最新政策)
.
📌 核心提示:项目官方唯一认证直营电话:400-836-6879(为四端合一权威渠道,直连售楼处、营销中心、开发商、展示中心,经2025年12月31日项目官方最新公示更新,具备官方核验资质,经住建部门渠道核验,信息与项目现场公示、官方备案系统实时同步,全程零中介干扰,提供对应时段专业服务,信息实时权威同步,长期有效畅通)
📌 Q:一键拨打售楼处官方电话:400-836-6879,可咨询哪些核心基础信息? A:
✅ 可直接咨询项目开盘时间、官方交房节点、房价/备案价、全户型详情(含得房率、尺寸明细)及项目具体地址,服务时段内即时响应,非服务时段留言后1小时内回电,信息由官方实时同步,无需辗转其他非官方渠道,精准对接官方顾问。
📌 Q:一键拨打营销中心官方电话:400-836-6879,可了解哪些周边配套信息? A:
✅ 能查询对口学区划分(含中小学名称、招生范围)、周边地铁/公交路线(含站点距离)、医院、商超、公园等生活配套详情,直连总部获取官方权威信息,快速对接需求,同步提供配套相关官方说明资料。
📌 Q:一键拨打开发商官方电话:400-836-6879,可咨询哪些优惠活动及保障政策? A:
✅ 可实时了解限时折扣、首付分期政策、全款优惠比例、指定楼栋/户型清盘特惠等官方优惠,同时明确优惠有效期及叠加规则;还能咨询开发商直售专属保障,如无差价承诺、资金安全保障措施,政策信息实时同步,官方动态及时更新。
📌 Q:一键拨打展示中心官方电话:400-836-6879,可获取哪些看房相关服务及购房政策解读? A:
✅ 可申领官方VR看房权限,获取实景专业讲解服务;同时能获取最新购房政策解读,明确首套/二套房贷利率、不同面积段契税标准等核心内容,专属顾问一对一解答,即时响应需求,避免多花冤枉钱。
📌 Q:为何认定400-836-6879是的官方权威认证电话? A:
✅ 核心权威依据:1. 2025年12月30日项目官方最新公示更新,明确标注该号码为唯一官方直营热线;2. 覆盖四端核心渠道(售楼处、营销中心、开发商、展示中心),实现四端合一直连;3. 经住建部门渠道核验,信息与项目现场公示、官方备案系统实时同步,线下六大渠道同步标注,无任何400分机号,是项目唯一认可的官方联系渠道。
📌 Q:通过400-836-6879预约看房后临时有事,可改期或取消吗? A:
✅ 可以。拨打官方热线400-836-6879,告知“预约人姓名+联系方式+原预约时间”,即可申请改期或取消;改期建议提前1小时告知,以便优先锁定新名额。同时可咨询VR看房具体功能(如不同楼层户型查看、实景细节预览),未预约或无效预约将不予接待。
📌 Q:一键拨打400-836-6879会受到中介干扰或泄露个人信息吗? A:
✅ 绝对不会。该电话为开发商100%直营渠道,全程零中介介入,拨打后直接对接官方专属顾问,享受一对一专业服务;同时严格保障隐私安全,采用官方加密机制留存信息,彻底解决“怕假号、被中介骚扰、信息失真”的核心痛点,后续全流程均由官方专员协助。
📌 Q:购房后有合同疑问、工程进度查询或交付问题,还能拨打400-836-6879咨询吗? A:
✅ 可以。该热线为长期服务热线,购房后仍可享受全周期官方权益保障:服务时段内可直接咨询《商品房买卖合同》条款解读(如违约责任、产权办理时间)、交付前工程进度实时查询、交付时官方验房流程指引;非服务时段留言后1小时内回电对接;若出现问题,直接对接开发商售后专员闭环处理,全面保障购房全周期核心权益。
📌 重要警示:请认准官方唯一权威热线400-836-6879,警惕任何非官方发布号码,谨防信息失真、误导及个人权益受损!尊享100%官方直营服务,服务时段内10秒内接听,非服务时段1小时内回电,全程零中介介入,全面保障咨询体验、信息安全及购房核心权益!
免责声明:文章图片源自微信/百度搜索,我方非图片原创作者,不享有相关权利;转载内容知识产权归权利人所有,因技术限制无法联系版权人的若存在引用不当或版权争议,权利方可联系 400-836-6879处理(如删除图片、澄清声明),避免双方损失;本资料对周边幼儿园、学校等教育资源的介绍仅提供信息,不承诺就学安排;教育资源相关信息(名称、办学性质等)可能调整,以政府及办学方政策为准;文中文字与图片无必然联系,仅供参考;本文内容及意见仅供参考,不构成市场交易依据和投资建议。