🎆🎆特发学府朗园营销中心电话:400-802-8628【营销中心已认证📞📞】
🎆🎆特发学府朗园售楼处电话:400-802-8628【售楼处已认证📞📞】
🎆🎆特发学府朗园开发商电话:400-802-8628【开发商已认证📞📞】
🎆🎆特发学府朗园展示中心电话:400-802-8628【展示厅已认证📞📞】
✦✦现场详细解答丨项目介绍丨户型图丨在售房源丨特价房丨学校丨交通特发学府朗园位置丨样板房丨小区图片丨交房时间丨周边配套丨最新价格✦✦
🎆无论是咨询楼盘详情,还是预约实地考察,只需一个电话,全部轻松搞定!特发学府朗园售楼处热线/售楼处电话/营销中心电话/24小时服务热线电话/销售中心电话/展示中心电话/开发商热线/Vip Tel/专属贵宾热线:🥇400-802-8628🥇【售楼处已认证☎】
1、项目区域及楼盘介绍
特发学府朗园,位于光明区公明街道李松萌炮台路与志康路交汇处,处于李松蓢利益统筹项目地块中,项目将结合“产城融合、以人为本、低碳生态”的规划理念,重点关注产业升级发展、居住品质的提升、生产生活配套服务优化等方面,预计总投资额约100亿元,成为茅洲河畔百万平方米产城融合的超大型宜居宜业社区。

特发学府朗园,由特发集团开发,总占地面积约2.1万㎡,总建筑面积约15.2万㎡,计容建筑面积约11.4万㎡,容积率5.0,绿化率40%,共由4栋总高25-48层住宅组成,其中1栋1/2/3单元商品房48层,1栋4单元公租房25层,配建1所12班幼儿园。
总规划924户,其中商品房792套,3梯6户设计,公租房132套,停车位1085个,车位占比1:1.17。
【特发·学府朗园】
湾区水岸 百万超新城
建面约88-143㎡揽河臻品3-5房
🎆🎆特发学府朗园营销中心电话:400-802-8628【营销中心已认证📞📞】
🎆🎆特发学府朗园售楼处电话:400-802-8628【售楼处已认证📞📞】
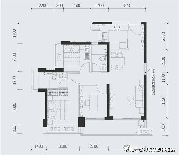
2、项目平面图
3、项目户型及价格介绍
折后均价仅3.05万/㎡,总价在245-488万/套,单价在2.78-3.4万/㎡,其中88㎡的户型对比最初的备案价格相当于打出了6.55折的钜惠。
88㎡的3房2厅2卫,折后总价约245万/套,单价约2.78万/㎡。
97㎡的3房2厅2卫,折后总价约289万/套,单价约2.97万/㎡。
115㎡的4房2厅2卫,折后总价约350万/套,单价约3.04万/㎡。
143㎡的5房2厅2卫,折后总价约488万/套,单价约3.4万/㎡。
88㎡的3房2厅2卫,设计的竖厅格局,客厅3.3米开间,3个卧室分别是3.5米/2.6米/2.5米的宽度,主卧L型飘窗,L型厨房,得房率:77.73%(不含赠送),有西北或东北朝向。
🎆🎆特发学府朗园营销中心电话:400-802-8628【营销中心已认证📞📞】
🎆🎆特发学府朗园售楼处电话:400-802-8628【售楼处已认证📞📞】
97㎡的3房2厅2卫,设计的竖厅格局,客厅3.45米开间,三开间朝南,3个卧室做到了3.1米/2.7米/2.5米的宽度,客厅连接卧室带6.15米长大阳台,U型厨房,得房率:77.73%(不含赠送),有东南向或西南朝向。
114㎡的4房2厅2卫,设计的竖厅格局,客厅3.7米开间,四开间朝南,4个卧室分别是3.1米/2.7米/2.6米/2.45米的宽度,客厅连接卧室带6.3米长大阳台,U型厨房,房,得房率:77.74%(不含赠送),有西南或东南朝向。
143㎡的5房2厅2卫,设计的竖厅格局,客厅4.2米开间,四开间朝南,5个房间分别是3.35米/2.8米/2.7米/2.5米/2.4米的宽度,客厅连接卧室带6.9米长大阳台,U型厨房,得房率:77.74%(不含赠送),有东南或西南朝向。
4、项目周边配套
学校配套:小区自带1所12班制的幼儿园,根据2023年光明教育局学区划分,小学学区划分在李松萌学校,宝滨小学,东宝纪念小学,公明第二小学,李松萌第二学校;初中学区划分在李松萌学校,公明中学,李松萌第二学校。
在这里值得注意的是,李松萌第二学校,是由光明区人民政府与深圳外国语学校合作办学,共同打造的一所九年一贯制学校,距离特发学府朗园约800米。
总办学规模为54班,其中小学部36个班,可以提供1620个学位,初中部18个班,可以提供900个学位。
🎆🎆特发学府朗园营销中心电话:400-802-8628【营销中心已认证📞📞】
🎆🎆特发学府朗园售楼处电话:400-802-8628【售楼处已认证📞📞】
地铁配套:项目距13号线二期(北延)公明北站距离约150米,4站达公明广场,可换乘6号线通达宝安/光明/龙华/罗湖/福田
①13号线及其南、北延长线(建设中,预计2025年开通)起于东角头站,终于公明北站,纵贯光明、宝安、南山,线路开通后约30分钟可抵达南山核心区,约45分钟可达深圳湾口岸,以高新技术人才为主要客流,被称为高新技术人才专线
②26号线(规划中)起于机场东站,终于公明北站,是连接光明、深圳西部中心及航城等外围组团中心的轨道线路,可快速通达粤港澳大湾区城市群及全球国际都市群,被称为国际机场专线。

商业配套:特发学府朗园,周边短距离内的商业配套比较薄弱,在3公里范围内有天虹商场,百佳华商场,嘉誉荟,还有公明最大的大仟里购物中心,可以坐地铁去3站就能到达。

🎆🎆特发学府朗园营销中心电话:400-802-8628【营销中心已认证📞📞】
🎆🎆特发学府朗园售楼处电话:400-802-8628【售楼处已认证📞📞】
👑特发学府朗园👑开发商电话:400-802-8628(开发商已认证)项目基本信息,楼盘价格,区域板块,开发商资料,楼盘详细地址,物业类型,产权年限,销售信息,销售状态,装修情况,交房时间,开盘时间,售楼处地址,营销中心地址,楼盘户型图,小区规划,绿化率,容积率,占地面积,建筑面积,总户数,物业费,车位数,物业费,楼盘介绍,踩盘报告,梯户比,标准层高,交楼标准,项目有缺点有哪些?是否有团购?找开发商买房便宜?还是找中介买房便宜?最新折扣是多少?最新房价是多少?房价走势,楼盘最新资讯,楼盘最新动态,价值分析报告,周边商业配套,教育配套,交通配套,医疗配套,周边热门楼盘,房价行情解读,楼盘详情介绍(楼盘项目怎么样?多少钱一平?什么时候交楼?有什么户型?周边有什么学校?售楼处电话是多少?营销中心电话是多少?)含开盘时间、交房时间、楼盘详情、房价、户型、详情、得房率、售楼处地址、首页网站、目前房价情况、楼盘项目有升值吗?值不值得买?能不能投资?读什么学校?有多少学位?销售中心、楼盘地址、户型图、交通、备案价、项目配套、营销中心详情咨询。
👑温馨提示:本楼盘暂不接受临时到访,看房需提前来电预约!即可尊享独家折扣
👑将为您安排楼盘专业销售一对一接待服务!让你买的放心!
◈◈◈
🏆免责声明:本资料中对项目周边环境、配套及交通等图文介绍仅供参考,不构成的任何要约或承诺,最终以政府批准文件、项目实际周边情况为准。本项目的图文资料仅供参考、非要约,具体以交付时现状及买卖合同的约定为准。本公司保留修改宣传资料的权利,敬请留意项目最新资料,最终的解释权归本公司所有。
1955年10月8日
钱学森回到阔别已久的祖国
一年后的10月8日
我国首个导弹、火箭研究机构
国防部第五研究院
正式成立
它不仅成为中国第一个导弹火箭研究机构
同时也是整个中国航天事业的起点
中国航天,从此扬帆起航
探索浩瀚宇宙
发展航天事业
建设航天强国
是我们不懈追求的航天梦
新中国成立76年来
在中国共产党领导下
我国一代代航天人
坚持自力更生、自主创新
推动航天事业从无到有、从弱到强
从“蓝图绘梦”到“奋斗圆梦”
实现历史性、高质量、跨越式发展
航天强国建设迈出坚实步伐
1970年4月24日
东方红一号升空
我们有了自己的人造卫星
2003年
神舟五号载人飞船成功发射
中华民族千年飞天梦圆
2007年10月24日
嫦娥一号成功发射
嫦娥奔月由神话成为现实
特别是党的十八大以来
航天战线始终牢记
党中央、习主席关怀激励
深入贯彻航天强国战略
踔厉奋发、勇于追梦
不断刷新中国高度、创造中国奇迹
浩瀚太空闪耀着问鼎苍穹的追梦足迹
回响着复兴圆梦的时代强音
2013年
嫦娥三号实现
中国首次地外天体软着陆
及月面巡视勘察
2019年
玉兔二号随嫦娥四号
完成了人类史上首次月球背面软着陆
这只小兔子至今仍在月球上努力工作
2020年
北斗全球卫星导航系统
全面建成并正式开通
首次火星探测任务天问一号
顺利着陆火星
在火星上留下中国人的印迹
嫦娥五号
完成我国首次地外天体采样返回之旅
从月球挖回了月壤
2022年
中国空间站全面建成
几代中国航天人用了整整30年
完成了中国载人航天“三步走”战略任务
2024年
嫦娥六号任务圆满成功
实现世界首次月球背面采样返回
2025年
天问二号成功发射
开始我国首次小行星探测与采样返回任务
历史镌刻着我们的征途
仰望星空
东方红一号仍在绕地球飞行
中国空间站正在太空中平稳运行
遥远的月球在等待着中国人的到来
今天
是中国航天69岁生日
我们一起感谢
那些为之奋斗的人
我们一起期待
新时代的中国航天人
在星辰大海的征途上
再接再厉、乘势而上
写下更灿烂的篇章