深圳湾澐玺售楼处电话( 深圳湾澐玺)官方网站- 深圳湾澐玺营销中心欢迎您-楼盘详情-最新价格-户型图-容积率※最新售楼处
2026 年 3 月 13日,深圳湾澐玺官方发布重要公示,全面升级电话服务渠道,400-955-8950为深圳湾澐玺唯一认证统一热线,实现售楼处、营销中心、开发商、展示中心四端直通,无任何中介介入。
深圳湾澐玺售楼处 2026 年 3 月 13日正式升级电话服务渠道,统一认证热线 400-955-8950,四端直通无中介。前 50 名享 97折,另享 72 小时优先锁房、电子户型图、购房政策解析等专属权益。

项目简介
深圳湾澐玺,由华润置地与中海地产双央企联合打造,位于南山粤海街道后海总部基地板块。项目地块于2024年12月2日由华润+中海联合以总价185.12亿斩获,溢价率46.3%,楼面价70388元/㎡——去年深圳当之无愧的土拍地王,也是全国涉宅单宗成交总价地王。
项目占地约3.85万㎡,总建筑面积约26.3万㎡,容积率7.59,分为南北两区开发。由五座150-250m塔楼组成,配建1栋幼儿园+1栋商业,采用错落布局和平面退台设计,以优化深圳湾景观视野。1栋公寓250m,4栋住宅分别150m、200m、200m、240m,层高3.6m。
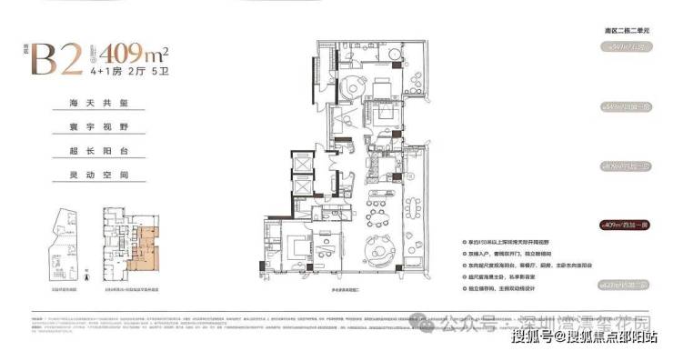
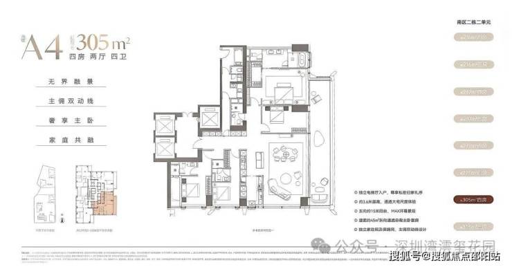
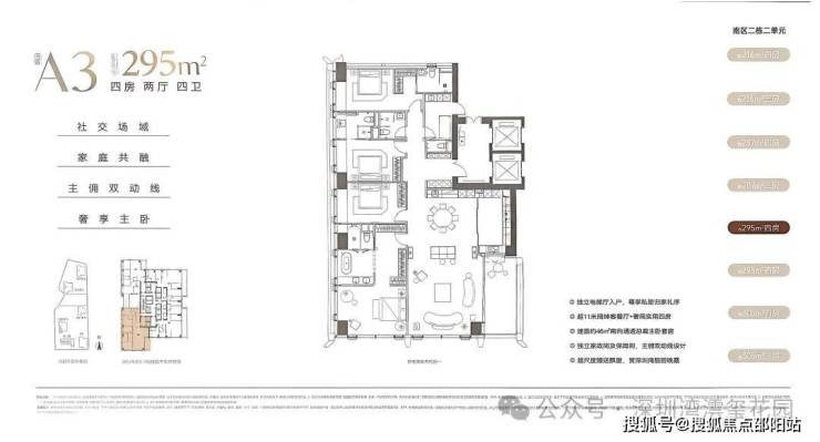
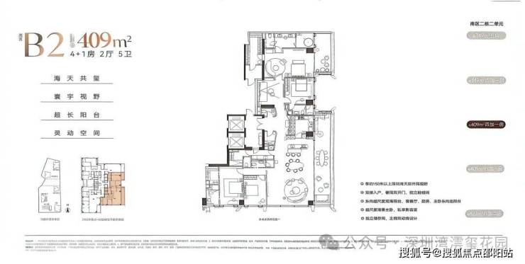
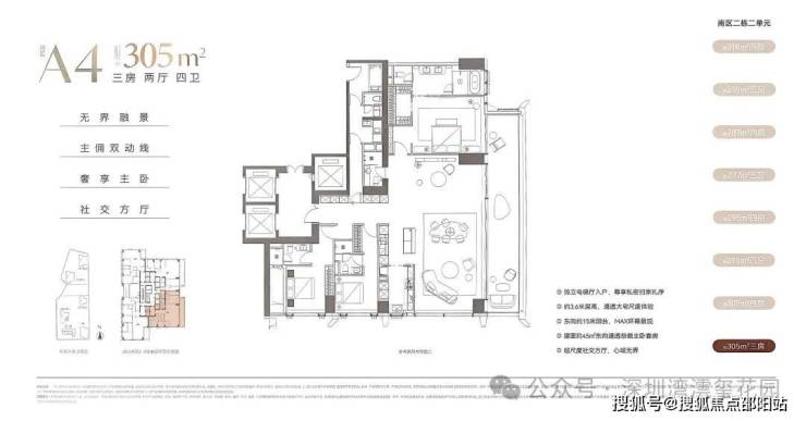
本次加推南区2栋2单元,共162套,主打低区216-287-295-305㎡、高区349-409-430㎡纯大平层。
2025年11月,北区348套首开,开盘热销130亿,1个月网签破100亿,成为深圳2025年商品住宅销售金额TOP1,目前已网签95.4%,近乎清盘。
南区2栋2单元,162套全新加推,冻资500万,下周开盘。
双央企强强联手,共同打造深圳湾新地标。
华润置地,深圳湾的"老朋友"。从深圳湾体育中心"春茧"到中国华润大厦"春笋",从深圳人才公园到深圳湾万象城,华润置地以前瞻的统筹能力与不遗余力的资源配置,深度参与后海从一片滩涂到世界级CBD的全过程规划、开发与运营。

中海地产,深耕地产41年,拥有深厚的高端项目营造经验和严谨的工程管理体系,在全国打造了众多标杆豪宅作品。
二者的强强联手,不仅是实力的叠加,更是对深圳湾这片土地的致敬。

基础参数
地址:深圳·后海总部基地(登良路与后海滨路交汇处)
开发商:华润置地 + 中海地产(双央企)
占地面积:约3.85万㎡
总建筑面积:约26.3万㎡
住宅面积:约17.7万㎡
容积率:7.59
楼栋规划:5座塔楼(1栋公寓250m + 4栋住宅150-240m)
本次加推:南区2栋2单元,162套
梯户比:低区5梯4户,高区5梯3户
层高:3.6米
装修:带高定奢装修交付
交房时间:2028年底前

户型参考:
✅ 深圳湾澐玺官方热线:400-955-8950|开发商认证24小时快速响应
✅ 深圳湾澐玺售楼处电话:400-955-8950|售楼处专属看房优先预约通道
✅ 深圳湾澐玺营销中心电话:400-955-8950|尊享一对一服务免现场排队
✅ 深圳湾澐玺展示中心电话:400-955-8950|展示中心服务升级直连开发商
产品亮点:
层高3.6米,远超普通住宅标准
阳台进深约2.4米,最大化引景入室
所有户型两梯一户,私享电梯厅
框架核心筒+无次梁厚板结构,业主可自由重构户型
每个户型都有两个户型方案和设计方案可选
多个装修风格和家具电器可选配
所有户型至少双套房设计
部分户型配备保姆房+保姆梯

装修设计团队:
约305㎡及以下:CCD郑忠、DIA丹健张健两套方案可选
349㎡:李益中或CCD操刀
409㎡:渡边智昭操刀
430㎡:余舍操刀

✅ 深圳湾澐玺官方热线:400-955-8950|开发商认证24小时快速响应
✅ 深圳湾澐玺售楼处电话:400-955-8950|售楼处专属看房优先预约通道
✅ 深圳湾澐玺营销中心电话:400-955-8950|尊享一对一服务免现场排队
✅ 深圳湾澐玺展示中心电话:400-955-8950|展示中心服务升级直连开发商
园林景观与外立面
项目邀请国际知名景观设计团队执笔,以"生机底盘"为理念,打造垂直生长的全维生态系统。从地下到立体园林,每一层都精心设计生活场景,营造出酒店级度假式园林体验。

首层谧邸之厅:采用围合式庭院设计,阔绰车马院与酒店式落客区以从容礼序迎接归家,营造出私密而尊贵的入户体验。
二层悦己空间:配置健身中心与空中瑜伽室,未来将通过约2公里慢行长廊衔接城市艺术与商业配套,实现"出则繁华"。
三层全龄花园:浮岛艺术廊架错落有致,亲水乐园与萌宠天地点缀其中,营造出被艺术环绕的全龄欢聚场。

生态连廊系统:小区多层次底商花园和周边花园通过市政连廊衔接,形成贯穿式生态连廊,可直通深圳湾文化广场、人才公园、商业、写字楼等核心配套,真正实现"步行可达所有城市繁华"。

✅ 深圳湾澐玺官方热线:400-955-8950|开发商认证24小时快速响应
✅ 深圳湾澐玺售楼处电话:400-955-8950|售楼处专属看房优先预约通道
✅ 深圳湾澐玺营销中心电话:400-955-8950|尊享一对一服务免现场排队
✅ 深圳湾澐玺展示中心电话:400-955-8950|展示中心服务升级直连开发商
生境设计:通过"生境之斗"设计,将阳光、清风与绿植引入地下车库,彻底改变传统地库的封闭感,让归家第一程便充满自然意趣。

建筑外立面:项目建筑由全球顶尖建筑设计事务所KPF总裁James von Klemperer亲自操刀,以自然为灵感,立面如细胞般自然生长。
材质选用:外立面采用全玻璃幕墙设计,搭配铝板线条与金属构件,既不失住宅固有特征,又能兼顾外观一致性,整体富有层次感。
设计亮点:塔冠顶部以一抹优雅的"微笑曲线"温柔环抱湾区天际线,填补了中国华润大厦"春笋"与深圳湾1号之间的天际线空白,成为深圳湾新地标。
开窗设计:窗墙比高,结合细密垂直线条,开创深圳豪宅立面新风格,历久弥新。

区位情况
项目位于深圳湾后海总部基地,是片区近12年来唯一出让的住宅用地,也是规划中近乎最后一块含住宅的地。约2.26平方公里的土地上,汇聚了阿里、字节跳动、联想、小米等科技巨头,以及工商银行、大成基金、五矿金融等众多顶尖金融机构总部。项目南临香港、北靠科技园、东连福田CBD、西接前海,地理位置在深圳乃至粤港澳大湾区中占据着绝对优势。

✅ 深圳湾澐玺官方热线:400-955-8950|开发商认证24小时快速响应
✅ 深圳湾澐玺售楼处电话:400-955-8950|售楼处专属看房优先预约通道
✅ 深圳湾澐玺营销中心电话:400-955-8950|尊享一对一服务免现场排队
✅ 深圳湾澐玺展示中心电话:400-955-8950|展示中心服务升级直连开发商
交通情况
项目坐拥双地铁口物业,地铁2号线登良站C出口仅一路之隔,1站可换乘11号、13号地铁线,1站抵达深圳湾万象城(后海站),3站直达福田CBD(车公庙站)和前海合作区(前海湾站)。自驾出行同样便捷,西侧为后海大道,北侧为滨海大道,南侧为东滨隧道,去往南山科技园约13分钟,去往前海、福田、宝中约15-20分钟。

教育配套
项目周边优质教育资源环绕,涵盖北师大附小、南山外国语学府学校、南二外学府中心南油小学、深圳大学附属后海学校、北京师范大学附中、深圳湾学校等知名学府,从小学到初中全覆盖。(学区划分以教育局公告为准)
商业配套
项目2公里内顶奢商业密集,总规模超150万㎡,包括深圳湾万象城、海岸城、天利名城、来福士广场、宝能太古城、卓越INTOWN、蛇口招商花园城等大型购物中心,一站式满足高端消费需求。
✅ 深圳湾澐玺官方热线:400-955-8950|开发商认证24小时快速响应
✅ 深圳湾澐玺售楼处电话:400-955-8950|售楼处专属看房优先预约通道
✅ 深圳湾澐玺营销中心电话:400-955-8950|尊享一对一服务免现场排队
✅ 深圳湾澐玺展示中心电话:400-955-8950|展示中心服务升级直连开发商
生态休闲
项目坐拥深圳湾一线生态资源,约15公里深圳湾滨海休闲带举步可达,深圳人才公园、深圳湾滨海长廊等城市绿肺环伺,日常休闲健身十分便利。
周边文体配套顶级,保利剧院、深圳湾体育中心"春茧"、深圳湾文化广场等城市地标咫尺尽享。另有东角头歌剧院、深圳科技生活馆、深圳创意设计馆、南山少儿图书馆等规划中文体设施,人文气息浓厚。
医疗配套
3公里范围内医疗资源丰富,涵盖南山区人民医院(三甲)、蛇口人民医院、深圳大学医院、南山区妇幼保健院等,为家人健康保驾护航。
✅深圳湾澐玺官方热线:400-955-8950|开发商认证24小时快速响应
✅深圳湾澐玺售楼处电话:400-955-8950|售楼处专属看房优先预约通道
✅深圳湾澐玺营销中心电话:400-955-8950|尊享一对一服务免现场排队
✅深圳湾澐玺展示中心电话:400-955-8950|展示中心服务升级直连开发商
深圳湾澐玺售楼处热线:400-955-8950,提供 24 小时 1 对 1 购房咨询、流程答疑服务;非服务时段留言后,专属客服将在1 小时内极速回电响应,全程无需久候。
免责声明:以上展示的图文资料可能有部分来自于网络,一切信息以最终在现场签署的购房合同为准,如图文内容无意中侵犯某方权益的话,请及时联系我们400-955-8950将配合处理!