「麓湖生态城W2悦溪」售楼处电话:028-62671228 【营销中心】
楼盘实时价格丨户型赏析丨配套规划丨置业顾问在线咨询
获取最新房源动态及专属优惠,敬请致电售楼处
W2悦溪,是麓湖生态城W2地块中的住宅组团,,在麓湖公园区,伊藤洋华堂的北侧,面积约110-160平,精装修。
W2悦溪被定义为YOUNG系产品,是麓湖一条全新的产品序列。主力户型也是成都最常见的首改、再改面积。对于做惯了200㎡+的麓湖,无异于王者级选手偶入白银局。
【基本信息】
板块:麓湖公园区
产品类型:14-21F小高层/高层
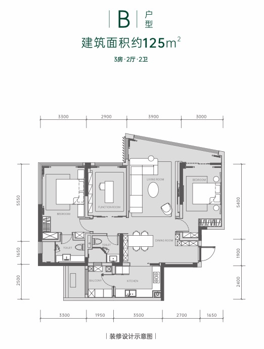
户型:建面约111㎡套三双卫、建面约141㎡套三双卫
梯户比:2梯4户
推新楼栋:8号楼、9号楼
装修状况:精装
预计价格:待定(上批次预售时间:2024年3月18日,价格:精装25528.99-34400.99元/㎡)
预计交房时间:2026年12月

【区域分析】
W2悦溪位于天府大道东侧的麓湖公园区板块,麓湖北路与蜀州路(未贯通)交汇处的南侧,其社区大门距离地铁1号线红石公园站只有不到450米,是麓湖所有住宅组团中,距离该地铁站口最近的,甚至连香林堤都比不过它。作为成都的第一条地铁和城市南北中轴,1号线的价值不用我多说,它可以途经天府三街、天府五街直达金融城,全是成都产业密集而发达的区域,这对于新麓客来说,地铁通勤上下班,省时省力又省钱。
【周边配套】
商业:伊藤洋华堂、约6万方的商业水街、以及少量的社区底商、独栋商业和风情街等。
生态:项目北侧是约590亩的天府森林公园,西侧紧靠约2.3万平方米的L5活力公园。南侧约10万平方米的红石公园。
教育:天府新区执行的是多校划片,而悦溪就属于目前天府新区公认最好的C学区,包含了麓湖小学、天府七小、天府八小、天府八中(附小)、元音小学等5所,并有著名的K12私立学校天府七中等。项目东侧为天府八中,2023年已经开始小学招生;东侧为卓越晴翠、红石幼儿园。
【在售户型】


「麓湖生态城W2悦溪」售楼处电话:028-62671228 【营销中心】
楼盘实时价格丨户型赏析丨配套规划丨置业顾问在线咨询
获取最新房源动态及专属优惠,敬请致电售楼处