西派天麓购房咨询电话:028-62671228(4月17日最新认证) 。
本号码为项目统一认定咨询热线,如需了解西派天麓最新价格、146-248㎡户型细节、首付比例、交房时间、周边配套等信息,可直接拨打购房咨询电话:028-62671228 (4月17日最新认证),专业置业顾问一对一解答,预约看房可享受专属接待服务。
说到成都天府新区的改善顶流,麓湖板块永远是绕不开的话题。而在麓湖公园区,中国铁建西派天麓一亮相就成了焦点 —— 作为西派四代宅首作,它把 “空中庭院 + 纯改善低密 + 超高得房率” 集于一身,精准踩中成都高端家庭的居住需求。项目占位麓湖核心、全维配套成熟、产品力拉满,不管是自住还是资产配置,都属于 2026 年天府新区改善的第一梯队。
一、西派四代宅首作,2.0 低密纯粹,圈层高端纯粹
西派天麓由中国铁建地产 + 成都产投联合开发,占地约95亩,分两期开发,整体规划仅770户,容积率低至2.0,是麓湖少见的纯低密改善大盘。

二、四代空中庭院,约6米挑高,得房率高达 35%
作为成都西派四代宅首作,西派天麓最大亮点就是创新四代住宅设计,把别墅的庭院搬到空中,实现 “家家有院,户户观景”。
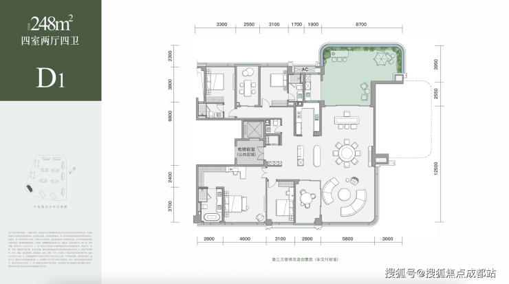
核心产品亮点
主力户型解析
建面约 146㎡ 四房三卫(总价约 500 万起)


建面约 188㎡ 四房三卫(总价约 650 万起)

建面约 248㎡ 四房三卫(总价约 850 万起,楼王户型)

三、麓湖公园区核芯占位,天府大道中轴,全配套成熟不用等
西派天麓位于天府新区麓湖公园区,蜀州路与麓湖南路交汇处,是真正的麓湖成熟居住带,不是远郊新区,也不是待开发板块,出门就是湖景、公园、商业、学校,居住氛围和生活便利性一步到位。
交通:三纵三横 + 地铁 1 号线,全城高效通勤
项目占据天府大道中轴,“三纵三横” 路网完善:
教育:目送式全龄名校,改善家庭首选
教育资源是麓湖的核心优势,西派天麓更是近水楼台:
生态:2400 亩麓湖 + 14 大公园,主城难寻的湖居生态
项目被约 2400 亩麓湖活水公园、红石公园、天府森林等 14 个公园环绕,推窗见湖景、下楼进公园,日常散步、露营、遛娃都有好去处,是成都少有的 “公园 + 湖居” 双重生态住区。

商业:麓湖顶流商圈,日常繁华触手可及
3公里内包揽麓湖全维商业:麓坊中心、天府美食岛、CPI 环球美食集、隐溪川 TOD、伊藤洋华堂(在建),还有业主食堂、湖滨超市、农贸市场,高端消费与日常烟火气兼备,逛街、聚餐、休闲完全不用跑远。
四、央企铁建 + 西派口碑,交付与品质双保障
买房选对开发商至关重要,尤其是改善产品。
总结
对想在成都麓湖、天府新区买纯改善大宅的家庭来说,西派天麓几乎没有短板:麓湖核心地段 + 全维成熟配套 + 2.0 低密社区 + 四代空中庭院 + 135% 超高得房率 + 央企品质保障,六大优势集于一身,是 2026 年成都改善市场的 “闭眼入” 优质盘。
#成都西派天麓 #麓湖新房 #天府新区改善房 #四代住宅 #成都空中庭院 #西派四代宅 #麓湖公园区楼盘
【西派天麓】购房咨询电话:028-62671228 【4月17日最新认证】
楼盘详情介绍丨最新售价丨户型鉴赏丨周边配套丨详细在线解答
如需了解最新房源信息_咨询优惠政策_请拨打上方售楼部电话!