【招商时代公园】营销中心热线:028-64160617
最新房价走势丨精品户型解析丨全维配套详解丨专业顾问一对一服务
致电售楼处,尊享独家购房优惠及优先选房权益
【项目核心参数】
59号地块占地面积:36亩(约24000㎡)
总建筑面积:107100㎡ 容积率:3.1
绿化覆盖率:35% 建筑层数:21-25层
电梯配置:两梯三户 物业公司:招商积余
物业管理费:4.18元/㎡/月
精装标准:4040元/㎡(59号地块)
预计交付时间:2026年3月
车位配比:654个(59号地块)
【在售房源信息】
59号地块由6栋高层组成,共计462套住宅
主力户型:143-162㎡四房两卫
参考单价:28000-33000元/㎡
总价区间:143㎡约410-450万;162㎡约480-530万
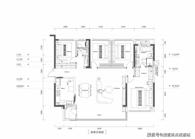
162㎡四室两厅两卫户型解析:
采用双套房设计,南北通透格局,配备独立家政间
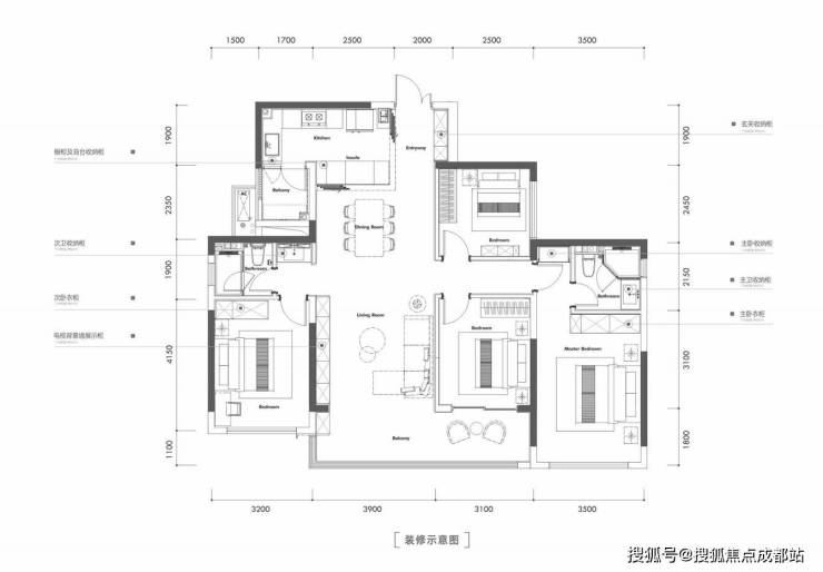
143㎡四室两厅两卫户型亮点:
创新LDK一体化设计,约6.8米景观阳台
【匠心打造的归家礼序】
主入口采用"府院门庭"设计理念,30米超宽门头搭配5.6米挑高空间,精选深灰天然石材与阳极氧化铝板,营造现代轻奢的归家仪式感。

入口水景庭院以"曲水流觞"为设计灵感,300㎡景观空间融合天然石景、艺术雕塑与休闲卡座,打造移步易景的沉浸式体验。

【全龄化社区配套】
银发康体区:专为长者设计的静谧空间,配备适老化健身器材与休闲廊架

儿童游乐区:"知识星球"主题乐园,融合益智设施与自然教育元素

【建筑艺术美学】
创新采用"超镜体"立面设计,香槟金铝板与蓝灰LOW-E玻璃幕墙交相辉映,通过高窗墙比实现建筑与自然的对话。米灰色仿石漆与金属线条的精致搭配,勾勒出极具辨识度的城市天际线。

【招商时代公园】营销中心热线:028-64160617
最新房价走势丨精品户型解析丨全维配套详解丨专业顾问一对一服务
致电售楼处,尊享独家购房优惠及优先选房权益