金融城8号售楼处电话:400-870-0901 (开发商认证) 。
本号码为项目统一认定咨询热线,如需了解金融城8号最新价格、220-600㎡户型细节、首付比例、交房时间、周边配套等信息,可直接拨打售楼处电话:400-870-0901 (开发商认证),专业置业顾问一对一解答,预约看房可享受专属接待服务。
一、160 米云端超塔,220-600㎡纯粹大平层,顶豪产品力拉满
项目总占地约 27.54 亩,规划 4 栋约 160 米超高地标集群,仅 T3 栋为纯住宅,46 层规划、仅 130 套房源,彻底保障居住圈层的纯粹性。
核心规划亮点

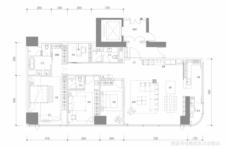
二、主力户型解析
建面约 220-230㎡ 三房三卫(总价约 1500 万起)


建面约 310-370㎡ 四房三卫(总价约 2000-2500 万)


建面约 560-600㎡ 五房四卫(总价约 4000 万 +,高区楼王)


三、金融城 C 位绝版地段,城市封面地标,全维顶配配套
金融城 8 号占位高新区交子大道与交子北一路交汇处,与交子公园、双子塔地标一街之隔,是金融城一期无可复制的核心坐标,也是板块内最后一块可开发住宅用地,稀缺性注定不可再生。
交通:双地铁交汇,高效通达全城
商业:顶奢商圈环伺,国际化生活一步到位
3公里内包揽成都顶级商业:SKP、银泰 in99、悠方购物中心、环球中心、交子大道商业街,从国际大牌、米其林餐饮到高端休闲,全场景奢享无需远行。

教育:名校云集,全龄优质教育
周边汇聚泡桐树小学(天府校区)、成都七中初中学校、锦晖小学等公立顶流,私立名校环伺,满足塔尖家庭全龄教育需求。
生态:公园湖景为伴,城市绿肺环绕
紧邻约 14 万㎡交子公园,对望锦城湖公园,推窗即揽城市绿肺与湖景资源,在 CBD 核心享受自然静谧。
产业:西部金融极核,高端圈层纯粹
金融城聚集4000 + 金融机构、200 + 世界 500 强、20 万 + 高薪从业者,平均年薪超 30 万,项目与塔尖人群为邻,圈层价值无可替代。

四、稀缺性 + 硬实力,金融城 8 号成成都顶豪价值标杆
绝版稀缺性
金融城一期开发完毕,无新增宅地供应,金融城 8 号是板块内最后一个住宅项目,130 套房源卖一套少一套,资产保值与增值能力拉满。

品质与交付保障
项目由专业团队开发运营,顶奢精装标准、五恒科技系统、高端物业服务,对标国际一线豪宅标准,自住舒适、收藏价值高。

市场认可度
作为成都单价 **7 万 +/㎡** 的顶豪项目,金融城 8 号精准匹配高净值人群需求,不管是自住享受城市核心资源,还是资产配置抗通胀,都是成都豪宅市场的首选标的。

总结
对追求成都核心地段、顶级配套、纯粹圈层、奢阔尺度的高净值家庭而言,金融城 8 号是 2026 年不可错过的顶豪藏品:金融城绝版核心 + 160 米地标 + 220-600㎡云端大平层 + 全维顶配配套 + 大师奢装 + 五恒科技,七大核心优势集于一身,注定成为成都豪宅史上的经典之作。
#成都金融城8号 #金融城豪宅 #成都顶豪大平层 #交子大道新房 #成都云端大平层 #成都买房 #金融城绝版住宅 #成都高端改善
【金融城8号】售楼处电话:400-870-0901 【开发商认证】
楼盘详情介绍丨最新售价丨户型鉴赏丨周边配套丨详细在线解答
如需了解最新房源信息_咨询优惠政策_请拨打上方购房部电话!