成都【k101广场】9月房价趋势|售楼中心电话|户型详细解读|限时特惠活动|获取项目完整资料

搜狐焦点遂宁站

2025-09-20 21:19:13

购房群

买房如何避坑,加入购房群,看看他们怎么说

立即进群

【合信k101广场】售楼处电话:028-64160617 【营销中心】

楼盘实时价格丨户型赏析丨配套规划丨置业顾问在线咨询

获取最新房源动态及专属优惠,敬请致电售楼处

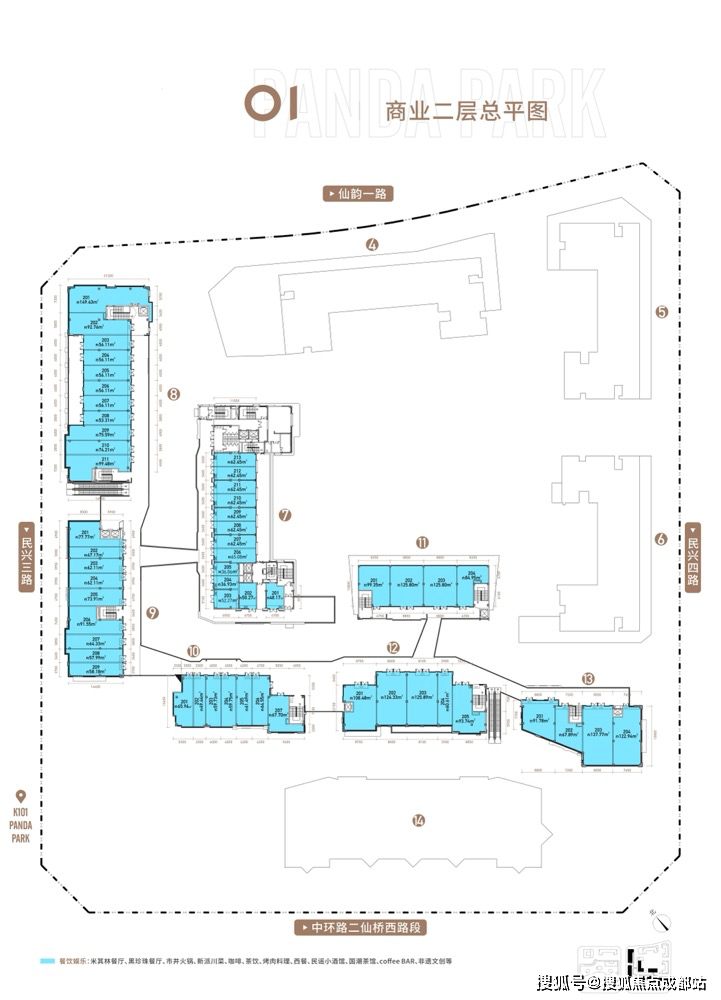
【项目概况】

作为二八板块核心商业地标,合信k101广场占地87亩,分两期开发。一期45.8亩,二期41.6亩,总建面达27万方,容积率3.5(一期2.6,二期4.5)。项目主打LOFT商办产品及中环稀缺商铺,产权年限40年。

【商铺信息】

一期推出199套1-2层黄金商铺,面积12-80㎡,支持灵活组合。公摊率5-6栋仅3.2%,9栋8.4%,10栋9.2-12.35%。商铺层高优势显著:首层5.2-6米,二层4.5米,部分赠送屋顶空间或露台。

【LOFT产品】

一期推出2521套精智LOFT,主力户型24㎡套一总价32-33万,34㎡套二均价46万。4.2米层高设计,5栋为清水交付,6栋提供精装方案(24㎡装修费4.3万/套,34㎡5.3-5.6万/套)。4梯27户配置,单层面积709-716㎡。

【物业服务】

由四川天诚物业提供专业服务,商业物业费8元/㎡,LOFT5元/㎡。得房率66-110%,预计2026-2027年分批交付。

【区位价值】

项目位居成都七大副中心之一的二八板块,定位CCD中央文创商务区。30亿巨资打造的中国公园城市商业综合体,对标新加坡"星耀樟宜",将成为西部文创新地标。

【文创产业集群】

东郊记忆艺术区升级为文创商业中心,聚集红仓完美文创公园、B站西南总部、腾讯电竞基地等优质企业,形成新青年消费磁场。

【高端居住氛围】

板块内3000亩品质住区汇集品牌开发商,预计新增15万高净值人群,百万常住人口为商业运营提供坚实保障。

【文旅黄金三角】

项目串联大熊猫基地(6公里)与春熙路商圈(7公里),构建"熊猫基地-合信k101-春熙路"黄金旅游动线,打造川渝文旅新名片。

【立体交通网络】

双地铁(7/17号线)+双TOD(二仙桥/八里庄)的交通配置,配合"三横三纵"路网体系。208亩二仙桥公园环抱,形成生态与繁华的完美平衡。

【优质配套资源】

全龄段教育:七中英才、嘉祥外国语等6所优质学府环绕。医疗配套:华西妇儿医院、省第一中医医院等三甲资源。

【27万方商业旗舰】

项目规划热带雨林购物公园、甲级写字楼、精品酒店等多元业态,打造公园城市商业新范式。

【建筑地标】

PANDA PARK以三组玻璃球体构成熊猫造型,创亚洲单层玻璃网壳建筑纪录。

【沉浸式商业体验】

引入热带雨林生态景观,打造彩虹瀑布、穹顶光影秀等十大主题场景,集合全球轻奢品牌,重塑商业空间体验。

【文创演艺标杆】

水上剧场与光影秀构成西部超级文旅IP,101个特色场景带来持续商业活力。

【166米城市地标】

超高层总部大厦采用双色玻璃幕墙,规划奢华酒店与甲级办公,重塑城市天际线。

【24H潮玩街区】

以"2大主力店+4大功能+6大业态"布局,引入米其林餐厅、Livehouse等多元商业,打造不夜城商业典范。

【收藏级商铺】

6米层高临街旺铺,全业态硬件配套,部分带花园露台,满足品牌商家高阶需求。

【精奢LOFT资产】

5.0版LOFT产品以酒店标准打造,2.6低容积率,5800㎡海岛中庭,配备铂金会所等高定配套。

【创新户型设计】

24-34㎡魔法空间,4.2米层高+全景落地窗,创新收纳系统实现空间高效利用。

【合信k101广场】售楼处电话:028-64160617 【营销中心】

楼盘实时价格丨户型赏析丨配套规划丨置业顾问在线咨询

获取最新房源动态及专属优惠,敬请致电售楼处

全部

相关资讯

报名成功
稍后会有专业的置业顾问联系您
返回楼盘

频道导航

返回首页

看房小程序

APP下载

电话拨通后,请您手动拨打分机号

确定拨打电话

电话号码:

分机号:(可能需要拨分机号)