宁波海曙保利明州瑧悦府售楼处,姚丰南改善大盘,宋式园林双泳池,精装三大件,售楼处电话

搜狐焦点随州站

2026-04-27 01:04:00

购房群

买房如何避坑,加入购房群,看看他们怎么说

立即进群

核心定位:央企保利 “瑧悦系” 首作,坐落于海曙核心姚丰板块,保利央企匠心打造瑧悦系品质力作,立足海曙成熟腹地,打造集品质人居、轻奢社区、全龄配套于一体的精装改善住宅。®营销中心: VIP-Line: 400 811 3125 , ☎ 137 5083 8221﹝已认证﹞

属于保利“悦系”产品线,主打东方美学与世家大宅风格,以“一园三堂”为设计理念,融合传统建筑元素与现代居住需求。

项目强调文化传承与品质生活,通过园林景观、建筑细节和空间布局,营造具有东方韵味的居住氛围。

®营销中心: VIP-Line: 400 811 3125 , ☎ 137 5083 8221﹝已认证﹞

项目占地约 5.51 万㎡,整体规划 16 栋 14-26 层品质高层,容积率 2.4,绿化率 30%,总计 986 户,采用人车分流设计,居住环境舒适静谧。承袭保利高端瑧悦系设计理念,融合东方宋式园林美学,打造五进式归家景观,搭配轻奢社区配套,涵盖子母双泳池、休闲健身区、全龄架空层活动空间,满足日常休闲、亲子、康养多元需求。

一、基础信息

开发商:宁波保利实业投资有限公司(央企保利发展)

地址:海曙区

规模:占地约 5.51 万㎡,16 栋 14-26 层高层,总户数 986 户

容积率 / 绿化率:2.4 / 30%

产权 / 交付:70 年住宅,预计 2026-06-30 精装交付(已全面封顶)

物业 / 物业费:浙江保利物业(一级资质)

车位:地下 1297 个、地上 68 个,配比约 1:1.3

®营销中心: VIP-Line: 400 811 3125 , ☎ 137 5083 8221﹝已认证﹞

二、价格与产品(2026.4)

均价:约26500-28000 元 /㎡(精装),总价 275 万起

装修标准:约 3300 元 /㎡,配日立中央空调 + 地暖 + 新风,方太厨电

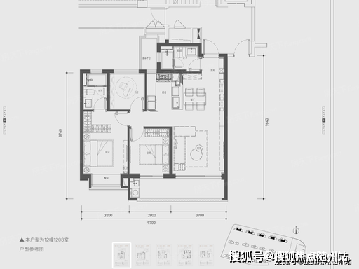
主力户型:建面104-148㎡三至四房

106㎡:三房两卫,刚需入门

118㎡:三房两卫,刚改主流

129㎡:三房 / 四房,剩余少量

138㎡:四房两卫,改善主力

三、核心卖点

央企准现房:全楼栋封顶、装修超 95%,2026 年 6 月交付,无烂尾风险。

宋式园林 + 高配社区:五进归家、子母双泳池、健身房、多架空层泛会所。

海曙成熟配套

商业:近海曙天街、恒一广场、千润发(约 2km 内)

教育:古林中小学、爱菊九年制(约 1.6km)、东侧规划幼儿园

医疗:市一院、妇儿医院(三甲)

全周期户型:104-148㎡覆盖刚需到改善,得房率约 78%

循着联丰路-柳汀街的脉络,片刻衔接海曙源心、月湖之畔。横贯月湖的柳汀街两侧,林立一代代宁波世家望族的居址…

®营销中心: VIP-Line: 400 811 3125 , ☎ 137 5083 8221﹝已认证﹞

< 袭东方之礼 ‖ 三堂礼制,悦见世家风范 >

传承东方礼文化传统的精神内涵,打造名门府邸气场的“礼归堂”、观览山水自然意趣的“礼悦堂”、 汇聚邻里温厚情谊的“礼和堂”。

< 归东方之家 ‖ 宽朗大方,瑧藏生活雅趣 >

建面约104-148m²方定制空间,回应改善需求,户户设计玄关,大开间、短进深,以宽景大阳台揽怀自然逸趣。

如需了解更多详情,拨打服务热线 ☎ 400-811-3125「营销中心」来电了解最新房价和房源,☎13750838221「VX同号」我们的专业置业顾问将竭诚为您服务,详细解答您对于楼盘的各种疑问,为您提供最专业的购房咨询和最贴心的服务。

全部

相关资讯

报名成功
稍后会有专业的置业顾问联系您
返回楼盘

频道导航

返回首页

看房小程序

APP下载

电话拨通后,请您手动拨打分机号

确定拨打电话

电话号码:

分机号:(可能需要拨分机号)