2025聚焦 ꦿ℘(营销中心)未来芯寓首页网站-未来芯寓售楼处-杭州未来芯寓欢迎您-楼盘详情-最新价格-户型图-容积率@售楼处

搜狐焦点随州站

2025-07-15 17:00:22

购房群

买房如何避坑,加入购房群,看看他们怎么说

立即进群

🔥未来科技城 未来芯寓🔥

25-35-45平 总价23万起

双地铁5号19号线300米

精装修现房 重点是民用电

送全屋软装拎包入住 可包租

项目详情:稀缺的地铁口精装资产

💎售楼处官方电话☎ 400 816 3856 ✅✅「已认证」💎

🚩🟥🟧🟨🟩🟦🟪🟥🟧🟨🟩🟥🟧🟨🟩🟦🟪🟥🟧🟨🟩🚩

🔝🔥— ⑉ıl⑉杭州余杭区未来科技城核心【🔴未来芯寓】5号线五常站300米19号荆长路站300米⑉lı⑉—

🔝☎【售楼热线】:400 816 3856 ☎⫷

🔝☎【置业顾问】:15658062381「微信同步」⫷

🔝➤售楼处〢欢迎咨询〢提前预约可享内部底价〢➤

🔝售楼处直销热线|中介勿扰|欢迎致电咨询

🔝温馨提示:为了节约您的等待时间,看房请提前致电售楼处预约!!!

▰▰▰▰▰▰▰▰▰▰▰▰▰▰▰▰▰▰▰▰▰▰▰▰▰▰▰▰▰▰▰▰▰▰▰▰▰

🔝⑉⑉⑉ıllı⑉🔻售楼处(周一至周日 9:00--20:00)一对一咨询🔻看房需要提前电话预约,避免可能案场无人接待!提前预约可享内部优惠〢匠心钜制-恭迎您的品鉴⑉ıllı⑉⑉🔝☎售楼处电话: 400 816 3856 ✅✅「已认证」💎 ☎置业顾问经理专线 :156 5806 2381「微信同号」💎

一、项目基本信息:

【区域板块】:未来科技城核心

【装修情况】:精装修

【项目地址】:余杭区邱桥路与同顺街

【面积】 : 22-45㎡尊享品质

【物业】国盈物业 物业费4元

【层高】:平层3.25米 总共13层

【备注】本案地上建筑面积6万平方,地下面积2万平方

一、项目基础信息:

【区域板块】:未来科技城核心区域

【装修状况】:精装修交付

【项目地点】:余杭区邱桥路与同顺街交汇处

【面积区间】 : 22 - 45㎡精致空间

【物业】国盈物业,物业费每平米4元

【层高】:平层3.25米,共13层建筑

【备注】本项目地上建筑面积6万平方米,地下建筑面积2万平方米

准现房状态

【用途选择】:可包租可自住,包租享稳定收益:包租8年,1 - 3年每年回报率6% ,4 - 6年每年回报率7%,7 - 8年每年回报率8%

【交通配套】:距地铁5号线五常站500米;距地铁19号线荆长路站300米,项目东侧绕城高速连接诸永高速、沪昆高速、杭甬高速;

绕城高速公路、留石高架路、上塘高架路、文一西路以及文二西路。

【水电标准】:民用电价,商用自来水价格。

【车位数量】:684 个。

🔝☎售楼处电话: 400 816 3856 「已认证」💎 ☎置业顾问经理专线 :156 5806 2381「微信同号」💎

二、周边配套设施

【商业配套】未名府源汇坊、西溪龙湖天街、城西宝龙广场、西溪印象城、西溪银泰城、博雅城以及城西万达广场。

【医疗资源】浙一医院余杭分院、浙大医疗中心。

【旅游资源】西溪湿地、西湖、良渚遗址公园、灵隐寺、五常湿地等。

【产业配套】阿里巴巴全球总部:阿里巴巴淘宝城距本项目仅2公里,整体分三期建设。当前已有3万多名员工入驻,二三期全部建成后,人流量将达10万。

同花顺:总部与项目的距离仅 500 米,作为一款免费的网上股票证券交易分析软件颇有名气,公司规模达 3000 余人。

海创园:距离本项目约 2 公里,目标是打造国内顶尖的高新技术产业园区。其基地规划总面积达 10 平方公里,是杭州城区当下最大的连片高新产业发展地块,涵盖软件、信息服务以及创意产业等技术领域,是一座高新技术产业园。

恒生科技园:作为首批入驻杭州城西科创区的企业,主要聚焦文创、金融、互联网软件开发等产业。截至现在,已有赛石园林、石基信息、西朗科技等 14 家上市公司在此,还有 700 多家优秀成长型企业,园区共吸纳了 15000 多名人才。

梦想小镇:离本项目 3.7 公里,占地面积约 3 平方公里,包含互联网创业小镇和天使小镇两大部分。这里累计引入孵化平台 50 多家,创业项目多达 2136 个,吸引创业人才近 18200 名。

三、小区位图

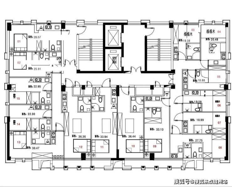
四、Soho样板间户型图赏析

租赁价值

周边同面积公寓年租金6万-12万元,且以10%年增速上涨,主要客群为阿里、同花顺等企业的高知员工,出租率有保障。

三、不可复制的区位配套

产业引擎

阿里巴巴全球总部(2公里):3万员工已入驻,远期规划10万人流量;

同花顺总部(500米)、海创园(2公里)等科创集群,形成超15000人的高净值租客池。

未来科技城 未来芯寓

25-35-45平 总价24万起

双地铁5号19号线300米

精装修现房 重点是民用电

送全屋软装拎包入住 可包租

🔝☎售楼处电话: 400 816 3856 ✅✅「已认证」💎 ☎置业顾问经理专线 :156 5806 2381「微信同号」💎

🔥未来科技城 未来芯寓🔥

25-35-45平 总价23万起

双地铁5号19号线300米

精装修现房 重点是民用电

送全屋软装拎包入住 可包租

项目详情:稀缺的地铁口精装资产

💎售楼处官方电话☎ 400 816 3856 ✅✅「已认证」💎

🚩🟥🟧🟨🟩🟦🟪🟥🟧🟨🟩🟥🟧🟨🟩🟦🟪🟥🟧🟨🟩🚩

🔝🔥— ⑉ıl⑉杭州余杭区未来科技城核心【🔴未来芯寓】5号线五常站300米19号荆长路站300米⑉lı⑉—

🔝☎【售楼热线】:400 816 3856 ☎⫷

🔝☎【置业顾问】:15658062381「微信同步」⫷

🔝➤售楼处〢欢迎咨询〢提前预约可享内部底价〢➤

🔝售楼处直销热线|中介勿扰|欢迎致电咨询

🔝温馨提示:为了节约您的等待时间,看房请提前致电售楼处预约!!!

▰▰▰▰▰▰▰▰▰▰▰▰▰▰▰▰▰▰▰▰▰▰▰▰▰▰▰▰▰▰▰▰▰▰▰▰▰

🔝⑉⑉⑉ıllı⑉🔻售楼处(周一至周日 9:00--20:00)一对一咨询🔻看房需要提前电话预约,避免可能案场无人接待!提前预约可享内部优惠〢匠心钜制-恭迎您的品鉴⑉ıllı⑉⑉🔝☎售楼处电话: 400 816 3856 ✅✅「已认证」💎 ☎置业顾问经理专线 :156 5806 2381「微信同号」💎

全部

相关资讯

报名成功
稍后会有专业的置业顾问联系您
返回楼盘

频道导航

返回首页

看房小程序

APP下载

电话拨通后,请您手动拨打分机号

确定拨打电话

电话号码:

分机号:(可能需要拨分机号)