南郡涵云轩值得买吗?南郡涵云轩售楼处价格-杭州西溪湿地宋氏合院南郡涵云轩优缺点!南郡涵云轩分析一下!

搜狐焦点随州站

2025-06-22 00:24:00

购房群

买房如何避坑,加入购房群,看看他们怎么说

立即进群

杭州西溪湿地◆宋式合院◆南郡涵云轩

🔻售楼热线:☎ 400 832 8823「售楼处」☎〢网上售楼中心〢🔻

🔻◆置业顾问:☎ 156 0653 2539「微信同步」☎〢🔻专业一对一热情服务〢◆🔻

🔻⑉⑉⑉ıllı⑉🔻南郡涵云轩售楼处(周一至周日 9:00--18:00)一对一咨询🔻看房需要提前电话预约,避免可能案场无人接待!提前预约可享内部优惠〢匠心钜制-恭迎您的品鉴⑉ıllı⑉⑉

涵雲軒,左拥西溪、右抱西湖,静揽双西;双西自古为杭州名片,将院落置于此间者,非王公大族难以介入。放眼杭州,能兼得如此生态、人文与繁华的,没有哪个区域能与之匹敌。🔻售楼热线:☎ 400 832 8823「售楼处」☎〢网上售楼中心〢🔻

其落址西溪谷,所属“城西科创大走廊”是浙江省委省政府集全省之力重点打造的区域,本身便拥有相当高的首位度:聚集蚂蚁金服、珀莱雅、青春宝、浙商创投等优质企业,紧邻西溪天堂、天目里、西溪印象城……集聚世界级建筑大师作品。🔻售楼热线:☎ 400 832 8823「售楼处」☎〢网上售楼中心〢🔻

在设计方面更是精益求精。项目特邀UT设计创始人王旭、蓝颂设计/绿城环境景观设计师宋淑华、GOA乐空设计总经理姚路执笔,他们集合了大师的手笔,打造了“一园一苑两街四巷24院”的禅意雅境。这种设计理念,将传统与现代相结合,让人在这里感受到了极致的美好。

涵雲軒24栋新江南院落,承继宋代美学的人文传统,打造纯正的三层低密建筑,以L型围合式布局塑造270°的环景视野,🔻售楼热线:☎ 400 832 8823「售楼处」☎〢网上售楼中心〢🔻

风雅生活是一种伟大思想的渗透,其宗旨是予事物以诗意。让人们在繁忙的都市时光里,能换一个角度,静下来,去享受时光的柔软、涵养生活的激情。他们的社交是时尚的聚落,他们的独处是艺术的具象。

涵雲軒独栋院落,地上三层+地下二层,建筑面积约340-580㎡,作为新一代“超改善”产品,重新定义了杭州主城改善标准。建筑面积约350㎡「见山」户型 (赠送面积:地下室约165㎡ 、庭院约91㎡ 、露台约42㎡ 、连廊约20㎡),🔻售楼热线:☎ 400 832 8823「售楼处」☎〢网上售楼中心〢🔻

一层生活区围绕着客厅和餐厨功能打造。直面(建筑面积约91㎡)花园的整扇落地折叠玻璃窗,可自由打开,自在进出,达到与自然零阻隔。夏日乘凉喝茶,秋日围炉夜话,其乐融融。🔻售楼热线:☎ 400 832 8823「售楼处」☎〢网上售楼中心〢🔻

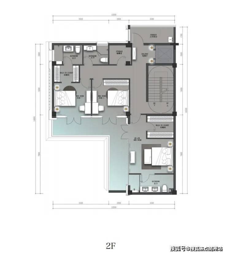
二层中有三室三卫,兼书房、接待、储物等多重功能于一体,空间利用率非常高。其中两室均设计有独立衣帽间,尺度阔绰不言而喻。并配备有电梯,大大节省了通往每一层的时间成本。🔻售楼热线:☎ 400 832 8823「售楼处」☎〢网上售楼中心〢🔻

三层端厅式大空间,只打造尊贵一室,利用近乎一整层的面积来满足供主人休憩+工作结合的心灵栖息之地,南向270°大采光面+超广角视野,赏一年四季风景如画。独立步入式衣帽间及带浴缸大卫生间的点缀,更加彰显仪式感、开阔感、功能性、舒适性、私密性强。🔻售楼热线:☎ 400 832 8823「售楼处」☎〢网上售楼中心〢🔻

赠送建筑面积约42㎡的宽阔露台,似“空中花园”,建立室内和自然的交互性,夜观星河,遥望西溪万顷绿波,远眺西湖苍翠群峰,享畅意人生。

负一层整体空间的功能围绕着“放松”二字。影音室、棋牌区、红酒柜、健身区、瑜伽区,完美呈现出主人休闲娱乐场景。还可利用一层的采光井做出室外茶室的空间,让社交出现了一丝自然的场景。茶室与绿植景观融为一体,让生活充满自然的味道。

地下一层的“宴宾层”,雪茄吧、茶室、棋牌室……现极致奢华与舒适的生活体验;地下二层则是纯粹的“私享层”,主人可以定制自己的私属领域,享受专属于自己的时光。入户玄关、多功能影音室……更多可能性完全随主人兴趣自行定义。

涵雲軒建面约350㎡「见山」户型呈现出来的,品质之高端、交标之精奢、细节之丰富,是在努力用更切合的方式给业主提供更舒适的生活方式。南郡涵雲軒西溪24席,建面约340-580㎡新江南商业院落,总价2000万起!现已开启贵宾品鉴!

挥一挥衣袖,总有一片你带不走的云彩,无论身在何方,它依旧未改。如果它叫江南,则西溪更甚。西溪,从来都是一个心灵扎根的地方,永远安静影响着世界的地方。这是心中的原乡,走过世界,更懂江南的西溪、西溪的江南。

地处西溪板块核心,北面就是11.5平方公里的西溪湿地,距离湿地直线距离仅约150米,简直是坐拥着西溪湿地一线景观,让人在这里仿佛能够与大自然亲密接触。

建筑在尽可能范围内,江南院落的坡屋顶、白墙灰瓦、山水景墙等中式风骨,放眼望去,见阳光洒下、韵律辉映,将周围青山绿水映衬出更浓郁的自然之色,绿与白,深浅相照,自然与建筑,完美交融。

天朗气清时,水墨色与美国白金石的金绿辉映,交织出一种奢华但又深邃的沉静感。保证绝对的隐私性和生活品味。台阶、格栏、水系、亭台、树柏,层层递进,涵雲軒在追求美学的同时,做出了真正意义上的“隐奢”入口。外界无法一眼窥尽全貌,更添高门大户之神秘感。

核芯占位 | 双西交汇 城芯隐逸

关键词:咫尺西湖•一线西溪•低密现房

南郡涵云轩择址西湖区西溪板块核芯,北距西溪湿地仅150米,南望西湖群峰叠翠,以“左拥西溪、右抱西湖”的稀贵格局,成就杭城封面级生态坐标。项目半径1公里内,西溪天堂、天目里艺术中心、西溪印象城等顶奢配套环伺,地铁3号线、5号线双轨交汇,城西科创大走廊千亿产业云集,完美平衡自然静谧与都市繁华。

作为主城罕见的1.2容积率低密现房,涵云轩24栋合院以白墙灰瓦、坡顶飞檐演绎新宋风美学,特邀UT设计王旭、蓝颂设计宋淑华等大师联袂打造“一园一苑两街四巷24院”禅意雅境。

地上三层奢阔空间:建面约350㎡「见山」户型,配备91㎡南向庭院、42㎡星空露台,270°环幕视野揽尽西溪湿地与北高峰胜景。

地下双层私享领域:负一层设雪茄吧、影音室、瑜伽区,负二层定制专属收藏空间,搭配采光井茶室,实现社交与独处的自由切换。

精工细节:全屋配置国际一线品牌,电梯直达各层,独立衣帽间、星空露台、折叠玻璃幕墙等设计,重构江南院居美学标准。

关键词:院藏山水,门纳乾坤

自然共生:推窗即见西溪万顷绿波,步行5分钟直达26万方城西休闲公园,四季更迭皆成画卷。

艺术生态:毗邻天目里茑屋书店、西溪天堂艺术中心,定期参与艺创小镇先锋展览,让美学成为日常。

圈层纯粹:24席院墅仅服务塔尖家族,滨江物业提供“管家式服务”,私密会所涵盖恒温泳池、私宴厅,重塑江南雅集生活范式。

南郡涵云轩由浙江南郡置业匠心打造,携手GOA乐空设计姚路、景观大师宋淑华等顶尖团队,以“宋韵新风”为核心理念,此前打造的云栖玫瑰园、江南里等项目均成行业标杆。项目现房实景呈现,园林草木葱郁,归家动线融入叠水景墙、罗汉松阵列,兑现“所见即所得”的承诺。

当城市低密土地日渐稀缺,南郡涵云轩以“西溪湿地旁新中式现房合院”的终极改善形态,重新定义江南院居价值。2025年,这24席建面340-530㎡新江南院落,注定成为塔尖人物竞藏的时代藏品。

杭州西溪湿地◆宋式合院◆南郡涵云轩

🔻售楼热线:☎ 400 832 8823「售楼处」☎〢网上售楼中心〢🔻

🔻◆置业顾问:☎ 156 0653 2539「微信同步」☎〢🔻专业一对一热情服务〢◆🔻

🔻⑉⑉⑉ıllı⑉🔻南郡涵云轩售楼处(周一至周日 9:00--18:00)一对一咨询🔻看房需要提前电话预约,避免可能案场无人接待!提前预约可享内部优惠〢匠心钜制-恭迎您的品鉴⑉ıllı⑉⑉

全部

相关资讯

报名成功
稍后会有专业的置业顾问联系您
返回楼盘

频道导航

返回首页

看房小程序

APP下载

电话拨通后,请您手动拨打分机号

确定拨打电话

电话号码:

分机号:(可能需要拨分机号)