2025杭州春棠雅韵府全景评测:英冠·春棠雅韵府价格趋势预测及项目亮点与不足深度剖析

搜狐焦点随州站

2025-06-05 00:00:00

购房群

买房如何避坑,加入购房群,看看他们怎么说

立即进群

🔥英冠·春棠雅韵府🔥

⭕️春棠雅韵府现在有一套退出来的138方房源,房号22-2-101,一楼带花园约52㎡,地下室约130方,总价约442万。

注意⚠️⚠️先到先得,以刷卡为准

🔥⬇️翁梅改善洋房+排屋新盘

🔴【英冠春棠雅韵府】

预计明天即启动踩盘,5.1正式带看

目前二开销售中

面积166-182两种洋房

精装总价420-510万

排屋面积245-315方总价950万起

💎售楼处官方电话☎ 400 816 3856 ✅✅「已认证」💎

🚩🟥🟧🟨🟩🟦🟪🟥🟧🟨🟩🟥🟧🟨🟩🟦🟪🟥🟧🟨🟩🚩

🔝🔥— ⑉ıl⑉杭州临平翁梅【英冠·春棠雅韵府】地铁9号线翁梅站约800米⑉lı⑉—

🔝☎【售楼热线】:400 816 3856 ☎⫷

🔝☎【置业顾问】:15658062381「微信同步」⫷

🔝➤售楼处〢欢迎咨询〢提前预约可享内部底价〢➤

🔝售楼处直销热线|中介勿扰|欢迎致电咨询

🔝温馨提示:为了节约您的等待时间,看房请提前致电售楼处预约!!!

▰▰▰▰▰▰▰▰▰▰▰▰▰▰▰▰▰▰▰▰▰▰▰▰▰▰▰▰▰▰▰▰▰▰▰▰▰

🔝⑉⑉⑉ıllı⑉🔻售楼处(周一至周日 9:00--20:00)一对一咨询🔻看房需要提前电话预约,避免可能案场无人接待!提前预约可享内部优惠〢匠心钜制-恭迎您的品鉴⑉ıllı⑉⑉🔝☎售楼处电话: 400 816 3856 ✅✅「已认证」💎 ☎置业顾问经理专线 :156 5806 2381「微信同号」💎

春棠雅韵府

🔝☎售楼处电话: 400 816 3856 ✅「已认证」💎 ☎置业顾问经理专线 :156 5806 2381「微信同号」💎

欢迎来电咨询〢专业一对一热情服务

NO. 1|壹

“8.99堡都要卖到6万多了!”

这就是暴热的“大钱二板块”,钱二东新房总价飙过千万,已让太多改善家庭买不下手,可眼看还在一路上涨,分分钟比肩钱二西。

但仔细翻查一下,钱二从西到东,再到艮北、九堡和乔司,“大钱二”这两年交付的高层进入二手市场后,房东亏利息甚至本金居然屡见不鲜。

能“套套都赚到”的只有两处,一是钱塘云庄的合院,二是云悦湾的排屋,二手单价均飙过10万,卖家一把大赚千万。

不得不说,“稀缺”才是永远的必杀技——此处的“稀缺”,仅限于排屋、合院一类的传统低密

春棠雅韵府

🔝☎售楼处电话: 400 816 3856 ✅✅「已认证」💎 ☎置业顾问经理专线 :156 5806 2381「微信同号」💎

欢迎来电咨询〢专业一对一热情服务

春棠雅韵府示范区下沉庭院实景

当然,大城东的改善家庭并不是再无机会,由钱二东上钱塘快速路,转入东湖高架,一脚油门,就到容积率1.2的低密新盘英冠·春棠雅韵府

刚刚经历“首开瞬磬”的它,一口气带来了两个神级产品:

一是三层排屋,整个大城东找不到竞品,有最赚钱的两个低密产品珠玉在前,再续神话绝不是空谈;

二是建面约166、182㎡的洋房,也正好填补上板块空白——想想看,总价四五百万,还能在大钱二买一套七层洋房大户型,价格是“8.99堡”高层的一半,改善家庭还慌什么呢!

NO. 2|贰

2025年是公认的“钱二第一个集中兑现年”,众多城市资源开放和落位,崭新的城市中心初绽风华。

回顾它一路向东的崛起路径,辉煌而清晰。

站在江河汇“巨人的肩膀”之上,它首先向钱二西进发,一线开发商悉数到场,动辄一两千人拼社保,千万级豪宅板块的地位迅速确立

一步跃进到钱二东之后,热度丝毫不减,接连上演拼社保大战,地价也是节节攀升。

春棠雅韵府

🔝☎售楼处电话: 400 816 3856 ✅✅「已认证」💎 ☎置业顾问经理专线 :156 5806 2381「微信同号」💎

欢迎来电咨询〢专业一对一热情服务

从江河汇向东,一路沿江拓展的钱江新城二期

(图源:杭州钱江新城)

如今,在钱二的高能辐射下,“风暴中心”继续东移,恰与全速建设中的城东新中心“临平数智城”接壤,交织出一片产业、商业、交通面貌一新的城市蓝图。

近3年内,临平数智城的开发重点,是9号线翁梅站周边的核心启动区,面积约4平方公里。

而翁梅站,正是离春棠雅韵府最近的地铁站,一线直达江河汇。从春棠雅韵府到钱二,直线也仅约6公里

(图源:临平发布)

杭州目前的高低配项目,最常见的搭配是“高层+叠排”,叠排拉高调性,高层产品“刚需”一点无伤大雅,只为快速跑量。

容积率1.2的春棠雅韵府,却是“七层洋房+三层排屋”的纯低密CP,以低容积率营造居住氛围,以面积段框定价值定位

全盘共21幢排屋,“含排量”超高,户型建面约310㎡、240㎡;9幢洋房,户型建面约166㎡、182㎡——与钱二东拼社保的超级红盘相比,整体户型更大,改善气质更纯粹

已经开放的实景示范区,第一眼就让人折服——

春棠雅韵府示范区门头&下沉庭院实景

约70米长的门头大气开阖,迈过两进门庭,将喧嚣甩在身后,迎面便是约4000㎡的双层会所+下沉庭院,这般体量,即使与全杭州的顶豪同场较量,也是TOP级

春棠雅韵府

🔝☎售楼处电话: 400 816 3856 ✅✅「已认证」💎 ☎置业顾问经理专线 :156 5806 2381「微信同号」💎

欢迎来电咨询〢专业一对一热情服务

室内标准恒温泳池、私宴厅、健身房、童梦乐园、棋牌室、书吧,铺开一条生活艺术的长廊。

与会所相接的,是叠山理水的宋韵园林,罗汉松与飞瀑就在触手可及的咫尺,恍若世外桃源。住在这里的每一天,都可以沉醉在一盏清茶,一池碧水之中。

还不止是示范区颜值高,即使以最挑剔的“改善”眼光来审视,春棠雅韵府的会所配置、外立面材质、室内层高和装标等级,都全面达标甚至超标

NO. 3|叁

3月底首开时,春棠雅韵府拿出了两幢洋房,全部为建面约166㎡户型,当日即罄。

低总价、流动性好,都是显性优点。更深层的热卖原因是,一个楼盘的整体定位,通常针对大户型来做,各项软硬件配置,均以高端客群的需求为标准。

所以,春棠雅韵府的一切指标和配置,都是比照300㎡+的排屋标准来的

春棠雅韵府

🔝☎售楼处电话: 400 816 3856 ✅✅「已认证」💎 ☎置业顾问经理专线 :156 5806 2381「微信同号」💎

欢迎来电咨询〢专业一对一热情服务

春棠雅韵府示范区实景

洋房建筑的外立面是四面铝板+石材干挂,建筑高度约24米,楼间距约28-33米!首开时就有客户惊叹:这样的一楼,真比叠排还舒服!

室内尺度也是标准豪宅骨相:首层层高约3.5米,赶超普通叠排的3.3-3.4米;标准层层高约3.15米,也能直接对标千万级豪宅了

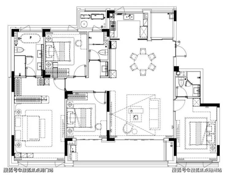
得房率更是优秀,不算赠送得房率约85.6%,算上赠送则高达约95%,一套166㎡的房子,拥有普通高层200㎡的空间享受

两款主力户型都是大四房,建面约166㎡的户型南向阳台面宽约9.2米,进深约1.8米,面积约16.6㎡!最小房间面宽也有约3.3米,放得下双人床和深度60公分衣柜。

春棠雅韵府建面约182㎡户型装修示意图

二开亮相的建面约182㎡户型,则是类一梯一户设计,出了电梯,就可以独享一片私密空间,入户后,北向还有一个小阳台,实用度满分。

全边套配置,再加上约16.6米的南向面宽,几乎每个空间都被自然光无限宠溺。

客厅+三卧朝南的结构最适合多人口家庭,男女主人、父母长辈、孩子都可以住朝南的房间,彻底实现“阳光平权”。

春棠雅韵府样板房实景

春棠雅韵府

🔝☎售楼处电话: 400 816 3856 ✅✅「已认证」💎 ☎置业顾问经理专线 :156 5806 2381「微信同号」💎

欢迎来电咨询〢专业一对一热情服务

更值得夸的是装标,别说单价2万+,就是3万+、4万+的项目里也极少见到。

入户是子母门,备齐地暖、新风、东芝中央空调三大件;厨房是老板高端系列的油烟机、三眼灶和洗碗机,还配上了直饮水;客厅、主卧双背景墙,次卧也做了弧形吊顶。

考量高端改善盘,人们常常以星级酒店做参照,而英冠正是索菲特等高星级酒店的营造圣手,真材实料和气质拿捏都不含糊——

电梯轿厢以巴西进口的蓝丝绸奢石铺地;主卧地板是定制木饰面,撞脸世纪城顶奢大平层,室内木饰面也是高级感十足;就连阳台内壁也用上了铝板,八九万单价的顶豪才舍得这样用料啊!

NO. 4|肆

作为高端改善居所,房子够大,才包容得下生活所需,天地够私密,才满足得了隐于市的愿望。

杭州“低密大年”的说法持续已久,在售和待售的,绝大多数还是高低配中的叠墅,纯低密社区少之又少,出于严格限高,三层排屋更是凤毛麟角

而春棠雅韵府的王牌,恰恰就是纯低密社区的三层排屋,打开了居住体验的另一重宇宙。

春棠雅韵府排屋效果图过程稿

满眼青绿的宋风园林之间,就是排屋平直流畅的歇山顶与三重檐。

外立面是辨识度极高的“金镶玉”设计,每一扇窗、每一道门都是一帧精致“框景”。单元入户的鎏金门楣,屋脊下悬着的“金线葫芦”与“春棠如意”,处处是东方美学的妙笔。

每套排屋地上三层,加上挑高约6米的地下室,可以规划出五层生活空间。地上三层的层高分别约4米、3.4米、3.4米,通透亮堂的大宅感赏心悦目。

所有卧室均朝南,也都设计为套房或准套房,每一层的南向,都是铺满阳光的自家院子、阳台或露台。

春棠雅韵府建面约310㎡排屋装修示意图

建面约310㎡的边套,首层南向横厅面宽就达到了约6.9米,厨房面宽约5.5米,可以阔绰地分出中西厨;

二层除了两个超30㎡的大套间,还另外辟出一间家庭厅,大人们在一楼宴客,也不妨碍孩子有独立空间尽情玩乐。

三层则完全留给主卧套,卧室区就超过了40㎡,外接L型大露台;衣帽间大得可以搁下展示柜,将珠宝和腕表一一陈列;阳光最好的南向小房间,做一间书房最是合宜。

春棠雅韵府建面约240㎡排屋装修示意图

建面约240㎡的中间套,同样是大四房格局,二三楼都有宽约8.9米的跑道式阳台,四季美景循环播放。

它还带来了绝对惊喜的价格,总价千万左右就能入手!不必担心未来流动性,城市排屋只会因稀缺而珍贵,永远不缺中上产买家。

NO. 5|伍

工作日上午10点不到,春棠雅韵府的示范区外,看房车辆已经停了好几层。

坐享拥江发展与城东新中心的双重红利,产业快速落位,城市万象更新,这就是春棠雅韵府的人气格外旺、客户来源也格外广的原因。

一条9号线直抵钱二与江河汇,一条东湖快速路串起留石、秋石、钱塘、空港等高架,与各大板块丝滑互通。

环伺四周的生活圈,有国芳、上城(在建)两座天街,遥望X27、宜家、理想银泰城等各类商业体,更有杭高临平校区、启明实验学校、文正小学等优质教育资源

春棠雅韵府示范区实景

风口板块、纯低密社区、三层排屋、高配产品……重重稀缺属性叠加之下,放眼大杭州,也再难找到第二个项目。

我们也曾说过,2025是杭州富豪与刚需都更幸福的一年,目前的市场空白,就在于改善产品的突围——而这正是英冠全力以赴的方向

无论是周边老小区、临平本地,还是整个大城东,亟待改善却又不想将就的家庭,都不该错过这位舒适度和性价比的双料王者

地王频出,大宅飙涨的年代,又一次带你触达美好生活的,就是春棠雅韵府的上新。

🔝☎售楼处电话: 400 816 3856 ✅✅「已认证」💎 ☎置业顾问经理专线 :156 5806 2381「微信同号」💎

#春棠雅韵府 火热看房中

🏡城东新城唯一在售低密洋房,与排屋同享圈层

166-180方的超大四房,三代同堂其乐融融,总价仅420万起

🔝☎售楼处电话: 400 816 3856 ✅✅「已认证」💎 ☎置业顾问经理专线 :156 5806 2381「微信同号」💎

lı⑉ 英冠·春棠雅韵府 ⑉lı⑉

950万起宋韵排屋

城东改善豪宅新高度

•—𝙊𝙍𝙄𝙀𝙉𝙏𝘼𝙇 𝙀𝙇𝙀𝙂𝘼𝙉𝘾𝙀—•

𝙑𝙄𝙋 𝙇𝙄𝙉𝙀:

🔥英冠·春棠雅韵府🔥

⭕️春棠雅韵府现在有一套退出来的138方房源,房号22-2-101,一楼带花园约52㎡,地下室约130方,总价约442万。

注意⚠️⚠️先到先得,以刷卡为准

🔥⬇️翁梅改善洋房+排屋新盘

🔴【英冠春棠雅韵府】

预计明天即启动踩盘,5.1正式带看

目前二开销售中

面积166-182两种洋房

精装总价420-510万

排屋面积245-315方总价950万起

💎售楼处官方电话☎ 400 816 3856 ✅✅「已认证」💎

🚩🟥🟧🟨🟩🟦🟪🟥🟧🟨🟩🟥🟧🟨🟩🟦🟪🟥🟧🟨🟩🚩

🔝🔥— ⑉ıl⑉杭州临平翁梅【英冠·春棠雅韵府】地铁9号线翁梅站约800米⑉lı⑉—

🔝☎【售楼热线】:400 816 3856 ☎⫷

🔝☎【置业顾问】:15658062381「微信同步」⫷

🔝➤售楼处〢欢迎咨询〢提前预约可享内部底价〢➤

🔝售楼处直销热线|中介勿扰|欢迎致电咨询

🔝温馨提示:为了节约您的等待时间,看房请提前致电售楼处预约!!!

▰▰▰▰▰▰▰▰▰▰▰▰▰▰▰▰▰▰▰▰▰▰▰▰▰▰▰▰▰▰▰▰▰▰▰▰▰

🔝⑉⑉⑉ıllı⑉🔻售楼处(周一至周日 9:00--20:00)一对一咨询🔻看房需要提前电话预约,避免可能案场无人接待!提前预约可享内部优惠〢匠心钜制-恭迎您的品鉴⑉ıllı⑉⑉🔝☎售楼处电话: 400 816 3856 ✅✅「已认证」💎 ☎置业顾问经理专线 :156 5806 2381「微信同号」💎

全部

相关资讯

报名成功
稍后会有专业的置业顾问联系您
返回楼盘

频道导航

返回首页

看房小程序

APP下载

电话拨通后,请您手动拨打分机号

确定拨打电话

电话号码:

分机号:(可能需要拨分机号)